Sommerhus - 5 personer - Neustädter Str. - 24376 - Kappeln

5 personer
heraf 1 barn (0-17 år)

Oversigt

Emne nr.: 552-174735
7 overnatninger
Fra DKK 6.840,-
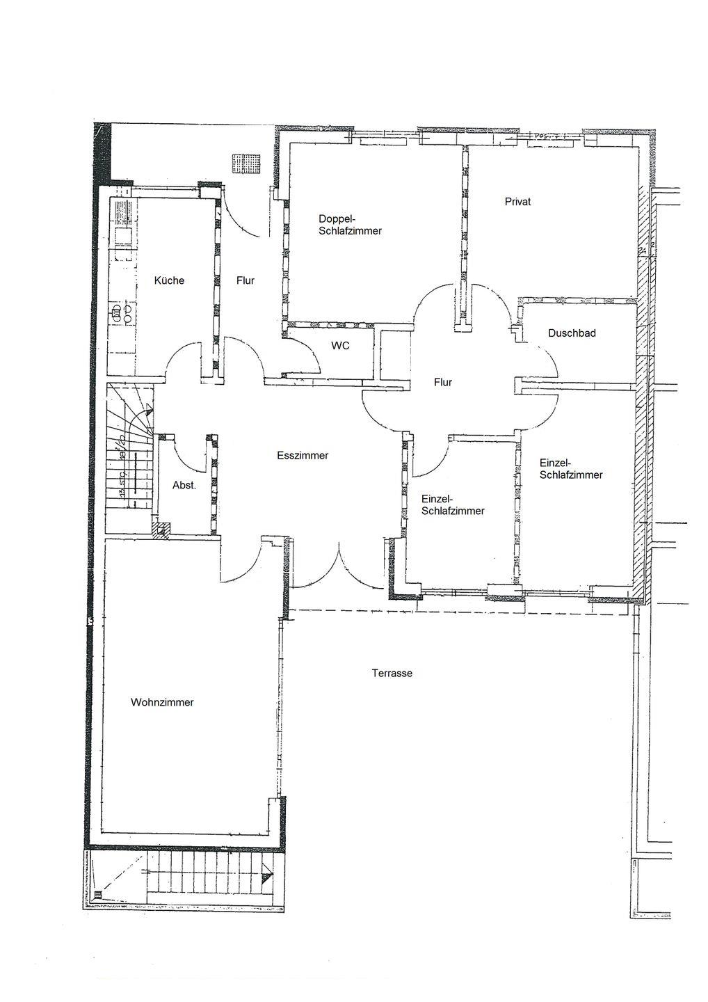
Boligareal 100 m²
Soverum 3
Badeværelser 1
Afstand vand 6.900 m
Internet
Ikkeryger
Husdyr
  • Tilbyder miniferie Ja
  • Afstand indkøb 2 km
  • Udsigt til vand Ja
  • Opvaskemaskine Ja

Beskrivelse

Beskrivelsen foreligger desværre ikke på Dansk. Se teksten på Tysk nedenfor, eller se den maskinoversatte tekst på Dansk.
Ferienhaus Hafenblick in Kappeln

Gemütliches, gut ausgestattetes Reihenhaus in ruhiger Wohnlage mit traumhaftem Schleiblick.

Mit diesem Teil einer Reihenhausanlage in erster Reihe zur Schlei steht einem Wohlfühlurlaub nichts mehr im Wege. Das Esszimmer mit Terrassenzugang bildet mit einem traumhaften Schleiblick den Mittelpunkt der Wohnung und hat genug Platz für die ganze Familie. Von hier aus gelangen Sie nicht nur in die gut ausgestattete Küche im Landhausstil mit Spülmaschine, Dunstabzugshaube, Kühl-Gefrierkombi, Kaffeemaschine, Wasserkocher, Toaster & Eierkocher, sondern auch in das großzügige Wohnzimmer, welches von dem Ecksofa den selben traumhaften Blick auf die Schlei bietet. Im Sommer werden Sie hier zahlreiche Segler beobachten. Im Winter sitzen Sie im gemütlich warmen Wohnzimmer und blicken über die Schlei auf die verschneite Hafenmeile Kappelns. Wunderbar abgetrennt vom Alltäglichen ist ein privater Bereich durch einen weiteren Flur. Hier befinden sich das Doppelschlafzimmer (2x 80x200cm), zwei Einzelbett-Schlafzimmer (je 80x200cm), sowie ein Duschbad. Das zusätzliche Gäste-WC erreichen Sie vom Eingangsbereich. Nicht Allergiker geeignet. Ihre Fahrräder können Sie in der Garage unterstellen.

Raumaufteilung

  • Schlafzimmer, 2 Personen
    • Kleiderschrank
    • Kleines Doppelbett
  • Schlafzimmer, 2 Personen
    • Kleiderschrank
    • Einzelbett
    • Einzelbett
  • Schlafzimmer, 1 Person
    • Kleiderschrank
    • Einzelbett (Nur Kinder)

Vores gæsteanmeldelser Eksterne anmeldelser

Ingen gæsteanmeldelser
4,6
22 eksterne anmeldelser
5,0
oktober 2025
Generel:
Wir hatten einen wunderbaren Kurzurlaub Anfang Oktober in diesem gemütlichen Ferienhaus "Hafenblick" in Kappeln. Die Lage ist ruhig und dennoch zentral, alles Wichtige ist in der Nähe: Supermärkte, Zentrum und der Hafen sind bequem auch zu Fuß erreichbar. Die Zimmer sind geschmackvoll eingerichtet, sauber und hell, mit einer gut ausgestatteten Küche, bequeme Betten und einem liebevoll dekorierten Wohnzimmer. Besonders gefallen hat uns der Gartenbereich, der nach einem langen Ausflug ideal zum Entspannen war. Von hier aus lässt sich die Schlei wunderbar erkunden - ob Bootstour, Fahrradtour oder Spaziergang am Wasser. Die Ansprechpartner waren herzlich, aufmerksam und jederzeit hilfsbereit. Wir haben uns rundum gut betreut gefühlt und kommen sehr gern wieder. Absolut empfehlenswert für entspannte Familienurlaube oder Pärchen-Auszeiten.
5,0
maj 2025
5,0
september 2024
Generel:
Ein sehr geschmackvoll eingerichtetes Haus, in dem wir uns sehr wohl gefühlt haben. Ein toller Blick auf Kappeln und die Schlei.
4,7
august 2024
4,3
juli 2024
Generel:
Wir haben zu viert einen tollen Urlaub in diesem Haus verbracht, trotz schlechtem Wetter. Der Blick auf die Schlei ist wunderbar. Es ist ruhig und alles gut zu erreichen, Strand, Einkaufsmöglichkeiten und die Innenstadt.
4,0
juni 2024
5,0
juni 2024
4,0
Generel:
Uns hat das Haus sehr gut gefallen. Das Beste war der Ausblick auf die Schlei. Bei Nacht war Kappeln / Altstadt sehr schon beleuchtet. In 10-15 Minuten ist man zu Fuß zum Hafen gelaufen. Die windgeschützte Terrasse war sehr angenehm am späten Nachmittag. Jeder Schlafraum verfügt über einen Kleiderschrank, das fanden wir sehr angenehm. Wir würden das jeder Zeit, wieder mieten.
4,0
Generel:
Ein Reihen-Bungalow, der zwar schon etwas älter ist, aber wunderbar gelegen mit Blick auf die Schlei. Sehr ruhig, sehr gemütlich, sehr sauber. Mit kleinem Garten, in dem man im Sommer wunderbar sitzen kann. Auch Fahrräder können in einer Garage gut untergebracht werden. Restaurants und Einkaufsmöglichkeiten sind gut zu erreichen. Wir waren 2 x dort und kommen gern wieder, um uns total zu erholen. Was stört, ist das Überangebot an Dekostücken allen Räumen. Da gilt: wesentlich weniger ist mehr! Ansonsten alles top! LG Angela Flato + Holger Harms. P.S.: Wenn der kleine Hund mit dürfte, wär`s noch besser !
5,0
Generel:
Toller Blick auf den Kappelner Hafen vom Wohnzimmer und Garten aus, direkt am Ufer der Schlei gelegen. Perfekt, sauber und einfach hygge! Alles da, was man so braucht. Das einzige, was ich bei einem längeren Aufenthalt vermissen würde, ist eine Waschmaschine.
5,0
Generel:
Das Haus liegt mit wunderbarem Blick auf die Schlei in einer Reihenhaus Siedlung. Sowohl zu Fuß als mit dem Auto ist Kappeln wunderbar zu erreichen. Das Haus ist großzügig, sauber und hell. Die Küche ist gut ausgestattet. Etwas viel Deko, aber das ist bekanntlich Geschmackssache und hat den Urlaubsfreuden keinen Abbruch getan. Sehr gerne wieder, sagt auch unser 6-jähriger Sohn:) Familie Wermelskirchen
5,0
Generel:
Sehr schönes Bungalow-Reihenhaus an der Schlei gegenüber von Kappeln (Stadteil Ellenbrück) mit unverbautem Hafenblick. Sehr guter Zuschnitt der Zimmer wie auch des Grundstücks mit sonnigem Garten und Privatsphäre zu den benachbarten Häusern. Ausstattung und Sauberkeit sehr gut.
5,0
Generel:
Ein tolles Objekt, alles vorhanden was man braucht. Auch ein drittes Mal werden wir gerne wiederkommen.
5,0
Generel:
Tolle Wohnung mit super Blick über die Schlei auf den Hafen! Wir haben uns sehr wohl gefühlt.
3,0
Generel:
Ein sehr gemütliches Ferienhaus in einer schönen Lage mit blick auf die Schlei und -Brücke. Es fehlt an nichts.
3,0
Generel:
Das Ferienhaus ist sehr gemütlich eingerichtet. Es Fehlt an nichts. Der Ausblick auf die SchleiBrücke und den Hafen sind toll! Wir waren zwar nur vom 30.04. bis 05.05.2019 dort, aber es hat uns gut gefallen.
5,0
Generel:
Sehr schönes Haus, gut ausgestattet, gute Lage, alles bestens.
5,0
Generel:
Tolles Haus zum wohlfühlen und dann noch mit dem Blick auf die Schlei!! Wir haben uns sehr wohl gefühlt und kommen gerne wieder! L.G. an die Schlei Chr.Becker
5,0
Generel:
Das Haus war groß, gut gelegen, ruhig und gut ausgestattet. Wir haben keine Beanstandungen. Vielen Dank
5,0
Generel:
Die Ferienwohnung ist ein Bungalow in einer kleinen Reihe mit anderen Bungalows, und liegt gegenüber des der Stadt und des Hafens.Die Abendsonne scheint angenehm in Garten und Wohnzimmer. Von der Fewo aus hat man einen guten Blick auf Stadt, Hafen und Schlei. Die Einrichtung ist angenehm hell gehalten. Austattung ist komplett. Wir (66 und 92 Jahre) haben uns sehr wohl gefühlt. Vielen Dank
5,0
Generel:
Das Ferienhaus hat unsere Erwartungen voll übertroffen. Tolle Einrichtung, es hat uns an nichts gefehlt. Das Wetter war super und der Blick auf die Schlei mit stündlicher Flottenparade der Segelschiffe ist wunderschön. Einziges kleines Manko wäre vielleicht die kleine Aussenterasse mal neu zu Pflaster und eine neue Bestuhlung wäre auch toll. Aber das ist Nebensache, da 4 Liegen zur Verfügung stehen. Wir kommen sicher wieder!!!!
4,0
Generel:
Das Ferienhaus ist sehr schön gelegen ,mit Blick auf die Schlei.Im Haus ist alles vorhanden was man braucht und sauber!Super für Familien mit mehreren Personen!Gut wäre ein weiterer Schlüssel und die Überholung der Terassenmöbel!

Faciliteter

  • Afstand

    • Afstand indkøb
      2 km
    • Byafstand
      2,6 km
    • Restaurant afstand
      2,6 km
    • Strandafstand
      6,9 km
    • Sø afstand
      6,9 km
  • Badeværelse

    • Badeværelse vindue
    • Bruseantal
      1
    • Bruser
    • Gæstetoilet
      1
    • Håndvask
    • Hårtørrer
    • WC
  • Grundlæggende

    • Børn velkomne
    • Ikke-ryger
    • Kvadratmeter
      100 m²
    • Værelser
      4
  • Hus

    • DVD
    • Enkeltsenge
      3
    • Garderobe
    • Havudsigt
    • HIFI
    • Internet
    • Komfur
    • Lounge siddepladser
    • Radiator
    • Senge
      5
    • Senge til børn
      1
    • Sofa
    • Spejl
    • Spisebord
    • Spisepladser
    • Strygebræt
    • Strygejern
    • Stue
    • Støvsuger
    • TV
    • Varmt vand
    • Vasketøjsstativ
    • WiFi
  • Køkken

    • Blander
    • Elkedel
    • Espressomaskine
    • Fryser
    • Kaffemaskine
    • Køkken
    • Køkkenredskaber
    • Køleskab
    • Opvask
    • Opvaskemaskine
    • Ovn
    • Toaster
  • Udendørs

    • Have
    • Havemøbler
    • Område til solbadning
    • Parasol
    • Terrasse

Miniferie

Der er begrænset mulighed for miniferie hele året, typisk uden for højsæsonen.

Priser og kalender

Kalender

Ankomst
Forrige Næste
  • april 2026
    mationtofr
    1412345
    156789101112
    1613141516171819
    1720212223242526
    1827282930
    19
  • maj 2026
    mationtofr
    18123
    1945678910
    2011121314151617
    2118192021222324
    2225262728293031
    23
   Se om emnet er ledigt på den valgte dato
Ledig
Optaget
   Ankomst mulig
Varighed

Pris

Periode
Ankomst
Afrejse
Varighed
1 uge
Personer
Op til 5 personer
heraf 1 barn (0-17 år)

Bemærk

Ankomst er ikke valgt.
Aftale- og lejebetingelser