Hyggelig ferielejlighed tæt på strand og by

Sommerhus - 6 personer - Nordvej 11- - 6853 - Vejers Strand

6 personer

Oversigt

Emne nr.: 328-987647
7 overnatninger
Fra DKK 2.853,-
Hyggelig ferielejlighed i Vejers Strand med 100 m til stranden og gratis adgang til indendørs pool.
Grundareal 100 m²
Boligareal 62 m²
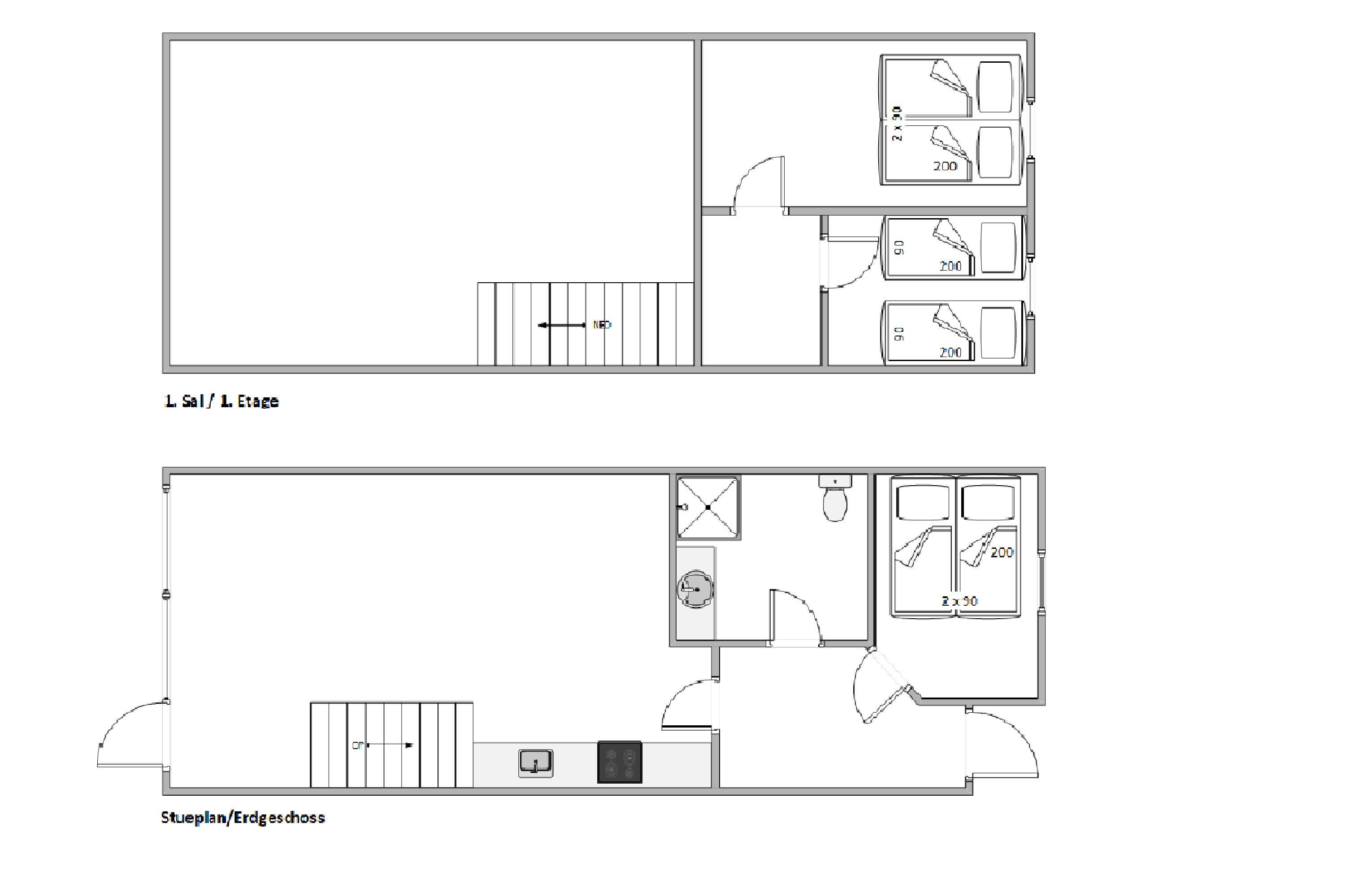
Soverum 3
Badeværelser 1
Afstand vand 100 m
Internet
Ikkeryger
Husdyr 1
  • Tilbyder miniferie Nej
  • Afstand indkøb 200 m
  • Swimmingpool Ja
  • Opvaskemaskine Ja
  • Energivenligt Ja

Beskrivelse

Denne dejlige ferielejlighed på Nordvej 11-2 i Vejers Strand er det perfekte valg til en strand- og centrumsnær ferie. Den lyse lejlighed rummer plads til 6 personer, og med kun 100 meter til stranden og 200 meter til byen kan I roligt lade bilen stå. Ekstra bonus: Som en del af Vejers Feriecenter har I tilmed gratis adgang til en indendørs swimmingpool.

Badeferie året rundt i denne velindrettede ferielejlighed

Den velindrettede ferielejlighed er opdelt på to etager med opholdsstue og køkken, badeværelse og et enkelt soveværelse i stueetagen og de sidste to soveværelser ovenpå. Med plads til 6 personer kan hele familien komme med.

Lejligheden er lyst og venligt indrettet fra ende til anden, og især den åbne opholdsstue med integreret køkken indbyder straks til samvær og familiehygge i stor stil. I sofahjørnet kan I smide benene opad til en spændende film, og i køkkenet kan I sammen tilberede dagens feriemiddag.

Ligegyldigt årstid, vind og vejr - her er altid grund til at pakke badetøjet med. Som en del af Vejers Feriecenter har I nemlig gratis adgang til en fælles indendørs swimmingpool!

I fællesrummet ved poolen finder du et ekstra rum med sauna og vaskemaskine – disse faciliteter kan du benytte efter først til mølle princippet mod betaling af gebyr.

Fantastisk beliggenhed kun 100 meter fra badestranden

Den afskærmede terrasse giver gode muligheder for at nyde det gode vejr, og har I brug for lidt afveksling, har I alting inden for rækkevidde.

Tag for eksempel en tur til Vejers' fine badestrand, som ligger kun 100 meter fra lejligheden. Gå en tur langs strandkanten, dyp fødderne i vandet på en varm sommerdag, eller hop i gummistøvlerne og se de store bølger danse i stormen i det blæsende efterårsvejr.

Ligesom stranden, ligger Vejers' hyggelige centrum kun få minutters gang væk, og de spændende forretninger, gode spisesteder og lækre iscaféer byder på noget for enhver smag. Til glæde for de små feriegæster er der også en stor legeplads.

Udlejes ikke til ungdomsgrupper.

Vores gæsteanmeldelser Eksterne anmeldelser

3,0
Baseret på 3 vurderinger
Sidste vurdering fra d. 13-09-2025
5
(0)
4
(1)
3
(1)
2
(1)
1
(0)
Kommentarer
Ingen vurderinger har kommentarer.

Faciliteter

  • Opholdsrum

    • Gulv: Træ
    • Radio
    • Fladskærms-TV
      1
    • Ekstra varmekilder
  • Soverum

    • Gulv: Træ
    • Gulv: Tæppe
    • Dobbeltsenge
      2
    • Enkeltsenge
      2
    • Sovepladser
      6
    • Soverum
      3
  • Køkken

    • Komfur: El m. ovn
    • Køleskab m. frostboks
    • Opvaskemaskine
  • Baderum

    • Pool
    • Gulvvarme bad
    • Antal badeværelser
      1
  • Objektinfo - Inde

    • Areal: Hus m²
      62
    • Byggeår
      1992
    • Husdyr tilladt
    • Husdyr antal, max
      1
    • Ikke ryger hus
    • Gratis Internet
    • Personantal
      6
    • Danske TV-kanaler (Betalingskanaler)
    • Tyske tv-programmer
    • Varme: Elvarme
    • Varme: Varmepumpe luft til luft
    • Jubilæumsmønt er udleveret
  • Objektinfo - ude

    • Afstand i meter: Hav
      100 m
    • Afstand i meter: Indkøb
      200 m
    • Grundens areal i m2
      100
    • Gynge
    • Sandkasse
    • Trækulgrill
    • Havemøbler
    • Solvogne
    • Parasol
    • Terrasse: Afskærmet
    • Affald hentes:
      Fælles
  • Koncepter

    • Skiftedag: Fredag
    • Ferielejlighed
  • Miniferie

    • Ja, tak - tillad miniferie

Priser og kalender

Kalender

Ankomst
Næste
  • maj 2026
    mationtofr
    18123
    1945678910
    2011121314151617
    2118192021222324
    2225262728293031
    23
  • juni 2026
    mationtofr
    231234567
    24891011121314
    2515161718192021
    2622232425262728
    272930
    28
   Se om emnet er ledigt på den valgte dato
Ledig
Optaget
   Ankomst mulig
Varighed

Pris

Periode
Ankomst
Afrejse
Varighed
1 uge
Personer
Op til 6 personer

Bemærk

Ankomst er ikke valgt.
Aftale- og lejebetingelser