Nyrenoveret feriehus tæt på Vejers Strand

Sommerhus - 4 personer - Ternevej - 6853 - Vejers Strand

4 personer

Oversigt

Emne nr.: 328-542161
7 overnatninger
Fra DKK 4.893,-
Inkl. rengøring
Charmerende, nyrenoveret feriehus i Vejers Strand, tæt på strand, indkøb og med skøn terrasse og børnevenlige faciliteter.
Grundareal 1.585 m²
Boligareal 85 m²
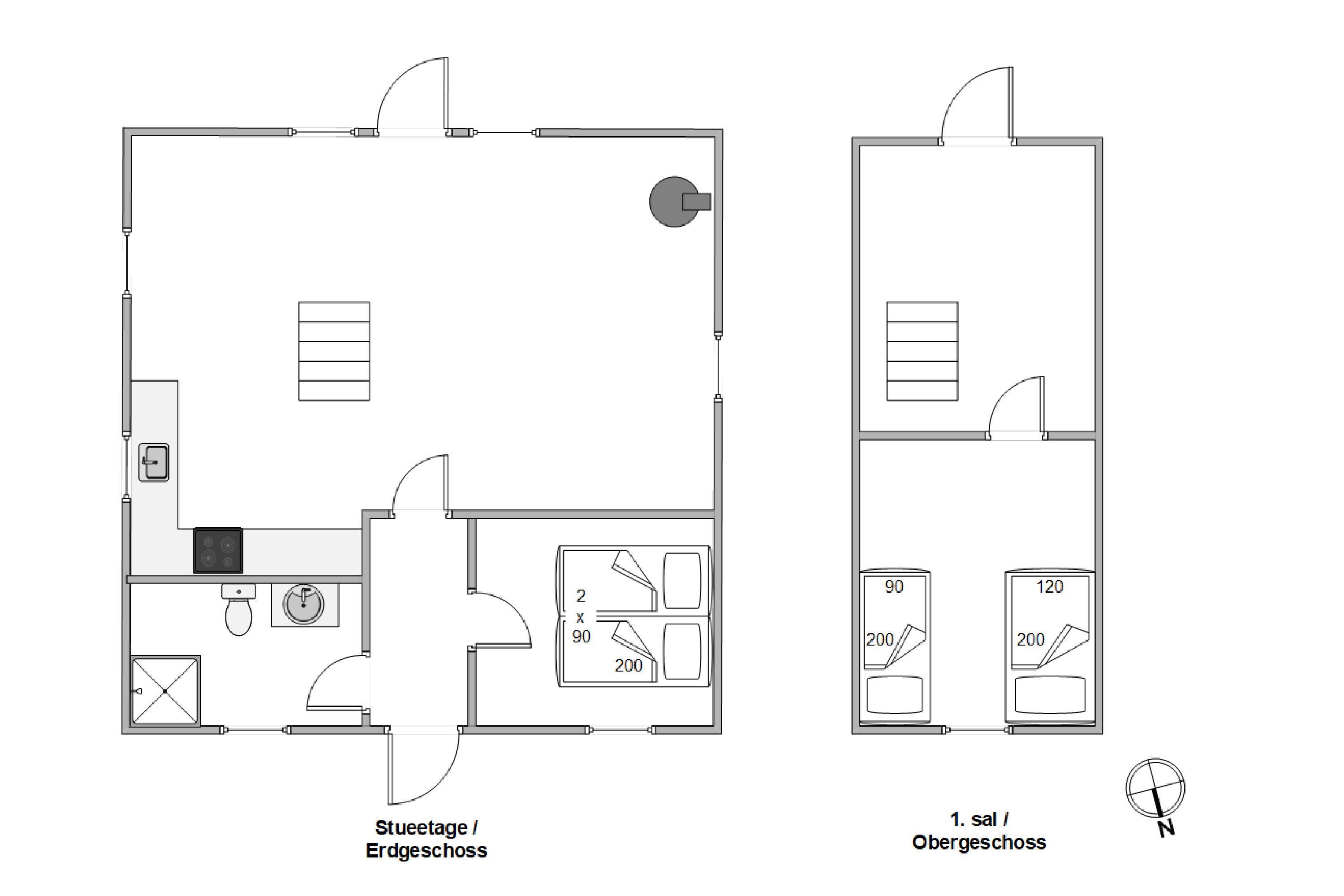
Soverum 2
Badeværelser 1
Afstand vand 400 m
Highspeed internet Highspeed
Ikkeryger
Husdyr
  • Tilbyder miniferie Nej
  • Afstand indkøb 400 m
  • Brændeovn Ja
  • Vaskemaskine Ja
  • Tørretumbler Ja
  • Opvaskemaskine Ja
  • Energivenligt Ja

Beskrivelse

Strandnær idyl og feriehygge – det er hvad dette fine hus på Ternevej 12 i Vejers byder dig på. Det i 2018 nyrenoverede hus står på en skøn klitgrund, super tæt på både indkøb og hav, og har plads til både kæresteferien eller et skønt afslappende ophold med den lille familie.

Moderne indretning med fokus på ferievelvære

Dette hus er gennemført restaureret og indeholder netop det, der skal til for at kunne holde en pragtfuld ferie. Huset er nyrenoveret og moderne med blik for hygge og bekvemmelighed. I det moderne åbne køkken er der naturligvis opvaskemaskine, ligesom I i det lyse badeværelse finder både vaskemaskine og tørretumbler. Lige det rigtige til børnefamilien, - som hurtigt kan få vasket og tørret tøj eller håndklæder efter en dejlig tur til stranden, med masser af sand og vandpjaskeri.

I stueetagen ligger det ene af de to soveværelser og her har I den hyggelige fjernsynsstue med brændeovnen. Men skal der rigtigt slappes af på en tidlig forårsdag eller en regnfuld efterårsdag, så er 1. salen det perfekte sted. Her kan I trække jer tilbage med en bog eller strikketøjet – eller bare sidde med en kop te, drømme lidt, hyggesnakke og nyde lysindfaldet og udsigten.

Gode læ-terrasser og masser af leg til de små

Blæst og rusk er intet problem på Ternevej 12, på grund af den store lukket og delvist overdækket terrasse.For børnene er der både sandkasse og gyngestativ, så de heller ikke keder sig når mor og far ligger og hviler på liggestolene.

Fantastisk beliggenhed – et stenkast fra Vejers Strand

Rundstykkerne og hvad I ellers lige mangler kan I hente lige om hjørnet, blot 400 meter fra huset i Vejers Strand, som er en fin lille by med både købmand, bager, tøjbutik, grillbar og restaurant.

Ternevej 12 ligger dejligt tæt på stranden, så det er blot at smide håndklædet over skulderen og tage vejen ned over klitterne til den lange skønne sandstrand, som naturligvis også indbyder til lange gåture, dragestigning og masser af sandborg-byggeri med børnene.

I og rundt om Vejers er der masser af friluftsmuligheder – tag fx på svampejagt eller krondyrsafari i de omkringliggende skov-, hede- og plantageområder.

Vores gæsteanmeldelser Eksterne anmeldelser

5,0
Baseret på 1 vurdering
Vurderet d. 07-08-2021
5
(1)
4
(0)
3
(0)
2
(0)
1
(0)
Kommentarer
Ingen vurderinger har kommentarer.

Faciliteter

  • Opholdsrum

    • Gulv: Trælaminat
    • Radio
    • Brændeovn
    • Fladskærms-TV
      2
  • Soverum

    • Gulv: Trælaminat
    • Dobbeltsenge
      1
    • Enkeltsenge
      2
    • Sovepladser
      4
    • Soverum
      2
    • 1. soverum/sengestørrelser
      180X200
    • 2. soverum/sengestørrelser
      90x200 + 120x200
  • Køkken

    • Komfur: Induktion m. ovn
    • Køleskab
    • Opvaskemaskine
    • Separat fryser /L
      107
  • Baderum

    • Gulvvarme bad
    • Antal badeværelser
      1
  • Objektinfo - Inde

    • Areal: Hus m²
      85
    • Byggeår
      1977
    • Barnestol
      1
    • Ikke ryger hus
    • Personantal
      4
    • Renoveret
      2018
    • Danske TV-kanaler (Betalingskanaler)
    • Tyske tv-programmer
    • Tørretumbler
    • Varme: Elvarme
    • Varme: Varmepumpe luft til luft
    • Vaskemaskine
    • Gratis fiber Internet
    • Jubilæumsmønt er udleveret
  • Objektinfo - ude

    • Afstand i meter: Hav
      400 m
    • Afstand i meter: Indkøb
      400 m
    • Grundens areal i m2
      1585
    • Gynge
    • Sandkasse
    • Grill
    • Havemøbler
    • Solvogne
    • Parasol
    • Terrasse: åben
    • Terrasse: Afskærmet
    • Terrasse: Lukket
    • Redskabsrum
    • Naturgrund
    • Affald hentes:
      Mandag
    • Affald: Helårstømning
    • Skraldespand - Liter
      140
  • Koncepter

    • Skiftedag: Fredag
  • Miniferie

    • Ja, tak - tillad miniferie

Priser og kalender

Kalender

Ankomst
Næste
  • marts 2026
    mationtofr
    91
    102345678
    119101112131415
    1216171819202122
    1323242526272829
    143031
  • april 2026
    mationtofr
    1412345
    156789101112
    1613141516171819
    1720212223242526
    1827282930
    19
   Se om emnet er ledigt på den valgte dato
Ledig
Optaget
   Ankomst mulig
Varighed

Pris

Periode
Ankomst
Afrejse
Varighed
1 uge
Personer
Op til 4 personer

Bemærk

Ankomst er ikke valgt.
Aftale- og lejebetingelser