Moderniseret landejendom med stor terrasse i Sandholt

Sommerhus - 12 personer - Sandholtvej - Sandholt - 5672 - Broby

12 personer

Oversigt

Emne nr.: 128-FY283
7 overnatninger
Fra DKK 7.610,-
Inkl. rengøring og forsikring
12 personer
Stor moderniseret landejendom i idylliske Sandholt med plads til hele familien og dejlig stor terrasse.
Grundareal 3.648 m²
Boligareal 350 m²
Soverum 6
Badeværelser 2
Afstand vand 14 km
Internet
Ikkeryger
Husdyr
  • Tilbyder miniferie Ja
  • Afstand indkøb 12 km
  • Spa Ja
  • Vaskemaskine Ja
  • Opvaskemaskine Ja
  • Energivenligt Ja

Beskrivelse

Indendørs
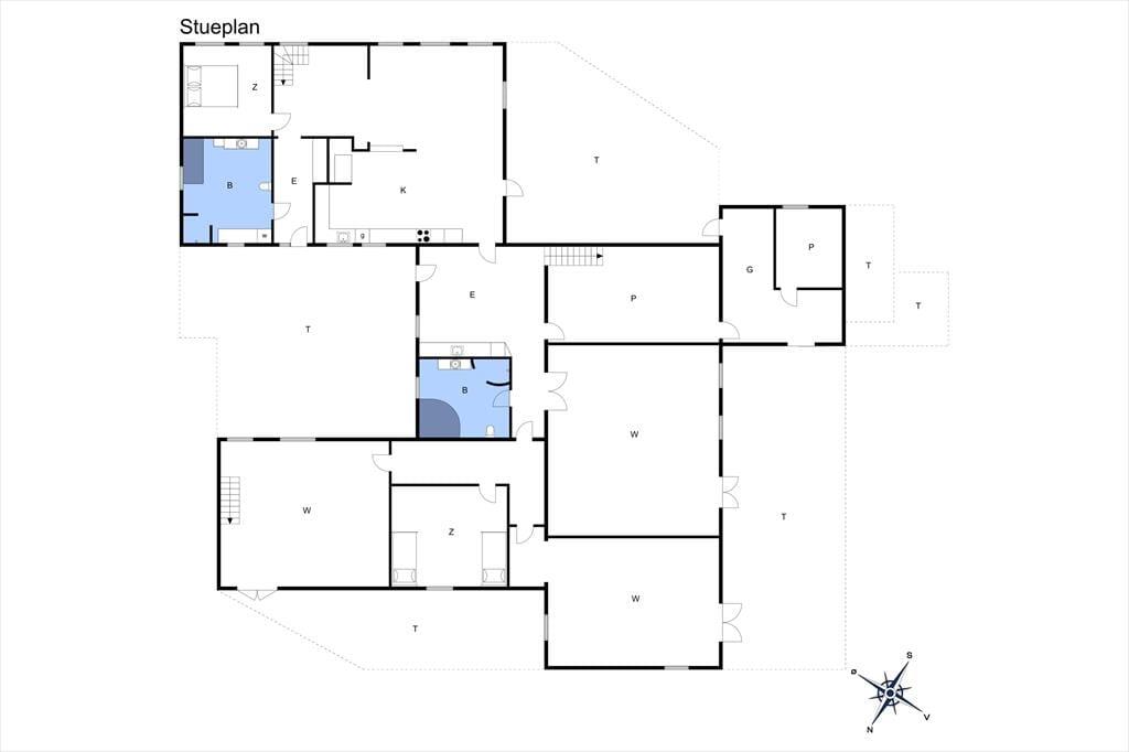
Flot, rummelig og moderniseret landejendom. De 350 m2 giver rigeligt med plads til den store familie. Huset indeholder i stueetagen et dejligt køkken med spiseplads, en hyggelig stue samt 3 gode soveværelser. Herudover er der bryggers med vaskemuligheder, to badeværelser hvoraf det ene er udstyret med spabad og det andet med både bruser og badekar.
På førstesalen er der yderligere en opholdsstue samt 3 soveværelser.

Udendørs
Ejendommen ligger på en stor grund ud til åbne marker og med kirken som nærmeste nabo. I haven er der anlagt en lille sø, hvor der også er en terrasse. Oplagt til et glas vin i solskin, mens grillen gøres klar. Herudover er der rig mulighed for både sol, skygge og læ på den 200 m2 store terrasse, med havemøbler, liggestole og naturligvis en grill.

Beliggenhed
I hjertet af den lille idylliske fynske landsby, Sandholt, ligger denne ejendom med marker og kirke omkring sig. Ikke langt fra huset ligger Sandholt Slot. Herudover er der kort afstand til både Faaborg og Odense med butiksliv, caféer og museer.


Rumindretning

  • Soveværelse
    • Dobbeltseng - 180 x 200 cm
  • Soveværelse
    • Dobbeltseng - 180 x 200 cm
  • Soveværelse
    • Enkelt seng - 90 x 200 cm
    • Enkelt seng - 90 x 200 cm
  • Soveværelse
    • Enkelt seng - 90 x 200 cm
    • Enkelt seng - 90 x 200 cm
  • Soveværelse
    • Enkelt seng - 90 x 200 cm
    • Enkelt seng - 90 x 200 cm
  • Soveværelse
    • Dobbeltseng - 180 x 200 cm

Vores gæsteanmeldelser Eksterne anmeldelser

2,5
Baseret på 4 vurderinger
Sidste vurdering fra d. 03-03-2026
5
(0)
4
(0)
3
(2)
2
(2)
1
(0)
Kommentarer
2 vurderinger har kommentarer på dansk.
9 voksne 3 børn 0 husdyr 7 overnatninger 2025 juli
Ok i forhold til prisen; Forbrugspriser fremgår ikke af husbeskrivelsen; Huset er fantastisk til flere generationer/familier; trappe mellem 1. sal og køkken-alrum knirker meget, nogle madrasser trænger til udskiftning, gardiner mangler for flere af vinduerne på 1.sal, et bad/toilet mangler matteret film mod gården, lyddæmpning i spisestuen ville give 4 stjerner, optimering af de andre forhold ville give 5 stjerner.
12 voksne 0 børn 0 husdyr 7 overnatninger 2025 juni
Sengene er simpelthen for dårlige, ellers fint

Faciliteter

  • Hus Info

    • 2 x Bruser
    • 2 x WC
    • Antal etager i lejemålet
      2
    • Antal voksne
      12
    • Badekar
    • Byggeår
      1887
    • Grundareal
      3648 m²
    • Husareal
      350 m²
    • Indendørs spabad
    • Renoveringsår
      2000
  • Afstande

    • Afstand golfbane
      10 km
    • Afstand hav
      14 km
    • Afstand indkøb
      12 km
    • Afstand restaurant
      12 km
    • Afstand strand
      14 km
  • Energi / Opvarmning

    • Varmepumpe
  • Hårde hvidevarer

    • Elkedel
    • Emhætte
    • Fryser
      100
    • Kaffemaskine
    • Kogeplader
    • Køleskab
    • Mikroovn
    • Opvaskemaskine
    • Ovn
    • Strygebræt
    • Strygejern
    • Vaskemaskine
  • Multimedier

    • 2 x Chromecast
      Der er ikke TV kanaler i huset, men der er mulighed for at se egne TV- og streamingtjenester via ...
    • 2 x TV
      Der er ikke TV kanaler i huset, men der er mulighed for at se egne TV- og streamingtjenester via ...
    • Gratis Wi-Fi - Under 20 Mbit
    • TV
      Der er ikke TV kanaler i huset, men der er mulighed for at se egne TV- og streamingtjenester via ...
  • Ekstra

    • Barnestol
    • Golfferie
  • Udenfor

    • Grill
    • Havemøbler
    • Liggestole
      2
    • Parasol
      1
    • Parkering på grunden
    • Terrasse
      200 m²
  • Diverse

    • 6 x Gulvvarme
  • Regler

    • Husdyr ikke tilladt
    • Opladning af elbil ikke tilladt
    • Rygning ikke tilladt
  • Pris inklusiv

    • Slutrengøring inkl.

Miniferie

Der er begrænset mulighed for miniferie hele året, typisk uden for højsæsonen.

Priser og kalender

Kalender

Ankomst
Forrige Næste
   Se om emnet er ledigt på den valgte dato
Ledig
Optaget
   Ankomst mulig
Varighed
Personer

Pris

Periode
Ankomst
Afrejse
Varighed
1 uge
Personer
Ingen personer er valgt

Bemærk

Ankomst er ikke valgt.
Der er ikke valgt personer.
Aftale- og lejebetingelser