Rummeligt sommerhus med pool og havudsigt
Sommerhus - 12 personer - Vagtelvej - 9493 - Saltum
Alternative emner
Sommerhuse i nærheden (287)12 personer
Oversigt
Emne nr.: 121-13-0298
7 overnatninger
Fra
DKK 9.539,-
Valgfri rengøring: DKK 1.939,-
Rummeligt sommerhus på klitgrund med panoramaudsigt over Vesterhavet og indendørs pool.
- Tilbyder miniferie Nej
- Afstand indkøb 2 km
- Swimmingpool inde Ja
- Spa Ja
- Sauna Ja
- Parabol/kabel TV Ja
- Brændeovn Ja
- Udsigt til vand Ja
- Vaskemaskine Ja
- Tørretumbler Ja
- Opvaskemaskine Ja
- Energivenligt Ja
Beskrivelse
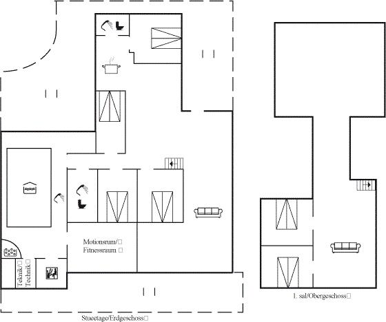
På en utrolig stor klitgrund, som går ned til strandkanten, finder I dette dejlige og rummelige sommerhus. Fra husets første sal er der en flot panoramaudsigt over Vesterhavet og klitterne. Fra den store opholdsstue med stort vinduesparti er der udgang til de store træterrasser, som omgiver huset mod vest - fra en forhøjet terrasse er der kig til vandet. I huset findes skøn swimmingpool-afdeling i forskudt plan samt motionsrum med redskaber.
Indretning
Sommerhuset egner sig til 12 personer samt 1 barn op til 3 år. Ferieboligen er på 260 m² og er bygget i 1989. I 2019 gennemgik ferieboligen en delvis renovering med 2 nye badeværelser. Det er tilladt at medbringe 1 husdyr. Ferieboligen er udstyret med energibesparende varmepumpe. Ferieboligen har vaskemaskine. Tørretumbler. Frysekapacitet på 80 liter. Der er desuden brændeovn. Til de små er der 1 stk. barnestol.
Udenfor
Ferieboligen er beliggende på en 7100 m² stor klitgrund. Der er 50 m til havet. Nærmeste forretning er beliggende i en afstand af 2000 m. Til ferieboligen hører 80 m² terrasseareal. Parkering ved ferieboligen.
Swimmingpool
I den indendørs swimmingpool er der mulighed for leg og hyggeligt samvær. Swimmingpoolen måler op til 3 m i bredden, 5,5 m i længden og den er op til 1,2 m dyb. Vandet er mellem 24 og 28° C varmt. Swimmingpoolen har modstrømsanlæg.
Soveforhold
Der er i alt 6 soveværelser. Sovepladserne fordeler sig på: 12 sovepladser i dobbeltsenge. Derudover er der 1 stk. barneseng.
Køkken
Køkkenet er udstyret med 1 køleskab. Der er 4 keramiske kogeplader, varmluftovn, mikrobølgeovn samt opvaskemaskine.
Toilet og bad
Der er 2 badeværelser med bruseniche og 2 toiletter. Der er gulvvarme på 2 badeværelser. I saunaen er der mulighed for afslapning.
Spa
Der er mulighed for afslapning i indendørs spa til 2 personer.
Multimedier
I ferieboligen er der 1 TV. DVD-afspiller. Stereoanlæg. CD-afspiller. Der er mindst 4 danske kanaler. 1-3 svenske kanaler. 1-3 norske kanaler. Mindst 4 tyske kanaler. Mindst 4 engelske kanaler. Der er trådløst internet til rådighed.
Værd at vide
Ingen udlejning til ungdomsgrupper, hvor alle er 15-25 år. Rygning er ikke tilladt. Ved overtrædelse af forbuddet opkræves et gebyr på minimum DKK 3.000,-.
Indretning
Sommerhuset egner sig til 12 personer samt 1 barn op til 3 år. Ferieboligen er på 260 m² og er bygget i 1989. I 2019 gennemgik ferieboligen en delvis renovering med 2 nye badeværelser. Det er tilladt at medbringe 1 husdyr. Ferieboligen er udstyret med energibesparende varmepumpe. Ferieboligen har vaskemaskine. Tørretumbler. Frysekapacitet på 80 liter. Der er desuden brændeovn. Til de små er der 1 stk. barnestol.
Udenfor
Ferieboligen er beliggende på en 7100 m² stor klitgrund. Der er 50 m til havet. Nærmeste forretning er beliggende i en afstand af 2000 m. Til ferieboligen hører 80 m² terrasseareal. Parkering ved ferieboligen.
Swimmingpool
I den indendørs swimmingpool er der mulighed for leg og hyggeligt samvær. Swimmingpoolen måler op til 3 m i bredden, 5,5 m i længden og den er op til 1,2 m dyb. Vandet er mellem 24 og 28° C varmt. Swimmingpoolen har modstrømsanlæg.
Soveforhold
Der er i alt 6 soveværelser. Sovepladserne fordeler sig på: 12 sovepladser i dobbeltsenge. Derudover er der 1 stk. barneseng.
Køkken
Køkkenet er udstyret med 1 køleskab. Der er 4 keramiske kogeplader, varmluftovn, mikrobølgeovn samt opvaskemaskine.
Toilet og bad
Der er 2 badeværelser med bruseniche og 2 toiletter. Der er gulvvarme på 2 badeværelser. I saunaen er der mulighed for afslapning.
Spa
Der er mulighed for afslapning i indendørs spa til 2 personer.
Multimedier
I ferieboligen er der 1 TV. DVD-afspiller. Stereoanlæg. CD-afspiller. Der er mindst 4 danske kanaler. 1-3 svenske kanaler. 1-3 norske kanaler. Mindst 4 tyske kanaler. Mindst 4 engelske kanaler. Der er trådløst internet til rådighed.
Værd at vide
Ingen udlejning til ungdomsgrupper, hvor alle er 15-25 år. Rygning er ikke tilladt. Ved overtrædelse af forbuddet opkræves et gebyr på minimum DKK 3.000,-.
Vores gæsteanmeldelser Eksterne anmeldelser
Faciliteter
-
Adgang til ferieboligen
-
Nøgleboks med kode
-
-
Bemærk
-
Ingen ungdomsgrupper efter anmodning
-
Rygning er forbudt
-
-
Indretning
-
Antal børn (0-3 år)1
-
Antal voksne inkl. 4-11 år12
-
Bebygget areal260 m²
-
Brændeovn1
-
Byggeår1989
-
Feriebolig
-
Frysekapacitet (antal liter)80
-
Husdyr1
-
Højstol1
-
Renoveringsår2019
-
Tørretumbler1
-
Varmepumpe
-
Vaskemaskine1
-
-
Køkken
-
Antal keramiske kogeplader4
-
Køleskab1
-
Mikrobølgeovn1
-
Opvaskemaskine1
-
Varmluftovn1
-
-
Multimedier
-
> 3 danske kanaler
-
> 3 engelske kanaler
-
> 3 tyske kanaler
-
0-3 norske kanaler
-
0-3 svenske kanaler
-
Antal tv'er1
-
CD afspiller
-
Download1000
-
DVD1
-
Stereo sæt
-
Trådløst internet
-
Upload1000
-
-
Soveforhold
-
Antal soveværelser6
-
Barneseng1
-
Dobbeltseng (antal sovepladser)12
-
-
Spa
-
Indendørs spabad (antal personer)2
-
-
Swimmingpool
-
Indendørs swimmingpool
-
Modstrømsanlæg
-
Svømmebassinets bredde3
-
Svømmebassinets dybde1,2
-
Svømmebassinets længde5,5
-
-
Toilet og bad
-
Antal badeværelser2
-
Antal toiletter2
-
Brusekabine
-
Gulvvarme2
-
Sauna
-
-
Udenfor
-
Butik2 km
-
Hav50 m
-
Klitplads
-
Parkeringsplads ved huset
-
Størrelse af grunden7100 m²
-
Terrasse80 m²
-
-
Udsigt
-
Havudsigt fra feriehuset
-
Havudsigt fra pladsen
-
Priser og kalender
Kalender
Varighed
Pris
Periode
- Ankomst
- Afrejse
- Varighed
- 1 uge
Personer
Op til 12 personer
Bemærk
Ankomst er ikke valgt.