Hyggeligt sommerhus nær strand på Fanø

Sommerhus - 6 personer - Hympelvej - Rindby - 6720 - Fanø

6 personer

Oversigt

Emne nr.: 328-731252
7 overnatninger
Fra DKK 2.633,-
Hyggeligt sommerhus i Rindby på Fanø med 3 soveværelser, varmepumpe og kort afstand til stranden.
Grundareal 1.810 m²
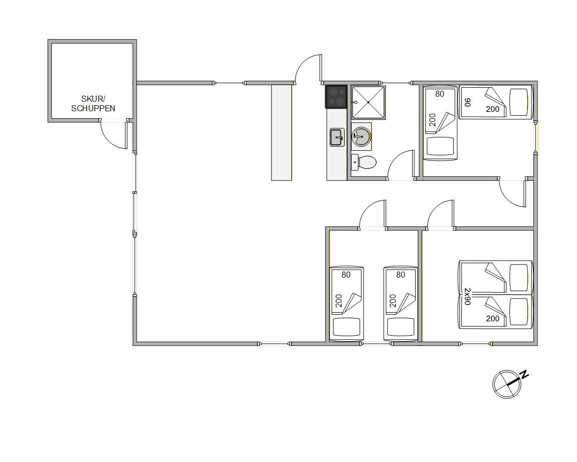
Boligareal 70 m²
Soverum 3
Badeværelser 1
Afstand vand 600 m
Internet
Ikkeryger
Husdyr 1
  • Tilbyder miniferie Nej
  • Afstand indkøb 900 m
  • Energivenligt Ja

Beskrivelse

Tæt på stranden i Rindby finder I dette klassiske sommerhus på Hympelvej 42, Fanø. Dette 2+-stjernede feriehus er praktisk indrettet og har plads til 6 feriegæster. Her er hunden også velkommen.

En energibesparende varmepumpe sikrer et behageligt indeklima, mens nordsøstranden ligger kun 600 meter væk, og indkøbsmulighederne ligger 900 meter herfra.

Klassisk møbleret feriehus med varmepumpe

Feriehuset på Hympelvej 42 har et boligareal på 70 kvadratmeter og er traditionelt indrettet. Her er en afdæmpet atmosfære og det nødvendige for at holde en dejlig ferie med familie og venner. Feriehusets hjerte er det åbne opholds- og spiseområde. I køkkenet kan I tilberede lækre måltider og derefter nyde dem i en hyggelig atmosfære ved spisebordet.

Sofaen indbyder til rolige aftener med brætspilshygge og en god bog. Den energibesparende varmepumpe sørger for, at I har et behageligt indeklima året rundt. Sov godt i de 3 soveværelser – 2 med enkeltsenge og 1 med dobbeltseng. Badeværelset er enkelt indrettet med praktiske løsninger og et funktionelt bruseområde.

Åben terrasse og smuk natur ved Hympelvej 42

Feriehuset er beliggende på en smuk kuperet naturgrund, hvor marehalmen vifter smukt i vinden. Solskinstimerne kan I nyde på fliseterrassen, som kan tilgås direkte fra stuen. Havemøbler, liggestole samt en grill kan findes her – nyd aftensmaden i det fri med et koldt glas rosé efterfulgt af en smuk aftentur ved vandet.

Rindby – ferie på charmerende Fanø

Feriehuset er beliggende i et roligt og grønt område – hverken langt fra stranden og købmanden. Fanø er kendt for sine brede sandstrande, klitter og vilde natur. I Rindby finder I små butikker og hyggelige caféer, hvis I vil spise ude.

Lej eller tag cyklerne med – området er nemlig perfekt til cykelture. Desuden kan I, i løbet af jeres ferie, også opleve Kåveren - Danmarks ældste sømærke, Sønderho Kirke, Monumentet for faldne søfolk og Børsen (Sønderho Havn). Mulighederne er mange.

Faciliteter

  • Opholdsrum

    • Gulv: Træ
    • Fladskærms-TV
      1
    • Ekstra varmekilder
  • Soverum

    • Gulv: Træ
    • Dobbeltsenge
      1
    • Enkeltsenge
      4
    • Sovepladser
      6
    • Soverum
      3
    • 1. soverum/sengestørrelser
      2x80x200
    • 2. soverum/sengestørrelser
      2x80x200
    • 3. soverum/sengestørrelser
      160x200
  • Køkken

    • Komfur: El m. ovn
    • Køleskab
  • Baderum

    • Antal badeværelser
      1
  • Objektinfo - Inde

    • Areal: Hus m²
      70
    • Byggeår
      1976
    • Husdyr tilladt
    • Husdyr antal, max
      1
    • Ikke ryger hus
    • Gratis Internet
    • Personantal
      6
    • Renoveret
      2022
    • Danske TV-kanaler (Betalingskanaler)
    • Tyske tv-programmer
    • Varme: Elvarme
    • Varme: Varmepumpe luft til luft
    • Jubilæumsmønt er udleveret
  • Objektinfo - ude

    • Afstand i meter: Hav
      600 m
    • Afstand i meter: Indkøb
      900 m
    • Grundens areal i m2
      1810
    • Trækulgrill
    • Havemøbler
    • Solvogne
    • Terrasse: åben
    • Redskabsrum
    • Naturgrund
    • Affald hentes:
      Onsdag ulige uge
    • Skraldespand - Liter
      140
  • Koncepter

    • Skiftedag: Lørdag
    • Varme: 24 timer f. ankomst
  • Miniferie

    • Ja, tak - tillad miniferie

Priser og kalender

Kalender

Ankomst
Næste
  • april 2026
    mationtofr
    1412345
    156789101112
    1613141516171819
    1720212223242526
    1827282930
    19
  • maj 2026
    mationtofr
    18123
    1945678910
    2011121314151617
    2118192021222324
    2225262728293031
    23
   Se om emnet er ledigt på den valgte dato
Ledig
Optaget
   Ankomst mulig
Varighed

Pris

Periode
Ankomst
Afrejse
Varighed
1 uge
Personer
Op til 6 personer

Bemærk

Ankomst er ikke valgt.
Aftale- og lejebetingelser