Hyggeligt anneks med havudsigt ved Lild Strand

Sommerhus - 2 personer - Strandkærvej - Lild Strand - 7741 - Frøstrup

2 personer

Oversigt

Emne nr.: 049-JB150
7 overnatninger
Fra DKK 2.760,-
Inkl. rengøring og forsikring
Hyggeligt anneks ved Lild Strand med havudsigt, naturgrund og tæt på Vesterhavet.
Grundareal 4.964 m²
Boligareal 40 m²
Badeværelser 1
Afstand vand 75 m
Internet
Ikkeryger
Husdyr 2
  • Tilbyder miniferie Ja
  • Afstand indkøb 9 km
  • Brændeovn Ja
  • Udsigt til vand Ja
  • Vaskemaskine Ja

Beskrivelse

Velkommen indenfor
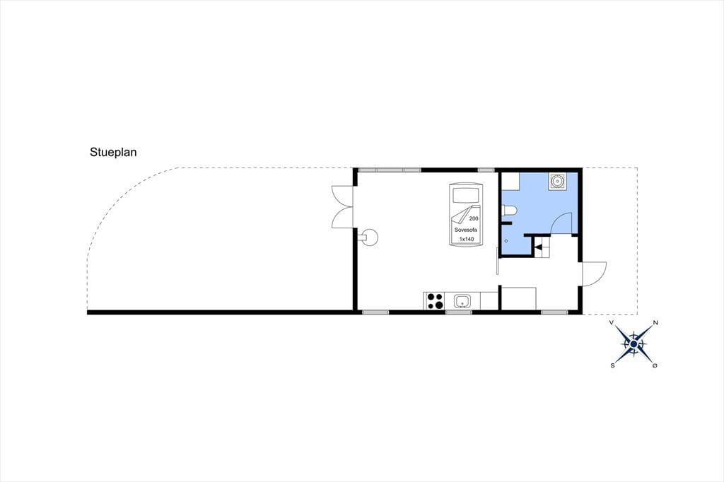
Dette anneks på 40 m2 indeholder alt, man kan ønske sig til en ferie i fredelige omgivelser med fokus på hinanden. Her er hverken wifi eller tv, men i stedet mulighed for at nyde hinanden og ikke mindst den fantastiske natur, som annekset er omringet af. På de få m3 er der både indrettet entre, badeværelse med bruseniche og vaskemaskine, stue med spiseplads, sofaafdeling og brændeovn samt et funktionelt køkken med kombi-ovn og gasblus. Der er mulighed for enten at sove på den lille hems med adgang fra stige i entréen eller benytte sovesofaen i stuen. Begge sovepladser måler 140 x 200 cm. Fra både hemsen og stuen har I en fantastisk udsigt over det åbne klit-landskab med Vesterhavet i baggrunden.

Nyd livet udenfor
Den tilhørende naturgrund på næsten 5000m2 grænser lige op til den sidste klitrække inden stranden og Vesterhavet. Man kan derfor hele tiden høre havet bruse og dufte det salte vand.Fra annekset kan man følge en lille sti 75 meter gennem klitterne til de blå bølger. På toppen af klitten er der opsat en lille bænk, hvor man kan nyde udsigten og lade tankerne flyve. Ved indgangen til annekset er der en lille terrasse med udsigt, og i hjørnet mellem huset og annekset er der læ og derfor et godt sted af nyde morgenkaffen. Den store terrasse mod sydvest tilhører hovedhuset og kan ikke benyttes.

Kom tæt på de lokale oplevelser
Vesterhavet kan næsten ikke undgå at spille en stor rolle for ferien, når I bogstaveligt talt er naboer til de blå bølger. I bor tæt ved Lild Strands landingsplads, hvorfra der stadig drives fiskeri, og i byens to butikker kan I købe både frisk og røget fisk med hjem til aftensmåltidet. Et par gallerier holder også til i det gamle fiskerleje, hvis I ikke bruger al tiden ude i naturen. Lidt Strand er omgivet af plantage og klithede, og Kirsten Kjærs museum tæt ved Frøstrup er med sin helt specielle atmosfære en oplevelse, man ikke bør gå glip af. I sommerperioden afholdes der også spændende koncerter på stedet. I nordøstlig retning ligger fuglefjeldet Bulbjerg, hvorfra I har en helt storslået panoramaudsigt over havet og det rå kystlandskab. Det kan også anbefales at tage bilen vestpå til Vigsø Strand, hvor bunkers ligger frit på stranden som et sælsomt levn fra Anden Verdenskrig. I Frøstrup 9 km fra Lild Strand findes en velassorteret Brugs, og her er der også mulighed for at leje cykler. Området omkring Lildstrand og Bulbjerg op mod Thorup Strand er udlagt og certificeret til Dark Sky Park. I har derfor mulighed for fra huset og grunden at nyde nattehimlen og det dybe mørke i fulde drag. Her høres kun havets brusen altid.

Husk, at du altid kan låne trækvogne, barnestole og barnesenge hos os. Du kan hente dem direkte på bureauet og returnere dem til os igen, når din ferie er vel overstået.

Det er udelukkende annekset som udlejes, Hovedhuset benyttes privat, men i begrænset omfang.


Rumindretning

  • Badeværelse
  • Køkken
  • Stue
  • Entre
  • Sovehems
    • Enkelt madras - 1x140x200 cm

Vores gæsteanmeldelser Eksterne anmeldelser

4,2
Baseret på 5 vurderinger
Sidste vurdering fra d. 01-12-2025
5
(2)
4
(2)
3
(1)
2
(0)
1
(0)
Kommentarer
Ingen vurderinger har kommentarer på dansk
2 vurderinger har komentarer på andre sprog.

Faciliteter

  • Hus Info

    • Antal husdyr
      2
    • Antal voksne
      2
    • Bruser
    • Byggeår
      2011
    • Grundareal / Naturgrund
      4964 m²
    • Havudsigt
    • Husareal
      40 m²
    • Udsigt over landskab
    • WC
  • Afstande

    • Afstand golfbane
      19,3 km
    • Afstand indkøb / Helårsbutik
      9 km
    • Afstand restaurant
      12,5 km
    • Afstand strand / Sand-/stenstrand
      75 m
  • Energi / Opvarmning

    • Brændeovn
    • Elvarme
  • Hårde hvidevarer

    • Elkedel
    • Gasblus
      4
    • Kaffemaskine
    • Køleskab med frys
      10
    • Mikroovn
    • Ovn
    • Vaskemaskine
  • Multimedier

    • Ingen Wi-Fi
  • Udenfor

    • Grill
    • Havemøbler
    • Parkering på grunden
    • Udendørs bruser
    • Åben terrasse
  • Diverse

    • 4 x Gulvvarme
    • Afmærkede vandreruter i nærheden
    • Sovesofa dobbelt
      1x140x200 cm
  • Regler

    • Husdyr: alle slags husdyr tilladt
    • Opladning af elbil ikke tilladt
    • Rygning ikke tilladt
  • Pris inklusiv

    • Slutrengøring inkl.
    • Vand inkl.
  • GAMMEL

    • Radio

Miniferie

Der er mulighed for miniferie hele året.

Priser og kalender

Kalender

Ankomst
Næste
  • marts 2026
    mationtofr
    91
    102345678
    119101112131415
    1216171819202122
    1323242526272829
    143031
  • april 2026
    mationtofr
    1412345
    156789101112
    1613141516171819
    1720212223242526
    1827282930
    19
   Se om emnet er ledigt på den valgte dato
Ledig
Optaget
   Ankomst mulig
Varighed

Pris

Periode
Ankomst
Afrejse
Varighed
1 uge
Personer
Op til 2 personer

Bemærk

Ankomst er ikke valgt.
Aftale- og lejebetingelser