Sommerhus i første klitrække med spa og natur
Sommerhus - 8 personer - Sølystvej - Langerhuse - 7673 - Harboøre
Alternative emner
Sommerhuse i nærheden (186)8 personer
Oversigt
Emne nr.: 121-20-0020
7 overnatninger
Fra
DKK 5.759,-
Valgfri rengøring: DKK 1.497,-
Rummeligt sommerhus i første klitrække med spa, brændeovn og stor terrasse nær Vesterhavet.
- Tilbyder miniferie Nej
- Afstand indkøb 500 m
- Spa Ja
- Parabol/kabel TV Ja
- Brændeovn Ja
- Vaskemaskine Ja
- Tørretumbler Ja
- Opvaskemaskine Ja
- Energivenligt Ja
Beskrivelse
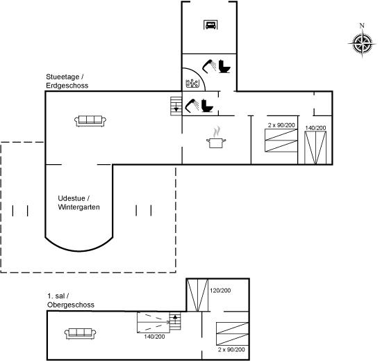
Rummeligt sommerhus i 2 plan med en pragtfuld beliggenhed i første klitrække til stranden og Vesterhavet. Huset ligger på en blind vej med udsigt til klitterne og det omkringliggende naturområde.
Indretning
Sommerhuset egner sig til 8 personer. Ferieboligen er på 160 m² og er bygget i 1900. I 2016 gennemgik ferieboligen en delvis renovering. Det er tilladt at medbringe 1 husdyr. Ferieboligen er udstyret med energibesparende varmepumpe. Ferieboligen har vaskemaskine. Tørretumbler. Frysekapacitet på 100 liter. Der er desuden brændeovn. Til de små er der 1 stk. barnestol.
Udenfor
Ferieboligen er beliggende på en 1250 m² stor naturgrund. Der er 75 m til havet. Nærmeste forretning er beliggende i en afstand af 500 m. Til ferieboligen hører 70 m² terrasseareal. Der er redskabsrum. Gynge. Sandkasse. Legehus. Parkering ved ferieboligen.
Soveforhold
Der er i alt 4 soveværelser. Sovepladserne fordeler sig på: 6 sovepladser i dobbeltsenge.2 sovepladser i elevationssenge. 2 sovepladser i sovesofa (dobbelt). 2 sovepladser på madrasser. 2 af disse sovepladser befinder sig i opholdsstuen og 2 af dem befinder sig på hemsen. Derudover er der 1 stk. barneseng.
Køkken
Køkkenet er udstyret med 1 køleskab. Der er 4 keramiske kogeplader, varmluftovn, mikrobølgeovn samt opvaskemaskine.
Toilet og bad
Der er 2 badeværelser med bruseniche og 2 toiletter. Der er gulvvarme på 2 badeværelser.
Spa
Der er mulighed for afslapning i indendørs spa til 2 personer.
Multimedier
I ferieboligen er der 2 TV. DVD-afspiller. Stereoanlæg. CD-afspiller. Der er mindst 4 danske kanaler. 1-3 norske kanaler. Mindst 4 tyske kanaler. 1-3 engelske kanaler. Der er trådløst internet til rådighed.
Værd at vide
Ingen udlejning til ungdomsgrupper, hvor alle er 15-25 år. Rygning ikke tilladt. Ved overtrædelse af forbuddet opkræves et gebyr på minimum DKK 3.000,-.
Indretning
Sommerhuset egner sig til 8 personer. Ferieboligen er på 160 m² og er bygget i 1900. I 2016 gennemgik ferieboligen en delvis renovering. Det er tilladt at medbringe 1 husdyr. Ferieboligen er udstyret med energibesparende varmepumpe. Ferieboligen har vaskemaskine. Tørretumbler. Frysekapacitet på 100 liter. Der er desuden brændeovn. Til de små er der 1 stk. barnestol.
Udenfor
Ferieboligen er beliggende på en 1250 m² stor naturgrund. Der er 75 m til havet. Nærmeste forretning er beliggende i en afstand af 500 m. Til ferieboligen hører 70 m² terrasseareal. Der er redskabsrum. Gynge. Sandkasse. Legehus. Parkering ved ferieboligen.
Soveforhold
Der er i alt 4 soveværelser. Sovepladserne fordeler sig på: 6 sovepladser i dobbeltsenge.2 sovepladser i elevationssenge. 2 sovepladser i sovesofa (dobbelt). 2 sovepladser på madrasser. 2 af disse sovepladser befinder sig i opholdsstuen og 2 af dem befinder sig på hemsen. Derudover er der 1 stk. barneseng.
Køkken
Køkkenet er udstyret med 1 køleskab. Der er 4 keramiske kogeplader, varmluftovn, mikrobølgeovn samt opvaskemaskine.
Toilet og bad
Der er 2 badeværelser med bruseniche og 2 toiletter. Der er gulvvarme på 2 badeværelser.
Spa
Der er mulighed for afslapning i indendørs spa til 2 personer.
Multimedier
I ferieboligen er der 2 TV. DVD-afspiller. Stereoanlæg. CD-afspiller. Der er mindst 4 danske kanaler. 1-3 norske kanaler. Mindst 4 tyske kanaler. 1-3 engelske kanaler. Der er trådløst internet til rådighed.
Værd at vide
Ingen udlejning til ungdomsgrupper, hvor alle er 15-25 år. Rygning ikke tilladt. Ved overtrædelse af forbuddet opkræves et gebyr på minimum DKK 3.000,-.
Vores gæsteanmeldelser Eksterne anmeldelser
Faciliteter
-
Adgang til ferieboligen
-
Nøgleboks med kode
-
-
Bemærk
-
Ingen ungdomsgrupper efter anmodning
-
Rygning er forbudt
-
-
Indretning
-
Antal voksne inkl. 4-11 år8
-
Bebygget areal160 m²
-
Brændeovn1
-
Byggeår1900
-
Feriebolig
-
Frysekapacitet (antal liter)100
-
Husdyr1
-
Højstol1
-
Renoveringsår2016
-
Tørretumbler1
-
Varmepumpe
-
Vaskemaskine1
-
-
Køkken
-
Antal keramiske kogeplader4
-
Køleskab1
-
Mikrobølgeovn1
-
Opvaskemaskine1
-
Varmluftovn1
-
-
Multimedier
-
> 3 danske kanaler
-
> 3 tyske kanaler
-
0-3 engelske kanaler
-
0-3 norske kanaler
-
Antal tv'er2
-
CD afspiller
-
DVD1
-
Stereo sæt
-
Trådløst internet
-
-
Soveforhold
-
Antal soveværelser4
-
Barneseng1
-
Dobbeltseng (antal sovepladser)6
-
Hems (antal sovepladser)
-
Justerbar seng (antal sovepladser)2
-
Madrasser (antal sovepladser)2
-
Soveplads ikke i soveværelset
-
Sovesofa, dobbelt (antal sovepladser)2
-
-
Spa
-
Indendørs spabad (antal personer)2
-
-
Toilet og bad
-
Antal badeværelser2
-
Antal toiletter2
-
Brusekabine
-
Gulvvarme2
-
-
Udenfor
-
Butik500 m
-
gynge
-
Hav75 m
-
Legehus
-
Natursted
-
Parkeringsplads ved huset
-
Redskabsskur
-
Sandkasse
-
Størrelse af grunden1250 m²
-
Terrasse70 m²
-
Priser og kalender
Kalender
Varighed
Pris
Periode
- Ankomst
- Afrejse
- Varighed
- 1 uge
Personer
Op til 8 personer
Bemærk
Ankomst er ikke valgt.