Skønt sommerhus med spa og sauna i Klitmøller
Sommerhus - 7 personer - Clemmessti - Klitmøller - 7700 - Thisted
Alternative emner
Sommerhuse i nærheden (240)7 personer
Oversigt
Emne nr.: 121-17-1209
7 overnatninger
Fra
DKK 3.855,-
Valgfri rengøring: DKK 1.285,-
Flot sommerhus i Klitmøller med spa, sauna og kort afstand til havet, ideelt for afslapning i naturskønne omgivelser.
- Tilbyder miniferie Nej
- Afstand indkøb 900 m
- Spa Ja
- Sauna Ja
- Parabol/kabel TV Ja
- Brændeovn Ja
- Vaskemaskine Ja
- Tørretumbler Ja
- Opvaskemaskine Ja
- Energivenligt Ja
Beskrivelse
Flot og velholdt sommerhus beliggende i ét af de allerbedste områder i Klitmøller. Her er man tæt på havet, men da huset er omkranset af træer, er der rig mulighed for at finde læ for vinden.
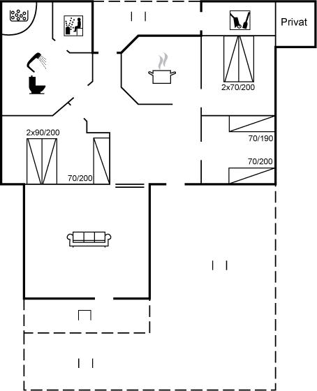
Indretning
Sommerhuset egner sig til 7 personer samt 1 barn op til 3 år. 1 af sovepladserne er kun egnet til større børn (4-11 år). Ferieboligen er på 111 m² og er bygget i 1991. Det er tilladt at medbringe 1 husdyr. Ferieboligen er udstyret med energibesparende varmepumpe. Ferieboligen har vaskemaskine. Tørretumbler. Frysekapacitet på 65 liter. Der er desuden brændeovn. Til de små er der 1 stk. barnestol.
Udenfor
Ferieboligen er beliggende på en 1300 m² stor havegrund. Der er 350 m til havet. Nærmeste forretning er beliggende i en afstand af 900 m. Til ferieboligen hører 40 m² terrasseareal. Der er redskabsrum. Parkering ved ferieboligen.
Soveforhold
Der er i alt 3 soveværelser. Sovepladserne fordeler sig på: 4 sovepladser i dobbeltsenge. 3 sovepladser i enkeltsenge. Derudover er der 1 stk. barneseng.
Køkken
Køkkenet er udstyret med 1 køleskab. Der er 4 keramiske kogeplader, varmluftovn, mikrobølgeovn samt opvaskemaskine.
Toilet og bad
Der er 1 badeværelse med bruseniche og 1 toilet.. Der er gulvvarme på 1 badeværelse. I saunaen er der mulighed for afslapning.
Spa
Der er mulighed for afslapning i indendørs spa til 2 personer.
Multimedier
I ferieboligen er der 1 TV. Radio. Stereoanlæg. CD-afspiller. Der er mindst 4 danske kanaler. Mindst 4 tyske kanaler. Der er trådløst internet til rådighed.
Værd at vide
Ingen udlejning til ungdomsgrupper, hvor alle er 15-25 år. Rygning ikke tilladt. Ved overtrædelse af forbuddet opkræves et gebyr på minimum DKK 3.000,-.
Indretning
Sommerhuset egner sig til 7 personer samt 1 barn op til 3 år. 1 af sovepladserne er kun egnet til større børn (4-11 år). Ferieboligen er på 111 m² og er bygget i 1991. Det er tilladt at medbringe 1 husdyr. Ferieboligen er udstyret med energibesparende varmepumpe. Ferieboligen har vaskemaskine. Tørretumbler. Frysekapacitet på 65 liter. Der er desuden brændeovn. Til de små er der 1 stk. barnestol.
Udenfor
Ferieboligen er beliggende på en 1300 m² stor havegrund. Der er 350 m til havet. Nærmeste forretning er beliggende i en afstand af 900 m. Til ferieboligen hører 40 m² terrasseareal. Der er redskabsrum. Parkering ved ferieboligen.
Soveforhold
Der er i alt 3 soveværelser. Sovepladserne fordeler sig på: 4 sovepladser i dobbeltsenge. 3 sovepladser i enkeltsenge. Derudover er der 1 stk. barneseng.
Køkken
Køkkenet er udstyret med 1 køleskab. Der er 4 keramiske kogeplader, varmluftovn, mikrobølgeovn samt opvaskemaskine.
Toilet og bad
Der er 1 badeværelse med bruseniche og 1 toilet.. Der er gulvvarme på 1 badeværelse. I saunaen er der mulighed for afslapning.
Spa
Der er mulighed for afslapning i indendørs spa til 2 personer.
Multimedier
I ferieboligen er der 1 TV. Radio. Stereoanlæg. CD-afspiller. Der er mindst 4 danske kanaler. Mindst 4 tyske kanaler. Der er trådløst internet til rådighed.
Værd at vide
Ingen udlejning til ungdomsgrupper, hvor alle er 15-25 år. Rygning ikke tilladt. Ved overtrædelse af forbuddet opkræves et gebyr på minimum DKK 3.000,-.
Vores gæsteanmeldelser Eksterne anmeldelser
Faciliteter
-
Adgang til ferieboligen
-
Nøgleboks med kode
-
-
Bemærk
-
Ingen ungdomsgrupper efter anmodning
-
Rygning er forbudt
-
-
Indretning
-
Antal børn (0-3 år)1
-
Antal børn 4-11 år1
-
Antal voksne inkl. 4-11 år7
-
Bebygget areal111 m²
-
Brændeovn1
-
Byggeår1991
-
Feriebolig
-
Frysekapacitet (antal liter)65
-
Husdyr1
-
Højstol1
-
Tørretumbler1
-
Varmepumpe
-
Vaskemaskine1
-
-
Køkken
-
Antal keramiske kogeplader4
-
Køleskab1
-
Mikrobølgeovn1
-
Opvaskemaskine1
-
Varmluftovn1
-
-
Multimedier
-
> 3 danske kanaler
-
> 3 tyske kanaler
-
Antal tv'er1
-
CD afspiller
-
Radio
-
Stereo sæt
-
Trådløst internet
-
-
Soveforhold
-
Antal soveværelser3
-
Barneseng1
-
Dobbeltseng (antal sovepladser)4
-
Enkeltseng (antal sovepladser)3
-
-
Spa
-
Indendørs spabad (antal personer)2
-
-
Toilet og bad
-
Antal badeværelser1
-
Antal toiletter1
-
Brusekabine
-
Gulvvarme1
-
Sauna
-
-
Udenfor
-
Anlagt have
-
Butik900 m
-
Hav350 m
-
Parkeringsplads ved huset
-
Redskabsskur
-
Størrelse af grunden1300 m²
-
Terrasse40 m²
-
Priser og kalender
Kalender
Varighed
Pris
Periode
- Ankomst
- Afrejse
- Varighed
- 1 uge
Personer
Op til 7 personer
Bemærk
Ankomst er ikke valgt.