Charmerende landejendom med stor have og lounge

Sommerhus - 12 personer - Hyllerødvej - Juelsminde - 8783 - Hornsyld

12 personer

Oversigt

Emne nr.: 100-62390
7 overnatninger
Fra DKK 9.530,-
Charmerende landejendom med stor have, shelter og lounge, perfekt til familieferie i naturskønne omgivelser.
Boligareal 316 m²
Soverum 5
Badeværelser 2
Afstand vand 6.500 m
Highspeed internet Highspeed
Ikkeryger
Husdyr
  • Tilbyder miniferie Ja
  • Afstand indkøb 1.100 m
  • Brændeovn Ja
  • Vaskemaskine Ja
  • Tørretumbler Ja
  • Opvaskemaskine Ja

Beskrivelse

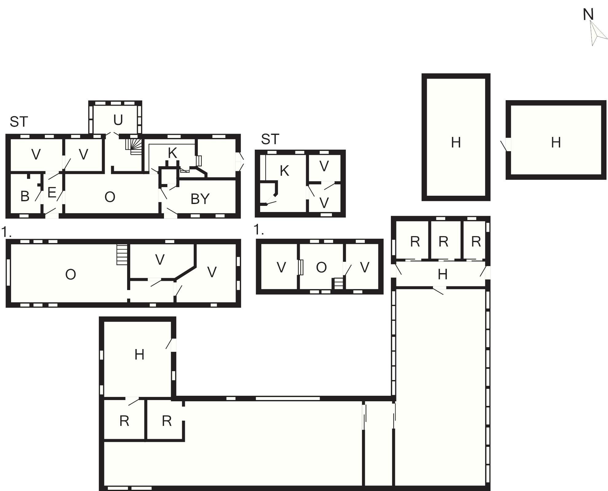
Idyllisk landejendom til leje – en sand perle Drømmer du om fred, ro og smuk natur? Dette charmerende landsted ligger på en ugenert grund og byder på masser af plads, både ude og inde. Den enorme have er fyldt med hyggekroge – perfekt til både sol og skygge. Det er det rene paradis for børn, da haven er så stor, at der er plads til fodbold, gemmeleg og mange andre lege. De kan også lave brød på pind på bålpladsen, hvor der stilles gratis brænde til rådighed. Alle frugter og krydderurter er også gratis at bruge. For de eventyrlystne er der et rummeligt shelter med plads til fire personer og et veludviklet stisystem til gåture i det naturskønne område. Huset har 5 gode soveværelser, et stort og veludstyret landkøkken med rummelig kogeø og indbygget friture – og med friske krydderurter lige uden for døren. Og den er altid fyldt med de mest tilgængelige dagligvarer, som også er gratis at bruge. Og hvis du skulle have brug for noget, er købmanden kun 5 minutters kørsel væk. Derudover har huset flere hyggelige stuer, hvor I kan nyde stemningen og den naturskønne beliggenhed. I sidebygningen finder du Hestestalden, som er omdannet til en stemningsfuld lounge med bar og god plads til 12 personer – det perfekte samlingssted, når børnene er gemt i og de voksne vil nyde en afslappet aften. En sand perle midt i naturen – perfekt til afslapning og fordybelse Ønskes mere soveplads, kan sidebygningen bookes E10031

HUSENE DC 62390 + 62391/ ADS 10030 + 10031 = DC 63395 / ADS 63395

2 Opholdsstue: Brændeovn, Chromecast, tv
5 Soveværelser: (1DS+2S)+(1O)+(1O)+(2S)+(1DS+2S)
1 Hems: (2O)
1 Alrum: Vaskemask., tørretumbler
Køkken: Elkogepl., ovn, køle-frys, Miniovn, kaffemaskine, opvaskemask.
2xBad/wc: Wc, håndvask, bruser
1 Udeareal: Havemøbler, liggestole, kulgrill, Terrasse
1 Udestue: Havemøbler
Og: Centralvarme, anlagt have 25000 m2, naturskønne omgivelser, ikke-ryger hus

Nøgleinformation
  • Nøglen til ferieboligen er til rådighed fra kl. 15:00 på indflytningsdagen.
  • Nøglen udleveres ved huset.
  • Dette hus er udstyret med smart lock

Faciliteter

  • Afstand

    • Golf
      8 km
    • Indkøb
      1,1 km
    • Kyst
      6,5 km
  • Bad

    • Bruser
      2
    • Håndvask
      2
    • WC
      2
  • Diverse

    • Antal badeværelser
      2
    • Antal soveværelser
      5
    • Boligareal
      316 m²
    • Byggeår
      1930
    • Højhastighedsinternet
    • Ikke ryger
    • Internet
    • Renoveret
      2020
    • Smart TV
  • Indendørs

    • Chromecast
    • Pejs / brændeovn
    • TV
    • Tørretumbler
    • Vaskemaskine
  • Køkken

    • Elkogeplader
    • Kaffemaskine
    • Køle-frys
    • Miniovn
    • Opvaskemask.
    • Ovn
  • Udendørs

    • Havemøbler
      2
    • Liggestole
    • Terrasse
    • Trækulgrill

Miniferie

Der er mulighed for miniferie i udvalgte perioder af året.

Priser og kalender

Kalender

Ankomst
Næste
   Se om emnet er ledigt på den valgte dato
Ledig
Optaget
   Ankomst mulig
Varighed

Pris

Periode
Ankomst
Afrejse
Varighed
1 uge
Personer
Op til 12 personer

Bemærk

Ankomst er ikke valgt.
Aftale- og lejebetingelser