Totalrenoveret sommerhus med spa og sauna

Sommerhus - 6 personer - Hans Hansensvej - Houstrup - 6830 - Nr. Nebel

6 personer

Oversigt

Emne nr.: 320-740196
7 overnatninger
Fra DKK 8.631,-
Inkl. rengøring og forsikring
Fremragende totalrenoveret sommerhus med spa, sauna og moderne køkken i naturskønne Houstrup.
Grundareal 1.140 m²
Boligareal 103 m²
Soverum 3
Afstand vand 3.500 m
Internet
Ikkeryger
Husdyr 1
  • Tilbyder miniferie Nej
  • Afstand indkøb 1.200 m
  • Spa Ja
  • Sauna Ja
  • Parabol/kabel TV Ja
  • Brændeovn Ja
  • Vaskemaskine Ja
  • Tørretumbler Ja
  • Opvaskemaskine Ja
  • Energivenligt Ja

Beskrivelse

Drømmer du om en ferie med luksus og velvære? Dette fantastiske sommerhus på Hans Hansensvej 84 i Houstrup er det perfekte valg. Her får du et stilfuldt, moderne og totalrenoveret sommerhus (2022) med fokus på komfort, kvalitet og hygge.

Sommerhusets hjerte er det store, åbne køkken-alrum med en elegant kogeø og masser af bordplads. Her kan familien samles over madlavningen, mens barstolene ved køkkenøen indbyder til hyggelige stunder. Køkkenet glider naturligt over i den lyse stue, hvor komfortable møbler og en centralt placeret brændeovn skaber den helt rigtige feriestemning. En miljøvenlig varmepumpe sørger for et behageligt indeklima året rundt.

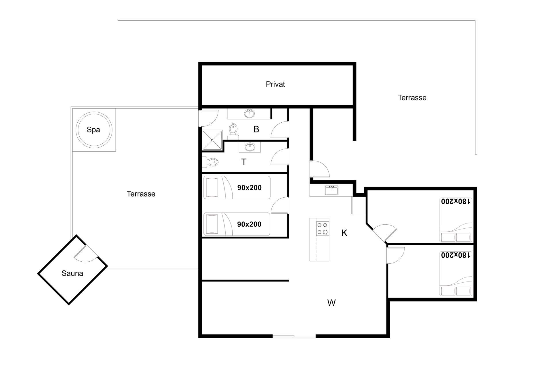
Feriehuset rummer tre velindrettede soveværelser med plads til i alt seks personer. Her er to værelser med dobbeltsenge og et værelse med to enkeltsenge.
Badeværelset (renoveret i 2022) er både stilfuldt og funktionelt med direkte adgang til en af husets største attraktioner: den lækre træterrasse med udespa og sauna.

Den store, solrige træterrasse er designet til afslapning og nydelse. Her kan du lade dig forkæle i spaen, nyde varmen i saunaen eller bare slappe af i de hyggelige loungeområder. Den velbeplantede grund omkring sommerhuset skaber en idyllisk ramme med grønne omgivelser året rundt. Til familiens yngste er der et gyngestativ, og der er flere hyggelige kroge, hvor du kan nyde en god kop kaffe i solen.

Dette lækre sommerhus i Houstrup er en sand perle, hvor velvære og kvalitet går hånd i hånd. Uanset om du drømmer om en romantisk getaway, en familieferie fyldt med hygge eller en afslappende pause fra hverdagen, vil dette sommerhus opfylde dine ønsker.

Tag en pause fra hverdagens stress og forkæl dig selv med en ferie i dette skønne sommerhus – Vi glæder os til at byde dig velkommen til en ferie i Houstrup!

Ved afrejse: Aflever venligst nøglekuvert og udfyldt strømseddel i brevsprækken ved kontoret i Houstrup.

Sengestørrelse: 2 dobbeltsenge 180 x 200 cm + 2 enkeltsenge 90 x 200 cm 

Faciliteter

  • Opholdsrum

    • TV
      1
    • Trægulv
  • Soverum

    • Trægulv
    • Sovepladser
      6
    • Soverum
      3
    • Dobbeltseng
      2
    • Enkeltsenge
      2
  • Køkken

    • Trægulv
    • Komfur: El Keramisk m. ovn
    • Mikroovn
    • Emhætte
    • Køleskab
    • Separat fryser
      80
    • Opvaskemaskine
  • Baderum

    • Gulvvarme
    • Toilet
    • Bruseniche
    • Ekstra: Toilet
      1
    • Sauna
  • Objektinfo

    • TV-programmer: Danske
    • TV-programmer: Tyske
    • Internetadgang: WiFi
    • Internetadgang
    • Husareal
      103
    • Byggeår
      1998
    • Renoveret: Total
      2022
    • Varme: Brændeovn
    • Varme: Varmepumpe
      1
    • Vaskemaskine
    • Tørretumbler
    • Ikke ryger hus
    • Husdyr
      1
  • Objektinfo - ude

    • Udendørs spa
    • Afstand hav
      3,5 km
    • Afstand indkøb
      1,2 km
    • Grundareal
      1140
    • Havemøbler
    • Liggestole
    • Overdækket terrasse

Priser og kalender

Kalender

Ankomst
Forrige Næste
  • maj 2026
    mationtofr
    18123
    1945678910
    2011121314151617
    2118192021222324
    2225262728293031
    23
  • juni 2026
    mationtofr
    231234567
    24891011121314
    2515161718192021
    2622232425262728
    272930
    28
   Se om emnet er ledigt på den valgte dato
Ledig
Optaget
   Ankomst mulig
Varighed

Pris

Periode
Ankomst
Afrejse
Varighed
1 uge
Personer
Op til 6 personer

Bemærk

Ankomst er ikke valgt.
Aftale- og lejebetingelser