Hyggeligt sommerhus med sauna og stor terrasse

Sommerhus - 6 personer - Rævestien 2 A - 6854 - Henne Strand

6 personer

Oversigt

Emne nr.: 320-410458
7 overnatninger
Fra DKK 4.846,-
Hyggeligt sommerhus nær skov og golfklub med sauna, brændeovn og stor terrasse til dejlige sommeraftener.
Grundareal 1.620 m²
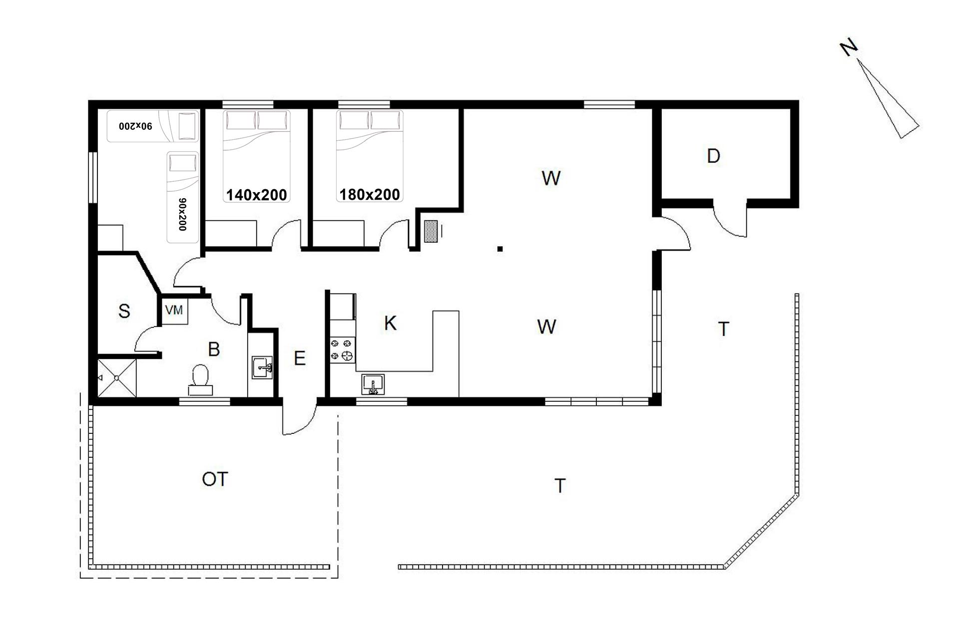
Boligareal 90 m²
Soverum 3
Afstand vand 2.500 m
Internet
Ikkeryger
Husdyr 1
  • Tilbyder miniferie Nej
  • Afstand indkøb 2 km
  • Sauna Ja
  • Parabol/kabel TV Ja
  • Brændeovn Ja
  • Vaskemaskine Ja
  • Tørretumbler Ja
  • Opvaskemaskine Ja
  • Energivenligt Ja

Beskrivelse

Så snart man træder indenfor døren i sommerhuset på Rævestien 2 A fornemmer man straks den hyggelige feriestemning. Huset ligger tæt ved skoven og Henne Golfklub, på grunden er der god plads til boldspil og udendørs aktiviteter, da her også er gynge og sandkasse til de små gæste.

Hyggelig indretning med brændeovn.
Huset fremstår overalt lyst og venligt og i 2022 er huset blevet renoveret med nyt lækkert køkken(2022) som er i åben forbindelse med den smagfuld indrettede stue/spisestue. I husets badeværelse finder I huset sauna, vaskemaskine og tørretumbler. Der er i huset 3 gode soverum alle med udstyret med kvalitetssenge.

Stor grund med lækker delvis overdækket træterrasse, som forlænger de dejlige sommeraftener.

Sengestørrelse: 1 dobbeltseng 180 x 200 cm + 1 dobbeltseng 140 x 200 cm + 2 enkeltsenge 90 x 200 cm.

Vores gæsteanmeldelser Eksterne anmeldelser

4,0
Baseret på 1 vurdering
Vurderet d. 11-07-2021
5
(0)
4
(1)
3
(0)
2
(0)
1
(0)
Kommentarer
Ingen vurderinger har kommentarer.

Faciliteter

  • Opholdsrum

    • TV
      2
    • DVD-afspiller
      1
    • Trægulv
  • Soverum

    • Trægulv
    • Sovepladser
      6
    • Soverum
      3
    • Dobbeltseng
      2
    • Enkeltsenge
      2
  • Køkken

    • Trægulv
    • Kogeplader: El keramisk
    • Indbygningsovn
    • Mikroovn
    • Emhætte
    • Køleskab med sep. fryseboks
    • Opvaskemaskine
  • Baderum

    • Gulvvarme
    • Toilet
    • Bruseniche
    • Sauna
  • Objektinfo

    • TV-programmer: Danske
    • TV-programmer: Tyske
    • Internetadgang: WiFi
    • Internetadgang
    • Husareal
      90
    • Byggeår
      1992
    • Renoveret: Total
      2022
    • Højstol
      1
    • Barneseng
      1
    • Varme: Brændeovn
    • Varme: Varmepumpe
      1
    • Vaskemaskine
    • Tørretumbler
    • Ikke ryger hus
    • Husdyr
      1
  • Objektinfo - ude

    • Afstand hav
      2,5 km
    • Afstand indkøb
      2 km
    • Grundareal
      1620
    • Gynge
    • Sandkasse
    • Havemøbler
    • Liggestole
    • Overdækket terrasse
  • Faciliteter

    • Børnevenlig

Priser og kalender

Kalender

Ankomst
Forrige Næste
  • februar 2026
    mationtofr
    51
    62345678
    79101112131415
    816171819202122
    9232425262728
    10
  • marts 2026
    mationtofr
    91
    102345678
    119101112131415
    1216171819202122
    1323242526272829
    143031
   Se om emnet er ledigt på den valgte dato
Ledig
Optaget
   Ankomst mulig
Varighed

Pris

Periode
Ankomst
Afrejse
Varighed
1 uge
Personer
Op til 6 personer

Bemærk

Ankomst er ikke valgt.
Aftale- og lejebetingelser