Hyggeligt sommerhus nær Henne Strand og Vesterhavet

Sommerhus - 6 personer - Storkenæbvej - 6854 - Henne Strand

6 personer

Oversigt

Emne nr.: 320-208510
7 overnatninger
Fra DKK 5.517,-
Inkl. forsikring
Charmerende sommerhus tæt på Henne Strands hyggelige centrum og Vesterhavet med stor terrasse og sauna.
Grundareal 1.138 m²
Boligareal 115 m²
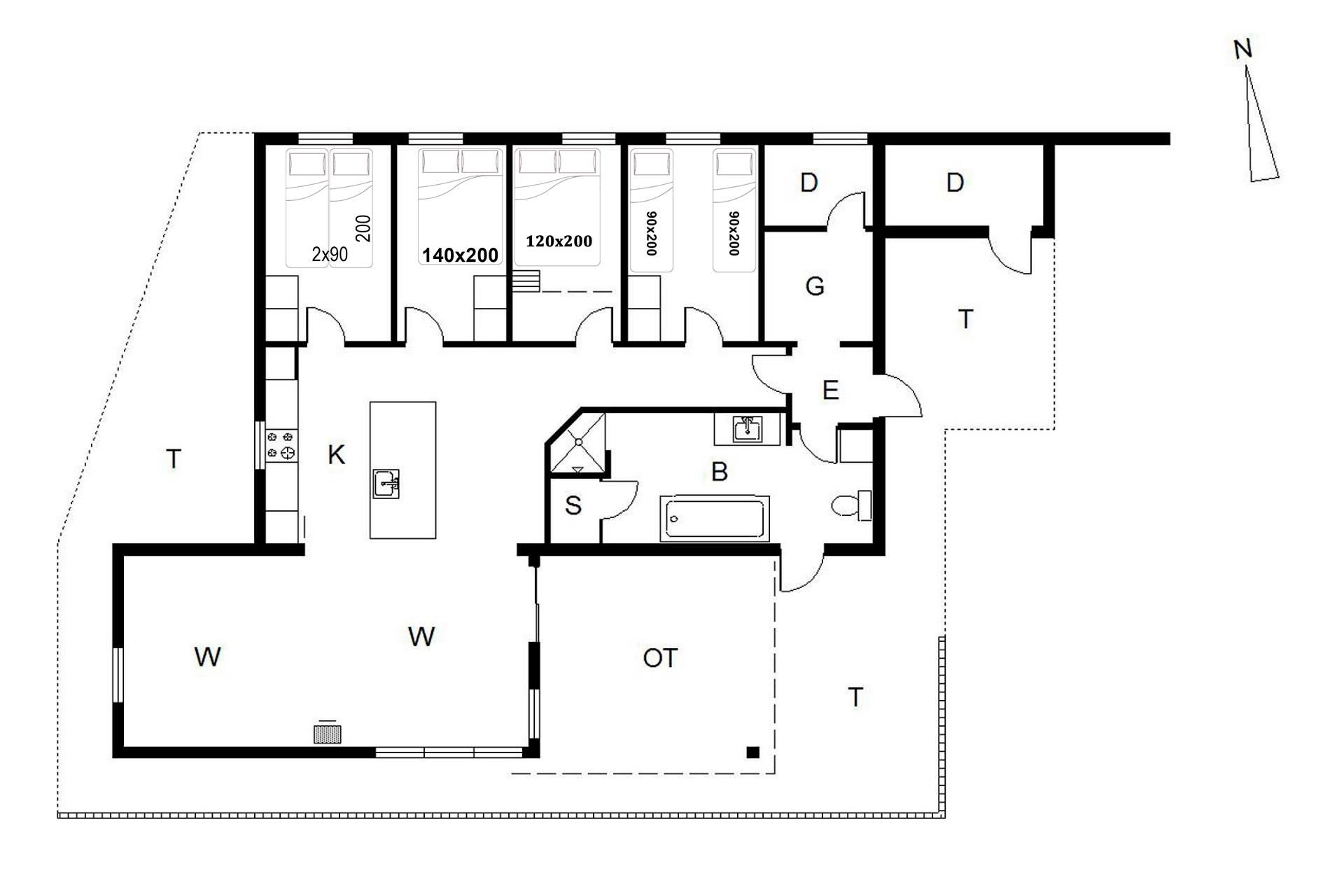
Soverum 4
Afstand vand 500 m
Internet
Ikkeryger
Husdyr
  • Tilbyder miniferie Nej
  • Afstand indkøb 800 m
  • Sauna Ja
  • Parabol/kabel TV Ja
  • Brændeovn Ja
  • Vaskemaskine Ja
  • Opvaskemaskine Ja
  • Energivenligt Ja

Beskrivelse

Storkenæbvej 3 – Henne Strand er beliggende i gåafstand til Henne Strand hyggelige handelsliv og restauranter. I kort afstand fra huset er der sti som går ned til Vesterhavet. Stort lækkert badeværelse og stor entre med plads til sko og overtøj. Stor hyggelig stue som er indrettet med gode møbler. Stort opholdsrum med loft til kip og stort vinduesparti
Man mærker den helt rigtige sommerhusstemning i dette hus. Der er også tænkt på det praktiske med vaskemaskine og opvaskemaskine, der er ligeledes energibesparende varmepumpe. Veludstyret køkken med stor fryser og mikroovn. Huset byder på 4 soverum, hvoraf den ene er børneværelse med TV, Hems og skrivebord.
Pragtfuld, ugeneret og børnevenlig naturgrund
Fremhæves skal den store sydvendt delvis overdækkede træterrasse som giver god mulighed for at nyde solen og stilheden. Omkring huset er der stor træterrasse så der er altid mulighed for at finde en lækrog. Der er også tænkt på de små gæster, så der er gynge på grunden. Udendørs bordtennis bord.

Sengestørrelser: 1 dobbeltseng med 2 madrasser 90 x 200 cm + 1 dobbeltseng 140 x 200 cm + 1 dobbeltseng 120 x 200 cm + 2 enkeltsenge 90 x 200 cm 

Faciliteter

  • Opholdsrum

    • TV
      1
    • Trægulv
  • Soverum

    • Gulvtæppe
    • Sovepladser
      7
    • Soverum
      4
    • Dobbeltseng
      3
    • Enkeltsenge
      1
    • Hems
      1
  • Køkken

    • Trægulv
    • Kogeplader: El keramisk
    • Indbygningsovn
    • Mikroovn
    • Emhætte
    • Køleskab med sep. fryseboks
    • Opvaskemaskine
  • Baderum

    • Gulvvarme
    • Toilet
    • Bruseniche
    • Badekar
    • Sauna
  • Objektinfo

    • Spillekonsol
      1
    • TV-programmer: Danske
    • TV-programmer: Tyske
    • Internetadgang: WiFi
    • Internetadgang
    • Husareal
      115
    • Byggeår
      1972
    • Renoveret: Total
      2019
    • Højstol
      1
    • Barneseng
      1
    • Varme: Brændeovn
    • Varme: Varmepumpe
      1
    • Vaskemaskine
    • Ikke ryger hus
  • Objektinfo - ude

    • Afstand hav
      500 m
    • Afstand indkøb
      800 m
    • Grundareal
      1138
    • Gynge
    • Havemøbler
    • Liggestole
    • Overdækket terrasse

Priser og kalender

Kalender

Ankomst
Forrige Næste
  • februar 2026
    mationtofr
    51
    62345678
    79101112131415
    816171819202122
    9232425262728
    10
  • marts 2026
    mationtofr
    91
    102345678
    119101112131415
    1216171819202122
    1323242526272829
    143031
   Se om emnet er ledigt på den valgte dato
Ledig
Optaget
   Ankomst mulig
Varighed

Pris

Periode
Ankomst
Afrejse
Varighed
1 uge
Personer
Op til 6 personer

Bemærk

Ankomst er ikke valgt.
Aftale- og lejebetingelser