Lys ferielejlighed med pool og golfudsigt
Ferielejlighed - 6 personer - Vestergade 217 B, appt. - Havneby - 6792 - Rømø
Alternative emner
Sommerhuse i nærheden (640)6 personer
Oversigt
Emne nr.: 121-29-1927
7 overnatninger
Fra
DKK 2.708,-
Valgfri rengøring: DKK 896,-
Lyst og pænt feriecenterlejlighed på Rømø med udsigt, pool og nærhed til strand, golf og havnemiljø.
- Tilbyder miniferie Ja
- Afstand indkøb 1.100 m
- Fælles indendørs swimmingpool Ja
- Parabol/kabel TV Ja
- Vaskemaskine Ja
- Opvaskemaskine Ja
Beskrivelse
Denne pæne og lyst indrettede ferielejlighed er beliggende i feriecenter RIM. Fra terrassen er der udsigt over Sydøen, golfbanen og skibstrafikken til og fra Havneby.
Feriecentret tilbyder aktiviteter for hele familien som f.eks. udendørs swimmingpool, indendørs swimmingpool, sauna, solarium, tennisbaner, legepladser m.m.
Lejligheden er beliggende på Sydøen med kort afstand til den brede Sønderstrand og i gåafstand fra Havneby med indkøbsmuligheder, restauranter og det maritime miljø omkring den lille fiskerihavn.
Indretning
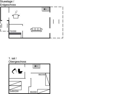
Ferielejligheden egner sig til 6 personer samt 1 barn op til 3 år. Ferieboligen er på 73 m², er i 2 plan, og er bygget i 1987. I 2016 gennemgik ferieboligen en renovering. Det er ikke tilladt at medbringe husdyr. Der er fjernvarme. Ferieboligen har vaskemaskine. Frysekapacitet på 40 liter. Til de små er der 1 stk. barnestol.
Udenfor
Ferieboligen er beliggende på en 200 m² stor naturgrund. Der er 2300 m til havet. Der er 500 m til Vadehavet. Nærmeste forretning er beliggende i en afstand af 1100 m. Der er en golfbane i en afstand af 50 m. Til ferieboligen hører åbent terrasseareal. Der ligger en legeplads i en afstand af 50 m. Grill til rådighed. Parkering ved ferieboligen.
Swimmingpool
Der er fælles indendørs swimmingpool til rådighed, hvor der er mulighed for leg og hyggeligt samvær.
Soveforhold
Der er i alt 3 soveværelser. Sovepladserne fordeler sig på: 2 sovepladser i dobbeltseng. 2 sovepladser i enkeltsenge. 2 sovepladser i køjeseng. Derudover er der 1 stk. barneseng.
Køkken
Køkkenet er udstyret med 1 køleskab. Der er 4 keramiske kogeplader, varmluftovn, mikrobølgeovn samt opvaskemaskine.
Toilet og bad
Der er 1 badeværelse med bruseniche og 1 toilet.
Multimedier
1 Smart-TV. Der er mindst 4 danske kanaler. 1-3 svenske kanaler. 1-3 norske kanaler. 1-3 tyske kanaler. Der er trådløst internet til rådighed.
Værd at vide
Ingen udlejning til ungdomsgrupper, hvor alle er 15-25 år. Rygning ikke tilladt. Ved overtrædelse af forbuddet opkræves et gebyr på minimum DKK 3.000,-.
Indretning
Ferielejligheden egner sig til 6 personer samt 1 barn op til 3 år. Ferieboligen er på 73 m², er i 2 plan, og er bygget i 1987. I 2016 gennemgik ferieboligen en renovering. Det er ikke tilladt at medbringe husdyr. Der er fjernvarme. Ferieboligen har vaskemaskine. Frysekapacitet på 40 liter. Til de små er der 1 stk. barnestol.
Udenfor
Ferieboligen er beliggende på en 200 m² stor naturgrund. Der er 2300 m til havet. Der er 500 m til Vadehavet. Nærmeste forretning er beliggende i en afstand af 1100 m. Der er en golfbane i en afstand af 50 m. Til ferieboligen hører åbent terrasseareal. Der ligger en legeplads i en afstand af 50 m. Grill til rådighed. Parkering ved ferieboligen.
Swimmingpool
Der er fælles indendørs swimmingpool til rådighed, hvor der er mulighed for leg og hyggeligt samvær.
Soveforhold
Der er i alt 3 soveværelser. Sovepladserne fordeler sig på: 2 sovepladser i dobbeltseng. 2 sovepladser i enkeltsenge. 2 sovepladser i køjeseng. Derudover er der 1 stk. barneseng.
Køkken
Køkkenet er udstyret med 1 køleskab. Der er 4 keramiske kogeplader, varmluftovn, mikrobølgeovn samt opvaskemaskine.
Toilet og bad
Der er 1 badeværelse med bruseniche og 1 toilet.
Multimedier
1 Smart-TV. Der er mindst 4 danske kanaler. 1-3 svenske kanaler. 1-3 norske kanaler. 1-3 tyske kanaler. Der er trådløst internet til rådighed.
Værd at vide
Ingen udlejning til ungdomsgrupper, hvor alle er 15-25 år. Rygning ikke tilladt. Ved overtrædelse af forbuddet opkræves et gebyr på minimum DKK 3.000,-.
Faciliteter
-
Adgang til ferieboligen
-
Nøgleboks med kode
-
-
Aktivitetscentre
-
Feriecenter RIM
-
-
Bemærk
-
Ingen ungdomsgrupper efter anmodning
-
Rygning er forbudt
-
-
Gratis badeland
-
Feriecenter Rim/Rømø
-
-
Indretning
-
2 niveauer
-
Antal børn (0-3 år)1
-
Antal voksne inkl. 4-11 år6
-
Bebygget areal73 m²
-
Byggeår1987
-
Ferielejlighed
-
Fjernvarme
-
Frysekapacitet (antal liter)40
-
Højstol1
-
Renovering2016
-
Vaskemaskine1
-
-
Køkken
-
Antal keramiske kogeplader4
-
Køleskab1
-
Mikrobølgeovn1
-
Opvaskemaskine1
-
Varmluftovn1
-
-
Multimedier
-
> 3 danske kanaler
-
0-3 norske kanaler
-
0-3 svenske kanaler
-
0-3 tyske kanaler
-
Antal tv'er1
-
Download200
-
Smart-Tv1
-
Trådløst internet
-
Upload200
-
-
Soveforhold
-
Antal soveværelser3
-
Barneseng1
-
Dobbeltseng (antal sovepladser)2
-
Enkeltseng (antal sovepladser)2
-
Køjeseng (antal sovepladser)2
-
-
Swimmingpool
-
Fælles indendørs swimmingpool
-
-
Toilet og bad
-
Antal badeværelser1
-
Antal toiletter1
-
Brusekabine
-
-
Udenfor
-
Butik1,1 km
-
Golfbane50 m
-
Grill1
-
Hav2,3 km
-
Legeplads50
-
Natursted
-
Parkeringsplads ved huset
-
Størrelse af grunden200 m²
-
Terrasse
-
Vadehavet500 m
-
Miniferie
Der er begrænset mulighed for miniferie hele året, typisk uden for højsæsonen.
Priser og kalender
Kalender
Varighed
Pris
Periode
- Ankomst
- Afrejse
- Varighed
- 1 uge
Personer
Op til 6 personer
Bemærk
Ankomst er ikke valgt.