Eksklusivt feriehus med havudsigt og golf

Ferielejlighed - 6 personer - Gulirisvej - Havneby - 6792 - Rømø

6 personer

Oversigt

Emne nr.: 037-1285
7 overnatninger
Fra DKK 4.720,-
Inkl. rengøring, forsikring og forbrug
6 personer
Eksklusivt feriehus med havudsigt og golfbane i Havneby på Rømø.
Grundareal 125 m²
Boligareal 112 m²
Soverum 2
Badeværelser 1
Afstand vand 3 km
Highspeed internet Highspeed
Ikkeryger
Husdyr 1
  • Tilbyder miniferie Nej
  • Afstand indkøb 500 m
  • Parabol/kabel TV Ja
  • Brændeovn Ja
  • Udsigt til vand Ja
  • Vaskemaskine Ja
  • Tørretumbler Ja
  • Opvaskemaskine Ja
  • Inklusiv forbrug Ja

Beskrivelse

Denne eksklusive feriebolig er lækkert indrettet, byder på en særdeles flot udsigt og ligger lige ud til links golfbanen i Havneby på Rømøs sydlige kyst.

Velkommen indenfor
Når I nyder livet i førstesalens stue eller ude på altanen, kan I skue lige ud på den naturskønne golfbane og betragte færgen, der krydser Vadehavet på den anden side af diget. Udsigten kan også nydes fra stueplanets opholdsrum, så når I hygger jer inden døre ved indbygningspejsen, får I også glæde af det betagende syn.
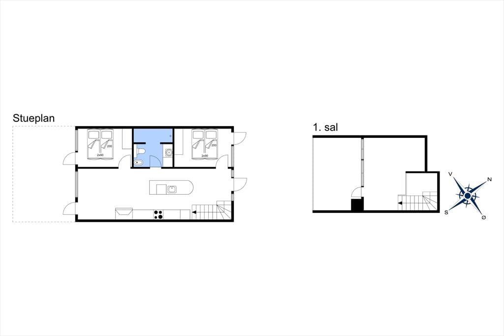
Hvis I ellers kan løsrive blikket, er selve ferieboligen også værd at bemærke – det arkitekttegnede rækkehus er nemlig ikke bare et velformet kvalitetsbyggeri, men også fyldt med lækre møbler og komfortable boligløsninger. Som ekstra detalje har dette feriehus en stor tv-pakke med 80 forskellige kanaler. Planløsningen består af to soveværelser med nye madrasser fra 2022, et badeværelse og et stort opholdsrum med integreret køkkenafdeling i stueplan, og på førstesalen ligger en dejlig udsigtsstue, som takket være en sovesofa også kan bruges som sovegemak.

Nyd livet udenfor
Førstesalens altan er perfekt, når I trænger til en solbeskinnet pause i en liggestol. I kan også samles på den sydvendte terrasse – herfra er der nem adgang til køkkenet, så det er et oplagt sted at nyde sommerens udendørs måltider. På nordsiden af huset ligger der også en terrasse, så I har flere dejlige
opholdspladser at vælge imellem.

Kom tæt på de lokale oplevelser
Golfinteresserede feriegæster vil naturligvis synes, det er dejligt at bo så tæt på Rømø Golfklub, som både har en 18-hullers linksbane og en Pay & Play med ni huller. Huset ligger i feriebyen ved Enjoy Resorts Rømø, og derfor har I også et badeland, wellness, en bowlinghal og en dejlig restaurant lige i nærheden. Samtidig er der kort gåafstand til Havnebys torv og havneområde, hvis I vil købe ind i supermarkedet og i fiskeudsalget. I kan også sætte jer på et af byens spisesteder for at få en bid mad eller ligefrem tage på dagsudflugt med færgen til naboøen Sild, hvor der også er gode restauranter. I Havneby kan I leje cykler, hvis I vil rundt på Rømø– for eksempel til Sønderstrand, som er Nordeuropas bredeste strand. Rømø er del af Nationalpark Vadehavet, og det flotte tidevandsområde er optaget på UNESCO’s verdensarvsliste, så der er mange uforglemmelige naturoplevelser i vente.

Nogle af aktiviteter for børn er gratis Mod betaling masser af muligheder for svømning i badeområdet, wellness, golf, bowling samt restaurant i centerbygningen tæt på lejlighederne.


Rumindretning

  • Soveværelse
    • Dobbeltseng - 160 x 200
  • Soveværelse
    • Dobbeltseng - 160 x 200

Faciliteter

  • Hus Info

    • Antal husdyr
      1
    • Antal voksne
      6
    • Bruser
    • Byggeår
      2007
    • Grundareal / Fælles grund
      125 m²
    • Havudsigt
    • Husareal
      112 m²
    • WC
  • Afstande

    • Afstand golfbane
      50 m
    • Afstand indkøb / Helårsbutik
      500 m
    • Afstand restaurant
      100 m
    • Afstand strand / Sandstrand
      3 km
    • Afstand til fælles legeplads
      450 m
  • Energi / Opvarmning

    • Brændeovn
    • Elvarme
  • Hårde hvidevarer

    • Fryser
      10
    • Kaffemaskine
    • Kogeplader
    • Køleskab
    • Mikroovn
    • Opvaskemaskine
    • Ovn
    • Tørretumbler
    • Vaskemaskine
  • Multimedier

    • 2 x TV
    • Dansk tv
      Stor tv-pakke med 80 kanaler
    • Gratis Wi-Fi - Over 100 Mbit
    • Kabel-TV
      Stor tv-pakke med 80 kanaler
    • Tysk TV
      Stor tv-pakke med 80 kanaler
  • Ekstra

    • Golfferie
    • Vandrevenlig
  • Udenfor

    • Gynge
    • Havemøbler
    • Liggestole
      2
    • Parkering på grunden
    • Åben terrasse
  • Diverse

    • 4 x Gulvvarme
    • Afmærkede vandreruter i nærheden
    • Sovesofa dobbelt
      140 x 200
  • Regler

    • Husdyr: alle slags husdyr tilladt
    • Opladning af elbil ikke tilladt
    • Rygning ikke tilladt
  • Pris inklusiv

    • Forbrug inkl.
    • Slutrengøring inkl.
    • Strøm inkl.
    • Vand inkl.

Priser og kalender

Kalender

Ankomst
Næste
  • april 2026
    mationtofr
    1412345
    156789101112
    1613141516171819
    1720212223242526
    1827282930
    19
  • maj 2026
    mationtofr
    18123
    1945678910
    2011121314151617
    2118192021222324
    2225262728293031
    23
   Se om emnet er ledigt på den valgte dato
Ledig
Optaget
   Ankomst mulig
Varighed
Personer

Pris

Periode
Ankomst
Afrejse
Varighed
1 uge
Personer
Ingen personer er valgt

Bemærk

Ankomst er ikke valgt.
Der er ikke valgt personer.
Aftale- og lejebetingelser