Moderne feriehus ved golf og bymidte

Ferielejlighed - 6 personer - Gulirisvej - Havneby - 6792 - Rømø

6 personer

Oversigt

Emne nr.: 037-1165
7 overnatninger
Fra DKK 3.960,-
Inkl. rengøring og forsikring
6 personer
Moderne feriehus i Rømø ved golfbane og tæt på Havnebys centrum med lys og komfort.
Grundareal 120 m²
Boligareal 112 m²
Soverum 2
Badeværelser 1
Afstand vand 3 km
Highspeed internet Highspeed
Ikkeryger
Husdyr 1
  • Tilbyder miniferie Ja
  • Afstand indkøb 500 m
  • Parabol/kabel TV Ja
  • Brændeovn Ja
  • Vaskemaskine Ja
  • Tørretumbler Ja
  • Opvaskemaskine Ja

Beskrivelse

Lyst, luftigt og helt utroligt lækkert – sådan kan denne moderne feriebolig helt kort beskrives. Huset er del af den arkitekttegnede ferieby ved Enjoy Resorts Rømø, der ligger lige ved Rømø Golfklub og i kort gåafstand til Havnebys bymidte.

Velkommen indenfor
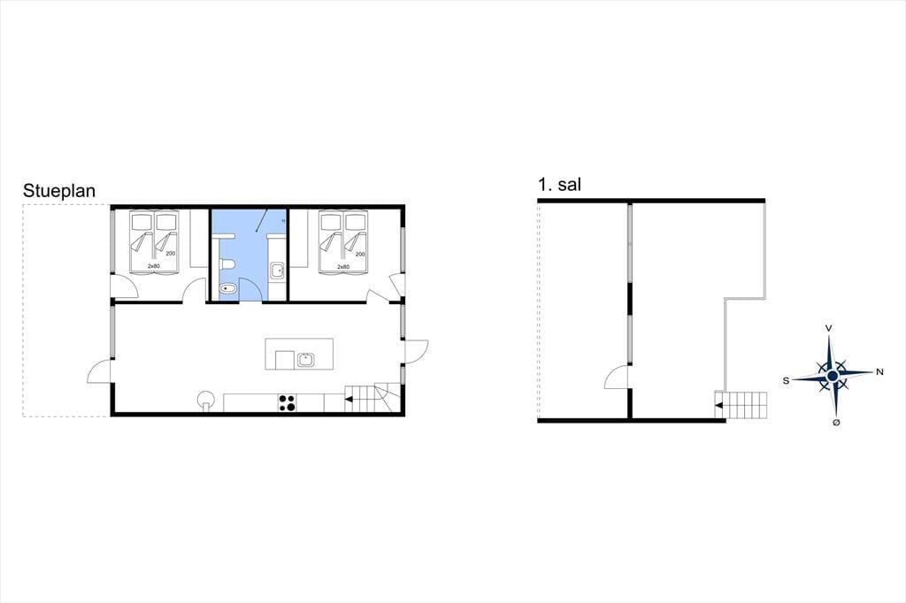
Sommerhuset, der nærmere bestemt er et stråtækt rækkehus fra 2007, har en glimrende planløsning på 112 m² fordelt på to plan. I stueplan er køkken og spisestue forenet som et stort og indbydende opholdsrum med gennemstrømmende lysindfald og stilfuldt møblement. Mens I hygger jer med madlavningen eller sidder samlet omkring spisebordet, kan I nyde varmen og skæret fra ilden i indbygningspejsen – hvis det altså ikke nærmere er vejr til at lade frisk luft strømme ind gennem terrassedøren. I kan også gå ovenpå for at slappe af i den flotte opholdsstue, der har loft til kip og et kæmpe sydvendt vinduesparti. En af sofaerne er en dobbelt sovesofa, så den kan oplagt fungere som sengeplads om natten, hvis dobbeltsengene på husets to soveværelser ikke rækker. Et badeværelse rummer huset selvfølgelig også, og det er lige så velindrettet som de øvrige rum.

Nyd livet udenfor
Når vejret er godt, har I flere skønne opholdspladser at vælge imellem ude i det fri. Den sydvendte terrasse ligger i forlængelse af køkken-alrummet, så det er oplagt at flytte morgenmaden og frokosten herud – og at tilberede aftensmaden på grillen under åben himmel. Det kan nu også anbefales at rykke driverlivet op på førstesalens store altan, der ligeledes er sydvendt og dermed dejligt solrig.

Kom tæt på de lokale oplevelser
Huset ligger meget tæt på golfbanen, så I kan hurtigt smutte ned for at kigge ud over det åbne landskab – og synet giver jer måske selv lyst til at tage en runde på den spektakulære 18-hullers linksbane. På den anden side af golfbanen venter Vadehavet, og det kan anbefales at tage en gåtur på diget ned mod det unikke naturområde, der er optaget på UNESCO’s verdensarvsliste. Landskabet ændrer sig alt efter, om det er højvande, eller om tidevandet har trukket sig tilbage og blotlagt havbunden, så der er altid noget nyt at se. Det kan også anbefales at tage til Sønderstrand, som er Nordeuropas bredeste sandstrand og et godt sted at dyrke blokart og andre former for vindsport. Får I lyst til en bid mad, kan I spadsere ind til Havnebys restauranter eller købe frisk fisk nede ved havnen.


Rumindretning

  • Soveværelse
    • Dobbeltseng - 160 x 200
  • Soveværelse
    • Dobbeltseng - 160 x 200

Vores gæsteanmeldelser Eksterne anmeldelser

5,0
Baseret på 1 vurdering
Vurderet d. 11-10-2025
5
(1)
4
(0)
3
(0)
2
(0)
1
(0)
Kommentarer
Ingen vurderinger har kommentarer.

Faciliteter

  • Hus Info

    • Antal husdyr
      1
    • Antal voksne
      6
    • Bruser
    • Byggeår
      2007
    • Grundareal / Naturgrund
      120 m²
    • Husareal
      112 m²
    • WC
  • Afstande

    • Afstand golfbane
      50 m
    • Afstand indkøb / Sommerbutik
      500 m
    • Afstand strand
      3 km
    • Afstand til fælles legeplads
      450 m
  • Energi / Opvarmning

    • Brændeovn
    • Elvarme
  • Hårde hvidevarer

    • Elkedel
    • Emhætte
    • Fryser
      30
    • Kaffemaskine
    • Kogeplader
    • Køleskab
      75
    • Mikroovn
    • Opvaskemaskine
    • Ovn
    • Strygebræt
    • Strygejern
    • Tørretumbler
    • Vaskemaskine
  • Multimedier

    • 2 x TV
    • Chromecast
    • Dansk tv
    • Gratis Wi-Fi - Over 20 Mbit
    • Kabel-TV
    • Tysk TV
  • Ekstra

    • Golfferie
    • Vandrevenlig
  • Udenfor

    • Grill
    • Havemøbler
    • Liggestole
      2
    • Parasol
    • Parkering på grunden
    • Terrasse
  • Diverse

    • Afmærkede vandreruter i nærheden
    • Gulvvarme
    • Sovesofa dobbelt
      140 x 200
  • Regler

    • Husdyr: alle slags husdyr tilladt
    • Opladning af elbil ikke tilladt
    • Rygning ikke tilladt
  • Pris inklusiv

    • Slutrengøring inkl.
  • GAMMEL

    • Radio

Miniferie

Der er mulighed for miniferie hele året.

Priser og kalender

Kalender

Ankomst
Næste
  • april 2026
    mationtofr
    1412345
    156789101112
    1613141516171819
    1720212223242526
    1827282930
    19
  • maj 2026
    mationtofr
    18123
    1945678910
    2011121314151617
    2118192021222324
    2225262728293031
    23
   Se om emnet er ledigt på den valgte dato
Ledig
Optaget
   Ankomst mulig
Varighed
Personer

Pris

Periode
Ankomst
Afrejse
Varighed
1 uge
Personer
Ingen personer er valgt

Bemærk

Ankomst er ikke valgt.
Der er ikke valgt personer.
Aftale- og lejebetingelser