Sommerhus nær Vesterhavet med spa og terrasse
Sommerhus - 8 personer - Helgasvej - Grønhøj - 9480 - Løkken
Alternative emner
Sommerhuse i nærheden (385)8 personer
Oversigt
Emne nr.: 121-12-0456
7 overnatninger
Fra
DKK 4.309,-
Valgfri rengøring: DKK 1.357,-
Hyggeligt sommerhus nær Vesterhavet med spa, sauna og store terrasser for afslapning.
- Tilbyder miniferie Ja
- Afstand indkøb 800 m
- Spa Ja
- Sauna Ja
- Brændeovn Ja
- Vaskemaskine Ja
- Tørretumbler Ja
- Opvaskemaskine Ja
- Energivenligt Ja
Beskrivelse
Dette dejlige sommerhus ligger i et sommerhusområde ikke langt fra den dejlige badestrand ved Vesterhavet. Til huset hører flere dejlige og nyanlagte terrasser.
Indretning
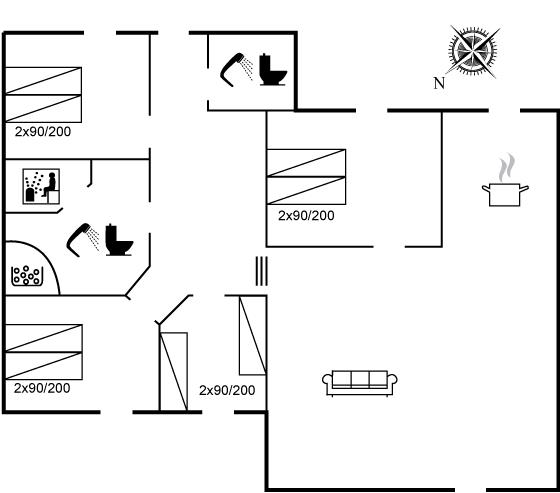
Sommerhuset egner sig til 8 personer. Ferieboligen er på 140 m² og er bygget i 1984. I 2020 gennemgik ferieboligen en renovering. Det er ikke tilladt at medbringe husdyr. Ferieboligen er udstyret med energibesparende varmepumpe. Hele ferieboligen har gulvvarme. Ferieboligen har vaskemaskine. Tørretumbler. Frysekapacitet på 170 liter. Der er desuden brændeovn. Til de små er der 1 stk. barnestol. Puslebord.
Udenfor
Ferieboligen er beliggende på en 800 m² stor naturgrund. Der er 375 m til havet. Nærmeste forretning er beliggende i en afstand af 800 m. Til ferieboligen hører 155 m² terrasseareal. Desuden er der 15 m² overdækket terrasse. Grill til rådighed. Parkering ved ferieboligen.
Aktivitetsrum
Bordfodbold.
Soveforhold
Der er i alt 4 soveværelser. Sovepladserne fordeler sig på: 6 sovepladser i dobbeltsenge. 2 sovepladser i enkeltsenge. 2 sovepladser på madrasser. 2 af disse sovepladser befinder sig på husets hems. Derudover er der 1 stk. barneseng.
Køkken
Køkkenet er udstyret med 1 køleskab. Der er 4 induktionskogeplader, varmluftovn, mikrobølgeovn samt opvaskemaskine.
Toilet og bad
Der er 2 badeværelser med bruseniche og 2 toiletter. Der er gulvvarme på 2 badeværelser. I saunaen er der mulighed for afslapning.
Spa
Der er mulighed for afslapning i indendørs spa til 2 personer.
Multimedier
I ferieboligen er der 2 TV.1 Chromecast. Der er installeret Chromecast på begge TV. Radio. Der er 1-3 danske kanaler. 1-3 svenske kanaler. 1-3 norske kanaler. 1-3 tyske kanaler. Der er trådløst internet til rådighed.
Værd at vide
Ingen udlejning til ungdomsgrupper, hvor alle er 15-25 år. Rygning ikke tilladt. Ved overtrædelse af forbuddet opkræves et gebyr på minimum DKK 3.000,-.
Indretning
Sommerhuset egner sig til 8 personer. Ferieboligen er på 140 m² og er bygget i 1984. I 2020 gennemgik ferieboligen en renovering. Det er ikke tilladt at medbringe husdyr. Ferieboligen er udstyret med energibesparende varmepumpe. Hele ferieboligen har gulvvarme. Ferieboligen har vaskemaskine. Tørretumbler. Frysekapacitet på 170 liter. Der er desuden brændeovn. Til de små er der 1 stk. barnestol. Puslebord.
Udenfor
Ferieboligen er beliggende på en 800 m² stor naturgrund. Der er 375 m til havet. Nærmeste forretning er beliggende i en afstand af 800 m. Til ferieboligen hører 155 m² terrasseareal. Desuden er der 15 m² overdækket terrasse. Grill til rådighed. Parkering ved ferieboligen.
Aktivitetsrum
Bordfodbold.
Soveforhold
Der er i alt 4 soveværelser. Sovepladserne fordeler sig på: 6 sovepladser i dobbeltsenge. 2 sovepladser i enkeltsenge. 2 sovepladser på madrasser. 2 af disse sovepladser befinder sig på husets hems. Derudover er der 1 stk. barneseng.
Køkken
Køkkenet er udstyret med 1 køleskab. Der er 4 induktionskogeplader, varmluftovn, mikrobølgeovn samt opvaskemaskine.
Toilet og bad
Der er 2 badeværelser med bruseniche og 2 toiletter. Der er gulvvarme på 2 badeværelser. I saunaen er der mulighed for afslapning.
Spa
Der er mulighed for afslapning i indendørs spa til 2 personer.
Multimedier
I ferieboligen er der 2 TV.1 Chromecast. Der er installeret Chromecast på begge TV. Radio. Der er 1-3 danske kanaler. 1-3 svenske kanaler. 1-3 norske kanaler. 1-3 tyske kanaler. Der er trådløst internet til rådighed.
Værd at vide
Ingen udlejning til ungdomsgrupper, hvor alle er 15-25 år. Rygning ikke tilladt. Ved overtrædelse af forbuddet opkræves et gebyr på minimum DKK 3.000,-.
Faciliteter
-
Adgang til ferieboligen
-
Nøgleboks med kode
-
-
Aktivitetsrum
-
Bordfodbold
-
-
Bemærk
-
Ingen ungdomsgrupper efter anmodning
-
Rygning er forbudt
-
-
Indretning
-
Antal voksne inkl. 4-11 år8
-
Bebygget areal140 m²
-
Brændeovn1
-
Byggeår1984
-
Feriebolig
-
Frysekapacitet (antal liter)170
-
Gulvvarme
-
Højstol1
-
Puslebord
-
Renovering2020
-
Tørretumbler1
-
Varmepumpe
-
Vaskemaskine1
-
-
Køkken
-
Antal induktionskogeplader4
-
Køleskab1
-
Mikrobølgeovn1
-
Opvaskemaskine1
-
Varmluftovn1
-
-
Multimedier
-
0-3 danske kanaler
-
0-3 norske kanaler
-
0-3 svenske kanaler
-
0-3 tyske kanaler
-
Antal tv'er2
-
Chromecast1
-
Radio
-
Trådløst internet
-
-
Soveforhold
-
Antal soveværelser4
-
Barneseng1
-
Dobbeltseng (antal sovepladser)6
-
Enkeltseng (antal sovepladser)2
-
Hems (antal sovepladser)
-
Madrasser (antal sovepladser)2
-
Soveplads ikke i soveværelset
-
-
Spa
-
Indendørs spabad (antal personer)2
-
-
Toilet og bad
-
Antal badeværelser2
-
Antal toiletter2
-
Brusekabine
-
Gulvvarme2
-
Sauna
-
-
Udenfor
-
Butik800 m
-
Grill1
-
Hav375 m
-
Natursted
-
Overdækket terrasse15 m²
-
Parkeringsplads ved huset
-
Størrelse af grunden800 m²
-
Terrasse155 m²
-
Miniferie
Der er begrænset mulighed for miniferie hele året, typisk uden for højsæsonen.
Priser og kalender
Kalender
Varighed
Pris
Periode
- Ankomst
- Afrejse
- Varighed
- 1 uge
Personer
Op til 8 personer
Bemærk
Ankomst er ikke valgt.