Fritidshus tæt ved Vesterhav og strand
Sommerhus - 6 personer - Marensvej - Grønhøj - 9480 - Løkken
Alternative emner
Sommerhuse i nærheden (411)6 personer
Oversigt
Emne nr.: 121-12-0327
7 overnatninger
Fra
DKK 3.701,-
Inkl. rengøring
Fritidshus nær Vesterhavet med naturskøn beliggenhed og kort afstand til sandstrand i Grønhøj.
- Tilbyder miniferie Ja
- Afstand indkøb 1.300 m
- Parabol/kabel TV Ja
- Vaskemaskine Ja
- Tørretumbler Ja
- Opvaskemaskine Ja
- Energivenligt Ja
Beskrivelse
Fritidshus med kig til Vesterhavet og beliggende i flot naturområde. Tæt på huset er sti der på få minutter leder direkte til sandstranden som Grønhøj er kendt for.
Indretning
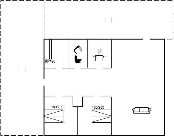
Sommerhuset egner sig til 6 personer. Ferieboligen er på 89 m² og er bygget i 1966. I 2012 gennemgik ferieboligen en delvis renovering. Det er tilladt at medbringe 2 husdyr. Ferieboligen er udstyret med 1 energivenlig luft til vand varmepumpe. Ferieboligen har vaskemaskine. Tørretumbler. Frysekapacitet på 40 liter.
Udenfor
Ferieboligen er beliggende på en 2500 m² stor naturgrund. Der er 275 m til havet. Nærmeste forretning er beliggende i en afstand af 1300 m. Til ferieboligen hører 80 m² terrasseareal. Der er redskabsrum.
Soveforhold
Der er i alt 3 soveværelser. Sovepladserne fordeler sig på: 4 sovepladser i dobbeltsenge. 2 sovepladser i køjeseng.
Køkken
Køkkenet er udstyret med 1 køleskab. Der er 3 keramiske kogeplader, varmluftovn, mikrobølgeovn samt opvaskemaskine.
Toilet og bad
Der er 1 badeværelse med bruser og 1 toilet.. Badekar.
Multimedier
I ferieboligen er der 1 TV. Radio. CD-afspiller. Der er mindst 4 danske kanaler. Mindst 4 tyske kanaler. 1-3 engelske kanaler. Der er trådløst internet til rådighed.
Værd at vide
Ingen udlejning til ungdomsgrupper, hvor alle er 15-25 år. En stejl trappe leder til kælder med bl.a. vaskemaskine.
Indretning
Sommerhuset egner sig til 6 personer. Ferieboligen er på 89 m² og er bygget i 1966. I 2012 gennemgik ferieboligen en delvis renovering. Det er tilladt at medbringe 2 husdyr. Ferieboligen er udstyret med 1 energivenlig luft til vand varmepumpe. Ferieboligen har vaskemaskine. Tørretumbler. Frysekapacitet på 40 liter.
Udenfor
Ferieboligen er beliggende på en 2500 m² stor naturgrund. Der er 275 m til havet. Nærmeste forretning er beliggende i en afstand af 1300 m. Til ferieboligen hører 80 m² terrasseareal. Der er redskabsrum.
Soveforhold
Der er i alt 3 soveværelser. Sovepladserne fordeler sig på: 4 sovepladser i dobbeltsenge. 2 sovepladser i køjeseng.
Køkken
Køkkenet er udstyret med 1 køleskab. Der er 3 keramiske kogeplader, varmluftovn, mikrobølgeovn samt opvaskemaskine.
Toilet og bad
Der er 1 badeværelse med bruser og 1 toilet.. Badekar.
Multimedier
I ferieboligen er der 1 TV. Radio. CD-afspiller. Der er mindst 4 danske kanaler. Mindst 4 tyske kanaler. 1-3 engelske kanaler. Der er trådløst internet til rådighed.
Værd at vide
Ingen udlejning til ungdomsgrupper, hvor alle er 15-25 år. En stejl trappe leder til kælder med bl.a. vaskemaskine.
Vores gæsteanmeldelser Eksterne anmeldelser
Faciliteter
-
Adgang til ferieboligen
-
Nøgleboks med kode
-
-
Bemærk
-
Ingen ungdomsgrupper efter anmodning
-
Rygning er forbudt
-
-
Indretning
-
Antal voksne inkl. 4-11 år6
-
Bebygget areal89 m²
-
Byggeår1966
-
Feriebolig
-
Frysekapacitet (antal liter)40
-
Husdyr2
-
Renoveringsår2012
-
Tørretumbler1
-
Varmepumpe
-
Varmepumpe luft til vand
-
Vaskemaskine1
-
-
Køkken
-
Antal keramiske kogeplader3
-
Køleskab1
-
Mikrobølgeovn1
-
Opvaskemaskine1
-
Varmluftovn1
-
-
Multimedier
-
> 3 danske kanaler
-
> 3 tyske kanaler
-
0-3 engelske kanaler
-
Antal tv'er1
-
CD afspiller
-
Radio
-
Trådløst internet
-
-
Soveforhold
-
Antal soveværelser3
-
Dobbeltseng (antal sovepladser)4
-
Køjeseng (antal sovepladser)2
-
-
Toilet og bad
-
Antal badeværelser1
-
Antal toiletter1
-
Badekar
-
Bruser
-
-
Udenfor
-
Butik1,3 km
-
Hav275 m
-
Natursted
-
Redskabsskur
-
Størrelse af grunden2500 m²
-
Terrasse80 m²
-
Miniferie
Der er begrænset mulighed for miniferie hele året, typisk uden for højsæsonen.
Priser og kalender
Kalender
Varighed
Pris
Periode
- Ankomst
- Afrejse
- Varighed
- 1 uge
Personer
Op til 6 personer
Bemærk
Ankomst er ikke valgt.