Sommerhus med havudsigt, spa og sauna
Sommerhus - 6 personer - Jørginesvej - Grønhøj - 9480 - Løkken
Alternative emner
Sommerhuse i nærheden (396)6 personer
Oversigt
Emne nr.: 121-12-0152
7 overnatninger
Fra
DKK 6.868,-
Valgfri rengøring: DKK 1.285,-
Hyggeligt sommerhus i Løkken med havudsigt, spa, sauna og stor terrasse tæt på Vesterhavet.
- Tilbyder miniferie Nej
- Afstand indkøb 400 m
- Spa Ja
- Sauna Ja
- Parabol/kabel TV Ja
- Brændeovn Ja
- Udsigt til vand Ja
- Vaskemaskine Ja
- Opvaskemaskine Ja
Beskrivelse
Sommerhus beliggende tilbagetrukket på en delvis kuperet grund i et roligt område tæt på stranden og Vesterhavet. Fra klitterne bag huset er det muligt at nyde udsigten over havet.
Indretning
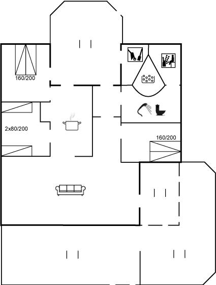
Sommerhuset egner sig til 6 personer samt 1 barn op til 3 år. Ferieboligen er på 102 m² og er bygget i 1995. Det er ikke tilladt at medbringe husdyr. Ferieboligen har vaskemaskine. Frysekapacitet på 70 liter. Der er desuden brændeovn. Til de små er der 1 stk. barnestol. Solarium.
Udenfor
Ferieboligen er beliggende på en 1924 m² stor naturgrund. Der er 350 m til havet. Nærmeste forretning er beliggende i en afstand af 400 m. Til ferieboligen hører 47 m² terrasseareal. Desuden er der 6 m² overdækket terrasse. Der er redskabsrum. Gynge. Sandkasse. Parkering ved ferieboligen.
Soveforhold
Der er i alt 3 soveværelser. Sovepladserne fordeler sig på: 4 sovepladser i dobbeltsenge. 2 sovepladser i enkeltsenge. Derudover er der 1 stk. barneseng.
Køkken
Køkkenet er udstyret med 1 køleskab. Der er 4 keramiske kogeplader, varmluftovn, mikrobølgeovn samt opvaskemaskine.
Toilet og bad
Der er 1 badeværelse med bruseniche og 1 toilet.. Der er gulvvarme på 1 badeværelse. I saunaen er der mulighed for afslapning.
Spa
Der er mulighed for afslapning i indendørs spa til 2 personer.
Multimedier
I ferieboligen er der 1 TV. Video. Radio. CD-afspiller. Der er mindst 4 danske kanaler. 1-3 svenske kanaler. 1-3 norske kanaler. Mindst 4 tyske kanaler. Der er trådløst internet til rådighed.
Værd at vide
Ingen udlejning til ungdomsgrupper, hvor alle er 15-25 år. Rygning ikke tilladt. Ved overtrædelse af forbuddet opkræves et gebyr på minimum DKK 3.000,-.
Indretning
Sommerhuset egner sig til 6 personer samt 1 barn op til 3 år. Ferieboligen er på 102 m² og er bygget i 1995. Det er ikke tilladt at medbringe husdyr. Ferieboligen har vaskemaskine. Frysekapacitet på 70 liter. Der er desuden brændeovn. Til de små er der 1 stk. barnestol. Solarium.
Udenfor
Ferieboligen er beliggende på en 1924 m² stor naturgrund. Der er 350 m til havet. Nærmeste forretning er beliggende i en afstand af 400 m. Til ferieboligen hører 47 m² terrasseareal. Desuden er der 6 m² overdækket terrasse. Der er redskabsrum. Gynge. Sandkasse. Parkering ved ferieboligen.
Soveforhold
Der er i alt 3 soveværelser. Sovepladserne fordeler sig på: 4 sovepladser i dobbeltsenge. 2 sovepladser i enkeltsenge. Derudover er der 1 stk. barneseng.
Køkken
Køkkenet er udstyret med 1 køleskab. Der er 4 keramiske kogeplader, varmluftovn, mikrobølgeovn samt opvaskemaskine.
Toilet og bad
Der er 1 badeværelse med bruseniche og 1 toilet.. Der er gulvvarme på 1 badeværelse. I saunaen er der mulighed for afslapning.
Spa
Der er mulighed for afslapning i indendørs spa til 2 personer.
Multimedier
I ferieboligen er der 1 TV. Video. Radio. CD-afspiller. Der er mindst 4 danske kanaler. 1-3 svenske kanaler. 1-3 norske kanaler. Mindst 4 tyske kanaler. Der er trådløst internet til rådighed.
Værd at vide
Ingen udlejning til ungdomsgrupper, hvor alle er 15-25 år. Rygning ikke tilladt. Ved overtrædelse af forbuddet opkræves et gebyr på minimum DKK 3.000,-.
Faciliteter
-
Adgang til ferieboligen
-
Nøgleboks med kode
-
-
Bemærk
-
Ingen håndværkere efter anmodning
-
Ingen ungdomsgrupper efter anmodning
-
Rygning er forbudt
-
-
Indretning
-
Antal børn (0-3 år)1
-
Antal voksne inkl. 4-11 år6
-
Bebygget areal102 m²
-
Brændeovn1
-
Byggeår1995
-
Feriebolig
-
Frysekapacitet (antal liter)70
-
Højstol1
-
Solarium
-
Vaskemaskine1
-
-
Køkken
-
Antal keramiske kogeplader4
-
Køleskab1
-
Mikrobølgeovn1
-
Opvaskemaskine1
-
Varmluftovn1
-
-
Multimedier
-
> 3 danske kanaler
-
> 3 tyske kanaler
-
0-3 norske kanaler
-
0-3 svenske kanaler
-
Antal tv'er1
-
CD afspiller
-
Radio
-
Trådløst internet
-
Video
-
-
Soveforhold
-
Antal soveværelser3
-
Barneseng1
-
Dobbeltseng (antal sovepladser)4
-
Enkeltseng (antal sovepladser)2
-
-
Spa
-
Indendørs spabad (antal personer)2
-
-
Toilet og bad
-
Antal badeværelser1
-
Antal toiletter1
-
Brusekabine
-
Gulvvarme1
-
Sauna
-
-
Udenfor
-
Butik400 m
-
gynge
-
Hav350 m
-
Natursted
-
Overdækket terrasse6 m²
-
Parkeringsplads ved huset
-
Redskabsskur
-
Sandkasse
-
Størrelse af grunden1924 m²
-
Terrasse47 m²
-
-
Udsigt
-
Havudsigt fra pladsen
-
Priser og kalender
Kalender
Varighed
Pris
Periode
- Ankomst
- Afrejse
- Varighed
- 1 uge
Personer
Op til 6 personer
Bemærk
Ankomst er ikke valgt.