Lyst sommerhus med spa og sauna ved Fjellerup

Sommerhus - 10 personer - Fløden - Fjellerup - 8585 - Glesborg

10 personer

Oversigt

Emne nr.: 125-8848
7 overnatninger
Fra DKK 5.938,-
Inkl. rengøring og forsikring
10 personer
Lyst sommerhus i Fjellerup Strand med spa, sauna og kort afstand til strand og natur.
Grundareal 1.213 m²
Boligareal 121 m²
Soverum 4
Badeværelser 2
Afstand vand 750 m
Highspeed internet Highspeed
Ikkeryger
Husdyr
  • Tilbyder miniferie Ja
  • Afstand indkøb 700 m
  • Spa Ja
  • Sauna Ja
  • Brændeovn Ja
  • Aircondition Ja
  • Vaskemaskine Ja
  • Opvaskemaskine Ja
  • Ladestander til elbil Ja
  • Energivenligt Ja

Beskrivelse

Velkommen indenfor

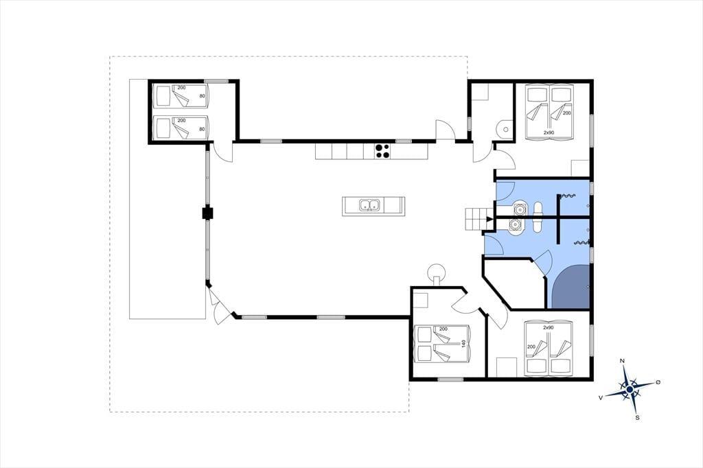
Et lyst og afslappende sommerhus, hvor der er højt til loftet og som er en god base for en ferie i nærværets tegn. Åbent køkken med halvmur til stue og spiseafdeling giver dig mulighed for at have hyggelige samtaler med familien, mens du laver lækker feriemad og nyder et godt glas vin. Du kan også følge med og heppe med dem som spiller bordfodbold i stuen. Når aftenen falder på, er det tid til en god bog eller et spil med børnene alt imens brændeovnen knitrer hyggeligt, Der er gitter til brændeovnen, så de små gæster ikke brænder sig. Fra stuen kan du gå direkte ud på den dejlige terrasse og til den dejlige have. 4 soveværelser - tre med dobbeltsenge og et med 2 enkeltsenge. De sidste sengepladser er på hemsen. 2 dejlige badeværelser - det ene med spa og sauna samt rum med vaskemaskine.

Nyd livet udenfor

Huset er omgivet af en fin have med stor græsplæne og beplantning i skel. Den delvist overdækkede terrasse er herlig og stedet, hvor rigtig kan nyde solen, mens børnene leget på græsplænen og hviner, når de gynger. Tænd også grillen og nyd de lune sommeraftener fri fra duggen. Tag også en morgen- eller aftendukkert i "bølgen blå" blot 750 meter væk. Nyd at have morgenmad med hjem til de andre eller snup en af de berømte isvafler.

Kom tæt på de lokale oplevelser

Fjellerup Strand er et gammelt fiskerleje, der ligger i et eftertragtet område langs kysten af Norddjursland, De lokale elsker at bo her og de deler gerne områdets herligheder med dig. Stranden er særligt børnevenlig med sit lave vand og bløde sandbund, ideel til leg og afslapning. Området omkring Fjellerup byder på en varieret og betagende natur med utallige stier og små veje, perfekte til vandre- og cykelture gennem det smukke landskab.

Kysten er et paradis for lystfiskere og tiltrækker også windsurfere, der nyder de optimale forhold. I nærheden af Fjellerup kan du udforske historiske seværdigheder som Mejlgård Slot og de imponerende stendysser ved Tustrup.

Det ideelle sommerhus ligger blot et kvarters kørsel fra Djurs Sommerland, Nordens største forlystelsespark, og kun en halv times kørsel fra Skandinavisk Dyrepark samt den hyggelige købstad Grenaa, hvor du kan besøge hajer, pingviner og andre spændende havdyr


Rumindretning

  • Soveværelse
    • Dobbeltseng - 2 x 90 x 200
  • Soveværelse
    • Enkelt seng - 80 x 200
    • Enkelt seng - 80 x 200
  • Soveværelse
    • Dobbeltseng - 2 x 90 x 200
  • Soveværelse
    • Dobbeltseng - 140 x 200
  • Badeværelse
  • Badeværelse
  • Stue
  • Bryggers
  • Sovehems
    • Enkelt madras - 90 x 200
    • Enkelt madras - 90 x 200
    • Enkelt madras
  • Køkken-alrum

Faciliteter

  • Hus Info

    • 2 x Bruser
    • 2 x WC
    • Antal etager i lejemålet
      1
    • Antal voksne
      10
    • Byggeår
      2008
    • Grundareal / Have
      1213 m²
    • Husareal
      121 m²
    • Indendørs spabad
    • Sauna
  • Afstande

    • Afstand golfbane
      10 km
    • Afstand hav
      750 m
    • Afstand indkøb / Helårsbutik
      700 m
    • Afstand kyst
      750 m
    • Afstand restaurant
      650 m
    • Afstand strand / Sand-/stenstrand
      750 m
    • Afstand svømmehal
      10 km
  • Energi / Opvarmning

    • 4 x Elvarme
    • Brændeovn
    • Varmepumpe / Med køl
  • Hårde hvidevarer

    • Elkedel
    • Emhætte
    • Fryser
    • Kaffemaskine
    • Komfur
      Glaskeramiske kogeplader
    • Køleskab
    • Mikroovn
    • Opvaskemaskine
    • Strygebræt
    • Vaskemaskine
  • Multimedier

    • Chromecast
      Du kan følge dit eget tv og streamingtjenester ved at bruge smart-tv'et i huset og din egen tablet..
    • Dansk tv
      Min.: Gratis DR-kanaler, TV2
    • Gratis Wi-Fi - Over 100 Mbit
    • Norsk TV
      Min.: NRK1
    • Svensk TV
      Min.: SVT1
    • TV
    • Tysk TV
      Min.: ZDF, ARD
  • Ekstra

    • Barnestol
    • Bordfodbold
    • Golfferie
  • Udenfor

    • Grill
      Kulgrill
    • Gynge
    • Havemøbler
    • Liggestole
      4
    • Overdækket terrasse
      8 m²
    • Parasol
      1
    • Parkering på grunden
    • Sandkasse
    • Åben terrasse
      20 m²
  • Diverse

    • 2 x Flise-/klinkegulv
    • 2 x Gulvvarme
    • 5 x Træ-/parketgulv
    • Åbent køkken
  • Regler

    • Husdyr ikke tilladt
    • Opladning af elbil tilladt / Lader til elbil forefindes (Type 2-stik, medbring kabel)
    • Rygning ikke tilladt
  • Pris inklusiv

    • Slutrengøring inkl.

Miniferie

Der er begrænset mulighed for miniferie hele året, typisk uden for højsæsonen.

Priser og kalender

Kalender

Ankomst
Forrige Næste
  • juni 2026
    mationtofr
    231234567
    24891011121314
    2515161718192021
    2622232425262728
    272930
    28
  • juli 2026
    mationtofr
    2712345
    286789101112
    2913141516171819
    3020212223242526
    312728293031
    32
   Se om emnet er ledigt på den valgte dato
Ledig
Optaget
   Ankomst mulig
Varighed
Personer

Pris

Periode
Ankomst
Afrejse
Varighed
1 uge
Personer
Ingen personer er valgt

Bemærk

Ankomst er ikke valgt.
Der er ikke valgt personer.
Aftale- og lejebetingelser