Moderne ferielejlighed nær Vesterhavet på Fanø

Sommerhus - 6 personer - Strandvejen - Fanø Bad - 6720 - Fanø

6 personer

Oversigt

Emne nr.: 328-146195
7 overnatninger
Fra DKK 5.043,-
Inkl. rengøring
Moderne ferielejlighed på Fanø med 3 soveværelser, 2 badeværelser og kort afstand til Vesterhavet.
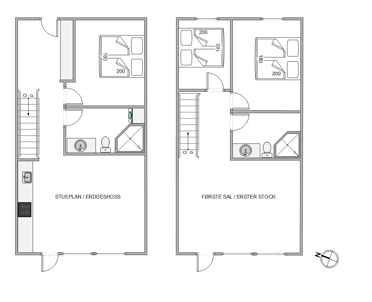
Boligareal 110 m²
Soverum 3
Badeværelser 2
Afstand vand 300 m
Internet
Ikkeryger
Husdyr
  • Tilbyder miniferie Nej
  • Afstand indkøb 1.200 m
  • Vaskemaskine Ja
  • Tørretumbler Ja
  • Opvaskemaskine Ja

Beskrivelse

Oplev en afslappende ferie på skønne Fanø i denne moderne ferielejlighed på hele 110 m2. Med ferieadresse på Strandvejen 44E bor I tæt på stranden, og her er plads til op til 6 personer. Den ideelle kombination af komfort og beliggenhed gør ferielejligheden til et oplagt valg til jeres næste ferie.

Moderne ferielejlighed i 2 etager

Ferielejligheden er opført i 2021, og indendørs finder I en hyggelig opholdsstue på førstesalen, indrettet med komfortable møbler og tv med danske kanaler. Her kan I slappe af i sofaen, se en god film eller bare nyde udsigten gennem de store vinduer. Fra stuen har I udgang til en overdækket altan, hvor morgenkaffen eller en stille stund med en god bog venter.

På førstesalen ligger også det ene af 2 moderne badeværelser samt 2 af de i alt 3 lyse soveværelser med dobbeltseng.

I stueplan ligger den åbne og veludstyrede køkkenafdeling. Her er både vinkøleskab, induktionskomfur, opvaskemaskine, mikroovn og en køle-/frysekombination. Alt, hvad I skal bruge til en hyggelig aften med madlavning og samvær. Ved spisebordet ved siden af køkkenet er der god plads til fælles måltider og måske et spil kort til et glas vin.

Delvist afskærmet terrasse til udeliv på Strandvejen 44E

Fra køkkenet har udgang til den delvist overdækkede og afskærmede terrasse. Her kan I nyde den friske luft i læ, hvad enten det er til en afslappende stund i havemøblerne eller en grillaften med mad tilberedt på gasgrillen. Solbadning og hyggelige udendørs måltider er oplagte muligheder her.

Oplevelser og aktiviteter på Fanø

Området omkring Fanø Bad byder på masser af spændende oplevelser. Kun 300 meter fra ferielejligheden finder I Vesterhavet, hvor I kan nyde bølgerne, tage en dukkert eller prøve kræfter med forskellige former for vandsport. Den unikke beliggenhed nær vandet giver jer desuden mulighed for at udforske den særlige natur i dette fredede område.

De charmerende landsbyer på øen og det lokale kunsthåndværk giver ekstra indblik i Fanøs kultur og historie. Dagligvarebutikker og andre indkøbsmuligheder ligger i en afstand af cirka 1,2 kilometer fra herfra.

Faciliteter

  • Opholdsrum

    • Gulv: Trælaminat
    • Gulvvarme
    • Fladskærms-TV
      1
    • Ekstra varmekilder
  • Soverum

    • Gulv: Trælaminat
    • Dobbeltsenge
      3
    • Sovepladser
      6
    • Soverum
      3
    • 1. soverum/sengestørrelser
      180X200
    • 2. soverum/sengestørrelser
      180X200
    • 3. soverum/sengestørrelser
      160x200
  • Køkken

    • Komfur: Induktion m. ovn
    • Køleskab
    • Opvaskemaskine
    • Mikroovn
    • Separat fryser /L
      60
  • Baderum

    • Gulvvarme bad
    • Antal badeværelser
      2
  • Objektinfo - Inde

    • Areal: Hus m²
      110
    • Byggeår
      2021
    • Ikke ryger hus
    • Gratis Internet
    • Personantal
      6
    • Danske TV-kanaler (Betalingskanaler)
    • Tyske tv-programmer
    • Tørretumbler
    • Varme: Fjernvarme
    • Vaskemaskine
  • Objektinfo - ude

    • Afstand i meter: Hav
      300 m
    • Afstand i meter: Indkøb
      1,2 km
    • Havemøbler
    • Solvogne
    • Terrasse: Afskærmet
    • Terrasse: Overdækket
    • Redskabsrum
    • Naturgrund
    • Affald hentes:
      Fælles
    • Affald: Helårstømning
    • Skraldespand - Liter
      240
    • Gasgrill
  • Koncepter

    • Skiftedag: Lørdag
    • Varme: 24 timer f. ankomst
  • Miniferie

    • Ja, tak - tillad miniferie

Priser og kalender

Kalender

Ankomst
Næste
  • februar 2026
    mationtofr
    51
    62345678
    79101112131415
    816171819202122
    9232425262728
    10
  • marts 2026
    mationtofr
    91
    102345678
    119101112131415
    1216171819202122
    1323242526272829
    143031
   Se om emnet er ledigt på den valgte dato
Ledig
Optaget
   Ankomst mulig
Varighed

Pris

Periode
Ankomst
Afrejse
Varighed
1 uge
Personer
Op til 6 personer

Bemærk

Ankomst er ikke valgt.
Aftale- og lejebetingelser