Hyggeligt sommerhus med vildmarksbad i Bork Havn

Sommerhus - 6 personer - Husfold - Bork Havn - 6893 - Hemmet Strand

6 personer

Oversigt

Emne nr.: 074-C11555
7 overnatninger
Fra DKK 4.230,-
Inkl. rengøring, forsikring og forbrug
6 personer
Stort sommerhus i rolige Bork Havn med vildmarksbad og bordfodbold, tæt på Ringkøbing Fjord og byens faciliteter.
Grundareal 1.000 m²
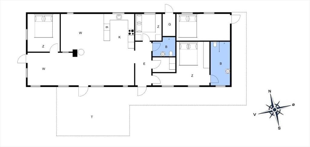
Boligareal 130 m²
Soverum 3
Badeværelser 2
Afstand vand 300 m
Internet
Ikkeryger
Husdyr 2
  • Tilbyder miniferie Ja
  • Afstand indkøb 200 m
  • Parabol/kabel TV Ja
  • Brændeovn Ja
  • Aktivitetsrum Ja
  • Aircondition Ja
  • Vaskemaskine Ja
  • Tørretumbler Ja
  • Opvaskemaskine Ja
  • Energivenligt Ja
  • Inklusiv forbrug Ja

Beskrivelse

Dette store sommerhus byder på mange dejlige detaljer – inklusiv et bordfodboldbord, brændeovn i stuen og et vildmarksbad i den frodige have. Adressen er også værd at bemærke, for huset ligger på en rolig vej i Bork Havn i kort gåafstand fra bymidten, havnen og Ringkøbing Fjord.

Indretning

Det 130 m2 store sommerhus er blevet renoveret i 2018, og både ude og inde fremstår det pænt og velholdt. Planløsningen er god til seks personer, for I har tre soveværelser og to badeværelser at gøre godt med. Soveværelserne er alle udstyret med dobbeltseng, og på badeværelserne er der bruseniche og gulvvarme. Stuen er et kæmpe opholdsrum med integreret køkken, masseovn og flere hyggelige opholdspladser. Det er et rum, der inviterer til hygge og afslapning i sofaerne eller omkring spisebordet – og skal der være mere gang i den, er der mulighed for at tage et slag bordfodbold i aktivitetsrummet.

Udendørs

Uanset om I er i humør til leg eller tilbagelænet afslapning, kan feriehyggen også sagtens udspille sig under åben himmel. Den 1000 m2 store grund har god plads til at spille bold og lege fangeleg på græsplænen, og der er både åbne og overdækkede terrasseområder. Om aftenen kan I samles rundt om bålstedet eller forkæle jer selv med en tur i det træfyrede vildmarksbad under stjernehimlen.

Beliggenhed

Sommerhuset ligger i rolige og familievenlige omgivelser på den lukkede vej Husfold. Ringkøbing Fjord venter kun 300 meter væk, så I kan hurtigt smutte ud til kysten for at bade ved den lavvandede strand, løbe en tur på naturstien eller bare nyde udsigten over vandet. Bork Havns købmand ligger dejligt tæt på sommerhuset, og bymidten byder også på et lysstøberi, restauranter og meget mere – inklusiv Ferieparters kontor, som står for cykeludlejning og for den lokale minigolfbane. Byens charmerende havn er et hyggeligt tilholdssted, og for de aktive typer er det skønt at have surfstranden lige i nærheden.

Vores gæsteanmeldelser Eksterne anmeldelser

4,0
Baseret på 1 vurdering
Vurderet d. 21-07-2024
5
(0)
4
(1)
3
(0)
2
(0)
1
(0)
Kommentarer
1 vurdering har kommentar på dansk.
4 voksne 1 barn 1 husdyr 7 overnatninger 2024 juli
Kun frokosttallerkener. Meget af køkkenudstyret kan godt trænge til fornyelse.

Faciliteter

  • Hus Info

    • 2 x Bruser
    • 2 x WC
    • Antal husdyr
      2
    • Antal voksne
      6
    • Byggeår
      1967
    • Grundareal
      1000 m²
    • Husareal
      130 m²
    • Renoveringsår
      2018
    • Vildmarksbad
  • Afstande

    • Afstand fjord
      300 m
    • Afstand golfbane
      20 km
    • Afstand indkøb / Sommerbutik
      200 m
    • Afstand restaurant
      200 m
    • Afstand strand
      300 m
  • Energi / Opvarmning

    • 4 x Elvarme
    • Brændeovn
    • Varmepumpe / Med køl
  • Hårde hvidevarer

    • Elkedel
    • Emhætte
    • Fryser
      100
    • Kaffemaskine
    • Kogeplader
    • Køleskab
    • Mikroovn
    • Opvaskemaskine
    • Ovn
    • Tørretumbler
    • Vaskemaskine
  • Multimedier

    • Chromecast
    • Dansk tv
    • Kabel-TV
    • Spillekonsol
      Playstation 3
    • TV
    • Tysk TV
    • Wi-FI
  • Ekstra

    • Aktivitetshus
    • Barneseng
    • Barnestol
    • Bordfodbold
  • Udenfor

    • Delvis overdækket terrasse
      50 m²
    • Grill
    • Havemøbler
    • Liggestole
      2
    • Parkering på grunden
  • Diverse

    • 2 x Gulvvarme
    • Dobbeltseng 1X140X200
    • Dobbeltseng 1x180x200
    • Dobbeltseng 2x90x200
  • Regler

    • Opladning af elbil ikke tilladt
    • Rygning ikke tilladt
  • Pris inklusiv

    • Forbrug inkl.
    • Opvarmning inkl.
    • Slutrengøring inkl.
    • Strøm inkl.
    • Vand inkl.
  • GAMMEL

    • Energisparehus

Miniferie

Der er begrænset mulighed for miniferie hele året, typisk uden for højsæsonen.

Priser og kalender

Kalender

Ankomst
Næste
   Se om emnet er ledigt på den valgte dato
Ledig
Optaget
   Ankomst mulig
Varighed
Personer

Pris

Periode
Ankomst
Afrejse
Varighed
1 uge
Personer
Ingen personer er valgt

Bemærk

Ankomst er ikke valgt.
Der er ikke valgt personer.
Aftale- og lejebetingelser