Sommerhus - 8 personer - Störtebekerweg - 17459 - Zempin

8 personer

Oversigt

Emne nr.: 552-189322
7 overnatninger
Fra DKK 16.461,-
8 voksne 0 børn
Boligareal 220 m²
Soverum 5
Badeværelser 3
Afstand vand 700 m
Internet
Ikkeryger
Husdyr 1
  • Tilbyder miniferie Ja
  • Afstand indkøb 2.500 m
  • Sauna Ja
  • Opvaskemaskine Ja

Beskrivelse

Beskrivelsen foreligger desværre ikke på Dansk. Se teksten på Tysk nedenfor, eller se den maskinoversatte tekst på Dansk.
Willkommen im Ferienhaus "Inselliebe" in Zempin auf Usedom!

Die Inselliebe ist durch ihre Größe und Ausstattung für große Familien, Freundesgruppen oder Menschen, die sich einfach den Luxus von viel Raum gönnen möchten, bestens geeignet. Das Haus mit 5 Schlafzimmer und 3 Bäder ist für 8 Erwachsene ausgestattet. Den wunderschönen Zempiner Ostseestrand erreicht man nach ca. 700 m teilweise entlang der Promenade durch den Küstenwald. Die Ausstattung ist insgesamt sehr hochwertig und verfügt über alles, was man für einen schönen Urlaub braucht.

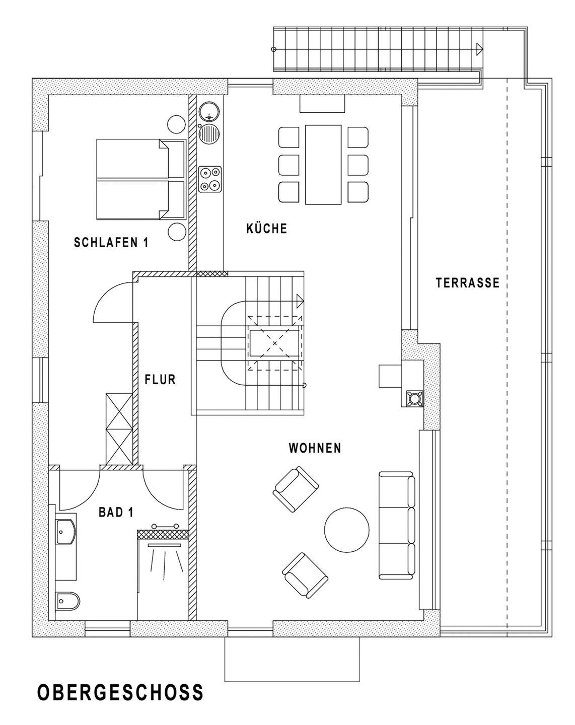
Die Inselliebe ist durch ihre Größe und Ausstattung für große Familien, Freundesgruppen oder Menschen, die sich einfach den Luxus von viel Raum gönnen möchten, bestens geeignet. Das Haus ist für 8 Erwachsene ausgestattet. Den wunderschönen Zempiner Ostseestrand erreicht man nach ca. 700 m teilweise entlang der Promenade durch den Küstenwald. In der Inselliebe kann man sich fast schon über schlechtes Wetter freuen, denn ein gemütlicher Tag in der Sauna, in der herrlichen Doppelbadewanne, vorm Kamin mit einem guten Buch, großen TV`s und Bosebox, ist super erholsam. Raumaufteilung: Erdgeschoss: - 1 Schlafzimmer mit einem Boxspringbett (180x200), TV - 1 Schlafzimmer mit 2 Einzelbetten (90 x 200) - 2 Schlafzimmer mit Boxspringbetten als Einzelzimmer (160 x 200) - 1 Wellnessbad: Sauna, Doppelbadewanne, Walk-in-Dusche, Zugang zur blickgeschützten Terrasse (nach dem Saunagang sehr angenehm) - 1 komfortables Duschbad Obergeschoss: - 1 Schlafzimmer mit einem 180x200 Boxspringbett und Arbeitsplatz mit LAN-Anschluss, TV - 1 großes Duschbad - offener Wohn-Ess-Koch-Bereich mit Zugang zum großen Balkon und Treppe zur Gartenebene mit Terrasse, TV, Bosebox, Kamin. Die Ausstattung ist insgesamt sehr hochwertig und verfügt über alles, was man für einen schönen Urlaub braucht: W-LAN, TV, Spülmaschine, Waschmaschine, Trockner, Induktionsherd, Kaffeevollautomat, Föhn, Fußbodenheizung, Kamin, Sauna, Grill....

Vores gæsteanmeldelser Eksterne anmeldelser

Ingen gæsteanmeldelser
4,9
28 eksterne anmeldelser
5,0
november 2025
5,0
oktober 2025
Generel:
Wir haben uns sehr wohl gefühlt. Wunderbares Haus und sehr schöne Aufteilung. Was uns auch positiv aufgefallen ist, dass auch an die Vierbeiner gedacht wurde (Wasser-Fressnäpfe). Wir bringen immer alles mit. Wir würden gerne wieder kommen.
5,0
oktober 2025
4,8
august 2025
Generel:
Tolles, hochwertig ausgestattetes Ferienhaus. Gemütliche Sonnenterasse zum Entspannen. Küche ist mit allem was man so braucht ausgestattet. Den Kindern haben besonders die beiden Schaukeln (Hängesessel) im Haus gefallen. Uns hat das Haus sehr gefallen. Preis-Leistung stimmt.
4,8
juli 2025
Generel:
Tolles Ferienhaus der gehobenen Klasse. Sauber, liebevoll eingerichtet und ruhig gelegen. Die Einfahrt erfordert allerdings bei großen Fahrzeugen fahrerisches Können. Wir kommen gern wieder. Auch mit myUsedom als Vermittler hat alles super geklappt, sehr freundliche und hilfsbereite Mitarbeiter.
4,6
juni 2025
Generel:
Wir haben in der Villa Inselliebe ein langes Wochenende mit der Familie verbracht und es war einfach toll! Die Einrichtung und das Design laden zum Wohlfühlen und Verweilen ein. Auch bei tristen Wetter genießt man in einer so schönen Unterkunft den Urlaub und kann auch schnell zum Strand, sobald die Sonne sich blicken lässt. Uns hat es sehr gut gefallen! Jederzeit wieder.
4,8
maj 2025
Generel:
Immer wieder gerne.
4,6
april 2025
Generel:
Ein wirkliches tolles Haus!
5,0
5,0
Generel:
Hallo, wir haben uns sehr wohlgefühlt. Die Ausstattung war sensationell. Wir kommen sicher noch einmal wieder. Ein paar Anregungen haben wir trotzdem. Es fehlten ein Stöpsel und Abtropfgestell, um Gläser per Hand abzuwaschen. Das große Licht war ein wenig zu hell. In den Schlafzimmern fehlte in manchen ein Leselicht an beiden Betten, in manchen das Stimmungslicht. Man bräuchte generell beides. An der Couch wäre auch ein Leselicht super. Das große Licht war einfach zu ungemütlich. Die Sauna ließ sich nicht nach Anleitung bedienen bzw. war es Zufall, dass wir die anbekommen haben. Aber das sind nur Kleinigkeiten im Vergleich zum Gesamtpaket. Viele Grüße
5,0
5,0
5,0
Generel:
Sehr zu empfehlen, sauber und modern eingerichtet
5,0
5,0
5,0
5,0
Generel:
Sehr liebevoll gestaltetes und gut durchdachtes Haus.
5,0
Generel:
Ein wirklich tolles Haus (großzügig, hell und luftig). Es ist so liebevoll eingerichtet, man fühlt sich sofort wohl. Die Ausstattung ist perfekt. Es ist einfach alles vorhanden.
5,0
Generel:
wunderschönes Haus mit liebevoller Einrichtung, alles da was man braucht. dass wir mit 5 Hunden anreisen durften, ist ein riesiges Plus. Schlüsselübergabe unkompliziert, alles super! gut wäre gewesen, zu wissen, dass und wann der Hausmeisterdienst die Mülltonne holt - wären die Hunde in der Zeit im Garten gewesen, hätte das ungut sein können. Das ist aber auch der einzige Kritikpunkt.
5,0
4,8
5,0
5,0
5,0
5,0
5,0
5,0
Generel:
Ein fantastisches Haus, super Service , alles einfach toll. Waren echt überwältigt . Kommen bestimmt wieder
5,0

Faciliteter

  • Afstand

    • Afstand indkøb
      2,5 km
    • LakeDistance
      1000 km
    • Restaurant afstand
      200 m
    • Strandafstand
      700 m
    • Sø afstand
      700 m
  • Aktiviteter

    • Cykling
    • Vandreture
    • Wellness
  • Badeværelse

    • Badekar
    • Badeværelse vindue
    • Bruseantal
      3
    • Bruser
    • Håndklæder
    • Håndvask
    • Hårtørrer
    • Tørretumbler
    • WC
  • Grundlæggende

    • Byggeår
      2019
    • Børn velkomne
    • Ikke-ryger
    • Kvadratmeter
      220 m²
    • Værelser
      6
  • Hus

    • Dobbeltsenge
      2
    • Enkeltsenge
      2
    • Familie
    • Fireside
    • Fritliggende
    • Garderobe
    • Internet
    • Komfur
    • Lounge siddepladser
    • Lukket grund
    • Luksus
    • Lænestol
    • Makeup spejl
    • Oprindeligt udstyret
    • Radiator
    • Røgalarm
    • Sauna
    • Senge
      8
    • Sengetøj
    • Sikkerheds boks
    • Skraldespand
    • Skrivebord
    • Skænk
    • Sofa
    • Spejl
    • Spisebord
    • Spisepladser
    • Strygejern
    • Stue
    • Støvsuger
    • Terrasse
    • TV
    • Varmt vand
    • Vaskemaskine
    • WiFi
  • Køkken

    • Elkedel
    • Fryser
    • Kaffemaskine
    • Køkken
    • Køkkenredskaber
    • Køleskab
    • Opvask
    • Opvaskemaskine
    • Ovn
    • Toaster
  • Udendørs

    • Antal parkeringspladser
      2
    • Gril
    • Have
    • Havemøbler
    • Privat P-plads
    • Terrasse

Miniferie

Der er begrænset mulighed for miniferie hele året, typisk uden for højsæsonen.

Priser og kalender

Kalender

Ankomst
Forrige Næste
  • februar 2026
    mationtofr
    51
    62345678
    79101112131415
    816171819202122
    9232425262728
    10
  • marts 2026
    mationtofr
    91
    102345678
    119101112131415
    1216171819202122
    1323242526272829
    143031
   Se om emnet er ledigt på den valgte dato
Ledig
Optaget
   Ankomst mulig
Varighed
Personer

Pris

Periode
Ankomst
Afrejse
Varighed
1 uge
Personer
Ingen personer er valgt

Bemærk

Ankomst er ikke valgt.
Der er ikke valgt personer.
Aftale- og lejebetingelser