Sommerhus - 8 personer - Dorfstraße - 18317 - Saal / Hessenburg
Alternative emner
Sommerhuse i nærheden (13)8 personer
Oversigt
Emne nr.: 530-118597
7 overnatninger
Fra
DKK 6.453,-
8
personer
- Tilbyder miniferie Ja
- Afstand indkøb 11 km
- Sauna Ja
- Parabol/kabel TV Ja
- Brændeovn Ja
- Vaskemaskine Ja
- Tørretumbler Ja
- Opvaskemaskine Ja
- Energivenligt Ja
Beskrivelse
Beskrivelsen foreligger desværre ikke på Dansk. Se teksten på Tysk nedenfor, eller se den maskinoversatte tekst på Dansk.
Ferienhaus Tüdelnest
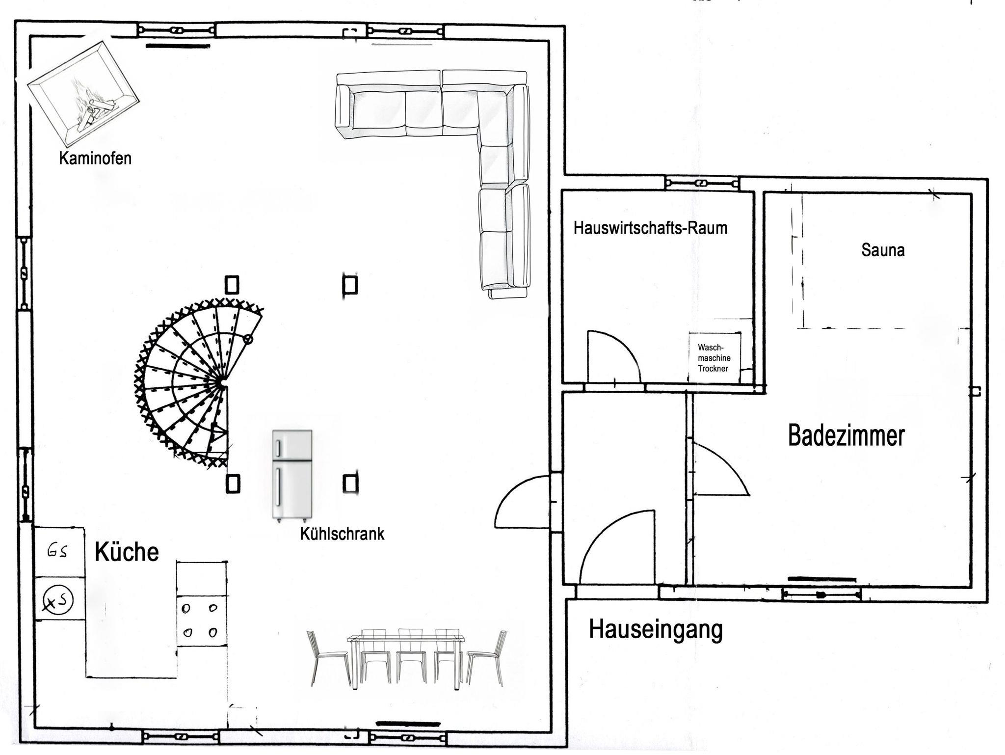
Das Ferienhaus Tüdelnest liegt ruhig und idyllisch im Ortsteil Hessenburg der Gemeinde Saal, ein perfekter Ort für alle, die entspannte Urlaubstage in ländlicher Umgebung genießen möchten. Auf großzügigen 140 m² mit 3 Schlafzimmern, bietet das liebevoll eingerichtete Haus Platz für bis zu 8 Personen und lädt mit viel Charme und einer durchdachten Ausstattung zum Wohlfühlen ein. Der offene Wohnbereich im Erdgeschoss bildet das Herzstück des Hauses. Hier kannst du es dir in der Sitzecke mit Sofa, Sesseln und Flachbild-TV gemütlich machen oder den Abend am knisternden Kamin ausklingen lassen. Direkt angrenzend befindet sich der große Esstisch, ideal für gemeinsame Mahlzeiten oder gesellige Spieleabende. Eine Auswahl an Spielen ist ebenfalls vorhanden. Die Küche ist modern und bestens ausgestattet - vom großen Kühl-Gefrierschrank über Kaffeemaschinen und Mikrowelle bis hin zur Heißluftfritteuse und Raclette-Gerät ist alles da, was das Kochherz begehrt. Im angrenzenden Hauswirtschaftsraum findest du Waschmaschine, Trockner sowie viele praktische Alltagshelfer, von Wäscheklammern bis zum Boule-Spiel.
Das Bad im Erdgeschoss verfügt über eine ebenerdige Dusche, WC, Waschbecken, Fußbodenheizung und eine kleine Sauna, ideal zum Entspannen nach einem Ausflug. Eine bequeme Wendeltreppe führt ins Obergeschoss, wo drei individuell gestaltete Schlafzimmer und ein zusätzliches Gäste-WC auf dich warten.
Auch draußen lädt das Tüdelnest zum Verweilen ein: Auf der Terrasse findest du Gartenmöbel und einen Grill, der perfekte Platz, um die Abendsonne zu genießen. Der weitläufige Garten darf selbstverständlich mitgenutzt werden, ob zum Sonnen, Spielen oder einfach zum Entspannen. Das Grundstück ist nicht umzäunt, sondern durch eine Hecke optisch abgegrenzt. PKWs können direkt vor dem Haus auf der Grünfläche parken.
Bitte beachte: Bettwäsche und Handtücher sind mitzubringen. Eine Ausstattung für Kleinkinder ist nicht vorhanden, ebenso sind Haustiere im Tüdelnest leider nicht erlaubt.
Das Bad im Erdgeschoss verfügt über eine ebenerdige Dusche, WC, Waschbecken, Fußbodenheizung und eine kleine Sauna, ideal zum Entspannen nach einem Ausflug. Eine bequeme Wendeltreppe führt ins Obergeschoss, wo drei individuell gestaltete Schlafzimmer und ein zusätzliches Gäste-WC auf dich warten.
Auch draußen lädt das Tüdelnest zum Verweilen ein: Auf der Terrasse findest du Gartenmöbel und einen Grill, der perfekte Platz, um die Abendsonne zu genießen. Der weitläufige Garten darf selbstverständlich mitgenutzt werden, ob zum Sonnen, Spielen oder einfach zum Entspannen. Das Grundstück ist nicht umzäunt, sondern durch eine Hecke optisch abgegrenzt. PKWs können direkt vor dem Haus auf der Grünfläche parken.
Bitte beachte: Bettwäsche und Handtücher sind mitzubringen. Eine Ausstattung für Kleinkinder ist nicht vorhanden, ebenso sind Haustiere im Tüdelnest leider nicht erlaubt.
Das Ferienhauses Tüdelnest erwartet bis zu 8 Personen mit seiner hellen und freundlichen Atmosphäre - perfekt für einen Urlaub mit Familie oder Freunden. Im Erdgeschoss bildet der großzügige, offene Wohnbereich das Herzstück des Hauses. Die gemütliche Sitzecke mit Sofa, Sesseln und Flachbild-TV lädt zum Ausruhen ein, besonders wenn der Kamin für angenehme Wärme sorgt und den Raum in ein wohliges Licht taucht. Direkt angeschlossen befindet sich der große Essbereich mit ausziehbarem Tisch - ideal für gemeinsame Mahlzeiten oder Spieleabende. Eine kleine Spielesammlung steht ebenfalls bereit. Die offene Küche ist umfangreich ausgestattet und lässt kaum Wünsche offen. Neben einem großen Kühl- und Gefrierschrank und einem Herd findest du eine Mikrowelle, Kaffeemaschinen, Wasserkocher, Toaster, Heißluftfritteuse, ein Raclette-Set sowie reichlich Geschirr und Kochutensilien.
Ebenfalls im Erdgeschoss liegt das moderne Badezimmer mit ebenerdiger Dusche, WC, Waschbecken, Fußbodenheizung und einer kleinen Sauna. Ein Hauswirtschaftsraum ergänzt das Raumangebot mit Waschmaschine, Trockner und vielen nützlichen Dingen wie Wäscheklammern, Verlängerungskabel, Bügelbrett oder sogar einem Boule-Spiel. Über eine bequeme Wendeltreppe gelangst du in das Obergeschoss, wo dich drei individuell gestaltete Schlafzimmer und ein separates Gäste-WC erwarten. Das Sandzimmer ist mit einem Doppelbett (160x200, getrennte Matratzen) und einem zusätzlichen Schlafsofa (80x200) ausgestattet. Im Segelzimmer findest du ein Doppelbett (160x200, durchgehende Matratze) sowie ein weiteres Schlafsofa (80x200). Das Marinezimmer am Ende des Flurs ist etwas kompakter, aber liebevoll eingerichtet, mit einem Doppelbett (180x200, getrennte Matratzen).
Die Terrasse mit gemütlichen Sitzmöbeln und Grill lädt zu entspannten Stunden im Freien ein, während der weitläufige Garten rund ums Haus viel Raum zum Sonnen, Spielen oder einfach Abschalten bietet. Umgeben von Hecken und ländlicher Ruhe ist hier schnell der Alltag vergessen.
Ebenfalls im Erdgeschoss liegt das moderne Badezimmer mit ebenerdiger Dusche, WC, Waschbecken, Fußbodenheizung und einer kleinen Sauna. Ein Hauswirtschaftsraum ergänzt das Raumangebot mit Waschmaschine, Trockner und vielen nützlichen Dingen wie Wäscheklammern, Verlängerungskabel, Bügelbrett oder sogar einem Boule-Spiel. Über eine bequeme Wendeltreppe gelangst du in das Obergeschoss, wo dich drei individuell gestaltete Schlafzimmer und ein separates Gäste-WC erwarten. Das Sandzimmer ist mit einem Doppelbett (160x200, getrennte Matratzen) und einem zusätzlichen Schlafsofa (80x200) ausgestattet. Im Segelzimmer findest du ein Doppelbett (160x200, durchgehende Matratze) sowie ein weiteres Schlafsofa (80x200). Das Marinezimmer am Ende des Flurs ist etwas kompakter, aber liebevoll eingerichtet, mit einem Doppelbett (180x200, getrennte Matratzen).
Die Terrasse mit gemütlichen Sitzmöbeln und Grill lädt zu entspannten Stunden im Freien ein, während der weitläufige Garten rund ums Haus viel Raum zum Sonnen, Spielen oder einfach Abschalten bietet. Umgeben von Hecken und ländlicher Ruhe ist hier schnell der Alltag vergessen.
Vores gæsteanmeldelser Eksterne anmeldelser
Faciliteter
-
Afstande
-
Til (kur)parken/skoven100 m
-
Til badepladsen/vandmassen3 km
-
Til bageren11 km
-
Til busstoppestedet500 m
-
Til centrum200 m
-
Til cykelstien3 km
-
Til de termiske bade17 km
-
Til forlystelsesparken25 km
-
Til golfbanen22 km
-
Til lufthavnen67 km
-
Til lægen3,9 km
-
Til motorvejen40 km
-
Til pengeautomaten/banken8 km
-
Til restauranten15 km
-
Til stranden25 km
-
Til supermarkedet11 km
-
Til svømme-/sjovpoolen18 km
-
Til sygehuset/klinikken17 km
-
Til togstationen11 km
-
Til turistinformationen17 km
-
Til vandrestien150 m
-
-
Børnefaciliteter
-
Familievenlig
-
-
Grundlæggende faciliteter
-
Byggeår2002
-
Størrelse140 m²
-
År renoveret2025
-
-
Indkvartering Faciliteter
-
Energibesparende belysning
-
Ikke-ryger hus
-
Internet i det offentlige område
-
Kontaktløs ind-/udtjekning
-
Tilgængelig med offentlig transport
-
Vandrer venlig
-
Velegnet til montører
-
-
Omgivende faciliteter
-
Have til brug
-
Parkeringsplads
-
Siddeplads i haven
-
-
Servicefaciliteter
-
Bad / WC
-
Bad/toilet
-
Brandslukker
-
Dobbeltseng
-
Dyr ikke tilladt
-
Flere soveværelser
-
Gæstetoilet
-
Hårtørrer
-
Ikke-rygere
-
Internet - WiFi
-
Kabel/Sat
-
Kaffemaskine
-
Køkken (åbent)
-
Køleskab
-
Mikroovn
-
Mulighed for fryser
-
Opvarmet
-
Opvaskemaskine
-
Ovn
-
Pejs/brændovn
-
Røgalarm
-
Sauna
-
Separat ejendom
-
Sofa seng
-
Sæbe
-
Terrasse
-
Toaster
-
Toiletpapir
-
TV
-
TV - fladskærm
-
Tæppebelagt gulv
-
Tørretumbler
-
Vandvarmer
-
Vaskemaskine
-
Miniferie
Der er mulighed for miniferie hele året.
Priser og kalender
Kalender
Varighed
Personer
Pris
Periode
- Ankomst
- Afrejse
- Varighed
- 1 uge
Personer
Ingen personer er valgt
Bemærk
Ankomst er ikke valgt.
Der er ikke valgt personer.