Ferielejlighed - 2 personer - Strandstraße - 18225 - Ostseebad Kühlungsborn

2 personer

Oversigt

Emne nr.: 552-135728
7 overnatninger
Fra DKK 3.889,-
2 voksne 0 børn
Boligareal 40 m²
Soverum 1
Badeværelser 1
Afstand vand 350 m
Internet
Ikkeryger
Husdyr
  • Tilbyder miniferie Ja

Beskrivelse

Beskrivelsen foreligger desværre ikke på Dansk. Se teksten på Tysk nedenfor, eller se den maskinoversatte tekst på Dansk.
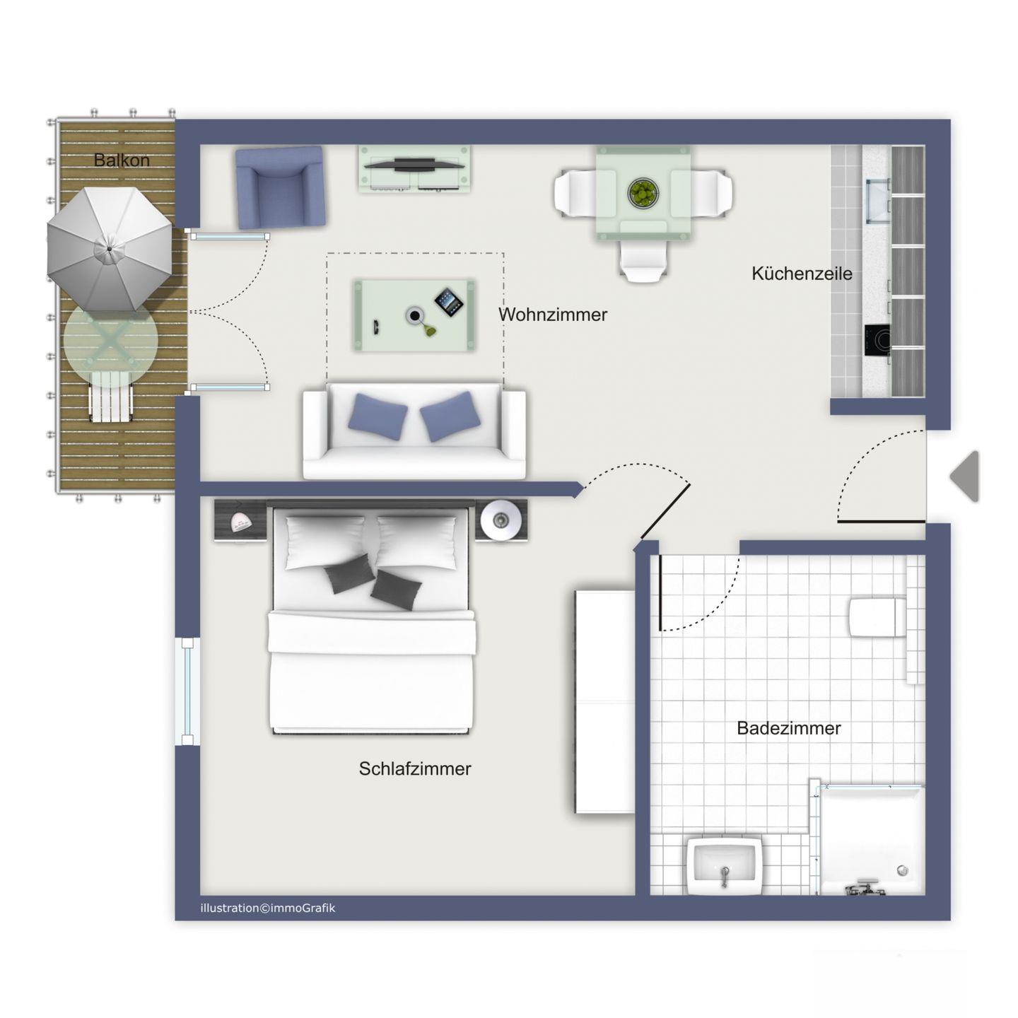
Strandstraße 32 Wohnung 11

Die Ferienwohnung Nr. 11 in der zentralen Ferienanlage Strandstraße 32 in Kühlungsborn ist eine 2-Zimmer-Wohnung für bis zu 2 Personen. Die Wohnung liegt im 1. Obergeschoss und verfügt über einen Balkon.

Die Ferienwohnung Nr. 11 in der Ferienanlage „Strandstraße 32“ ist eine 2-Zimmer-Ferienwohnung für bis zu 2 Personen. Die Wohnung Nr. 11 befindet sich in der beliebten und zentral gelegenen Anlage "Strandstraße 32" im ersten Obergeschoss. Hier hast du auf ca. 40 m² ausreichend Platz. Die Ferienwohnung im Ostseebad Kühlungsborn teilt sich in einen Wohnbereich mit Küchenzeile, ein Duschbad und ein Schlafzimmer auf. Auf dem überdachten Balkon kannst du gemütliche Stunden verbringen. Vom Strand bist du hier nur etwa 350 Meter entfernt. Im Wohnraum stehen dir ein Sofa und ein Sessel zur Verfügung. Zur Unterhaltung gibt es außerdem eine Sammlung an Büchern, ein Telefon, eine Stereoanlage und einen Fernseher. Die angrenzende Küchenzeile verfügt über 2-Cerankochfelder, einen Kühlschrank mit Gefrierfach, eine Mikrowelle, eine Kaffeemaschine, einen Wasserkocher und einen Toaster. Gleich nebenan kannst du im Schlafzimmer auf dem Doppelbett entspannen. Im Kleiderschrank gibt es ausreichend Stauraum für deine Reiseutensilien. Verdunkle das Zimmer mit Hilfe von Vorhängen. Das Bad der Ferienwohnung ist innenliegend. Hier stehen dir eine Dusche, ein WC, ein Waschbecken, ein Föhn und ein großer Spiegel zur Verfügung. Die gesamte Wohnung ist mit Design-Fußbodenbelag ausgelegt. Nur in den Nassbereichen gibt es einen Fliesenboden. Liebe Gäste, es handelt sich um eine Nichtraucher-Wohnung. Bitte habe auch Verständnis, dass Haustiere in dieser Ferienwohnung nicht erwünscht sind. Deinen PKW kannst du in der Tiefgarage auf dem Stellplatz Nr. 11 parken (max. Höhe 1,50 m; für Kombis nicht geeignet!). Fahrräder können in einem Fahrradschuppen sicher abgestellt werden. Eine Waschmaschine und ein Trockner (Münzautomaten) stehen in einem separaten Raum zur Verfügung. Information zur Buchung: Im Mietpreis sind Nebenkosten wie Strom, Wasser und Heizungskosten enthalten. Bettwäsche und Handtücher sind nicht inklusive. Du kannst sie bei uns gegen Gebühr ausleihen (ohne Beziehen).

Raumaufteilung

  • Schlafzimmer, 2 Personen
    • Verdunklungsvorhänge, Kleiderschrank
    • Doppelbett (Offenes Fußteil)

Vores gæsteanmeldelser Eksterne anmeldelser

Ingen gæsteanmeldelser
4,4
44 eksterne anmeldelser
5,0
juli 2025
Generel:
Saubere & gepflegte Unterkunft, in hervorragender Lage.
5,0
juli 2025
Generel:
Zentrale, ruhige Lage.
4,0
juli 2025
4,0
juni 2025
5,0
juni 2025
Generel:
Sehr schöne Ferienwohnung, schöne und gemütliche Einrichtung, ruhige Lage aber doch sehr zentral in unmittelbarer Nähe zur Seebrücke und vielen Restaurants.
5,0
april 2025
Generel:
Eine sehr schöne Wohnung. Die Lage ist top. Die Ostsee ist nur ein paar Meter entfernt.
5,0
februar 2025
Generel:
Schöne Wohnung für ein bis zwei Personen. Ruhige Lage.
5,0
oktober 2024
5,0
september 2024
Generel:
Super Lage, würde diese Ferienwohnung weiterempfehlen. Ausreichende Aussrattung, ruhige und zentrale Lage. .
5,0
august 2024
4,0
juli 2024
4,0
juni 2024
Generel:
Unser Aufenthalt in Kühlungsborn,war wie immer, auch dieses Mal wieder sehr schön. Wir können unsere Unterkunft nur weiter empfehlen.alles oK
4,0
maj 2024
Generel:
Fernsehen schauen etwas problematisch.
4,0
maj 2024
Generel:
Tolle Lage, super nettesVermietungsteam Ein zwei fehlende Ausstattungsdetails
5,0
februar 2024
4,0
september 2023
Generel:
Ich bewerte im Namen meines Sohnes und seiner Frau , denen wir den Aufenthalt in Kühlungsborn geschenkt haben. Es hat den Beiden so gut gefallen, das sie für nächstes Jahr schon gebucht haben.
3,0
maj 2023
Generel:
Kann man weiter empfehlen, nur die Tiefgarage nicht
5,0
april 2023
5,0
april 2023
Generel:
Hier fehlt es einem an nichts. Die Wohnung ist sehr gemütlich eingerichtet und sie hat eine perfekte Lage zur Stadt . In wenigen Minuten erreicht man den Strand oder den Hafen. Trotz der direkten Lage zur Stadt ist es sehr ruhig und man kann sich wohl fühlen. Der Kontakt zu Meerfun war sehr freundlich und es bleiben keine Fragen offen.
5,0
december 2022
4,0
august 2022
Generel:
Top Lage, Strandnähe Mitten im Zentrum. dennoch ruhig Balkon und Schlafbereich nach Hinten gelegen nicht zur Straße. Sauber. Erstaustattung vorhanden. Bettwäsche und Handtücher nicht vergessen. Büro Nähe Bahngleise. Sehr gut. Komme immer wieder gerne in die Strandstraße.
4,0
juni 2022
Generel:
Sehr gute, ruhige Lage.
5,0
december 2021
Generel:
Jederzeit würde ich bei Merr F.U.N. wieder buchen und definitiv weiter empfehlen....
4,0
oktober 2021
4,0
september 2021
5,0
august 2021
4,0
august 2021
Generel:
Wohnung in top Lage. Eine Minute bis Zentrum. Eine Minute in den Wald. Fünf Minuten bis zum Meer. Wohnung liegt sehr ruhig.
3,0
juli 2021
4,0
juli 2021
4,0
juli 2021
5,0
juni 2021
Generel:
Sehr schöne Wohnung, super Lage, ruhiger Innenhof
4,0
Generel:
Soweit war alles iO. Bis auf die Sauberkeit, die ließ zu Wünschen übrig. Schade.
4,5
Generel:
Wir waren insgesamt mit dieser sehr zentralliegenden Wohnung zufrieden. Parkmöglichkeit im Haus vorhanden, auch für Fahrzeuge geeignet die etwas höher sind als vorgegeben (Golf Plus Höhe 1,60). Eigentümer sollte das Inventar gelegentlich anpassen (z.B.Schuck- und Weizengläser). Der Fernseher ist leider sehr klein, was bei schlechtem Wetter ein Nachteil gewesen wäre.
4,3
Generel:
Alles in allem war es gut. Die Matratzen waren etwas unbequem.
4,0
Generel:
Wohnung sehr zentral und trotzdem ruhig gelegen,leider zu wenig Geschirr und Bestecke. Schlafsofa sollte vielleicht erneuert werden. ( Durchgelegen ) Lieben Gruß R. Feddersen
4,3
Generel:
Die Ferienwohnung Strandstraße 32 , Wohnung 11 hat uns sehr gut gefallen. Sie ist zentral gelegen und dennoch ruhig. Wir würden jederzeit wieder hier buchen.
4,8
Generel:
Sehr schöne Wohnung in bester Lage, ruhiger Innenhof, Einkaufsmöglichkeiten in nächster Umgebung.Wir waren schon zum fünften Mal in diesem Haus und zum zweiten Mal in dieser Wohnung. Wir kommen gerne wieder.
5,0
Generel:
Netter freundlicher Service. Die Wohnung war für 2 Personen genau richtig.
4,3
Generel:
Alles bestens. Gute Lage und gute Ausstattung. Gerne wieder.
4,5
Generel:
Alles fast perfekt. Abzüge für: -Zimmer lassen sich nur wenig verdunkeln. Anständige Verdunkelungsvorhänge helfen! -Meerfun gab uns ein altes Wlan Passwort. Das korrekte lag aber in der Fewo aus.
5,0
Generel:
alles super, jederzeit wieder, gaaaaanz ehrlich
5,0
Generel:
Den Gesamteindruck bewerten wir mit 4 ( gut ).
4,5
Generel:
Die Wohnung ist wirklich sehr schön, die Einrichtung ist praktisch und sehr gut. Die Lage ist 1A, mitten im Zentrum aber nach hinten raus doch sehr ruhig. Ich hatte noch nie so ein tolles Bett im Urlaub, nur die Helligkeit nachts im Schlafzimmer war etwas störend, die hellen Gardinen dunkeln die Außenbeleuchtung gar nicht ab. Und dann hätte ich noch einen klitzekleinen Kritikpunkt, und zwar die fehlenden Ablagen in der Dusche für Duschgel, Badeschwamm etc. Aber sonst wie gesagt: Super Wohnung!
3,3
Generel:
Leider mussten wir bei Anreise feststellen, dass das Sofa in der Stube, als wir es aufklappten mit Poppkorn und Sand verschmutzt war. Wir riefen beim Vermieter an und baten um Reinigung. Nachdem wir eine Stunde weg waren, war das Sofa noch immer nicht gereinigt, so dass wir ein zweites Mal anrufen mussten. Einen guten Urlaubsauftakt stellen wir uns anders vor, weil diese Verunreinigung und das Nachtelefonieren bzgl. der Reinigung unseren Abend trügte. Auch ist das Sofa an der Lehne zerschlissen, was wir ebenfalls als unangenehm empfanden. Wer das Parkhaus nutzen möchte sollte wissen, dass es sich hier um ein sog. Klapp-Parken handelt (Parken übereinander mit 2 Ebenen ). Wir parkten dann lieber im Parkhaus um die Ecke.

Faciliteter

  • Afstand

    • Strandafstand
      350 m
    • Sø afstand
      350 m
  • Badeværelse

    • Bruseantal
      1
    • Bruser
    • Håndvask
    • Hårtørrer
    • Tørretumbler
    • WC
  • Grundlæggende

    • Børn velkomne
    • Etageantal
      1
    • Ikke-ryger
    • Kvadratmeter
      40 m²
    • Værelser
      2
  • Hus

    • Bøger
    • Dobbeltsenge
      1
    • Garderobe
    • HIFI
    • Internet
    • Komfur
    • Lænestol
    • Mulighed for mørklægning af rummet
    • Oprindeligt udstyret
    • Overdækket terrasse
    • Radiator
    • Røgalarm
    • Senge
      2
    • Skraldespand
    • Skænk
    • Sofa
    • Spejl
    • Spil
    • Spisebord
    • Spisepladser
    • Stue
    • Støvsuger
    • Terrasse
    • TV
    • TV antal
      1
    • Vaskemaskine
    • Vasketøjsstativ
    • WiFi
  • Køkken

    • Elkedel
    • Fryser
    • Kaffemaskine
    • Køkken
    • Køkkenredskaber
    • Køleskab
    • Mikroovn
    • Opvask
    • Toaster
  • Udendørs

    • Antal parkeringspladser
      1
    • Havemøbler
    • Privat P-plads

Miniferie

Der er begrænset mulighed for miniferie hele året, typisk uden for højsæsonen.

Priser og kalender

Kalender

Ankomst
Næste
   Se om emnet er ledigt på den valgte dato
Ledig
Optaget
   Ankomst mulig
Varighed
Personer

Pris

Periode
Ankomst
Afrejse
Varighed
1 uge
Personer
Ingen personer er valgt

Bemærk

Ankomst er ikke valgt.
Der er ikke valgt personer.
Aftale- og lejebetingelser