Ferielejlighed - 3 personer - Strandstraße - 18225 - Ostseebad Kühlungsborn

3 personer

Oversigt

Emne nr.: 552-107290
7 overnatninger
Fra DKK 5.756,-
3 voksne 0 børn
Boligareal 55 m²
Soverum 1
Badeværelser 1
Afstand vand 200 m
Internet
Ikkeryger
Husdyr
  • Tilbyder miniferie Ja
  • Afstand indkøb 50 m
  • Parabol/kabel TV Ja
  • Opvaskemaskine Ja
  • Ladestander til elbil Ja

Beskrivelse

Beskrivelsen foreligger desværre ikke på Dansk. Se teksten på Tysk nedenfor, eller se den maskinoversatte tekst på Dansk.
Willkommen im Ostseebad Kühlungsborn. Willkommen in der Villa Borwin.

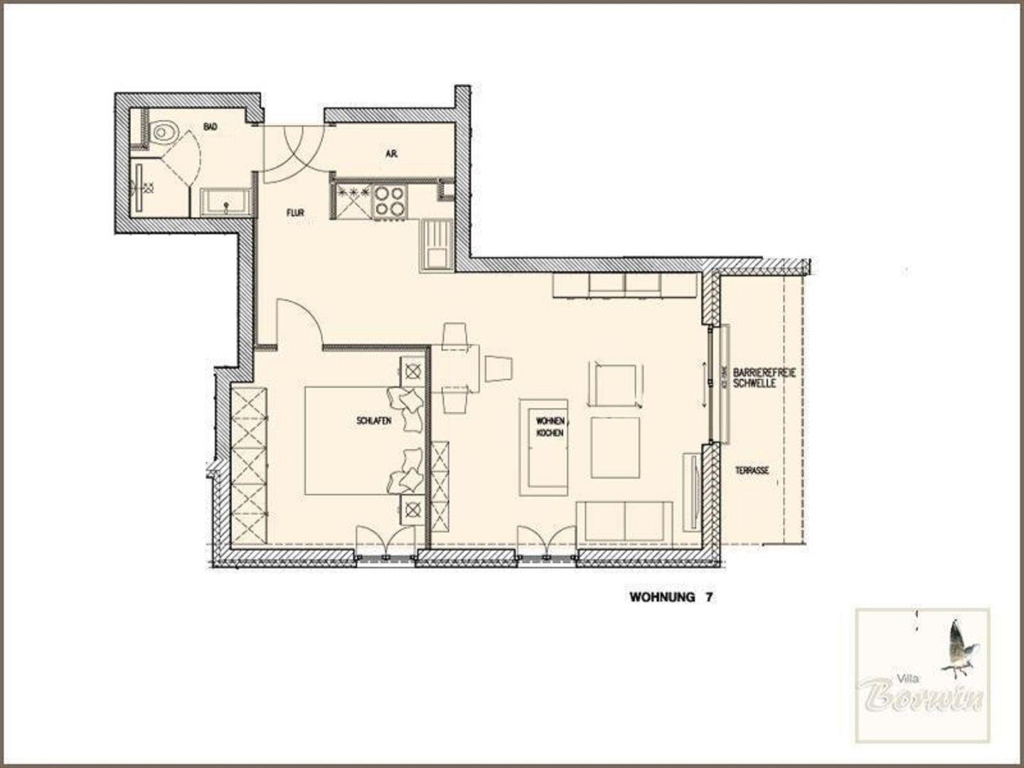
Diese ca. 55 qm große 2-Zimmer-Wohnung befindet sich im Erdgeschoss der Villa Borwin.

Die 18 Appartements sind ganzjährig buchbar. Das gesamte Ferienobjekt wird komplett über eine Erdwärme-Fußbodenheizung beheizt. Auf Teppichböden wurde generell verzichtet. 18 Stellplätze sowie Abstellmöglichkeiten für, z.B. Fahrräder befinden sich geschützt vor Wind und Wetter in der Tiefgarage des 2014 gebauten Appartementhauses. Ausstattungsbeschreibung Wohnung 07: 1 Terrasse mit nördlicher Ausrichtung (Richtung: Stadtwald bzw. Sportplatz) 1 Schlafzimmer mit Doppelbett 1 Duschbad Offene Küchenzeile im Wohnraum mit Ceranfeld, Backofen, Geschirrspüler, Kühlschrank mit Gefrierfach 40‘ Flachbildfernseher (Wohnzimmer) und 32‘ Flachbildfernseher (Schlafzimmer) Radio WLAN 1 PKW-Stellplatz. Kein 2. Stellplatz buchbar!

Raumaufteilung

  • Schlafzimmer, 2 Personen
    • Verdunklungsvorhänge, Kleiderschrank
    • Doppel-Boxspringbett (Extra hoch, Offenes Fußteil)
  • Wohnzimmer, 2 Personen
    • Verdunklungsvorhänge, Kleiderschrank
    • Kleine Doppelcouch

Faciliteter

  • Afstand

    • Afstand indkøb
      50 m
    • Lufthavnsafstand
      30000 km
    • Restaurant afstand
      50 m
    • Strandafstand
      200 m
    • Sø afstand
      200 m
  • Aktiviteter

    • Bådudlejning
    • Cykling
    • Dykning
    • Fiskeri
    • Fodbold
    • Golf
    • Jogging
    • Minigolf
    • Nordic walking
    • Sejlads
    • Svømning
    • Tennis
    • Vandreture
  • Badeværelse

    • Bruseantal
      1
    • Bruser
    • Håndklæder
    • Håndvask
    • Hårtørrer
    • WC
  • Grundlæggende

    • Byggeår
      2014
    • Børn velkomne
    • Etageantal
      3
    • Ikke-ryger
    • Kvadratmeter
      55 m²
    • Værelser
      2
  • Hus

    • Baby seng
      1
    • Brandalarm
    • Bøger
    • Digital TV
    • Elevator
    • Familie
    • Garderobe
    • Høj stol
      1
    • Internet
    • Komfur
    • Kultur
    • Lounge siddepladser
    • Lænestol
    • Mulighed for mørklægning af rummet
    • Oprindeligt udstyret
    • Radiator
    • Radio
    • Røgalarm
    • Senge
      3
    • Sengetøj
    • Skraldespand
    • Skænk
    • Sofa
    • Sovesofaer
      1
    • Spejl
    • Spil
    • Spisebord
    • Spisepladser
    • Stue
    • Støvsuger
    • TV
    • TV antal
      2
    • Underfloor heating
    • Varmt vand
    • Vasketøjsstativ
    • WiFi
  • Køkken

    • Elkedel
    • Fryser
    • Kaffemaskine
    • Køkken
    • Køkkenredskaber
    • Køleskab
    • Opvask
    • Opvaskemaskine
    • Ovn
    • Toaster
  • Udendørs

    • Antal parkeringspladser
      1
    • Elbil opladning
    • Garage
    • Havemøbler
    • Privat P-plads
    • Terrasse

Miniferie

Der er begrænset mulighed for miniferie hele året, typisk uden for højsæsonen.

Priser og kalender

Kalender

Ankomst
Forrige Næste
   Se om emnet er ledigt på den valgte dato
Ledig
Optaget
   Ankomst mulig
Varighed
Personer

Pris

Periode
Ankomst
Afrejse
Varighed
1 uge
Personer
Ingen personer er valgt

Bemærk

Ankomst er ikke valgt.
Der er ikke valgt personer.
Aftale- og lejebetingelser