Ferielejlighed - 4 personer - Dorfstraße - 18347 - Ostseebad Ahrenshoop

4 personer

Oversigt

Emne nr.: 552-139697
7 overnatninger
Fra DKK 10.092,-
4 voksne 0 børn
Boligareal 70 m²
Soverum 2
Badeværelser 2
Afstand vand 50 m
Internet
Ikkeryger
Husdyr 1
  • Tilbyder miniferie Ja
  • Afstand indkøb 250 m
  • Udsigt til vand Ja
  • Opvaskemaskine Ja

Beskrivelse

Beskrivelsen foreligger desværre ikke på Dansk. Se teksten på Tysk nedenfor, eller se den maskinoversatte tekst på Dansk.
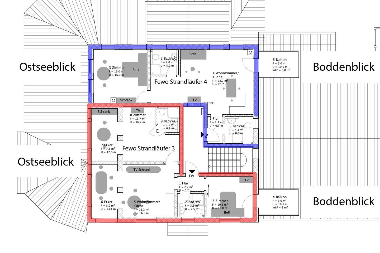
Ferienwohnung Strandläufer 3

? Ferienwohnung ? Ostseebad Ahrenshoop ? bis zu 4 Gäste ? 2 Schlafzimmer ? 2 Badezimmer ? Meerblick ? Balkon ? jetzt buchen!

Umgebung Die Strandläufer-Ferienwohnungen befinden sich in attraktiver Lage. Nur 50 Meter vom Meer entfernt, mitten im Ortskern und mit Blick auf den Bodden genießt du hier alles, was Ahrenshoop so einmalig macht. Restaurants, Cafés, kleine Lädchen, die Schifferkirche und Kunstgalerien befinden sich nur einen Katzensprung entfernt. Mit dem Rad oder zu Fuß kannst du entlang des Deichs und den Boddenwiesen den wildromantischen Weststrand und die umliegenden Dörfer erkunden. Zur Ferienwohnung Die Unterkunft „Strandläufer 3“ befindet sich im zweiten Obergeschoss des Haupthauses Strandläufer und ist über den Seiteneingang zu erreichen. Großzügige Räume, helle Farben und ein Mix aus modernem Mobiliar und Möbeln im Stil der Gründerzeit machen diese Ferienwohnung zu einem besonderen Urlaubsdomizil. Mittelpunkt der Wohnung ist der offen gestalte Wohnbereich mit vollausgestatteter Küchenzeile und Esstisch mit Ausblick auf die Ostsee. Ob mit Familie oder Freunden, hier gibt es genügend Platz zum gemeinsamen Kochen und Klönen. Ebenso großzügig wie der Wohnraum sind auch die beiden Schlafzimmer der Ferienwohnung. Ausgestattet mit je einem Doppelbett, Kleiderschrank, TV und Sitzgelegenheiten, findest du hier einen erholsamen Schlaf. Besonderes Highlight: Auch eins der Schlafzimmer zeigt in Richtung Ostsee. Hier genießt du einen einmaligen Blick auf das Meer mit seinen spektakulären Sonnenuntergängen. Das zweite Schlafzimmer verfügt über einen Balkon mit herrlichem Blick auf den Bodden. Für weiteren Wohnkomfort sorgen die beiden Badezimmer mit Dusche und WC. Im Außenbereich steht dir ein Balkon mit Tisch und Stühlen zur Verfügung. Der herrliche Ausblick wird dich begeistern. Denn hier kann dein Blick über die Reetdächer bis zum Bodden schweifen. Es ist der perfekte Platz, um einen der berühmten und lichtdurchtränkten Sonnenaufgänge zu beobachten, die so einmalig auf der Halbinsel sind. Zur Ferienwohnung gehören außerdem zwei PKW-Stellplätze. Besonderheit In den Häusern Muschel und Strandläufer gibt es noch 8 weitere Ferienwohnungen, die gern für Familien und Gruppen zusammen gebucht werden können. Des Weiteren befindet sich ein Restaurant im Haupthaus.

Raumaufteilung

  • Schlafzimmer, 2 Personen
    • Privates Badezimmer, Verdunklungsvorhänge, Kleiderschrank
    • Kingsize-Bett
  • Schlafzimmer, 2 Personen
    • Privates Badezimmer, Verdunklungsvorhänge
    • Kingsize-Bett

Faciliteter

  • Afstand

    • Afstand indkøb
      250 m
    • LakeDistance
      300 km
    • Restaurant afstand
      20 m
    • Strandafstand
      50 m
    • Sø afstand
      50 m
  • Aktiviteter

    • Cykling
    • Jogging
    • Nordic walking
    • Ridning
    • Surfing
    • Svømning
    • Vandreture
    • Vandsport
  • Badeværelse

    • Badeværelse vindue
    • Bruseantal
      2
    • Bruser
    • Håndvask
    • Hårtørrer
    • WC
  • Grundlæggende

    • Byggeår
      1900
    • Børn velkomne
    • Ikke-ryger
    • Kvadratmeter
      70 m²
    • Værelser
      3
    • År Renovering
      2021
  • Hus

    • Allergi venlig
    • Familie
    • Flueskærm
    • Fuld længde spejl
    • Garderobe
    • Havudsigt
    • Internet
    • Kingsize senge
      2
    • Komfur
    • Lounge siddepladser
    • Lænestol
    • Makeup spejl
    • Mulighed for mørklægning af rummet
    • Radiator
    • Radio
    • Røgalarm
    • Senge
      4
    • Sofa
    • Spejl
    • Spisebord
    • Spisepladser
    • Stue
    • Støvsuger
    • Terrasse
    • TV
    • TV antal
      3
    • Varmt vand
    • Vasketøjsstativ
    • WiFi
  • Køkken

    • Elkedel
    • Fryser
    • Kaffemaskine
    • Køkken
    • Køkkenredskaber
    • Køleskab
    • Opvask
    • Opvaskemaskine
    • Toaster
  • Udendørs

    • Antal parkeringspladser
      2
    • Havemøbler
    • Privat P-plads

Miniferie

Der er begrænset mulighed for miniferie hele året, typisk uden for højsæsonen.

Priser og kalender

Kalender

Ankomst
Næste
   Se om emnet er ledigt på den valgte dato
Ledig
Optaget
   Ankomst mulig
Varighed
Personer

Pris

Periode
Ankomst
Afrejse
Varighed
1 uge
Personer
Ingen personer er valgt

Bemærk

Ankomst er ikke valgt.
Der er ikke valgt personer.
Aftale- og lejebetingelser