Ferielejlighed - 4 personer - Dorfstraße - 18347 - Ostseebad Ahrenshoop

4 personer

Oversigt

Emne nr.: 552-139696
7 overnatninger
Fra DKK 8.829,-
4 voksne 0 børn
Boligareal 64 m²
Soverum 1
Badeværelser 2
Afstand vand 50 m
Internet
Ikkeryger
Husdyr 1
  • Tilbyder miniferie Ja
  • Afstand indkøb 300 m
  • Udsigt til vand Ja
  • Opvaskemaskine Ja

Beskrivelse

Beskrivelsen foreligger desværre ikke på Dansk. Se teksten på Tysk nedenfor, eller se den maskinoversatte tekst på Dansk.
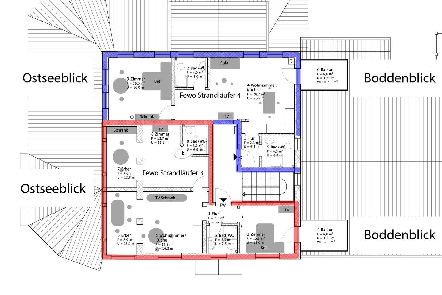
Ferienwohnung Strandläufer 4

? Ferienwohnung ? Ostseebad Ahrenshoop ? bis zu 4 Gäste ? 1 Schlafzimmer ? 2 Badezimmer ? Meerblick ? Balkon ? jetzt buchen!

Umgebung Die Strandläufer-Ferienwohnungen befinden sich in attraktiver Lage. Nur 50 Meter vom Meer entfernt, mitten im Ortskern und mit Blick auf den Bodden genießt du hier alles, was Ahrenshoop so einmalig macht. Restaurants, Cafés, kleine Lädchen, die Schifferkirche und Kunstgalerien befinden sich nur einen Katzensprung entfernt. Mit dem Rad oder zu Fuß kannst du entlang des Deichs und den Boddenwiesen den wildromantischen Weststrand und die umliegenden Dörfer erkunden. Zur Ferienwohnung Die Unterkunft „Strandläufer 4“ befindet sich im zweiten Obergeschoss des Haupthauses Strandläufer und ist über den Seiteneingang zu erreichen. Großzügige Räume, helle Farben und ein Mix aus modernem Mobiliar und Möbeln im Stil der Gründerzeit machen diese Ferienwohnung zu einem besonderen Urlaubsdomizil. Vom Flur mit Garderobe gelangst du direkt in den offen gestalteten Wohn-und Küchenbereich mit Austritt auf den Balkon. Ob mit Familie oder Freunden, es gibt genügend Platz zum gemeinsamen Kochen und Klönen. Die gemütliche Couch im Wohnraum kann ausgezogen werden und dient als Aufbettung für bis zu zwei Personen. Ein weiteres Highlight bietet das Schlafzimmer in Richtung Ostsee. Hier genießt du einen traumhaften Blick auf das Meer mit seinen spektakulären Sonnenuntergängen. Ausgestattet mit einem großem Doppelbett, bekommst du garantiert den erholsamen Schlaf, den du dir im Urlaub wünschst. Für noch mehr Wohnkomfort sorgen die beiden Badezimmer mit Dusche und WC. Im Außenbereich steht dir ein Balkon mit Tisch und Stühlen zur Verfügung. Der herrliche Ausblick wird dich begeistern. Denn hier kann dein Blick über die Reetdächer bis zum Bodden schweifen. Es ist der perfekte Platz, um einen der berühmten und lichtdurchtränkten Sonnenaufgänge zu beobachten, die so einmalig auf der Halbinsel sind. Zur Ferienwohnung gehört außerdem ein PKW-Stellplatz. Besonderheit In den Häusern Muschel und Strandläufer gibt es noch 8 weitere Ferienwohnungen, die gern für Familien und Gruppen zusammen gebucht werden können. Des Weiteren befindet sich ein Restaurant im Haupthaus.

Raumaufteilung

  • Schlafzimmer, 2 Personen
    • Privates Badezimmer, Verdunklungsvorhänge, Kleiderschrank
    • Kingsize-Bett
  • Wohnzimmer, 2 Personen
    • Privates Badezimmer
    • Kleine Doppelcouch

Faciliteter

  • Afstand

    • Afstand indkøb
      300 m
    • LakeDistance
      300 km
    • Restaurant afstand
      20 m
    • Strandafstand
      50 m
    • Sø afstand
      50 m
  • Aktiviteter

    • Cykling
    • Jogging
    • Nordic walking
    • Ridning
    • Surfing
    • Svømning
    • Vandreture
    • Vandsport
  • Badeværelse

    • Badeværelse vindue
    • Bruseantal
      2
    • Bruser
    • Håndvask
    • Hårtørrer
    • WC
  • Grundlæggende

    • Byggeår
      1900
    • Børn velkomne
    • Ikke-ryger
    • Kvadratmeter
      64 m²
    • Værelser
      2
    • År Renovering
      2021
  • Hus

    • Brandalarm
    • Bøger
    • Familie
    • Flueskærm
    • Fuld længde spejl
    • Garderobe
    • Havudsigt
    • Internet
    • Kingsize senge
      1
    • Komfur
    • Lounge siddepladser
    • Lænestol
    • Mulighed for mørklægning af rummet
    • Persienner
    • Radiator
    • Radio
    • Senge
      4
    • Sofa
    • Sovesofaer
      1
    • Spejl
    • Spil
    • Spisebord
    • Spisepladser
    • Stue
    • Støvsuger
    • Terrasse
    • TV
    • TV antal
      2
    • Varmt vand
    • Vasketøjsstativ
    • WiFi
  • Køkken

    • Elkedel
    • Fryser
    • Kaffemaskine
    • Køkken
    • Køkkenredskaber
    • Køleskab
    • Opvask
    • Opvaskemaskine
    • Toaster
  • Udendørs

    • Antal parkeringspladser
      2
    • Havemøbler
    • Privat P-plads

Miniferie

Der er begrænset mulighed for miniferie hele året, typisk uden for højsæsonen.

Priser og kalender

Kalender

Ankomst
Næste
   Se om emnet er ledigt på den valgte dato
Ledig
Optaget
   Ankomst mulig
Varighed
Personer

Pris

Periode
Ankomst
Afrejse
Varighed
1 uge
Personer
Ingen personer er valgt

Bemærk

Ankomst er ikke valgt.
Der er ikke valgt personer.
Aftale- og lejebetingelser