Ferielejlighed - 3 personer - Kampstrasse - 26548 - Norderney

3 personer

Oversigt

Emne nr.: 552-155402
7 overnatninger
Fra DKK 5.738,-
3 voksne 0 børn
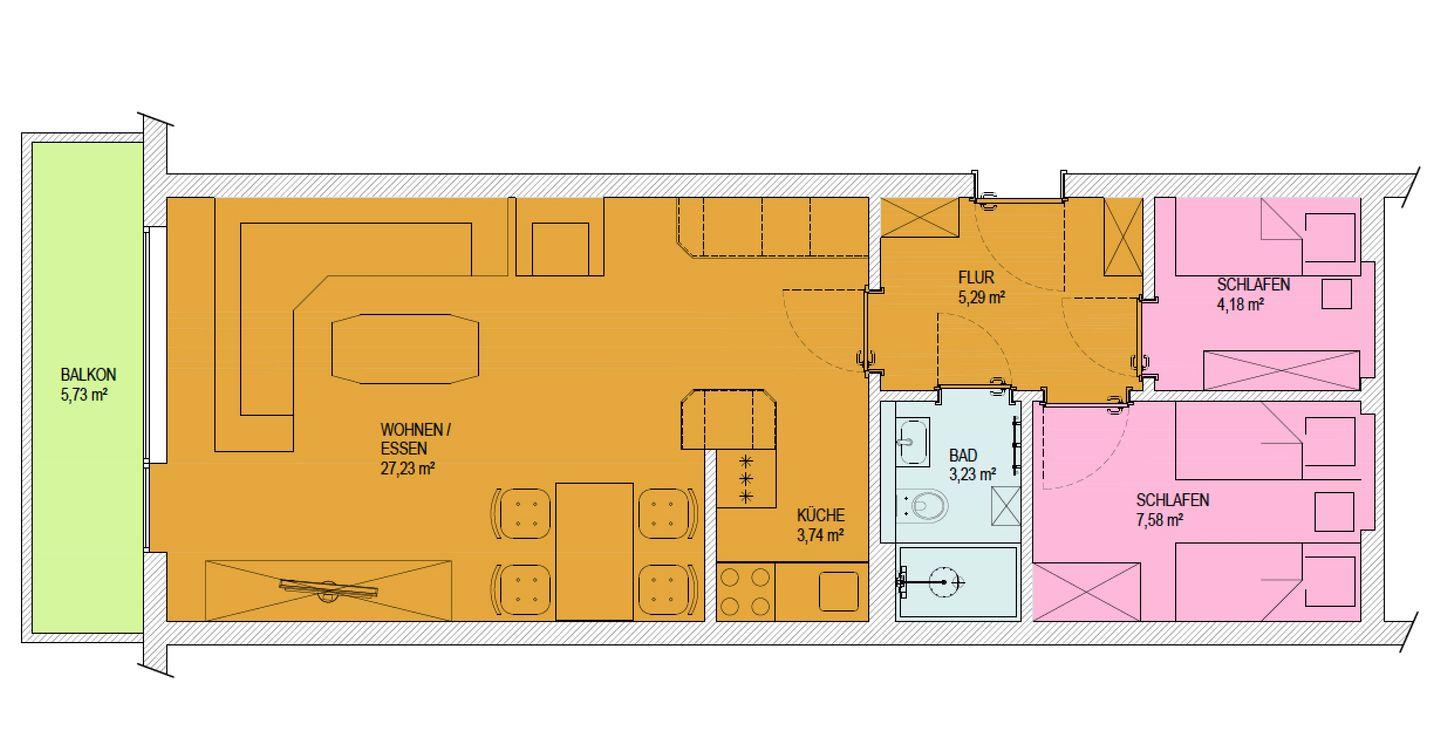
Boligareal 57 m²
Soverum 2
Badeværelser 1
Internet
Ikkeryger
Husdyr
  • Tilbyder miniferie Ja
  • Opvaskemaskine Ja

Beskrivelse

Beskrivelsen foreligger desværre ikke på Dansk. Se teksten på Tysk nedenfor, eller se den maskinoversatte tekst på Dansk.
Weitblick

Die Ferienwohnung "Weitblick" befindet sich in der Kampstraße. Die Wohnung "Weitblick" liegt im dritten Stockwerk und bietet, wie der Name schon sagt, einen Blick über die Dächer von Norderney. Die Wohnung bietet auf ca. 57 Quadratmetern Platz für bis zu drei Personen und liegt direkt gegenüber der Inselkirche. Das Haus verfügt über keinen Aufzug. Die Einrichtung ist frisch und farbenfroh gestaltet. Die Wohnung verfügt über ein Wohnzimmer mit einer integrierten (voll ausgestatteten) Küchenzeile. Es gibt zwei Schlafzimmer, eines mit zwei Einzelbetten (0,80m x 2,00m) und eines mit einem Einzelbett (0,80m x 2,00m). Das moderne Badezimmer ist mit einer Dusche und einem WC ausgestattet. Ein kleines Highlight der Wohnung ist der nach Süden ausgerichtete Balkon. Für Fahrräder gibt es vor dem Haus Parkmöglichkeiten. Alternativ können Fahrräder auch im Keller abgestellt werden. Waschmaschine und Wäschetrockner befinden sich im Haus und stehen (für die gemeinschaftliche Nutzung gegen Münzeinwurf) zur Verfügung, was besonders für längere Aufenthalte von Vorteil ist. Haustiere (Hunde) sind in dieser Wohnung nicht erlaubt. Verlängerung der Bauphase: bis ca. Ende Juni 2026 ist die Sanierung abgeschlossen. Einige Balkone im Haus bis dahin evt. nicht nutzbar.

Raumaufteilung

  • Schlafzimmer, 1 Person
    • Kleiderschrank
    • Einzelbett
  • Schlafzimmer, 2 Personen
    • Kleiderschrank
    • 2 x Einzelbett

Vores gæsteanmeldelser Eksterne anmeldelser

Ingen gæsteanmeldelser
4,5
14 eksterne anmeldelser
5,0
august 2025
Generel:
Familie mit Kind
4,3
juli 2025
Generel:
Familie mit Kind
4,5
juni 2025
Generel:
Paar
4,8
maj 2025
Generel:
Gruppe
4,0
maj 2025
Generel:
älteres Ehepaar
4,5
maj 2025
Generel:
Paar
4,8
april 2025
Generel:
Familie mit Kind
5,0
oktober 2024
Generel:
Paar
5,0
maj 2024
Generel:
Paar
4,5
maj 2024
Generel:
1
4,8
juli 2023
Generel:
Familie mit Kind
4,3
juni 2023
Generel:
Familie mit Kind
4,0
juni 2023
Generel:
0
4,0
juni 2023
Generel:
Gruppe

Faciliteter

  • Afstand

    • Strandafstand
      450 m
  • Badeværelse

    • Hårtørrer
    • Tørretumbler
  • Grundlæggende

    • Børn velkomne
    • Ikke-ryger
    • Kvadratmeter
      57 m²
    • Værelser
      2
  • Hus

    • Baby seng
      1
    • Enkeltsenge
      3
    • Garderobe
    • Internet
    • Lukket terrasse
    • Senge
      3
    • Sikkerheds boks
    • TV
    • Vaskemaskine
    • WiFi
  • Køkken

    • Fryser
    • Køkken
    • Opvaskemaskine
    • Ovn

Miniferie

Der er begrænset mulighed for miniferie hele året, typisk uden for højsæsonen.

Priser og kalender

Kalender

Ankomst
Forrige Næste
  • maj 2026
    mationtofr
    18123
    1945678910
    2011121314151617
    2118192021222324
    2225262728293031
    23
  • juni 2026
    mationtofr
    231234567
    24891011121314
    2515161718192021
    2622232425262728
    272930
    28
   Se om emnet er ledigt på den valgte dato
Ledig
Optaget
   Ankomst mulig
Varighed
Personer

Pris

Periode
Ankomst
Afrejse
Varighed
1 uge
Personer
Ingen personer er valgt

Bemærk

Ankomst er ikke valgt.
Der er ikke valgt personer.
Aftale- og lejebetingelser