Sommerhus - 5 personer - Dollartweg - 26844 - Jemgum

5 personer
heraf 1 barn (0-3 år)

Oversigt

Emne nr.: 530-608944
7 overnatninger
Fra DKK 5.329,-
4 voksne 1 barn
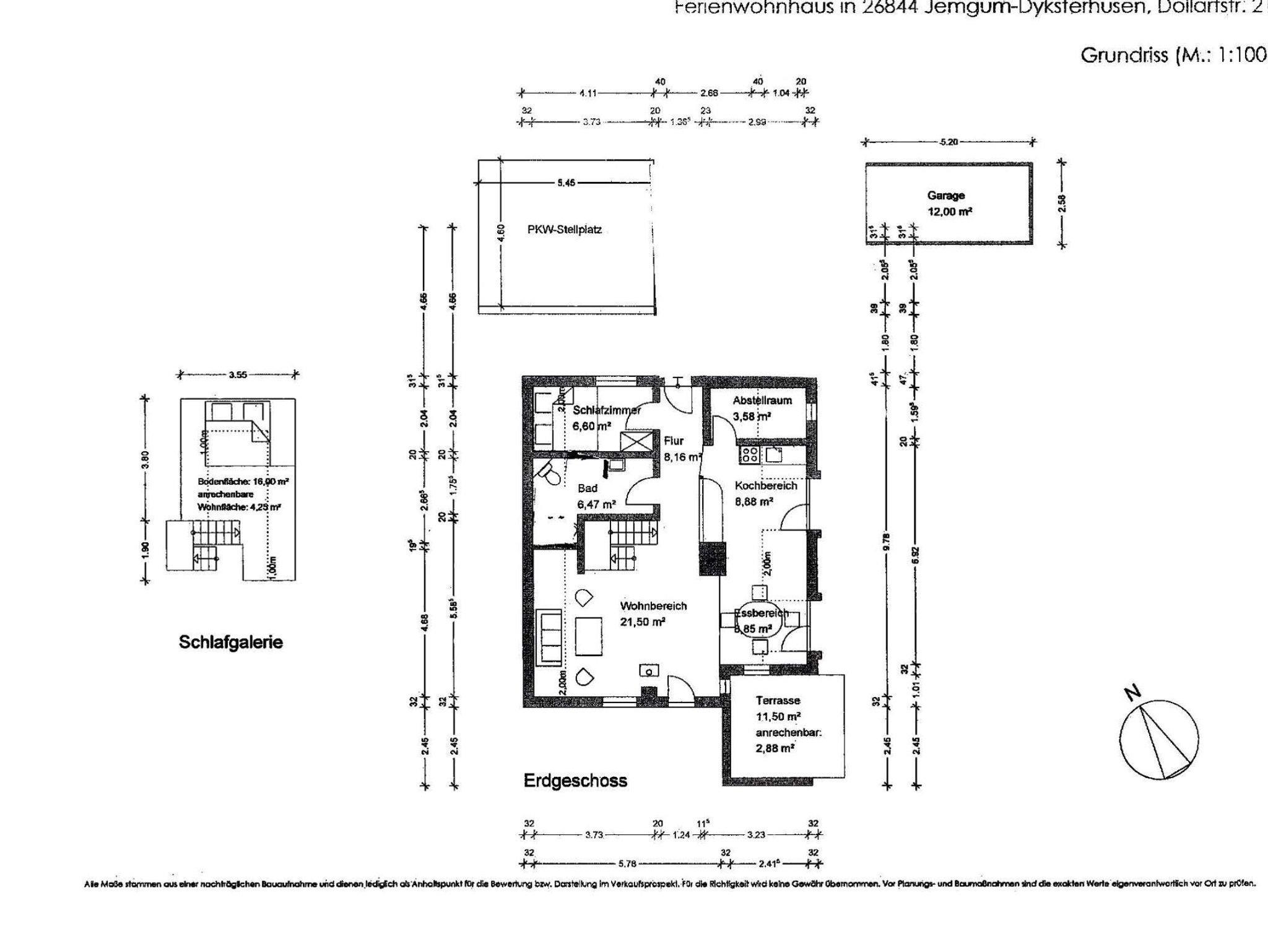
Boligareal 85 m²
Soverum 2
Badeværelser 1
Internet
Ikkeryger
Husdyr 1
  • Tilbyder miniferie Ja
  • Afstand indkøb 4.600 m
  • Parabol/kabel TV Ja
  • Brændeovn Ja
  • Indhegnet område Ja
  • Vaskemaskine Ja
  • Opvaskemaskine Ja
  • Energivenligt Ja

Beskrivelse

Beskrivelsen foreligger desværre ikke på Dansk. Se teksten på Tysk nedenfor, eller se den maskinoversatte tekst på Dansk.
Fischerhaus am Deich 45233, Ferienhaus

Unser gemütliches, freistehendes Ferienhaus direkt am Dollart-Deich, mit großzügigem Grundstück und einem Stellplatz erwartet Sie. Das Haus wurde 2020 liebevoll restauriert, hat einen großzügigen Wohnraum mit Kaminofen, ein Bad mit ebenerdiger Dusche, eine voll ausgestattete Küche, ein Schlafzimmer und eine Schlafempore sowie eine windgeschützte Terrasse mit Gartenmöbeln und einem Strandkorb zum Relaxen.
Außderdem steht Ihnen ein Grill zur Verfügung.
Das Haus ist sehr ruhig gelegen. Vom Deich haben Sie einen wunderschönen Blick in die Weite Ostfrieslands. Es liegt direkt an der Dollard Route und ist ideal um Fahrradtouren oder ausgiebige Sparziergänge zu unternehmen und zum Entschleunigen und Abschalten. Das urgemütliche, historische Fischerdorf Ditzum ist nur 5 km entfernt.

Seit Januar 2020 erhebt die Gemeinde Jemgum einen Gästebeitrag (ganzjährig). Nähere Informationen unter der Homepage der Gemeinde Jemgum oder Ihrer Tourist-Information.

Gemütliches Nichtraucherhaus mit einem Schlafzimmer unten mit Doppelbett  (140*200 cm, ohne Fußteil), einem Kinderbett (Reisebett) und Insektenschutz am Fenster sowie einer Schlafempore mit einem Doppelbett (200*200 cm, ohne Fußteil). Das 2020 renovierte Haus verfügt über einen großzügigen Wohnraum mit Kaminofen, einer vollausgestatteten Küche, einem Bad mit ebenerdiger Dusche,  W-LAN, einer windgeschützten Terrasse mit Gartenmöbeln und Grill sowie einen Strandkorb zum Relaxen.Ein abschließbarer Fahrradraum gehört auch dazu.
Das Haus ist sehr ruhig gelegen mit einem wunderschönen Blick in die Weite Ostfrieslands. Es liegt direkt an der Dollard Route, ist also ideal für Radtouren, lange Sparziergänge und zum Entschleunigen und Abschalten. Wenn Sie mit ihrem vierbeinigen Freund eine Runde laufen möchten, bietet sich der Gang zur Bohrinsel an, direkt am Dollart.
In unserem Ferienhaus finden bis zu zwei Hunde Platz für 5,00 € per Hund/Übernachtung.
Das urgemütliche Fischerdorf Ditzum liegt in nur 5 km Entfernung.

Vores gæsteanmeldelser Eksterne anmeldelser

Ingen gæsteanmeldelser
4,7
Faciliteter:
5,0
Rengøring:
5,0
Komfort:
5,0
Venlighed:
5,0
Beliggenhed:
4,0
Generelt:
4,5
Værelse:
4,5
Service på stedet:
4,5
Værdi for pengene:
4,5
2 eksterne anmeldelser
4,3
februar 2022
Faciliteter:
5
Rengøring:
5
Komfort:
5
Beliggenhed:
3
Generelt:
4
Værelse:
4
Service på stedet:
4
Værdi for pengene:
4
Generel:
sehr schön und gepflegt, umfangreiche Ausstattung - auch im Küchenbereich sind viele nützliche Kleinigkeiten vorhanden
Begrundelse for valg:
einsame Lage
5,0
juli 2020
Faciliteter:
5
Rengøring:
5
Komfort:
5
Venlighed:
5
Beliggenhed:
5
Generelt:
5
Værelse:
5
Service på stedet:
5
Værdi for pengene:
5
Generel:
Wir (2 Erwachsene, 1 Kind (4) und zwei mittelgroße Hunde) hatten im August eine tolle Woche im Fischerhaus. Das Haus ist richtig gemütlich und mit Liebe zum Detail eingerichtet. Morgens den ersten Kaffee im Garten und in die Weite Ostfrieslands gucken, was gibt es besseres um in den Tag zu starten? Der Mini hat immer quer im Strandkorb gelegen die Aussicht genossen. Wer Ruhe sucht ist hier genau richtig. Es stehen nur wenige Häuser in der Strasse und die haben zueinander einigen Abstand. Auf den Parkplatz passen zwei Autos nebeneinander, die Küche ist mit allem was man braucht ausgestattet. Was mir sehr positiv aufgefallen ist, ist das es ausreichend Geschirr gibt (nicht nur je 6 Teller etc. ) So musste ich nicht dauernd separat abwaschen, sondern konnte warten bis die Spülmaschine voll ist. In Ditzum gibt es direkt am Anfang einen Edeka, da haben wir auch unsere Brötchen geholt. Der ist nicht sooooo voll sortiert wie in der Stadt, reicht aber für das tägliche. Gibt dann z.Bsp. halt eine Sorte Creme Fraiche und nicht drei Hersteller zur Auswahl. Wer mehr Auswahl möchte, fährt ca. 20min bis nach Jemgum zum nächsten Edeka. Empfehlen kann ich die Touristikinfo im Hafen. Die Dame mit den kurzen blonden Haaren hat uns tolle Tipps für Ausflüge gegeben. Mit Kindern unbedingt den Land-Erlebnis-Hof besuchen, der war toll. Spielplatz in der Nähe ist ein schöner in Ditzum, in der Nähe vom Sportplatz. Einfach kurz nach dem Edeka rechts in die Strasse und dann kommt der auch schon bald auf der linken Seite. Sauber, neu und gepflegt. Fährt man kurz nach dem Edeka links rum, kommt man zum Hafen. Eine eingezäunte Hundewiese zu finden war nicht so leicht. Wir sind einen Tag zum quot;grossen Meer quot; gefahren, dort gibt einen kleinen eingezäunten Hundestrand. Da hatten die beiden und der Mini Spass. Das Wasser ist fast durchgehend 80cm tief, das ist echt super gewesen. Da das Grundstück am Haus komplett eingezäunt ist, konnten die Hunde da ohne Leine laufen. Es gibt im Garten durch die Bäume auch immer ein schattiges Plätzchen. So kommen Sonnenanbeter und Schattenliebhaber gleichermaßen auf Ihre Kosten. Uns hat es alles in allem so gut gefallen, das ich direkt wieder für ein paar Tage gebucht habe :-)
Begrundelse for valg:
Wegen des eingezäunten Grundstücks und allein durch die Bilder war es Liebe auf den ersten Blick.
Forbedringer:
Toll wären zwei Liegen oder Liegestühle mit Auflagen, die Eisenstühle sind leider nicht soooo bequem gewesen. Aber das ist jammern auf hohem Niveau. Alles andere war super.

Faciliteter

  • Afstande

    • Til badepladsen/vandmassen
      1 km
    • Til bageren
      4,6 km
    • Til busstoppestedet
      1 km
    • Til centrum
      4,8 km
    • Til motorvejen
      19 km
    • Til restauranten
      4,8 km
    • Til supermarkedet
      4,6 km
    • Til togstationen
      26 km
    • Til turistinformationen
      4,8 km
  • Børnefaciliteter

    • Familievenlig
  • Grundlæggende faciliteter

    • Størrelse
      85 m²
    • År renoveret
      2023
  • Indkvartering Faciliteter

    • Cykelrum aflåselig
    • Cykelvenlig
    • Energibesparende belysning
    • Ikke-ryger hus
    • Internet i det offentlige område
    • Klasse A husholdningsapparater
    • Tilgængelig med offentlig transport
    • Vandrer venlig
  • Omgivende faciliteter

    • Cykelrum
    • Grunden er indhegnet
    • Have til brug
    • Parkeringsplads
    • Siddeplads i haven
    • Strandstol
  • Servicefaciliteter

    • Bad / WC
    • Bad/toilet
    • Bruser
    • Deichblick
    • Dyr velkomne
    • Enkeltseng
    • Flere soveværelser
    • Flise/marmorgulv
    • Fransk seng
    • Husdyr tilladt eller efter anmodning
    • Højstol
    • Håndklæder
    • Hårtørrer
    • Ikke-rygere
    • Internet - WiFi
    • Kabel/Sat
    • Kaffemaskine
    • Køkken (åbent)
    • Køleskab
    • Mikroovn
    • Mulighed for fryser
    • Opvarmet
    • Opvaskemaskine
    • Ovn
    • Pejs/brændovn
    • Rejseseng/krybbe
    • Rengøringsmidler
    • Sengetøj
    • Separat ejendom
    • Separate senge
    • Smart-Tv
    • Sofa seng
    • Strandstol (personlig)
    • Terrasse
    • Toaster
    • Toiletpapir
    • Træ- eller parketgulve
    • TV
    • TV - fladskærm
    • Vandvarmer
    • Vaskemaskine

Miniferie

Der er begrænset mulighed for miniferie hele året, typisk uden for højsæsonen.

Priser og kalender

Kalender

Ankomst
Forrige Næste
  • maj 2026
    mationtofr
    18123
    1945678910
    2011121314151617
    2118192021222324
    2225262728293031
    23
  • juni 2026
    mationtofr
    231234567
    24891011121314
    2515161718192021
    2622232425262728
    272930
    28
   Se om emnet er ledigt på den valgte dato
Ledig
Optaget
   Ankomst mulig
Varighed
Personer

Pris

Periode
Ankomst
Afrejse
Varighed
1 uge
Personer
Ingen personer er valgt

Bemærk

Ankomst er ikke valgt.
Der er ikke valgt personer.
Aftale- og lejebetingelser