Ferielejlighed - 6 personer - Südstrand - 18609 - Binz (Ostseebad) Ot Prora

6 personer

Oversigt

Emne nr.: 552-220862
7 overnatninger
Fra DKK 8.790,-
6 voksne 0 børn
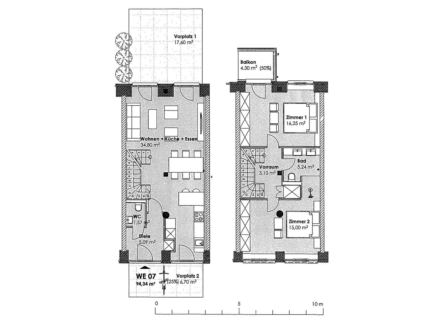
Boligareal 102 m²
Soverum 2
Badeværelser 1
Internet
Husdyr 1
  • Tilbyder miniferie Ja
  • Afstand indkøb 800 m
  • Sauna Ja
  • Parabol/kabel TV Ja
  • Opvaskemaskine Ja

Beskrivelse

Beskrivelsen foreligger desværre ikke på Dansk. Se teksten på Tysk nedenfor, eller se den maskinoversatte tekst på Dansk.
FeWo Hühnergott: Komfortables Dünen-Apartment 102m² mit Strandzugang & Sky-Sauna

Im Haus Arkona erwartet dich eine helle Ferienwohnung nur 50 m vom Meer entfernt. Zwei ruhige Schlafzimmer, ein Wohnbereich mit Terrasse und der Blick über Dünen und Wasser schenken Raum für entspannte Tage. Warme Böden, WLAN, Gäste-WC und eine voll ausgestattete Küche begleiten dich. Und hoch oben im Haus öffnet die Sky-Sauna den weiten Blick über die Ostsee. Eine Waschmaschine steht ebenfalls bereit.

Haus Arkona, 1 Parkplatz Die Räume im Einzelnen: - Schlafzimmer 1: Doppelbett (180x200), Schlafsessel, TV, Zugang zum Balkon - Schlafzimmer 2: Doppelbett (180x200), Schlafsessel, TV - Badezimmer: Dusche, WC, Haartrockner - Wohn/Essbereich: Sofa, TV, Teufel-Soundanlage ( Achtung: Internetfernseher, nur mit der Zattoo App möglich, kein Kabel -TV-Empfang !!!!), Zugang zur Terrasse - Terrasse mit Tisch und Stühlen - Vollausgestattet Küche, Kaffeemaschine mit Filter - Gäste-WC - Waschmaschine in Abstellraum - Aussicht: Dünenlandschaft, Meer - Internetanschluss Glasfaser ( + WLAN) inkl. - Fußbodenheizung - direkter Strandzugang Highlight: - Gemeinschafssauna Sky-Sauna 5.OG (mit dazu gehöriger Rooftop-Terrasse) - Waschmaschine in der Wohnung Sanfte Dünenlandschaften entlang des feinsandigen, kilometerlangen Strandes umgeben das Haus Arkona. Ein Highlight im Haus Arkona ist die Sky-Sauna im 5. Obergeschoss mit einer ON-TOP Terrasse, die einen Rundumblick über die Ostsee, dichte Buchenwälder und romantische Heideflächen bietet. Auf dieser Gemeinschafts-Dachterrasse können sie die Sonnenstrahlen genießen, ihre tägliche Sportgymnastik betreiben, oder sich einfach nur ausruhen und ein Buch lesen. Naturreservate wie die berühmten Kreidefelsen und die Feuersteinfelder, laden zu ausgedehnten Wanderungen ein. Einen Besuch wert, ist auf jeden Fall Binz. Das größte Seebad Rügens verzaubert mit seiner Bäderarchitektur und seinem idyllischen Charme. Anmerkungen: - Haustiere sind wilkommen. - Rauchen ist nicht gestattet. Zusätzliche Dienstleistungen, die vor Ort verfügbar sind und bei Bedarf beim Check-In oder später gebucht werden können: 1. Extra Bettwäsche 2. Extra Handtücher 3. Bettwäsche und Handtücher Wechsel während Ihres Aufenthaltes 4. Kinder-Hochstuhl 5. Kinder-Reisebett 6. Strandtücher 7. Zwischenreinigung in größeren Mengen, bitten wir vorab, bei Ihrer Buchung, um eine entsprechende Information.

Vores gæsteanmeldelser Eksterne anmeldelser

Ingen gæsteanmeldelser
4,8
35 eksterne anmeldelser
5,0
Generel:
Eine sehr geschmackvolle und hochwertige Wohnung. Wir waren begeistert und sagen Danke für ein paar unvergessliche Urlaubstage. Wir kommen wieder! Vielen Dank auch an den Vermieter. Hervorzuheben ist auch der herzliche Empfang bei Prora.Com. Die ganze Über und Abgabe der Schlüssel funktionierte ... einwandfrei. weiterlesen
5,0
Generel:
Wie immer waren wir sehr zufrieden, mit allem. Wir kommen wieder.
4,0
Generel:
FeWo Seemannsgarn in PRORA ... -positiv: Bügeleisen zur Nutzung, Sauna sehr geräumig, Badewanne großzügig, Zugang Strand super praktisch mit Hunden, Parkplatz vor der Tür -am Eingang sind nur Vorhänge vorhanden, dadurch ist es sehr dunkel im Raum, denn bei geöffneten Vorhängen kann jeder Spaziergänger bis auf den Esstisch schauen ->Rollos sind defintiv hier angerachter -Seifenspender in einem Bad defekt (bei Sauna) -das Tiefkühlfach war verschmutzt -ein Fach in der Kühlschranktür war defekt -die Dusche ist stark verschmutzt / stark verschimmelt, der obere Duschkopf war so stark verkalkt, dass kein Wasser raus kam (wurde durch uns behoben) -der Tisch war nicht abgewischt und voller Sand (wurde durch uns behoben) -die Küchenfronten waren verschmutzt, die Griffe verklebt (wurde durch uns behoben) Nach einer Endreinigung verlange ich mehr Sauberkeit und allgemein eine bessere Instandsetzung der Wohnung. Auch wenn es vielleicht nur Kleinigkeiten sind-preislich liegt die Wohnung im gehobenen Segment und das kann alles einfach abgeschafft werden. weiterlesen
5,0
Generel:
Wir waren wie immer begeistert und hatten einen wunderschönen Urlaub. Die Sauna ist bei jedem Wetter empfehlenswert und absolut erholsam. Die Wohnung ist sehr schön eingerichtet und alles ist sauber und neu. Wir werden auf jeden Fall wiederkommen.
4,4
5,0
Generel:
Wir haben uns wieder sehr wohl gefühlt. Die Wohnung war sehr komfortabel eingerichtet es hat an nichts gefehlt. Die Lage ist auch top, man fällt von der Terrasse und ist in ein paar Schritten am Strand. Wir werden auf jeden Fall Wiederholungstäter wie die letzten 3mal schon. Prora ist immer eine ... Reise wert. Vielen Dank für den tollen Service, weiter so. ? weiterlesen
4,0
5,0
Generel:
Hallo, ... sehr schön ausgestattete Wohnung. Sehr freundliche Mitarbeiter. sehr gern wieder. Mag nicht zu viel loben, sonst möchten viele Urlauber diese Wohnung. War eine wirklich tolle Unterkunft!!!!!!! weiterlesen
5,0
Generel:
Sehr schöne Ferienwohnung / tolle Einrichtung / alles top. Wir kommen gerne wieder.
5,0
Generel:
Danke für den tollen Urlaub. Der Urlaub fing schon im Servicebüro an, sehr nettes freundliches und kompetentes Personal. Die Wohnung selbst lässt keine Wünsche offen, alles sehr sauber und gepflegt. Die Einrichtung ist sehr schön und komfortabel. Einzig die Kopfkissen sind sehr hart und wirklich ... gewöhnungsbedürftig. Die Lage ist einfach perfekt, sehr kurze Wege zum Hundestrand/Strand. Rundum ein gelungener Urlaub für uns mit Hund. Wir kommen ganz sicher wieder nach Prora und in diese Wohnung. Dankeschön und bis hoffentlich bald mal wieder. weiterlesen
4,4
Generel:
Wir waren begeistert von der Wohnung und kommen nächstes Jahr wieder. Das einzige was nicht so schön war sind die ganzen Spinnweben unter den Stühlen und in den Ecken.
4,8
Generel:
Tolle Ferienwohnung, hoher Standard, Preis für eine Woche etwas hoch, aber es war ja Haupsaison, nur die Terrassenmöbel würden wir beanstanden, die haben bei diesem Niveau Ihre Zeit hinter sich. Natürlich zu erwähnen, der kurze Weg zum Strand.
4,8
Generel:
Die Unterkunft war wunderschön. Sie ist hoch- ... wertig ausgestattet, gemütlich, sehr sauber und mit viel Liebe zum Detail eingerichtet. Besonders die Leinwände mit den Figuren aus der Muppets Show haben uns gefallen. Sie verleihen der Wohnung ihren ganz eigenen Charme. Unser einziger Verbesserungs- vorschlag wäre, dass der Eigentümer öfter nachschaut, ob alles vollständig ist bzw. alle Geräte funktionsfähig sind. Wir empfehlen die Unterkunft auf jeden Fall weiter. weiterlesen
4,8
5,0
Generel:
Wir haben 2 tolle Wochen mit fantastischen Wetter erlebt . Die Wohnung hat genau unseren Geschmack getroffen. ... Es war alles da was man braucht . Vielleicht sollte man mal über Fliegen Gitter vor den Fenstern nachdenken . Allerdings konnte das Erscheinungsbild der Terasse in keinster Weise mit der hochwertigen Einrichtung der Wohnung mithalten . Da hätte man sich etwas bequemeres vorgestellt . Werden aber auf jeden Fall nochmals wiederkommen. weiterlesen
4,8
Generel:
Eine tolle, perfekt ausgestattete Wohnung die keine Wünsche offen lässt. Abgerundet durch eine super nette, kompetente Dame vor Ort im Büro von Prora.com. Wir kommen gerne wieder.
5,0
Generel:
Perfekte Ferienwohnung. Hier stimmt einfach alles.
3,8
Generel:
Die Damen und Herren bei Prora.com könnten etwas freundlicher sein und auch mehr auf Urlaubswünsche eingehen, Frage nach zweiten Parkplatz, wurde sich nicht mal die Mühe gemacht zu schauen ob noch einer gegen Gebühr frei wäre, dieses von mehreren Urlaubern gehört. Dank der "Meerkatze" wurde uns von ... seiten dieser ein zweiter Parkplatz angeboten, sehr nette Leute. Vielleicht mal in der Vor und Nachsaison dieses überdenken. weiterlesen
4,6
5,0
5,0
Generel:
Sehr schöne Ferienwohnung in guter Ostseelage. Personal vor Ort einfach super. ... Leider funktioniert das Fernsehen über die "Zatto App" nur selten. Diesen Mangel sollte man wirklich abstellen ist ärgerlich. weiterlesen
4,0
5,0
Generel:
Weihnachten in Prora, kurz entschlossen und die Wohnung Seemannsgarn gebucht. Wir wurden herzlich vom Prora Team begrüßt. An dieser Stelle nochmals ein großes Dankeschön, dass ihr immer für uns da seid und mit Rat und Tat flink zur Seite steht. Eine sehr geräumige Wohnung mit allem Komfort sowie ... einer schönen Sauna. Uns hat es an nichts gefehlt, wir kommen auf jeden Fall wieder. weiterlesen
4,8
Generel:
Die Wlan Anbindung ist sehr schlecht, vorallem wenn der Fernseher (Zattoo) darüber genutzt wird. Die Küchenausstattung könnte, um bestimmte Dinge, wie Eierbecher, Schnapsgläser, Kaffeautomaten erweitert werden. Ansonsten war es ein interessanter schöner Herbsturlaub.
5,0
5,0
5,0
Generel:
Eine Klimaanlage h�tte die Unterkunft perfekt gemacht. Vielen Dank nochmal an das Team. Hat alles sehr gut geklappt. Wenn wir wiederkommen, dann bestimmt noch mal in diese Wohnung "H�hnergott". Es hat uns sehr gut bei Ihnen gefallen. F�r uns auf R�gen die erste Adresse.
5,0
Generel:
Team Prora.com sehr empfehlenswert, nett, zuvorkommend, helfend und super freundlich.
5,0
5,0
5,0
Generel:
Sehr gute Kommunikation mit Prora.com. Egal ob Telefon, Email oder direkt vor Ort.
5,0
5,0
Generel:
1 Rolle Toilettenpapier bei Ankunft f�r 2 WC‘‘s ist indiskutable, Abwaschlappen wurde auf eine minimale Gr��e zugeschnitten
5,0
5,0

Faciliteter

  • Afstand

    • Afstand indkøb
      800 m
    • Restaurant afstand
      500 m
    • Strandafstand
      50 m
  • Aktiviteter

    • Cykling
  • Badeværelse

    • Bruser
    • Gæstetoilet
      1
    • Hårtørrer
    • WC
  • Grundlæggende

    • Børn velkomne
    • Etageantal
      2
    • Kvadratmeter
      102 m²
    • Værelser
      3
  • Hus

    • Digital TV
    • Dobbeltsenge
      2
    • Elevator
    • Flueskærm
    • Garderobe
    • Internet
    • Makeup spejl
    • Persienner
    • Radiator
    • Røgalarm
    • Sauna
    • Senge
      6
    • Sovesofaer til én
      2
    • Strygebræt
    • Støvsuger
    • Terrasse
    • TV
    • Underfloor heating
    • Varmt vand
    • Vaskemaskine
    • WiFi
  • Køkken

    • Elkedel
    • Fryser
    • Kaffemaskine
    • Køkken
    • Køleskab
    • Mikroovn
    • Opvaskemaskine
    • Ovn
    • Toaster
  • Udendørs

    • Havemøbler
    • Privat P-plads
    • Terrasse

Miniferie

Der er begrænset mulighed for miniferie hele året, typisk uden for højsæsonen.

Priser og kalender

Kalender

Ankomst
Næste
   Se om emnet er ledigt på den valgte dato
Ledig
Optaget
   Ankomst mulig
Varighed
Personer

Pris

Periode
Ankomst
Afrejse
Varighed
1 uge
Personer
Ingen personer er valgt

Bemærk

Ankomst er ikke valgt.
Der er ikke valgt personer.
Aftale- og lejebetingelser