Ferielejlighed - 6 personer - Südstrand - 18609 - Binz (Ostseebad) Ot Prora

6 personer

Oversigt

Emne nr.: 552-220827
7 overnatninger
Fra DKK 7.868,-
6 voksne 0 børn
Boligareal 62 m²
Soverum 2
Badeværelser 1
Internet
Ikkeryger
Husdyr
  • Tilbyder miniferie Ja
  • Afstand indkøb 800 m
  • Sauna Ja
  • Opvaskemaskine Ja
  • Ladestander til elbil Ja

Beskrivelse

Beskrivelsen foreligger desværre ikke på Dansk. Se teksten på Tysk nedenfor, eller se den maskinoversatte tekst på Dansk.
FeWo Arkonas Strandperle: Stilvolle FeWo mit Meerblick, Gäste-WC & Sky-Sauna

Im Haus Arkona empfängt dich eine helle Ferienwohnung nur 50 m vom Meer entfernt. Zwei Schlafzimmer und ein Wohnbereich mit Balkon öffnen Raum für ruhige Tage über den Dünen. Warme Böden, WLAN, Gäste-WC und der direkte Weg zum Strand begleiten dich. Und hoch oben im Haus wartet die Sky-Sauna mit weitem Blick über die Ostsee. Ein Parkplatz mit E-Ladesäule steht in der Nähe bereit.

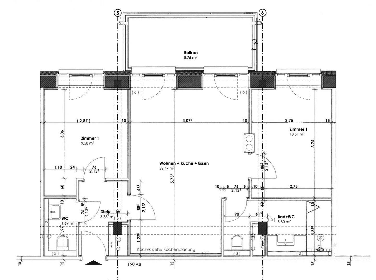
Haus Arkona, 1 Parkplatz mit E-Ladesäule Die Räume im Einzelnen: - Schlafzimmer 1: Doppelbett (180x200), TV - Schlafzimmer 2: 2xEinzelbetten (90x200) - Wohn/Essbereich: Schlafsofa 160x200, TV, Zugang zum Balkon - Balkon mit Tisch und 4 Stühlen, Blick auf das Meer - Vollausgestattete Küche: Kaffeemaschine mit Filter - Badezimmer: Dusche, Haartrockner - Gäste-WC - Aussicht: Dünenlandschaft, Meer - Internetanschluss (WLAN) inkl. - Kinderreisebett in der Wohnung - Fußbodenheizung - direkter Strandzugang - Parkplatz mit E-Ladesäule im Freien in Nähe Ferienwohnung Highlight:, - Sky-Sauna im 5. Obergeschoss mit einer ON-Top Terrasse mit Rundumblick zur Ostsee Sanfte Dünenlandschaften entlang des feinsandigen, kilometerlangen Strandes umgeben das Haus Arkona. Ein Highlight im Haus Arkona ist die Sky-Sauna im 5. Obergeschoss mit einer ON-TOP Terrasse, die einen Rundumblick über die Ostsee, dichte Buchenwälder und romantische Heideflächen bietet. Auf dieser Gemeinschafts-Dachterrasse können Sie die Sonnenstrahlen genießen, Ihre tägliche Sportgymnastik betreiben oder sich einfach nur ausruhen und ein Buch lesen. Naturreservate wie die berühmten Kreidefelsen und die Feuersteinfelder laden zu ausgedehnten Wanderungen ein. Einen Besuch wert ist auf jeden Fall Binz. Das größte Seebad Rügens verzaubert mit seiner Bäderarchitektur und seinem idyllischen Charme. Anmerkungen - Rauchen ist nicht gestattet. - Haustiere sind nicht erlaubt.

Raumaufteilung

  • Schlafzimmer, 2 Personen
    • Kleiderschrank
    • Kingsize-Bett
  • Schlafzimmer, 2 Personen
    • Kleiderschrank
    • 2 x Einzelbett
  • Wohnzimmer, 2 Personen
    • Kleine Doppelcouch

Vores gæsteanmeldelser Eksterne anmeldelser

Ingen gæsteanmeldelser
4,9
10 eksterne anmeldelser
5,0
april 2026
Generel:
Eine schöne gemütliche Ferienwohnung. Würde sofort wieder buchen.
5,0
marts 2026
5,0
Generel:
Eine sehr schöne, zwar kleine, aber gemütliche Wohnung, die in der Realität viel hübscher eingerichtet ist, als die Bilder vermuten lassen. Wir haben uns wohl gefühlt. ... Zwei kleine Tipps an die Besitzer haben wir trotzdem: 1. Da die Fenster ja alle in eine Richtung zeigen und man nicht auf Durchzug lüften kann, wäre ein Ventilator in der Wohnung sehr nützlich. Besonders beim Nachmittagsschläfchen, wenn die Luft “steht“. ? 2. Da die Wandgarderobe im Flur in den Durchgang ragt, bräuchte man da Schutz für die Ecken. Mein Mann ist am ersten Tag voll gegen gelaufen und viele viele Sterne gesehen. Sonst gibt es keinen Grund zur Klage. Wir kommen bestimmt wieder. weiterlesen
5,0
5,0
Generel:
Eine Oase zum wohlfühlen. ... Die Wohnung ist empfehlenswert. weiterlesen
5,0
Generel:
Jederzeit wieder
4,3
Generel:
Sofort nach Einzug mussten wir bei zwei Betten defekte Lattenroste melden. Einige unhygienische Flecken auf dem Sofa und unzureichende Reinigung- es sollte niemanden etwas unter Betten und Sofa rollen, da trifft einen der Schlag. Ablauf in der Dusche ist scheinbar defekt, man muss aufpassen, dass ... man beim Duschen nicht das Bad unter Wasser setzt! Damit ein wirklich unterirdisches Preis-Leistungsverhältnis! weiterlesen
5,0
4,7
4,7

Faciliteter

  • Afstand

    • Afstand indkøb
      800 m
    • Restaurant afstand
      500 m
    • Strandafstand
      50 m
  • Aktiviteter

    • Cykling
  • Badeværelse

    • Bruser
    • Gæstetoilet
      1
    • Hårtørrer
    • WC
  • Grundlæggende

    • Børn velkomne
    • Ikke-ryger
    • Kvadratmeter
      62 m²
    • Værelser
      3
  • Hus

    • Baby seng
      1
    • Elevator
    • Enkeltsenge
      2
    • Flueskærm
    • Garderobe
    • Høj stol
      1
    • Internet
    • Kingsize senge
      1
    • Makeup spejl
    • Radiator
    • Røgalarm
    • Sauna
    • Senge
      6
    • Sovesofaer
      1
    • Spisebord
    • Støvsuger
    • Terrasse
    • TV
    • Underfloor heating
    • Varmt vand
    • WiFi
  • Køkken

    • Elkedel
    • Fryser
    • Kaffemaskine
    • Køkken
    • Køleskab
    • Opvaskemaskine
    • Ovn
    • Toaster
  • Udendørs

    • Elbil opladning
    • Privat P-plads

Miniferie

Der er begrænset mulighed for miniferie hele året, typisk uden for højsæsonen.

Priser og kalender

Kalender

Ankomst
Næste
   Se om emnet er ledigt på den valgte dato
Ledig
Optaget
   Ankomst mulig
Varighed
Personer

Pris

Periode
Ankomst
Afrejse
Varighed
1 uge
Personer
Ingen personer er valgt

Bemærk

Ankomst er ikke valgt.
Der er ikke valgt personer.
Aftale- og lejebetingelser