Rummeligt feriehus med havudsigt i Skallerup

Sommerhus - 6 personer - Anneksvej 20, Skallerup - Skallerup Klit - 9800 - Hjørring

6 personer

Oversigt

Emne nr.: 349-204911
Kan ikke beregne prisen med den valgte periode.
Rummeligt og renoveret feriehus i Skallerup med havudsigt og store terrasser på en ugeneret naturgrund.
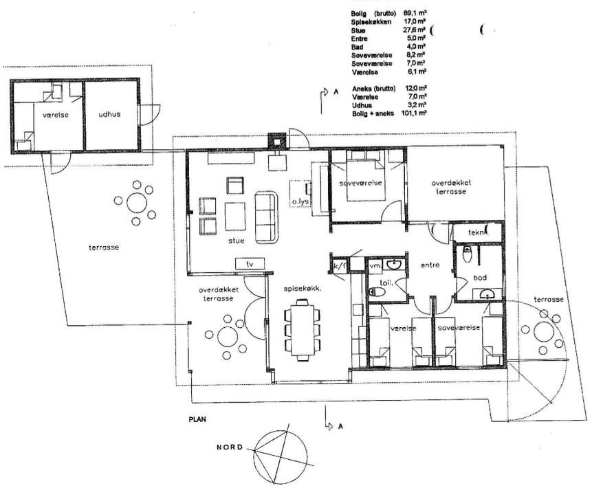
Grundareal 3.907 m²
Boligareal 90 m²
Soverum 3
Badeværelser 2
Afstand vand 880 m
Internet
Ikkeryger
Husdyr
  • Tilbyder miniferie Nej
  • Afstand indkøb 1.300 m
  • Brændeovn Ja
  • Udsigt til vand Ja
  • Vaskemaskine Ja
  • Opvaskemaskine Ja
  • Energivenligt Ja

Beskrivelse

Beliggende på en stor og ugeneret naturgrund i Skallerup finder I dette indbydende og rummelige feriehus. Her er plads til den store familie eller to mindre familier, som ønsker at skabe mindeværdige øjeblikke sammen.

Søger I fred og ro under jeres ferie, er dette feriehus det oplagte valg. Huset ligger på en stor og ugeneret grund i Skallerup med den mest betagende udsigt over det kuperede klitlandskab og det brusende Vesterhav.

Når I har parkeret bilen udenfor huset, mødes I af en stor overdækket terrasse, hvor også husets indgang findes. I træder ind i en rummelig fordelingsgang med god plads til jeres jakker og sko. Herfra er der adgang til 3 gode soveværelser og 2 badeværelser, begge med bruseniche.
Længere inde i huset bliver I mødt af et stort, dejligt og åbent opholdsrum, som byder på et veludstyret køkken med spiseafdeling og en hyggelig stue med sofahjørne, daybeds og en brændeovn, der sikrer en dejlig varme og hygge på kølige aftener. Huset er indenfor de seneste år blevet gennemgribende renoveret. Her har man åbnet opholdsrummet op med loft til kip, og de store vinduer og et ovenlysvindue lader lyset strømme ind i rummet og skabe en lys og indbydende atmosfære.

Huset er desuden udstyret med en varmepumpe, der sikrer et behageligt indeklima året rundt.
 

Sengefordeling

Soveværelse 1: 2 sovepladser (dobbeltseng 2 x 90x200 cm)
Soveværelse 2: 2 sovepladser (2 x enkeltsenge 90x190 cm)
Soveværelse 3: 2 sovepladser (2 x enkeltsenge 85x200 og 85x190 cm)
 

Udendørs

Fra feriehuset har I direkte adgang til flere skønne terrasser, hvoraf de 2 er overdækkede. Den vestvendte terasse indbyder til at samles omkring bordet til en dejlig middag og lange sommeraftener med solnedgang i baggrunden. Her kan I nyde udsigten over det kuperede klitlandskab - I er helt ugeneret her og med god afstand til nærmeste nabo.

Foran huset er der endnu en overdækket terrasse og en stor græsplæne, der indbyder til masser af sjov og boldspil.

En sti fra huset fører jer direkte ned til stranden på kort tid. Her kan I gå langs marehalmen og nå den dejlige sandstrand i Skallerup. I kan også via stier hurtigt gå til Skallerup Seaside Ressort, som byder på et væld af aktiviteter for hele familien.

Omkring feriehuset er der et rigt dyreliv, så chancen for at møde fasaner eller rådyr på jagt efter mad er stor.

Aktiviteter og oplevelser i området 

Skallerup er et charmerende sommerhusområde helt ude på kanten af vestkysten. Området indbyder til lange gåture i både klitter, skov og langs vandet året rundt.

Tag også den korte køretur til Lønstrup, som byder på hyggelige cafeer, restauranter og gode butikker, hvor feriens souvenirs kan købes. Følg kunsthåndværkernes arbejde i deres mange værksteder - en spændende oplevelse.

Når I er i området, bør I også lægge vejen forbi Rubjerg Knude Fyr, som i 2019 blev flyttet 70 meter længere ind i landet af frygt for, at det ville ende i havet. I dette område af Danmark er vejret til tider barsk, og den dramatiske natur omkring fyret viser tydeligt, hvordan havet hvert år æder sig ind på kysten. 

Her er masser at opleve, så book allerede nu - vi glæder os til at byde jer velkomne!

Faciliteter

  • Bad

    • Vaskemaskine
    • Gæstetoilet
      2
    • Badeværelse(r)
      2
    • Gulvvarme i vådrum
  • Køkken

    • Opvaskemaskine
    • Mikroovn
    • Fryser (liter)
      50
    • Kaffemaskine
    • Køleskab
    • Spisebord
    • Ovne
    • Vinglas
    • Potter og pander
    • Tallerkner og skåle
    • Køkkenredskaber
    • Køkken
  • Soverværelser

    • Antal soverum
      3
    • Enkeltsenge
      4
    • Dobbeltseng (180X200 CM)
      1
  • Info

    • Byggeår/Renoveret
      1974
    • Grundareal
      3907
    • Husareal
      90
    • Afstand strand (meter)
      880 m
    • Afstand indkøb (meter)
      1,3 km
    • Havudsigt
    • Renoveret
    • Max antal personer
      6
    • Renoveret
      2018
    • Afstand til golfbane (meter)
      5 km
    • Energivenligt feriehus
    • Feriehus
    • Nøgleboks ved feriehuset
  • Multimedier

    • TV
    • WiFi
    • Danske kanaler
    • Tyske kanaler
    • Svenske programmer
    • Norske kanaler
    • Antal TV
      1
  • Varmekilde

    • Brændeovn / Pejs / Biopejs
    • Elvarme
    • Varmepumpe
  • Udendørs faciliteter

    • Havemøbler
    • Grill
    • Liggestole
      4
    • Gasgrill
    • Parasol
    • Naturgrund
    • Overdækket terrasse
    • Terrasse eller balkon
    • Gratis parkering
  • Faciliteter

    • Ikke-ryger
    • Mulighed for miniferie
    • Egen indgang

Priser og kalender

Kalender

Ankomst
Næste
  • april 2026
    mationtofr
    1412345
    156789101112
    1613141516171819
    1720212223242526
    1827282930
    19
  • maj 2026
    mationtofr
    18123
    1945678910
    2011121314151617
    2118192021222324
    2225262728293031
    23
   Se om emnet er ledigt på den valgte dato
Ledig
Optaget
   Ankomst mulig
Varighed

Pris

Periode
Ankomst
Afrejse
Varighed
Personer
Op til 6 personer

Bemærk

Ankomst er ikke valgt.
Varighed er ikke valgt.
Aftale- og lejebetingelser