Charmerende sommerhus tæt på Rubjerg Knude

Sommerhus - 4 personer - Oddervej - Rubjerg - 9480 - Løkken

4 personer

Oversigt

Emne nr.: 122-LK1918
7 overnatninger
Fra DKK 4.300,-
Inkl. rengøring og forsikring
Charmerende sortmalet sommerhus på stor naturgrund nær Rubjerg Knude med to terrasser og udendørs bruser.
Grundareal 5.485 m²
Boligareal 61 m²
Soverum 2
Badeværelser 1
Afstand vand 800 m
Highspeed internet Highspeed
Ikkeryger
Husdyr
  • Tilbyder miniferie Nej
  • Afstand indkøb 4.400 m
  • Brændeovn Ja
  • Vaskemaskine Ja
  • Energivenligt Ja

Beskrivelse

I kan straks begynde at glæde jer til at holde ferie i dette supercharmerende sommerhus, der ligger på en 5485 m2 stor naturgrund nær Rubjerg Knude.

Velkommen indenfor
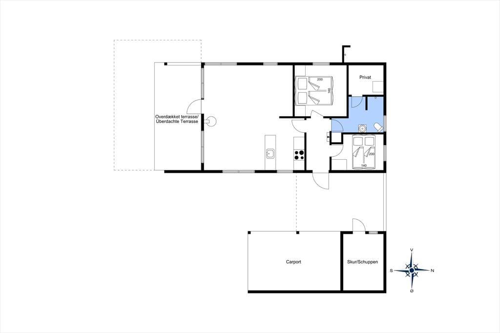
Det sortmalede træsommerhus har ligget her på Oddervej siden 1986, og det er tydeligt at se på den velholdte facade, at det er blevet passet og plejet med årene. Samme indtryk får man inden døre, hvor huset blandt andet er blevet opdateret med et flot køkken, en god brændeovn og en fladskærm i stuen. Rummets rustikke trævægge og hyggelige møblement er med til at skabe den helt rette sommerhusstemning, og det har selvfølgelig også betydning for feriefornemmelsen, at I har udsigt til naturgrundens viltre beplantning. Planløsningen byder for øvrigt på et badeværelse med bruser, og endelig er der to soveværelser.

Nyd livet udenfor
Hvis solskinnet og den naturskønne udsigt giver jer lyst til at rykke driverlivet ud i det fri, kan det nemt lade sig gøre. Der er nemlig to gode træterrasser lige ved huset: Den ene er stor og delvist overdækket, og den anden ligger lige i smørhullet mellem huset og carporten, så de er begge dejlige opholdspladser. Med så stor en naturgrund er der for øvrigt god afstand til nabohusene, så I kan se frem til at lege og slappe af i ugenerede og rolige omgivelser. Derudover byder dette skønne fristed på en udendørs bruser med varmt vand.

Kom tæt på de lokale oplevelser
Sommerhuset ligger godt tilbagetrukket fra Oddervej i et lille og hyggeligt sommerhusområde. Hvis I er taget på ferie for at koble af i naturskønne rammer, har I helt klart kig på det helt rette sted, for her kan dagene forløbe med at tage på små ture ud til Lønstrup Klint, ned til Vesterhavet eller op til Rubjerg Knude. Den berømte vandreklint ligger lige nord for sommerhusområdet, så det er næsten obligatorisk at tage hen for at se Rubjerg Knude Fyr og lege i klitlandskabet. Fra huset har I nem adgang til både Lønstrup og Løkken, og hvis I trænger til en eftermiddag med wellness og badeland, kan I køre til Skallerup Seaside Resort på bare et kvarter.

Husk, at du altid kan låne trækvogne, barnestole og barnesenge hos os i Løkken. Du kan hente dem direkte på bureauet og returnere dem til os igen, når din ferie er vel overstået.


Rumindretning

  • Soveværelse
    • Dobbeltseng - 1x140x200
  • Soveværelse
    • Dobbeltseng - 1x160x200
  • Badeværelse
  • Stue
  • Sovehems
    • Enkelt madras
    • Enkelt madras
  • Køkken-alrum

Vores gæsteanmeldelser Eksterne anmeldelser

4,0
Baseret på 1 vurdering
Vurderet d. 31-08-2025
5
(0)
4
(1)
3
(0)
2
(0)
1
(0)
Kommentarer
Ingen vurderinger har kommentarer.

Faciliteter

  • Hus Info

    • Antal voksne
      4
    • Bruser
    • Byggeår
      1986
    • Grundareal / Naturgrund
      5485 m²
    • Husareal
      61 m²
    • WC
  • Afstande

    • Afstand golfbane
      7,7 km
    • Afstand indkøb / Helårsbutik
      4,4 km
    • Afstand restaurant
      5,4 km
    • Afstand strand / Sandstrand
      800 m
  • Energi / Opvarmning

    • Brændeovn
    • Elvarme
    • Varmepumpe
  • Hårde hvidevarer

    • Elkedel
    • Emhætte
    • Fryser
    • Kaffemaskine
    • Kogeplader
    • Køleskab
    • Køleskab med frys
    • Mikroovn
    • Ovn
    • Vaskemaskine
  • Multimedier

    • Apple TV
    • Dansk tv
    • Gratis Wi-Fi - Over 100 Mbit
    • TV
    • Tysk TV
  • Ekstra

    • Golfferie
    • Vandrevenlig
  • Udenfor

    • Garage
    • Grill
    • Parkering på grunden
    • Terrasse
    • Udendørs bruser
      Med koldt og varmt vand
  • Diverse

    • Afmærkede vandreruter i nærheden
    • Tørrestativ / Tørresnor
  • Regler

    • Husdyr ikke tilladt
    • Opladning af elbil ikke tilladt
    • Rygning ikke tilladt
  • Pris inklusiv

    • Slutrengøring inkl.

Priser og kalender

Kalender

Ankomst
Forrige Næste
  • maj 2026
    mationtofr
    18123
    1945678910
    2011121314151617
    2118192021222324
    2225262728293031
    23
  • juni 2026
    mationtofr
    231234567
    24891011121314
    2515161718192021
    2622232425262728
    272930
    28
   Se om emnet er ledigt på den valgte dato
Ledig
Optaget
   Ankomst mulig
Varighed

Pris

Periode
Ankomst
Afrejse
Varighed
1 uge
Personer
Op til 4 personer

Bemærk

Ankomst er ikke valgt.
Aftale- og lejebetingelser