Hyggeligt feriehus med terrasse tæt på Vesterhavet
Sommerhus - 4 personer - Lyngvejen 1, Klegod - Klegod - 6950 - Ringkøbing
Alternative emner
Sommerhuse i nærheden (678)4 personer
Oversigt
Emne nr.: 549-943646
7 overnatninger
Fra
DKK 1.979,-
Hyggeligt feriehus i Klegod med brændeovn, stor terrasse og tæt på Vesterhavet – ideelt til familier og kæledyr.
- Tilbyder miniferie Nej
- Afstand indkøb 3 km
- Parabol/kabel TV Ja
- Brændeovn Ja
- Vaskemaskine Ja
- Opvaskemaskine Ja
Beskrivelse
Dette hyggelige, ældre feriehus, bygget i 1986, ligger i den fredelige og naturskønne landsby Klegod. Det tilbyder 76 m² boligareal til fire personer, og du er velkommen til at medbringe et kæledyr. Dette feriehus er ideelt til en lille familie eller et par, der ønsker at nyde en ferie med deres kæledyr.
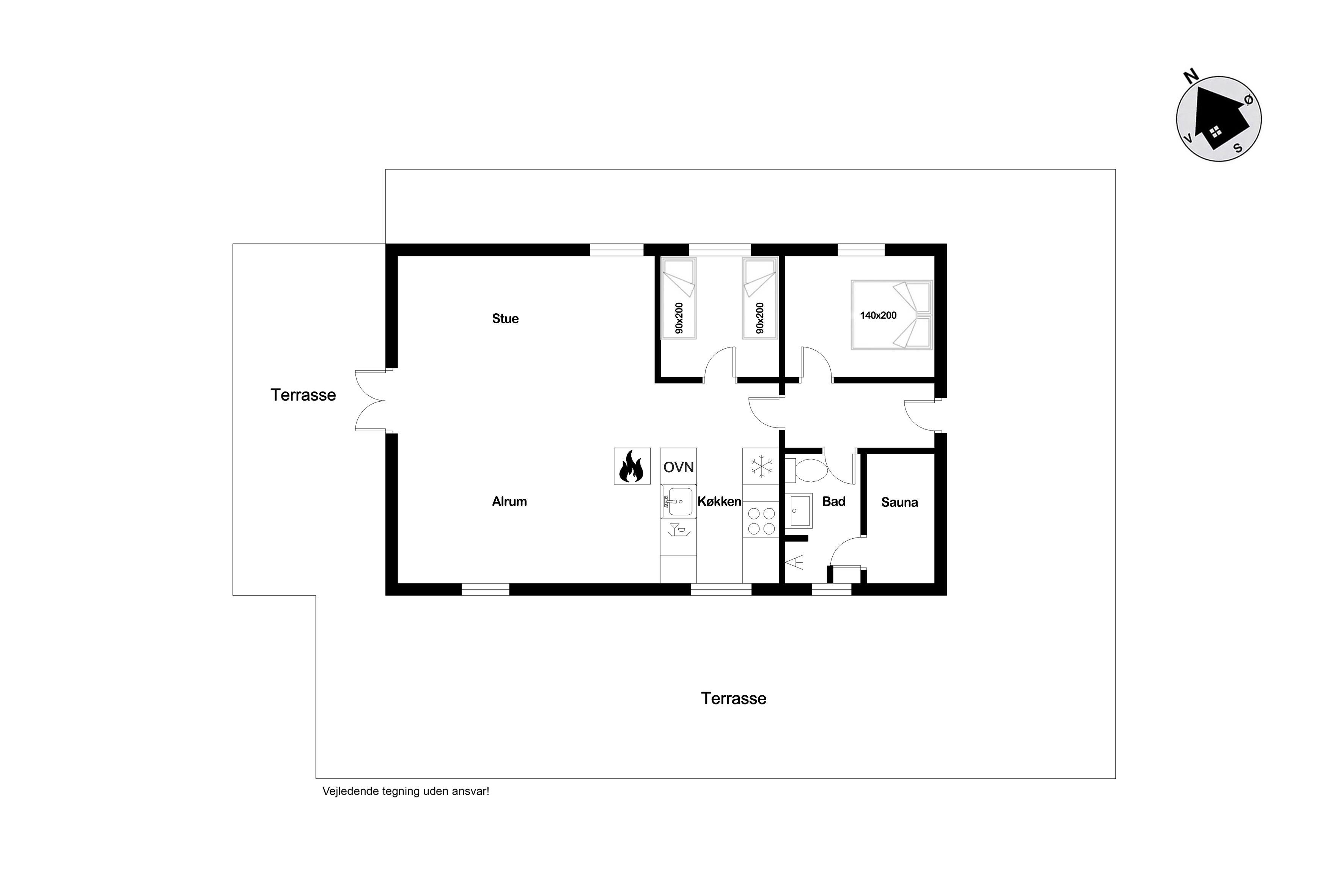
Det åbne opholds-/køkkenområde skaber en hyggelig atmosfære – perfekt til at tilbringe tid med familie, venner eller blot som et par. Nyd varmen fra brændeovnen på kølige aftener, og lyt til knitren af ??brændet, mens flammerne blafrer. Feriehuset er udstyret med tv, parabolantenne og Chromecast. Hold dig forbundet med gratis Wi-Fi for at dele dine oplevelser, holde dig opdateret eller surfe på internettet. Det ene af de to soveværelser har en dobbeltseng, mens det andet har to enkeltsenge til en god nats søvn. Det mindre badeværelse har bruser og toilet. Bemærk venligst, at saunaen vist på plantegningen ikke er tilgængelig til brug. Køkkenet er veludstyret med keramisk kogeplade med fire blus, køleskab med en fryser på 39 liter og opvaskemaskine, der gør madlavningen til en fornøjelse. Du finder også vaskemaskinen her.
Den store terrasse strækker sig rundt om hele huset og er perfekt til afslapning og udendørs spisning, hvor I kan nyde solen og den friske havluft. Selv på mere blæsende dage finder I et beskyttet sted her. Omgivet af rosenbuske har I også naturlig privatliv og kan sole jer på den store græsplæne. Feriehuset ligger i gåafstand fra Vesterhavet, så I nemt kan tage en tur til stranden og nyde de brusende bølger.
Det åbne opholds-/køkkenområde skaber en hyggelig atmosfære – perfekt til at tilbringe tid med familie, venner eller blot som et par. Nyd varmen fra brændeovnen på kølige aftener, og lyt til knitren af ??brændet, mens flammerne blafrer. Feriehuset er udstyret med tv, parabolantenne og Chromecast. Hold dig forbundet med gratis Wi-Fi for at dele dine oplevelser, holde dig opdateret eller surfe på internettet. Det ene af de to soveværelser har en dobbeltseng, mens det andet har to enkeltsenge til en god nats søvn. Det mindre badeværelse har bruser og toilet. Bemærk venligst, at saunaen vist på plantegningen ikke er tilgængelig til brug. Køkkenet er veludstyret med keramisk kogeplade med fire blus, køleskab med en fryser på 39 liter og opvaskemaskine, der gør madlavningen til en fornøjelse. Du finder også vaskemaskinen her.
Den store terrasse strækker sig rundt om hele huset og er perfekt til afslapning og udendørs spisning, hvor I kan nyde solen og den friske havluft. Selv på mere blæsende dage finder I et beskyttet sted her. Omgivet af rosenbuske har I også naturlig privatliv og kan sole jer på den store græsplæne. Feriehuset ligger i gåafstand fra Vesterhavet, så I nemt kan tage en tur til stranden og nyde de brusende bølger.
Vores gæsteanmeldelser Eksterne anmeldelser
Faciliteter
-
Huset - udendørs
-
Terrasse
-
Parkering3
-
Parasol1
-
-
Hårde hvidevarer
-
Vaskemaskine
-
Mikrobølgeovn
-
Fryser (liter)39
-
Køle-/fryseskab
-
Kogeplader
-
Opvaskemaskine1
-
Ovn1
-
-
Afstande
-
Afstand til hav975 m
-
Afstand til indkøb3 km
-
Afstand til restauranten3 km
-
Afstande til fjorden2 km
-
Afstand til Golfbane5,1 km
-
Afstand til fiskesø1,2 km
-
-
Multimedier
-
Parabol
-
Radio
-
Internet
-
Chromecast
-
-
Huset - indendørs
-
Brændeovn
-
Soverværelser2
-
Dobbeltsenge1
-
Enkeltsenge2
-
Toiletter1
-
Bad1
-
Trægulv
-
Sovepladser4
-
Tørrestativ1
-
-
Huset
-
Byggeår1986
-
Grundareal2048
-
Boligareal76
-
Husdyr tilladt
-
Børnevenligt
-
Max antal personer4
-
Nøgle ved huset
-
Antal husdyr1
-
-
TV pakke
-
TV1
-
-
Køkken
-
Kaffemaskine
-
Elkedel
-
-
Faciliteter
-
Ikke-ryger
-
Ovn
-
Hvide Sande Kontor
-
Stjerne2
-
Priser og kalender
Kalender
Varighed
Pris
Periode
- Ankomst
- Afrejse
- Varighed
- 1 uge
Personer
Op til 4 personer
Bemærk
Ankomst er ikke valgt.