Hyggeligt sommerhus med pool nær Vesterhavet
Sommerhus - 10 personer - Opstrupsvej - Klegod - 6950 - Ringkøbing
Alternative emner
Sommerhuse i nærheden (484)10 personer
Oversigt
Emne nr.: 121-22-2023
7 overnatninger
Fra
DKK 6.830,-
Valgfri rengøring: DKK 1.491,-
Hyggeligt stråtækt sommerhus ved Vesterhavet med indendørs pool, sauna og stor naturgrund for afslapning og leg.
- Tilbyder miniferie Ja
- Afstand indkøb 5 km
- Swimmingpool inde Ja
- Spa Ja
- Sauna Ja
- Brændeovn Ja
- Vaskemaskine Ja
- Tørretumbler Ja
- Opvaskemaskine Ja
- Energivenligt Ja
Beskrivelse
Dette hyggelige, stråtækte sommerhus ligger smukt placeret - på en klitgrund tæt ved Vesterhavet. Her er der rig mulighed for at nyde afslappende øjeblikke med familie og venner – både udenfor på terrassen og indenfor i den indbydende, varme atmosfære.
Indretning
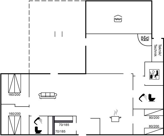
Sommerhuset egner sig til 10 personer. 2 af sovepladserne er kun egnet til større børn (4-11 år). Ferieboligen er på 175 m² og er bygget i 1989. I 2025 gennemgik ferieboligen en delvis renovering. Det er tilladt at medbringe 2 husdyr. Ferieboligen er udstyret med 1 energivenlig luft til vand varmepumpe og 1 energivenlig luft til luft varmepumpe. Ferieboligen har vaskemaskine. Tørretumbler. Frysekapacitet på 70 liter. Der er desuden brændeovn. Til de små er der 1 stk. barnestol.
Udenfor
Ferieboligen er beliggende på en 2500 m² stor naturgrund. Der er 850 m til havet. Nærmeste forretning er beliggende i en afstand af 5000 m. Til ferieboligen hører åbent terrasseareal. Gynge. Sandkasse. Parkering ved ferieboligen.
Swimmingpool
I den indendørs swimmingpool er der mulighed for leg og hyggeligt samvær. Swimmingpoolen måler op til 4 m i bredden, 6 m i længden og den er op til 1,3 m dyb. Vandet er mellem 24 og 28° C varmt.
Soveforhold
Der er i alt 4 soveværelser. Sovepladserne fordeler sig på: 4 sovepladser i dobbeltsenge. 2 sovepladser i enkeltsenge. 4 sovepladser i køjesenge. Derudover er der 1 stk. barneseng.
Køkken
Køkkenet er udstyret med 1 køleskab. Der er 4 keramiske kogeplader, varmluftovn, mikrobølgeovn samt opvaskemaskine.
Toilet og bad
Der er 2 badeværelser med bruseniche og 2 toiletter. Der er gulvvarme på 2 badeværelser. I saunaen er der mulighed for afslapning.
Spa
I den indendørs standvandsspa er der plads til 4 personer.
Multimedier
I ferieboligen er der 1 Smart-TV. TV via internet. Der er 1-3 danske kanaler. 1-3 tyske kanaler. Der er trådløst internet til rådighed.
Værd at vide
Ingen udlejning til ungdomsgrupper, hvor alle er 15-25 år. Rygning ikke tilladt. Ved overtrædelse af forbuddet opkræves et gebyr på minimum DKK 3.000,-.
Indretning
Sommerhuset egner sig til 10 personer. 2 af sovepladserne er kun egnet til større børn (4-11 år). Ferieboligen er på 175 m² og er bygget i 1989. I 2025 gennemgik ferieboligen en delvis renovering. Det er tilladt at medbringe 2 husdyr. Ferieboligen er udstyret med 1 energivenlig luft til vand varmepumpe og 1 energivenlig luft til luft varmepumpe. Ferieboligen har vaskemaskine. Tørretumbler. Frysekapacitet på 70 liter. Der er desuden brændeovn. Til de små er der 1 stk. barnestol.
Udenfor
Ferieboligen er beliggende på en 2500 m² stor naturgrund. Der er 850 m til havet. Nærmeste forretning er beliggende i en afstand af 5000 m. Til ferieboligen hører åbent terrasseareal. Gynge. Sandkasse. Parkering ved ferieboligen.
Swimmingpool
I den indendørs swimmingpool er der mulighed for leg og hyggeligt samvær. Swimmingpoolen måler op til 4 m i bredden, 6 m i længden og den er op til 1,3 m dyb. Vandet er mellem 24 og 28° C varmt.
Soveforhold
Der er i alt 4 soveværelser. Sovepladserne fordeler sig på: 4 sovepladser i dobbeltsenge. 2 sovepladser i enkeltsenge. 4 sovepladser i køjesenge. Derudover er der 1 stk. barneseng.
Køkken
Køkkenet er udstyret med 1 køleskab. Der er 4 keramiske kogeplader, varmluftovn, mikrobølgeovn samt opvaskemaskine.
Toilet og bad
Der er 2 badeværelser med bruseniche og 2 toiletter. Der er gulvvarme på 2 badeværelser. I saunaen er der mulighed for afslapning.
Spa
I den indendørs standvandsspa er der plads til 4 personer.
Multimedier
I ferieboligen er der 1 Smart-TV. TV via internet. Der er 1-3 danske kanaler. 1-3 tyske kanaler. Der er trådløst internet til rådighed.
Værd at vide
Ingen udlejning til ungdomsgrupper, hvor alle er 15-25 år. Rygning ikke tilladt. Ved overtrædelse af forbuddet opkræves et gebyr på minimum DKK 3.000,-.
Faciliteter
-
Adgang til ferieboligen
-
Nøgleboks med kode
-
-
Bemærk
-
Ingen ungdomsgrupper efter anmodning
-
Rygning er forbudt
-
-
Indretning
-
Antal børn 4-11 år2
-
Antal voksne inkl. 4-11 år10
-
Bebygget areal175 m²
-
Brændeovn1
-
Byggeår1989
-
Feriebolig
-
Frysekapacitet (antal liter)70
-
Husdyr2
-
Højstol1
-
Renoveringsår2025
-
Tørretumbler1
-
Varmepumpe
-
Varmepumpe luft til luft
-
Varmepumpe luft til vand
-
Vaskemaskine1
-
-
Køkken
-
Antal keramiske kogeplader4
-
Køleskab1
-
Mikrobølgeovn1
-
Opvaskemaskine1
-
Varmluftovn1
-
-
Multimedier
-
0-3 danske kanaler
-
0-3 tyske kanaler
-
Antal tv'er1
-
Smart-Tv1
-
Trådløst internet
-
TV igennem
-
-
Soveforhold
-
Antal soveværelser4
-
Barneseng1
-
Dobbeltseng (antal sovepladser)4
-
Enkeltseng (antal sovepladser)2
-
Køjeseng (antal sovepladser)4
-
-
Spa
-
Indendørs forfyldt spabad (antal personer)4
-
-
Swimmingpool
-
Indendørs swimmingpool
-
Svømmebassinets bredde4
-
Svømmebassinets dybde1,3
-
Svømmebassinets længde6
-
-
Toilet og bad
-
Antal badeværelser2
-
Antal toiletter2
-
Brusekabine
-
Gulvvarme2
-
Sauna
-
-
Udenfor
-
Butik5 km
-
gynge
-
Hav850 m
-
Natursted
-
Parkeringsplads ved huset
-
Sandkasse
-
Størrelse af grunden2500 m²
-
Terrasse
-
Miniferie
Der er begrænset mulighed for miniferie hele året, typisk uden for højsæsonen.
Priser og kalender
Kalender
Varighed
Pris
Periode
- Ankomst
- Afrejse
- Varighed
- 1 uge
Personer
Op til 10 personer
Bemærk
Ankomst er ikke valgt.