Skønt sommerhus med terrasse og havudsigt

Sommerhus - 8 personer - Engvibevej - Gniben & Havnebyen - 4583 - Sjællands Odde

8 personer
heraf 2 børn (0-11 år)

Oversigt

Emne nr.: 035-12229
7 overnatninger
Fra DKK 9.620,-
Inkl. rengøring og forsikring
Skønt sommerhus kun 150 m fra stranden med stor terrasse, shelter og aktivitetsrum, perfekt til afslapning og oplevelser ved Sjællands Odde.
Grundareal 3.000 m²
Boligareal 116 m²
Soverum 3
Badeværelser 1
Afstand vand 150 m
Highspeed internet Highspeed
Ikkeryger
Husdyr
  • Tilbyder miniferie Nej
  • Afstand indkøb 5.900 m
  • Parabol/kabel TV Ja
  • Brændeovn Ja
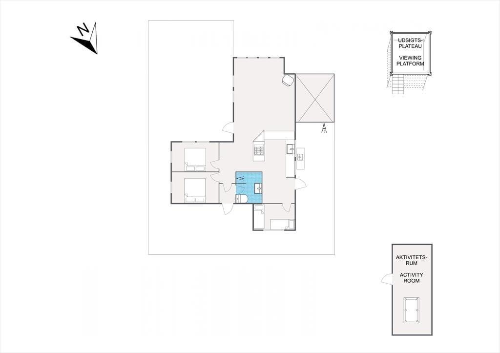
  • Aktivitetsrum Ja
  • Gode fiskeforhold Ja
  • Udsigt til vand Ja
  • Aircondition Ja
  • Vaskemaskine Ja
  • Tørretumbler Ja
  • Opvaskemaskine Ja
  • Energivenligt Ja

Beskrivelse

Dette skønne sommerhus er beliggende kun 150 m fra stranden. Der er bl.a. adgang til 180m2 dejlig solrig terrasse opdelt i flere afdelinger, der er både shelter og aktivitetsrum, et sommerhus, der bare skal opleves, det kan ikke beskrives.

Indendørs
I stuen, er der mulighed for at hygge med en god kop kaffe eller nyde en dejlig frokost i den hyggelig spiseafdeling. Fra stuen er der adgang til husets fantastiske terrasse, hvor du både kan tage et svalende bad under den dejlige udebruser eller tilberede maden på det fine udekøkken, hvis du foretrækker bål mad er det også en mulighed. Du kan også bare vælge at nyde solen og den skønne udsigt mod havet. Er du god til at kokkerere, er der et særdeles lækkert åbent køkken til din disposition. Der tilhører tre skønne soveværelser og herudover er der et dejligt badeværelse med brus. Husk også et spil billard eller dart i aktivitetsrummet eller nyd stjernehimmelen fra den tilhørende shelter. Alt i huset fremstår særdeles indbydende, lyst og lækkert, det er nænsomt opført i de bedste materialer. Ungdomsgrupper er ikke velkomne.


Beliggenhed/Område
Fantastisk grund, hvor du både kan opleve fuglesang og se et rådyr gå forbi. Husk en tur til den charmerende Havneby på Sjællands Odde, hvor du kan spise en god frokost ved fiskemandens borde/bænke. Husk også at besøge søheltens grav, Søheltepladsen, Kastanielys (livsstilsbutik), eller den nærliggende vingård (Ørnberg), der flere gange er blevet kåret til Danmarks bedste vindyrker. Og sidst men ikke mindst udsigtspladsen på Gniben ved artilleriskolen på spidsen af Sjælland, hvor du på bænken kan nyde din medbragte kaffe og se sæler på heldige dage. Men området indbyder bestemt også til en vandre- eller cykeltur, hvor du virkelig kan få Geopark Odsherred helt ind under huden. Husk også det fantastiske brød fra Tir Bageri – kun 1,5 km fra huset




Faciliteter

  • Hus Info

    • Anneksareal
      30 m²
    • Antal børn
      2
    • Antal voksne
      6
    • Bruser
    • Byggeår
      2015
    • Grundareal / Have
      3000 m²
    • Havudsigt
    • Husareal
      116 m²
    • WC
  • Afstande

    • Afstand golfbane
      21,7 km
    • Afstand indkøb / Helårsbutik
      5,9 km
    • Afstand restaurant
      6 km
    • Afstand strand / Stenstrand
      150 m
    • Afstand svømmehal
      26,4 km
  • Energi / Opvarmning

    • Brændeovn
    • Elvarme
    • Varmepumpe / Med køl
  • Hårde hvidevarer

    • Elkedel
    • Emhætte
    • Kaffemaskine
    • Kogeplader
      Induktion
    • Køleskab med frys
    • Mikroovn
    • Opvaskemaskine
    • Ovn
    • Tørretumbler
    • Vaskemaskine
  • Multimedier

    • Dansk tv
    • Gratis Wi-Fi - Over 20 Mbit
    • Kabel-TV
    • Norsk TV
    • Svensk TV
    • TV
    • Tysk TV
  • Ekstra

    • Aktivitetshus
    • Barneseng
    • Barnestol
    • Børnevenlig
    • Cykelvenlig
    • Dart
    • Gode fiskeforhold
    • Lystfiskervenlig
    • Pool/billard
    • Vandrevenlig
  • Udenfor

    • Bålsted
    • Grill
    • Havemøbler
    • Liggestole
    • Parasol
    • Parkering på grunden
    • Shelter
    • Udendørs bruser
    • Udendørs køkken
    • Åben terrasse
      180 m²
  • Diverse

    • 2 x Dobbeltseng
    • 2 x enkeltseng
    • 2 x Flise-/klinkegulv
    • 6 x Træ-/parketgulv
    • Gulvvarme
    • Sovesofa dobbelt
    • Åbent køkken
  • Regler

    • Husdyr ikke tilladt
    • Opladning af elbil ikke tilladt
    • Rygning ikke tilladt
  • Pris inklusiv

    • Slutrengøring inkl.
    • Vand inkl.
  • GAMMEL

    • Radio

Priser og kalender

Kalender

Ankomst
Forrige Næste
  • juni 2026
    mationtofr
    231234567
    24891011121314
    2515161718192021
    2622232425262728
    272930
    28
  • juli 2026
    mationtofr
    2712345
    286789101112
    2913141516171819
    3020212223242526
    312728293031
    32
   Se om emnet er ledigt på den valgte dato
Ledig
Optaget
   Ankomst mulig
Varighed

Pris

Periode
Ankomst
Afrejse
Varighed
1 uge
Personer
Op til 8 personer
heraf 2 børn (0-11 år)

Bemærk

Ankomst er ikke valgt.
Aftale- og lejebetingelser