Sommerhus - 6 personer - 54655 - Malberg
Alternative emner
Sommerhuse i nærheden (4)6 personer
Oversigt
Emne nr.: 354-DE-54655-40
7 overnatninger
Fra
DKK 20.063,-
- Tilbyder miniferie Ja
- Afstand indkøb 1 km
- Swimmingpool Ja
- Handicapvenligt Ja
- Vaskemaskine Ja
- Tørretumbler Ja
- Opvaskemaskine Ja
Beskrivelse
Feriehus i Malberg med swimmingpool
Bolig:
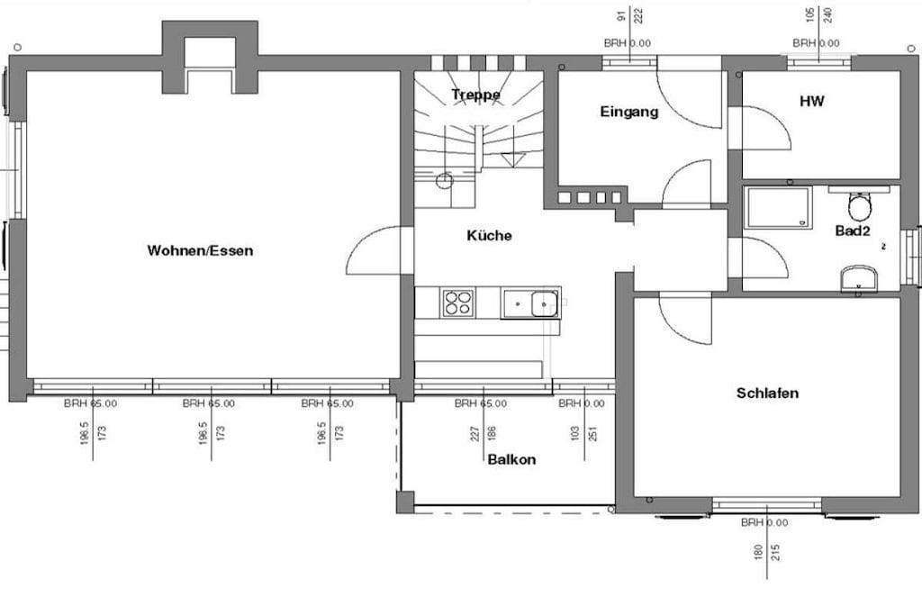
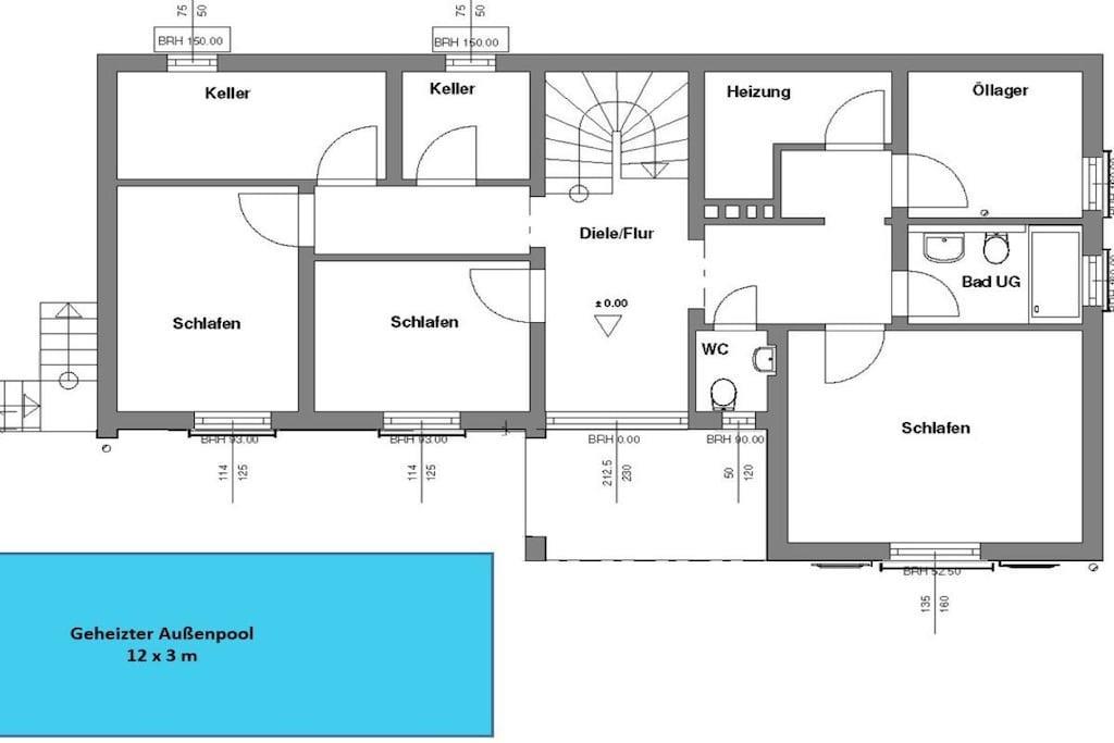
Det 5-stjernede feriehus Annenberg har en uforlignelig sydvestvendt beliggenhed højt over Kyll-dalen med en betagende udsigt over Malberg Slot og Kyllburg Klosterkirke. Det blev bygget i 1960'erne som arkitekthus og blev omfattende, men omhyggeligt renoveret af de nye ejere i 2015/16. Det ligger midt i en stor havegrund på en bjergskråning og tilbyder forskellige terrasser i to etager, en stue med åben pejs og som et højdepunkt en udendørs pool (12x3m, vanddybde 140cm, 27°C) opvarmet i højsæsonen med storslået udsigt over Kyll-dalen. Det har en sydvestvendt beliggenhed (86 trin) på skråningen nedenfor skovbrynet med en elektrisk udendørs lift til last og bagage. Cykler eller elcykler (anbefales kraftigt!) kan låses i ejendommens egne skabe. Opvarmet pool (27°C) til eksklusiv brug. (fra 01.05. til 30.09.)
Layout:
Stueetage: (entre(, ), Køkken(kogeplade, komfur, kaffemaskine, ovn, mikrobølgeovn, opvaskemaskine , køleskab, fryser), stue / spisestue(, Fjernsyn, Fjernsyn, spisebord, pejs), soveværelse(, , dobbeltseng, radio), badeværelse(, , toilet, badekar, badekar, bruser, håndvask, føntørrer), pulterkammer(, tørretumbler, vaskemaskine, strygebræt, strygejern, tørreskab)) Kælderetage: (entre, soveværelse(, , enkeltseng), soveværelse(, , enkeltseng), soveværelse(, , dobbeltseng, radio), svalegang soveværelse, badeværelse(, , toilet, badekar, bruser, håndvask, føntørrer), guest toilet(, toilet, håndvask)) , , , , , Internetadgang, Førstehjælp, tørretumbler, vaskemaskine, balkon(havemøbler, baldakin), varme, terrasse(, havemøbler, solstole), terrasse(, havemøbler, solstole), have(Grill center, Græsplæne, grill, solstole, swimmingpool, Haveskur), parkering, parkering, strygebræt, strygejern, tørreskab, Vaskeripakke mod et gebyr, Alarm, telefon
Bolig:
Det 5-stjernede feriehus Annenberg har en uforlignelig sydvestvendt beliggenhed højt over Kyll-dalen med en betagende udsigt over Malberg Slot og Kyllburg Klosterkirke. Det blev bygget i 1960'erne som arkitekthus og blev omfattende, men omhyggeligt renoveret af de nye ejere i 2015/16. Det ligger midt i en stor havegrund på en bjergskråning og tilbyder forskellige terrasser i to etager, en stue med åben pejs og som et højdepunkt en udendørs pool (12x3m, vanddybde 140cm, 27°C) opvarmet i højsæsonen med storslået udsigt over Kyll-dalen. Det har en sydvestvendt beliggenhed (86 trin) på skråningen nedenfor skovbrynet med en elektrisk udendørs lift til last og bagage. Cykler eller elcykler (anbefales kraftigt!) kan låses i ejendommens egne skabe. Opvarmet pool (27°C) til eksklusiv brug. (fra 01.05. til 30.09.)
Layout:
Stueetage: (entre(, ), Køkken(kogeplade, komfur, kaffemaskine, ovn, mikrobølgeovn, opvaskemaskine , køleskab, fryser), stue / spisestue(, Fjernsyn, Fjernsyn, spisebord, pejs), soveværelse(, , dobbeltseng, radio), badeværelse(, , toilet, badekar, badekar, bruser, håndvask, føntørrer), pulterkammer(, tørretumbler, vaskemaskine, strygebræt, strygejern, tørreskab)) Kælderetage: (entre, soveværelse(, , enkeltseng), soveværelse(, , enkeltseng), soveværelse(, , dobbeltseng, radio), svalegang soveværelse, badeværelse(, , toilet, badekar, bruser, håndvask, føntørrer), guest toilet(, toilet, håndvask)) , , , , , Internetadgang, Førstehjælp, tørretumbler, vaskemaskine, balkon(havemøbler, baldakin), varme, terrasse(, havemøbler, solstole), terrasse(, havemøbler, solstole), have(Grill center, Græsplæne, grill, solstole, swimmingpool, Haveskur), parkering, parkering, strygebræt, strygejern, tørreskab, Vaskeripakke mod et gebyr, Alarm, telefon
Faciliteter
-
Afstand
-
Banegård1 km
-
Busstop600 m
-
Doktor500 m
-
Restauranter1 km
-
Shopping1 km
-
-
Andre
-
Alarm
-
Gæstetoilet
-
Hårtørrer
-
Linnedpakke mod betaling
-
Markise
-
Radiator
-
Strygebræt
-
Strygejern
-
Terrasse
-
Tørreskab
-
-
Byggestatus
-
Top placering
-
-
Generel Information
-
Boligareal140 m²
-
Ikkeryger
-
WiFi
-
-
Handicap - Mål
-
Frihøjde under håndvasken >= 70 cm
-
-
Hjemmesikkerhed
-
Alarm
-
Førstehjælpskasse
-
-
Køkkenudstyr
-
Fryser
-
Grill
-
Kaffemaskine
-
Kogeplade
-
Komfur
-
Køleskab
-
Mikroovn
-
Opvaskemaskine
-
Ovn
-
-
Offentlige rum
-
Lawn
-
-
Parkfaciliteter
-
Førstehjælp
-
Grillcenter
-
Internetadgang
-
-
Rundt om huset
-
Have
-
Havemøbler
-
Haveskur
-
Internetadgang DSL
-
Parkering
-
Sun loungers
-
Swimming pool
-
Terrasse
-
-
Sanitet / Vask
-
Badekar
-
Bruser
-
Håndvask
-
Tørretumbler
-
Varmt vand
-
Vaskemaskine
-
-
Type
-
Feriebolig
-
-
Værelsesudstyr
-
Brandalarm
-
Garderobe
-
Garderobehylde
-
Makeup-spejl
-
Pejs
-
Radio
-
Sengetøj
-
Sikkerheds boks
-
Sofa
-
Sol paraply
-
Spejl
-
Spisebord
-
Støvsuger
-
Telefon
-
TV
-
Miniferie
Der er begrænset mulighed for miniferie hele året, typisk uden for højsæsonen.
Priser og kalender
Kalender
Varighed
Pris
Periode
- Ankomst
- Afrejse
- Varighed
- 1 uge
Personer
Op til 6 personer
Bemærk
Ankomst er ikke valgt.