Bondegård - 6 personer - Reckerstal - 97999 - Igersheim
Alternative emner
Sommerhuse i nærheden (16)6 personer
Oversigt
Emne nr.: 530-674075
7 overnatninger
Fra
DKK 10.629,-
- Tilbyder miniferie Ja
- Parabol/kabel TV Ja
- Vaskemaskine Ja
- Opvaskemaskine Ja
Beskrivelse
Beskrivelsen foreligger desværre ikke på Dansk. Se teksten på Tysk nedenfor, eller se den maskinoversatte tekst på Dansk.
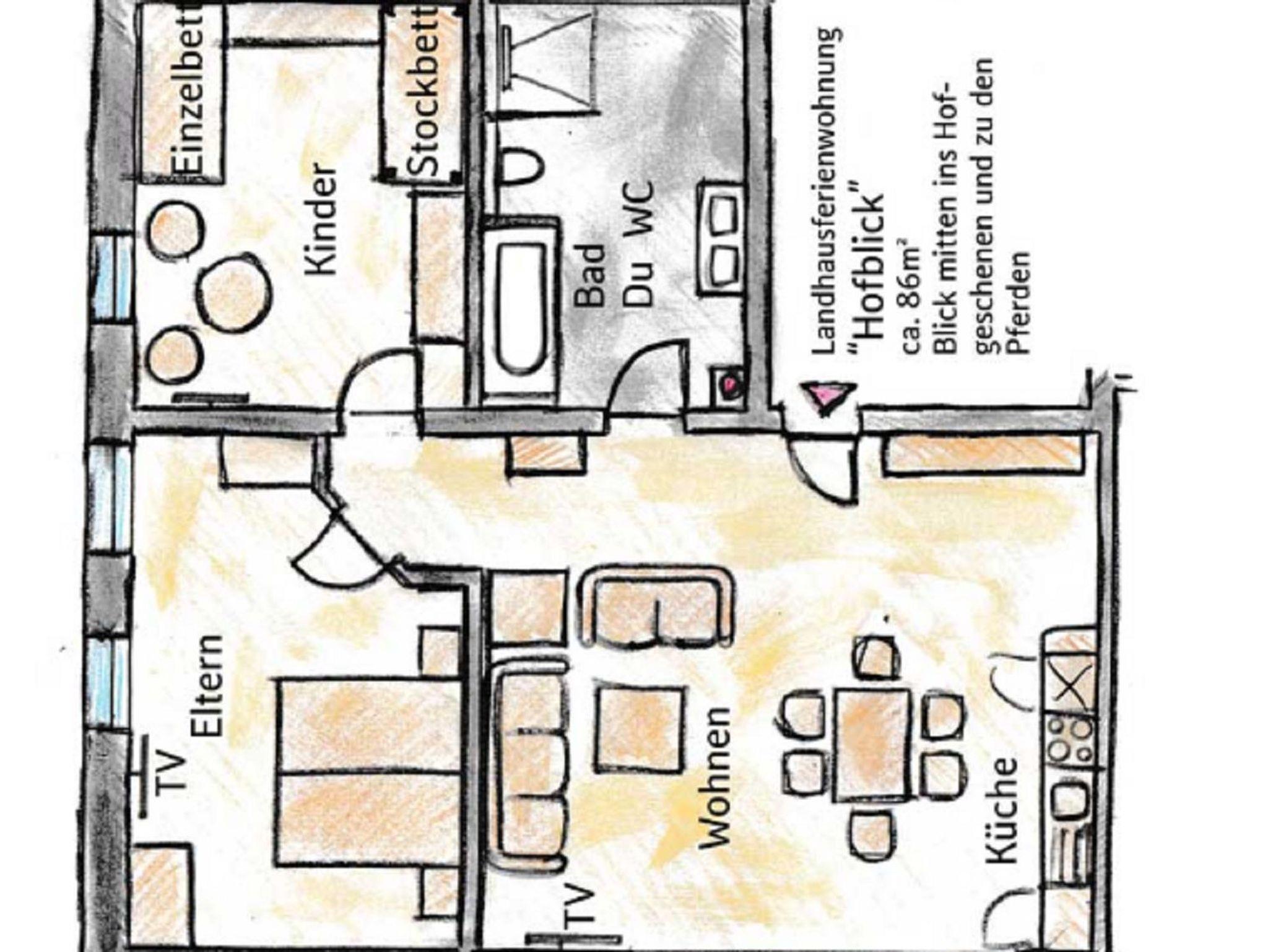
Urlaubsreiterhof Trunk, Ferienwohnung Hofblick - modern eingerichtet mit zwei Schlafzimmern
Der Urlaubsreiterhof Trunk bietet auf einem sehr idyllischen, weitläufigen Hof eine familiäre Wohlfühlatmosphäre inmitten der Natur des Lieblichen Taubertales und unseren Pferden/Ponys, Hund, Katzen, Hasen, Ziege.
16 Ferienwohnungen im modernen Landhausstil mit herrlichem Ausblick auf eine wunderschöne Landschaft.
Viele gemütliche Plätze auf der Liegewiese, im Innenhof oder am Schwimmteich laden zum Verweilen ein. Lagerfeuer, E-Bike-Touren, Bogenbauen, Tischtennis runden das Angebot ab. Dies macht Ihren Urlaub hier einzigartig und lässt Sie schnell entschleunigen.
Außerhalb unseres Hofes laden das historische Bad Mergentheim, Weikersheim, Rothenburg ob der Tauber zu einem Tagesausflug ein.
Auch Nichtreiter können sich auf den herrlichen Wander- u. Radwegen durchs Liebliche Taubertal sportlich betätigen.
Falls Sie Lust haben das Glück der Erde auf dem Rücken der Pferde zu erleben..., hier haben Sie die Möglichkeit dazu. Schauen Sie doch gleich unser Hofvideo auf an!
Die Ferienwohnungen Heinrichsruhe, Wengertsblick und Wiesengrund sind vom DTV mit der maximal Bewertung von 5 Pfoten als besonders hundefreundliche Unterkunft klassifiziert!
Konditionen
Zahlungsmöglichkeit: Bar, Kreditkarte, Vorabüberweisung, Paypal.
Eine Vorauszahlung von 100 Euro kann nach Buchung berechnet werden.
Stornierungen bis 30 Tage vor Anreise sind kostenfrei, Stornierungen zwischen 30-14 Tagen vor der Anreise werden mit 50% der Gesamtkosten berechnet, Stornierungen in den 14 Tagen vor der Anreise werden mit 100% der Gesamtkosten berechnet.
16 Ferienwohnungen im modernen Landhausstil mit herrlichem Ausblick auf eine wunderschöne Landschaft.
Viele gemütliche Plätze auf der Liegewiese, im Innenhof oder am Schwimmteich laden zum Verweilen ein. Lagerfeuer, E-Bike-Touren, Bogenbauen, Tischtennis runden das Angebot ab. Dies macht Ihren Urlaub hier einzigartig und lässt Sie schnell entschleunigen.
Außerhalb unseres Hofes laden das historische Bad Mergentheim, Weikersheim, Rothenburg ob der Tauber zu einem Tagesausflug ein.
Auch Nichtreiter können sich auf den herrlichen Wander- u. Radwegen durchs Liebliche Taubertal sportlich betätigen.
Falls Sie Lust haben das Glück der Erde auf dem Rücken der Pferde zu erleben..., hier haben Sie die Möglichkeit dazu. Schauen Sie doch gleich unser Hofvideo auf an!
Die Ferienwohnungen Heinrichsruhe, Wengertsblick und Wiesengrund sind vom DTV mit der maximal Bewertung von 5 Pfoten als besonders hundefreundliche Unterkunft klassifiziert!
Konditionen
Zahlungsmöglichkeit: Bar, Kreditkarte, Vorabüberweisung, Paypal.
Eine Vorauszahlung von 100 Euro kann nach Buchung berechnet werden.
Stornierungen bis 30 Tage vor Anreise sind kostenfrei, Stornierungen zwischen 30-14 Tagen vor der Anreise werden mit 50% der Gesamtkosten berechnet, Stornierungen in den 14 Tagen vor der Anreise werden mit 100% der Gesamtkosten berechnet.
Neubau 2017 in das ursprüngliche Stallgebäude. Diese modern eingerichtete Landhausferienwohnung lässt die Ursprünge des Gebäudes durch die sichtbaren Balken wiedererkennen.
Highlight: Große Fenster zu den Offenställen und der Goldulme!
Info: Doppelbett im Elternschlafzimmer und zwei Stockbetten im Kinderschlafzimmer.
Du/ Badewanne/ WC/ 2xTV/ wlan/ einzigartige Echtholzmöbel/ 85qm
Konditionen
Anreise: 15-20 Uhr, spätere Anreise nach Absprache
Abreise: bis 10 Uhr
Haustiere nach Absprache, gegen einen Aufpreis von 9,50€ pro Tier/Nacht.
Babybett kostenfrei möglich, Zustellbett gegen einen Aufpreis von 10,00€ pro Nacht möglich.
Unser Frühstücksbrötchenservice ist gegen Gebühr verfügbar (Mo-So).
Highlight: Große Fenster zu den Offenställen und der Goldulme!
Info: Doppelbett im Elternschlafzimmer und zwei Stockbetten im Kinderschlafzimmer.
Du/ Badewanne/ WC/ 2xTV/ wlan/ einzigartige Echtholzmöbel/ 85qm
Konditionen
Anreise: 15-20 Uhr, spätere Anreise nach Absprache
Abreise: bis 10 Uhr
Haustiere nach Absprache, gegen einen Aufpreis von 9,50€ pro Tier/Nacht.
Babybett kostenfrei möglich, Zustellbett gegen einen Aufpreis von 10,00€ pro Nacht möglich.
Unser Frühstücksbrötchenservice ist gegen Gebühr verfügbar (Mo-So).
Faciliteter
-
Aktivitetsfaciliteter
-
Bordtennis
-
Bueskydning
-
Cykeludlejning
-
Ridning
-
-
Børnefaciliteter
-
Familievenlig
-
Legeplads
-
-
Indkvartering Faciliteter
-
BBQ
-
Betalingskort
-
Ikke-ryger hus
-
Internet i det offentlige område
-
Lounge
-
Møde/konference
-
Overførselstjeneste
-
Vandrer venlig
-
-
Mad faciliteter
-
Brødservice
-
-
Omgivende faciliteter
-
Cykelrum
-
Have til brug
-
Parkeringsplads
-
-
Servicefaciliteter
-
Bad/toilet
-
Badekar
-
Bruser
-
Brødservice
-
Dobbeltseng
-
Dyr velkomne
-
Husdyr tilladt eller efter anmodning
-
Højstol
-
Håndklæder
-
Hårtørrer
-
Ikke-rygere
-
Internet - WiFi
-
Kabel/Sat
-
Kaffemaskine
-
Køjeseng
-
Køleskab
-
Opvaskemaskine
-
Ovn
-
Radio
-
Sengetøj
-
Separat køkken
-
Separate senge
-
Terrasse
-
Toaster
-
TV
-
Vaskemaskine
-
WC-toilet
-
Miniferie
Der er begrænset mulighed for miniferie hele året, typisk uden for højsæsonen.
Priser og kalender
Kalender
Varighed
Pris
Periode
- Ankomst
- Afrejse
- Varighed
- 1 uge
Personer
Op til 6 personer
Bemærk
Ankomst er ikke valgt.