Sommerhus - 2 personer - Birkenweg 8 a - 23743 - Grömitz
Alternative emner
Sommerhuse i nærheden (1.593)2 personer
Oversigt
Emne nr.: 540-249760-168182
7 overnatninger
Fra
DKK 7.694,-
- Tilbyder miniferie Nej
- Afstand indkøb 1.400 m
- Parabol/kabel TV Ja
- Vaskemaskine Ja
- Opvaskemaskine Ja
Beskrivelse
Beskrivelsen foreligger desværre ikke på Dansk. Se teksten på Tysk nedenfor, eller se den maskinoversatte tekst på Dansk.
Ferienhaus für 2 Gäste mit 60m² in Grömitz (249760) (Erdgeschoss)
Die "Kleine Tanne" befindet sich hinter einer der letzten in unmittelbarer Strandnähe gelegenen Privatvillen. In wenigen Sekunden sind sie am östlichen Strandabschnitt von Grömitz, zum prächtigen Yachthafen sind es gerade einmal 100 Meter.
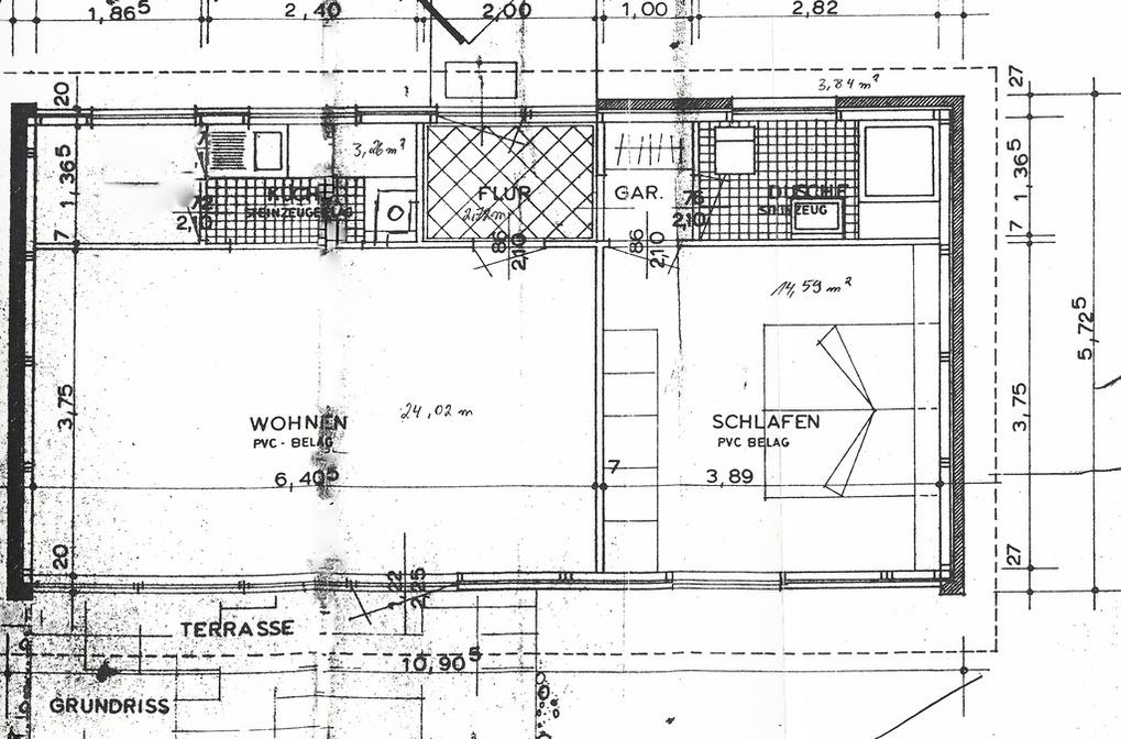
Sie betreten den Bungalow auf der Nordostseite. Ein kleiner Flur mit Garderobe führt in den Wohnraum (24 qm). Eine gemütliche Sitzgarnitur aus schwarzem Leder steht vor dem großen Fensterbereich zu Terrasse und Garten. Der Essbereich befindet sich auf der anderen Seite des Raums, von dem aus einer Tür zur Terrasse führt. Die Ausstattung umfasst u.a. ein TV-Gerät mit Flat-Screen (Satellit) und eine Audioanlage mit CD-Spieler und Radio.
Der offene Küchenbereich öffnet sich hinter einer Theke. Hier befinden sich ein integrierter Elektroherd (4 Ceran-Felder) mit Backofen, eine Mikrowelle, eine Geschirrspülmaschine (60 cm breit), eine Waschmaschine und ein geräumiger Kühlschrank mit 3 ***+ Gefrierfach. Zur Küchenausstattung gehören ein Toaster, Wasserkocher, Eierkocher, Handmixer, Stabmixer, ein Messerblock mit guten Stahlmessern, Salz- sowie Pfeffermühle ebenso wie Edelstahltöpfe, Pfannen, Geschirr, Besteck und viele weitere Hilfsmittel. Alles ist mit viel Liebe ausgewählt, umfassend, praktisch und stammt von namhaften, erstklassigen Herstellern.
Das ebenfalls vom Flur aus zugänglichem Schlafzimmer (ca. 15 qm) bietet ein großes Doppelbett mit Nachttischen und einen geräumigen Kleiderschrank von 2,50 m Breite mit großem Spiegel.
Bettwäsche, Hand- und Bade- Tücher sowie Geschirrtücher werden gestellt.
In den Räumen befindet sich individuelles Wandschmuck. Dabei handelt es sich sowohl um Fotografien und Reproduktionen bekannter Kunstwerke als auch um Original-Siebdrucke.
Das Duschbad enthält neben dem Waschbecken und dem WC eine großflächige Dusche. Vor diesem Raum befindet sich ein Einbauschrank mit Gerätschaften z. B. Föhn, Bügeleisen usw.
Die Terrasse auf der Südwestseite liegt bis zum Abend im sonnenbeschienenen Bereich. In einem abschließbaren Schuppen befinden sich 4 Gartenstühle, 1 Tisch und 2 bequeme Liegestühle. Der Sonnenschirm schützt vor zu starker Sonneneinstrahlung.
Der mehrere hundert qm große Garten steht zur Nutzung durch die Mieter ebenso bereit wie ein PKW-Stellplatz. Die "Kleine Tanne" verfügt über eigenes WLAN.
Haustiere sind nicht erlaubt!
In den Räumen darf nicht geraucht werden.
Der offene Küchenbereich öffnet sich hinter einer Theke. Hier befinden sich ein integrierter Elektroherd (4 Ceran-Felder) mit Backofen, eine Mikrowelle, eine Geschirrspülmaschine (60 cm breit), eine Waschmaschine und ein geräumiger Kühlschrank mit 3 ***+ Gefrierfach. Zur Küchenausstattung gehören ein Toaster, Wasserkocher, Eierkocher, Handmixer, Stabmixer, ein Messerblock mit guten Stahlmessern, Salz- sowie Pfeffermühle ebenso wie Edelstahltöpfe, Pfannen, Geschirr, Besteck und viele weitere Hilfsmittel. Alles ist mit viel Liebe ausgewählt, umfassend, praktisch und stammt von namhaften, erstklassigen Herstellern.
Das ebenfalls vom Flur aus zugänglichem Schlafzimmer (ca. 15 qm) bietet ein großes Doppelbett mit Nachttischen und einen geräumigen Kleiderschrank von 2,50 m Breite mit großem Spiegel.
Bettwäsche, Hand- und Bade- Tücher sowie Geschirrtücher werden gestellt.
In den Räumen befindet sich individuelles Wandschmuck. Dabei handelt es sich sowohl um Fotografien und Reproduktionen bekannter Kunstwerke als auch um Original-Siebdrucke.
Das Duschbad enthält neben dem Waschbecken und dem WC eine großflächige Dusche. Vor diesem Raum befindet sich ein Einbauschrank mit Gerätschaften z. B. Föhn, Bügeleisen usw.
Die Terrasse auf der Südwestseite liegt bis zum Abend im sonnenbeschienenen Bereich. In einem abschließbaren Schuppen befinden sich 4 Gartenstühle, 1 Tisch und 2 bequeme Liegestühle. Der Sonnenschirm schützt vor zu starker Sonneneinstrahlung.
Der mehrere hundert qm große Garten steht zur Nutzung durch die Mieter ebenso bereit wie ein PKW-Stellplatz. Die "Kleine Tanne" verfügt über eigenes WLAN.
Haustiere sind nicht erlaubt!
In den Räumen darf nicht geraucht werden.
Die Erstausstattung von Bettwäsche sowie Hand- und Geschirrtüchern ist für die erste Woche inklusive. Weitere Wäschepakete pro Person/Woche werden mit € 15,00 berechnet.
Faciliteter
-
Afstand
-
Nærmeste togstation11 km
-
Næste bager1,4 km
-
Næste indkøbsmulighed1,4 km
-
Strand50 m
-
-
Bad
-
Bruser
-
Hårtørrer
-
-
Beliggenhed
-
Strandafstand 0-100m
-
-
Diverse
-
Stereo/radio
-
-
Generel information om lejligheden
-
Husdyr forbudt
-
-
Generelt udstyr
-
Ikke-rygere
-
Internet/W-LAN
-
Rolig beliggenhed
-
Vaskemaskine
-
-
Grundlæggende
-
Stue1
-
Størrelse60 m²
-
-
Køkken
-
Blander
-
Fryser
-
Kaffemaskine
-
Komfur (4 kogeplader)
-
Køleskab
-
Mikroovn
-
Opvaskemaskine
-
Ovn
-
Tekøkken/blok
-
Toaster
-
Vandvarmer
-
-
Opholdsareal
-
CD afspiller
-
-
Service
-
Håndklæder inkl.
-
Sengetøj inkl.
-
Viskestykker inkl.
-
-
Stue/soveplads
-
Barneseng
-
Dobbeltsenge
-
Høj stol
-
TV med SAT/Kab./DVB-T
-
-
Udendørs
-
BBQ område
-
Have/plæne
-
-
Udendørs faciliteter
-
Havestole
-
Ligge
-
Parkeringsplads
-
Terrasse/terrasse
-
Priser og kalender
Kalender
Varighed
Pris
Periode
- Ankomst
- Afrejse
- Varighed
- 1 uge
Personer
Op til 2 personer
Bemærk
Ankomst er ikke valgt.