Sommerhus - 30 personer - Loazzolo - 14051

30 personer

Oversigt

Emne nr.: 313-IT1664.100.1
7 overnatninger
Fra DKK 29.505,-
Inkl. rengøring og forsikring
30 personer
Soverum 9
Badeværelser 7
Internet
Husdyr 1
  • Tilbyder miniferie Ja
  • Swimmingpool ude Ja
  • Privat swimmingpool Ja
  • Spa Ja
  • Sauna Ja
  • Brændeovn Ja
  • Indhegnet område Ja
  • Vaskemaskine Ja
  • Opvaskemaskine Ja
  • Energivenligt Ja

Beskrivelse

Beskrivelsen foreligger desværre ikke på Dansk. Se teksten på Engelsk nedenfor, eller se den maskinoversatte tekst på Dansk.
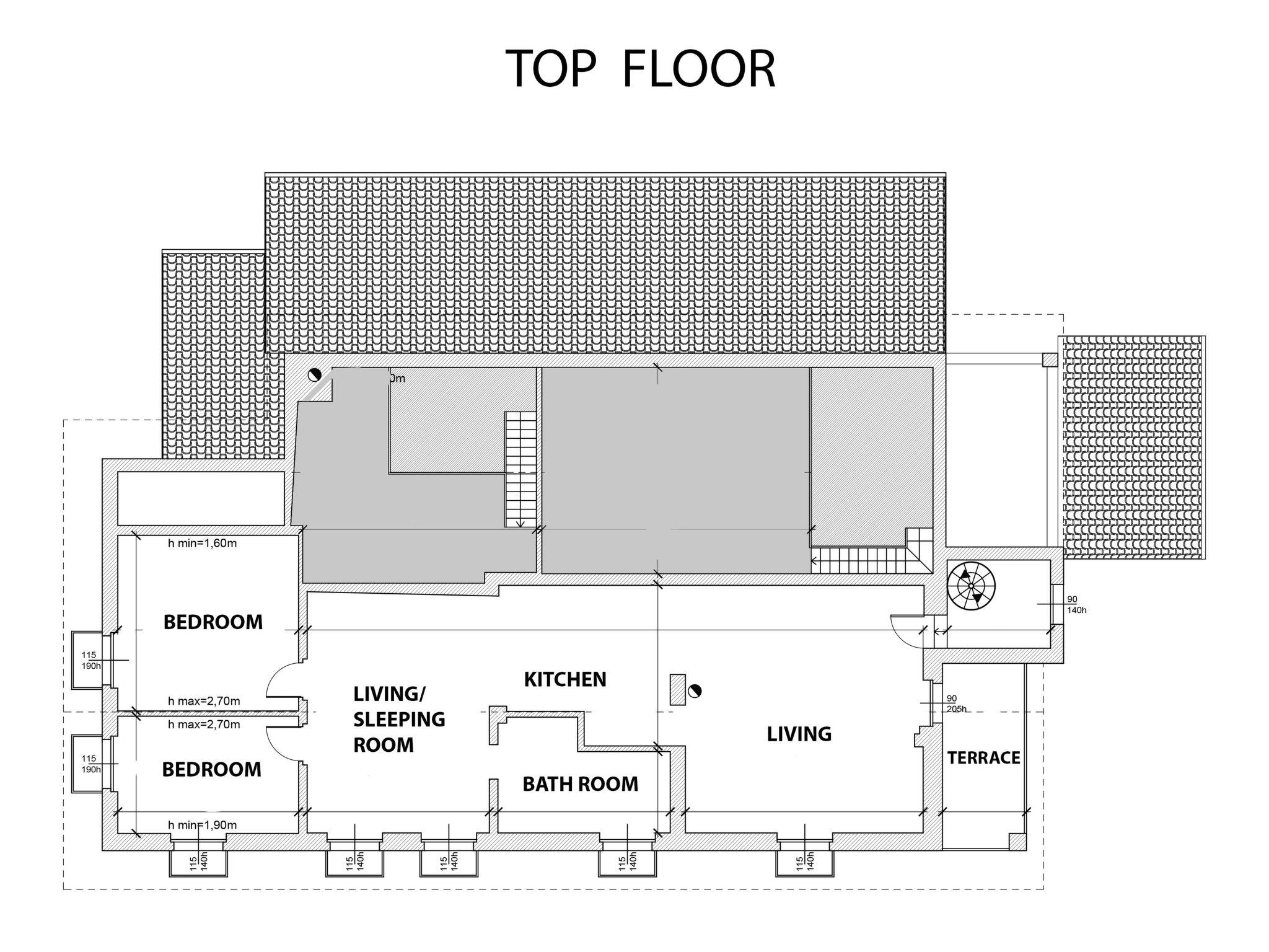
17-room cottage on 3 levels. Tasteful furnishings: living/dining room with open-hearth fireplace, dining table and TV. Exit to the terrace. Lounge with open-hearth fireplace, separate WC and TV. Exit to the garden. Living/sleeping room with 1 double sofabed, dining table, kitchen corner and TV. Exit to the garden. 1 double bedroom with shower/bidet/WC. Kitchen (oven, dishwasher, 5 gas rings, pizza oven). Shower/bidet/WC. Upper floor: living/sleeping room with 1 double sofabed, dining table, kitchen corner and TV. Exit to the balcony. Living/sleeping room with 1 double sofabed, dining table, kitchen corner and TV. Exit to the balcony. Living/sleeping room with 1 double sofabed, dining table, kitchen corner and TV. Living/sleeping room with 1 double sofabed, dining table, kitchen corner and TV. 4 double bedrooms. Open gallery with sloping ceilings with 1 double bed. Open gallery with sloping ceilings with 1 double bed. 4 showers/bidet/WC. Top floor: (spiral staircase) living/dining room with 2 double sofabeds, open-hearth fireplace, dining table and TV. Exit to the terrace. 2 double bedrooms with sloping ceilings, ceiling height 160 - 270 cm. Kitchenette (4 hot plates, oven, dishwasher, microwave, electric coffee machine). Shower/bidet/WC. Gas heating. Heating available only from 15.10. to 15.04. Balcony, 2 terraces, partly roofed. Facilities: washing machine, baby cot for up to 2 year olds, hair dryer. Internet (WiFi, free). Please note: maximum 1 pet/ dog allowed. Smoke alarm, fire extinguisher. IT005060B54CFBNQE4

Cosy country house "Villa Creviolo", renovated, surrounded by fields and vineyards. In the resort Creviolo, 3 km from the centre of Loazzolo, in a quiet, sunny position on top of a hill. Private: large garden (fenced) with lawn and trees, swimming pool (10 x 5 m, seasonal availability: 01.Apr. - 31.Oct.). Pergola, garden furniture. In the house: sauna, fitness room, hot tub (all included). Parking on the premises. Grocery 3 km, restaurant 3 km, bar 3 km, bus stop 3 km. Nearby attractions: Nizza Monferrato 22 km, Alba 35 km, Asti 37 km. Please note: car recommended. Suitable for events.
Licens nr.: IT005060B54CFBNQE4 / 005060-AGR-00005

Vores gæsteanmeldelser Eksterne anmeldelser

Ingen gæsteanmeldelser
5,0
Adgangsvej:
3,0
Interiør:
3,0
Køkken:
4,0
Beliggenhed:
2,0
Udendørs:
4,0
Generelt:
4,0
Eksterne anmeldelser
Ingen detaljerede eksterne anmeldelser

Faciliteter

  • Afstand

    • Bus
      3 km
    • Center
      3 km
    • Lufthavn CUF
      76,6 km
    • Lufthavn TRN
      128,7 km
    • Offentlig transport
      3 km
  • Husinfo

    • Antal badeværelser
      7
    • Antal soveværelser
      9
    • Antal værelser
      17
    • Bidet
    • Brandslukker
    • Bruser
    • Bæredygtigt
    • Børnesenge
      1
    • Elektrisk kaffemaskine
    • Fitness
    • Fritliggende
    • Førstehjælpskasse
    • Genbrugsstation
    • Grønt rum have
    • Gårdhave
    • Have
    • Husdyr
      1
    • Håndklæder gratis
    • Hårtørrer
    • Indhegnet
    • Indtast objekt
    • Internet
    • Intet engangsservice
    • Komfur
    • Kulilte detektor
    • Kæledyr max
      1
    • Køkken
    • Køleskab
    • Led pærer
    • Linnedfri
    • Mikroovn
    • Opvaskemaskine
    • Ovn
    • Parkering
    • Pejs
    • Pool
    • Pool privat
    • Pool udendørs
    • Pool åben fra
      01-04
    • Pool åben til
      31-10
    • Radiator
    • Røgalarm
    • Sauna
    • Solpaneler
    • Solrigt beliggende
    • Spa
    • Tekøkken
    • Termoruder
    • Terrasse
    • Terrasse
    • TV
    • Vandbesparende brusere
    • Vandbesparende toiletter
    • Vaskemaskine
    • Wellness
    • WLAN
  • Tema

    • Bondehus

Miniferie

Der er begrænset mulighed for miniferie hele året, typisk uden for højsæsonen.

Priser og kalender

Kalender

Ankomst
Forrige Næste
  • april 2026
    mationtofr
    1412345
    156789101112
    1613141516171819
    1720212223242526
    1827282930
    19
  • maj 2026
    mationtofr
    18123
    1945678910
    2011121314151617
    2118192021222324
    2225262728293031
    23
   Se om emnet er ledigt på den valgte dato
Ledig
Optaget
   Ankomst mulig
Varighed
Personer

Pris

Periode
Ankomst
Afrejse
Varighed
1 uge
Personer
Ingen personer er valgt

Bemærk

Ankomst er ikke valgt.
Der er ikke valgt personer.
Aftale- og lejebetingelser