Sommerhus - 6 personer - Achterbos 42 - 3645 CE - Vinkeveen
Alternative emner
Sommerhuse i nærheden (5)6 personer
heraf 2 børn (0-11 år)
Oversigt
Emne nr.: 141-HUT034
7 overnatninger
Fra
DKK 9.743,-
Inkl. rengøring og forbrug
- Tilbyder miniferie Ja
- Afstand indkøb 1 km
- Udsigt til vand Ja
- Aircondition Ja
- Vaskemaskine Ja
- Opvaskemaskine Ja
- Energivenligt Ja
- Inklusiv forbrug Ja
Beskrivelse
Glæd jer til en ferie i et komfortabelt hus med fantastisk beliggenhed ved vandet.
Sæt hverdagen på pause og nyd et familievenligt ophold i dette indbydende hus, som har en unik beliggenhed. I den komfortable, hjemlige bolig får I gode rammer til en dejlig ferie sammen. De velplacerede vinduer sørger for en vidunderlig udsigt. Nyd dagens måltider med en vidunderlig udsigt over haven, Læn jer tilbage på sofaen efter en lang dag med spændende oplevelser og læg planer for næste dag.
Terrassen lægger op til hyggelige timer udendørs, hvor I kan nyde solen med et vidunderligt panorama over vandet. Begynd dagene her med en god kop kaffe eller snak længe om aftenen over et glas vin.
Vinkeveense Plassen er et populært sted at fiske. Her kan I sidde stille på bredden og nyde de maleriske omgivelser, mens I venter på jeres fangst. De store søer er hjertet af Vinkeveen og et paradis for vandsportsentusiaster. Her kan I sejle, prøve kajak eller leje en båd for at udforske de mange små øer. Badning og dykning er også populære aktiviteter, da vandet er krystalklart.
Fritidshus
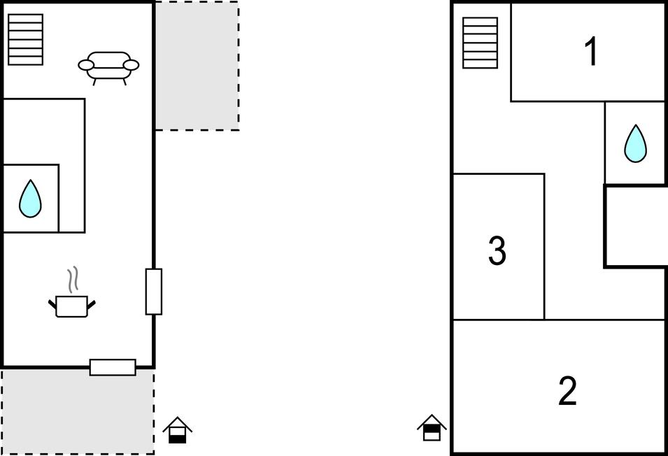
Soveværelse (nr. 1) - 2 Sovepladser. (Etageseng(e)).
Soveværelse (nr. 2) - 2 Sovepladser. (Dobbeltseng(e)).
Soveværelse (nr. 3) - 2 Sovepladser. (Etageseng(e)).
Opholdsstue/køkken
Toilet (nr. 1) - WC. Varmt og koldt vand
Badeværelse (nr. 1) - WC. Varmt og koldt vand. Bruser
Terrasse el. lignende - Åben og overdækket terrasse
Sæt hverdagen på pause og nyd et familievenligt ophold i dette indbydende hus, som har en unik beliggenhed. I den komfortable, hjemlige bolig får I gode rammer til en dejlig ferie sammen. De velplacerede vinduer sørger for en vidunderlig udsigt. Nyd dagens måltider med en vidunderlig udsigt over haven, Læn jer tilbage på sofaen efter en lang dag med spændende oplevelser og læg planer for næste dag.
Terrassen lægger op til hyggelige timer udendørs, hvor I kan nyde solen med et vidunderligt panorama over vandet. Begynd dagene her med en god kop kaffe eller snak længe om aftenen over et glas vin.
Vinkeveense Plassen er et populært sted at fiske. Her kan I sidde stille på bredden og nyde de maleriske omgivelser, mens I venter på jeres fangst. De store søer er hjertet af Vinkeveen og et paradis for vandsportsentusiaster. Her kan I sejle, prøve kajak eller leje en båd for at udforske de mange små øer. Badning og dykning er også populære aktiviteter, da vandet er krystalklart.
Fritidshus
Soveværelse (nr. 1) - 2 Sovepladser. (Etageseng(e)).
Soveværelse (nr. 2) - 2 Sovepladser. (Dobbeltseng(e)).
Soveværelse (nr. 3) - 2 Sovepladser. (Etageseng(e)).
Opholdsstue/køkken
Toilet (nr. 1) - WC. Varmt og koldt vand
Badeværelse (nr. 1) - WC. Varmt og koldt vand. Bruser
Terrasse el. lignende - Åben og overdækket terrasse
Vores gæsteanmeldelser Eksterne anmeldelser
Faciliteter
-
Aktiviteter
-
Bådebro
-
Fodboldmål
-
-
Bad
-
WC. Varmt og koldt vand
-
-
Bemærk
-
Udl. ikke til ungdomsgrupper
-
Udlejes ikke til institutioner
-
Udlejes kun til ferieophold
-
Uindhegnet vand i nærheden
-
-
Diverse
-
Antal gratis børn (< 4 år)1
-
Byggemateriale: Sten
-
Byggeår2023
-
Feriehus97 m²
-
Forbrugsomkostninger inkl.
-
Helårsisoleret
-
Kæledyr Nej
-
Miljøvenlige byggematerialer
-
Panoramaudsigt over vand
-
Støvsuger
-
Vaskemaskine
-
Øko EPC-klassificering A
-
-
El artikler
-
1 TV
-
Internet (trådløst)
-
Smart TV
-
-
I nærheden
-
Afs. til nærmeste vand/badning35 km
-
Afstand til indkøb1 km
-
Bådudlejning1 km
-
Nærmeste beboelse20 m
-
Nærmeste by20 km
-
Nærmeste restaurant300 m
-
-
Indendørs
-
Energibesparende varmesystem
-
Klimaanlæg
-
Røgalarm
-
-
Koncepter
-
Kvalitetshavemøbler
-
Luxury Collection
-
Røgfrit hus
-
Store ferieboliger
-
-
Køkken
-
Emhætte
-
Fryser45 l
-
Induktionskogeplade4 kogeplader
-
Kaffemaskine
-
Køkkenet har v/k vand
-
Køleskab
-
Opvaskemaskine
-
Ovn
-
-
Udendørs
-
Gratis p-plads i nærheden2
-
Grill
-
Grund ved vand1280 m²
-
Havemøbler
-
Muret grill
-
Privat have
-
Miniferie
Der er mulighed for miniferie i udvalgte perioder af året.
Priser og kalender
Kalender
Varighed
Pris
Periode
- Ankomst
- Afrejse
- Varighed
- 1 uge
Personer
Op til 6 personer
heraf 2 børn (0-11 år)
Bemærk
Ankomst er ikke valgt.