Charmerende feriehus tæt på Vesterø Havn

Sommerhus - 5 personer - Trekløvervej - Vesterø - 9940 - Læsø

5 personer

Oversigt

Emne nr.: 547-625448
7 overnatninger
Fra DKK 2.650,-
Hyggeligt feriehus i naturskønne omgivelser ved Vesterø Havn med 400 m til stranden og moderne faciliteter.
Grundareal 1.430 m²
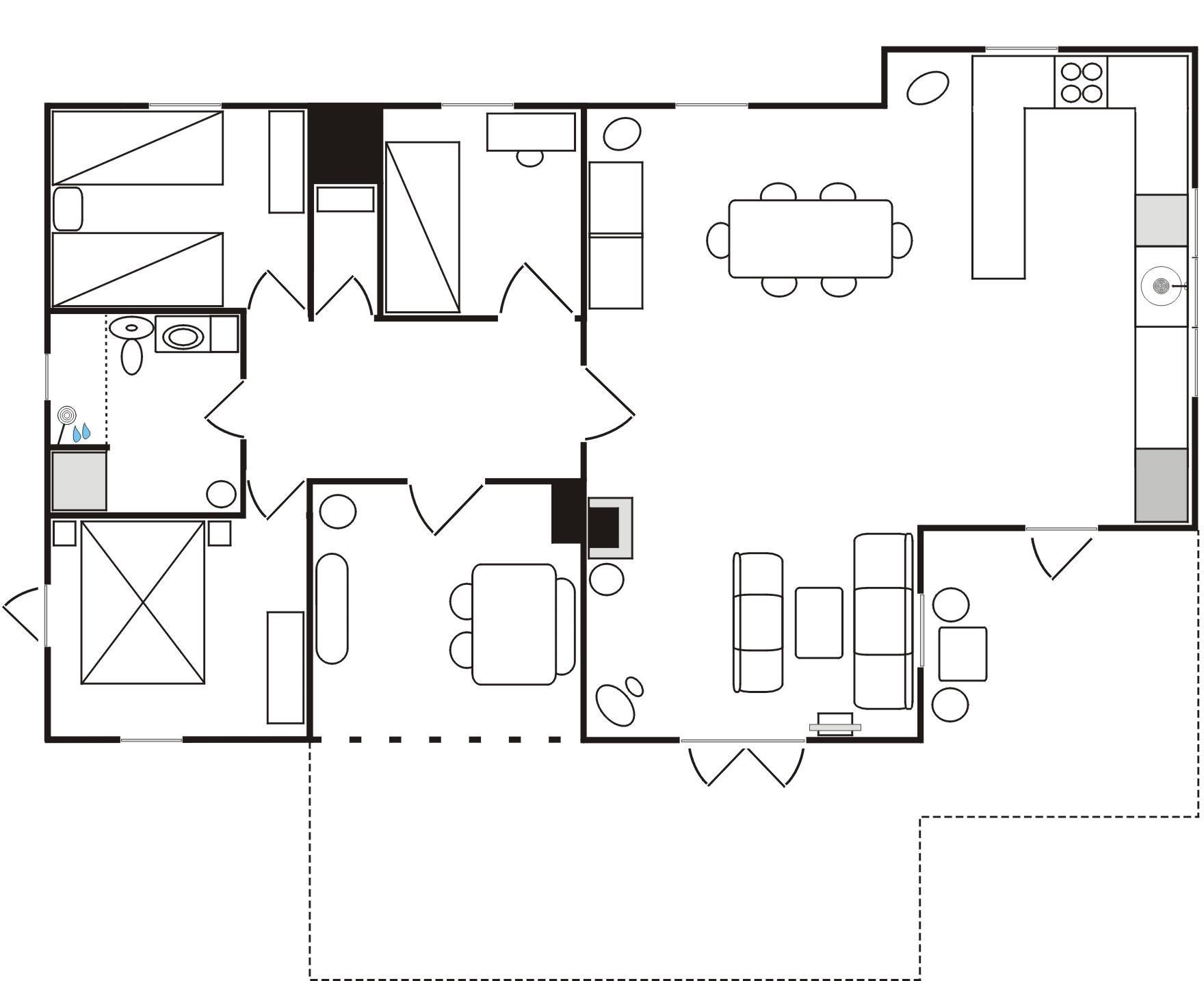
Boligareal 76 m²
Soverum 3
Badeværelser 1
Afstand vand 400 m
Internet
Ikkeryger
Husdyr 1
  • Tilbyder miniferie Ja
  • Afstand indkøb 1 km
  • Brændeovn Ja
  • Gode fiskeforhold Ja
  • Vaskemaskine Ja
  • Tørretumbler Ja
  • Opvaskemaskine Ja
  • Energivenligt Ja

Beskrivelse

Et rigtigt dejligt feriehus beliggende naturskønt i et roligt og særdeles attraktivt område ved Vesterø Havn med blot 400 meter til havet. Huset har et flot stort køkken/alrum med spiseplads og sofaafdeling med fint lysindfald fra de store vinduespartier. Der er tre soveværelser, hvoraf et har dobbeltseng med egen havedør, et har to enkeltsenge og det sidste har en enkeltseng (120 cm) med fin kontorplads. Fint, moderne badeværelse med brus. Der er havedøre til de to indbydende træterrasser med både solsenge, havemøbler og grill, og der er en lille hyggekrog i bunden af haven med shelter og bålplads. På Trekløvervej 6 er man i gåafstand til de store lyngarealer, stranden og det hyggelige havnemiljø med fiskehandler, indkøb og restauranter. Huset er bygget i 1973, men renoveret i 2017.

OBS: Fri brænde til brændeovn.

Ønsker man at leje to tætliggende feriehuse, så udlejer Team Læsø også Rødkløvervej 3 og Klitrosevej 5.

Vores gæsteanmeldelser Eksterne anmeldelser

4,5
Baseret på 4 vurderinger
Sidste vurdering fra d. 21-09-2025
5
(3)
4
(0)
3
(1)
2
(0)
1
(0)
Kommentarer
1 vurdering har kommentar på dansk.
5 voksne 0 børn 0 husdyr 3 overnatninger 2025 maj
Super dejlig sommerhus.

Faciliteter

  • Faciliteter

    • Ikke-ryger
    • Grundareal
      1430
    • Husareal
      76
    • Husdyr tilladt
    • Afstand strand
      400 m
    • Afstand indkøb
      1 km
    • Vaskemaskine
    • Tørretumbler
    • Brændeovn
    • Barneseng
    • Antal soverum
      3
    • Dobbeltsenge
      1
    • Enkeltsenge
      2
    • Opvaskemaskine
    • Toiletter
      1
    • Grill
    • Fryser
    • Personer
      4-5
    • Internet
    • Max antal personer
      5
    • Miniferie
    • Barne højstol
    • Varmepumpe
    • Chromecast
    • Sovesofa
      1
    • Mulighed for ekstra feriehuse i nærheden
    • Solsenge
    • Byggeår
      1973
    • Renoveret
      2017
    • Badeværelser
      1
    • Gode fiskeforhold

Miniferie

Der er begrænset mulighed for miniferie hele året, typisk uden for højsæsonen.

Priser og kalender

Kalender

Ankomst
Næste
  • marts 2026
    mationtofr
    91
    102345678
    119101112131415
    1216171819202122
    1323242526272829
    143031
  • april 2026
    mationtofr
    1412345
    156789101112
    1613141516171819
    1720212223242526
    1827282930
    19
   Se om emnet er ledigt på den valgte dato
Ledig
Optaget
   Ankomst mulig
Varighed

Pris

Periode
Ankomst
Afrejse
Varighed
1 uge
Personer
Op til 5 personer

Bemærk

Ankomst er ikke valgt.
Aftale- og lejebetingelser