Charmerende feriehus med havkig i Vesterø Havn

Sommerhus - 10 personer - Vandrehjemsvej - Vesterø - 9940 - Læsø

10 personer

Oversigt

Emne nr.: 547-365774
7 overnatninger
Fra DKK 4.590,-
Charmerende feriehus i Vesterø Havn med havkig og kun 200 m til øens bedste strand.
Grundareal 985 m²
Boligareal 169 m²
Soverum 4
Badeværelser 1
Afstand vand 200 m
Internet
Ikkeryger
Husdyr 1
  • Tilbyder miniferie Ja
  • Afstand indkøb 200 m
  • Brændeovn Ja
  • Udsigt til vand Ja
  • Vaskemaskine Ja
  • Opvaskemaskine Ja
  • Energivenligt Ja

Beskrivelse

Stort, charmerende feriehus i hjertet af Vesterø Havn med havkig og blot 200 meter til øens nok bedste badestrand og det hyggelige havnemiljø. Huset er med sine mange kvadratmeter og rummelige have oplagt til den store eller flere familier. Der er mulighed for at booke til 10 voksne og to børn. Kontakt Team Læsø for nærmere aftale.
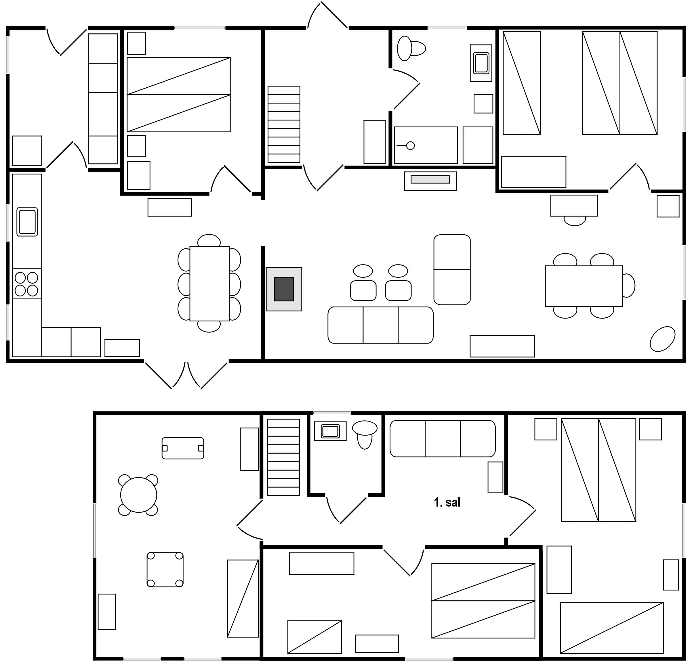
Selve huset har to etager. Underetagen består af to soveværelser, et med dobbeltseng + børneseng til større barn og et med dobbeltseng. Stor stue med sofaafdeling og spisebord samt køkken med endnu et spisebord. Fra køkkenet er der udgang til dejlig, overdækket terrasse med havemøbler og fin, stor have med behagelige møbler, gynge, sandkasser og god plads til både store og små. Desuden findes badeværelse med brus og bryggers med vaskemaskine også i husets underetage. 1. salen har to soveværelser, et med dobbeltseng og ekstra enkeltseng og et med 140 cm seng samt barneseng og kig til vandet. I gangen er der en ekstra sengeplads. Desuden fint toilet. Huset er moderne indrettet, men med respekt for det hyggelige, ældre udtryk. De store vinduespartier sikrer lysindfald på begge etager, og fra husets østlige ende, hvor der er et rigtigt fint og stort hygge/aktivitetsrum, har man det smukkeste havkig til Kattegats blå bølger. Ved husets indgangsdør findes den anden træterrasse med morgensol. Et rigtig skønt, rummeligt feriehus i gåafstand til restauranter, fiskehandler, indkøb og badestrand.

Vores gæsteanmeldelser Eksterne anmeldelser

4,0
Baseret på 1 vurdering
Vurderet d. 20-08-2023
5
(0)
4
(1)
3
(0)
2
(0)
1
(0)
Kommentarer
Ingen vurderinger har kommentarer.

Faciliteter

  • Faciliteter

    • Ikke-ryger
    • Grundareal
      985
    • Husareal
      169
    • Husdyr tilladt
    • Afstand strand
      200 m
    • Afstand indkøb
      200 m
    • Vaskemaskine
    • Brændeovn
    • Barneseng
    • Antal soverum
      4
    • Dobbeltsenge
      4
    • Opvaskemaskine
    • Grill
    • Ekstra senge
      2
    • Fryser
    • Oliefyr
    • Personer
      10
    • Internet
    • Max antal personer
      10
    • Miniferie
    • Varmepumpe
    • Chromecast
    • Havkig
    • Byggeår
      1917
    • Badeværelser
      1
    • To toiletter
    • Antal husdyr
      1

Miniferie

Der er begrænset mulighed for miniferie hele året, typisk uden for højsæsonen.

Priser og kalender

Kalender

Ankomst
Næste
   Se om emnet er ledigt på den valgte dato
Ledig
Optaget
   Ankomst mulig
Varighed

Pris

Periode
Ankomst
Afrejse
Varighed
1 uge
Personer
Op til 10 personer

Bemærk

Ankomst er ikke valgt.
Aftale- og lejebetingelser