Feriehus med sauna og brændeovn i Søndervig

Sommerhus - 6 personer - Hvidbjergvej - Søndervig - 6950 - Ringkøbing

6 personer

Oversigt

Emne nr.: 328-729649
7 overnatninger
Fra DKK 4.303,-
Inkl. rengøring
Hyggeligt feriehus i Søndervig med sauna, brændeovn og elbil-ladestik ved klitterne.
Grundareal 1.436 m²
Boligareal 113 m²
Soverum 3
Badeværelser 2
Afstand vand 800 m
Highspeed internet Highspeed
Ikkeryger
Husdyr
  • Tilbyder miniferie Nej
  • Afstand indkøb 1.200 m
  • Sauna Ja
  • Brændeovn Ja
  • Vaskemaskine Ja
  • Tørretumbler Ja
  • Opvaskemaskine Ja
  • Ladestander til elbil Ja
  • Energivenligt Ja

Beskrivelse

Feriehuset ”Castello” på Hvidbjergvej 25 i Søndervig, har plads til op til 6 personer og ligger godt placeret i det vidunderlige klitlandskab. Her kan I tilbringe en afslappende og hyggelig ferie, med hele familien. I har mulighed for at lade jeres elbil, direkte ved feriehuset. 

Feriehus, der emmer af afslapning

I feriehuset finder I et veludstyret køkken, hvor opvaskemaskinen klarer opvasken, når I har tilberedt et lækkert feriemåltid. Når familien sidder sammen om aftenen og arrangerer en sjov spilleaften, sørger den energibesparende luft-til-luft-varmepumpe for en konstant og god temperatur i feriehuset. Hvis I vil have endnu mere hygge, kan I tænde op for brændeovnen, som er med til at skabe den helt rigtige feriestemning.

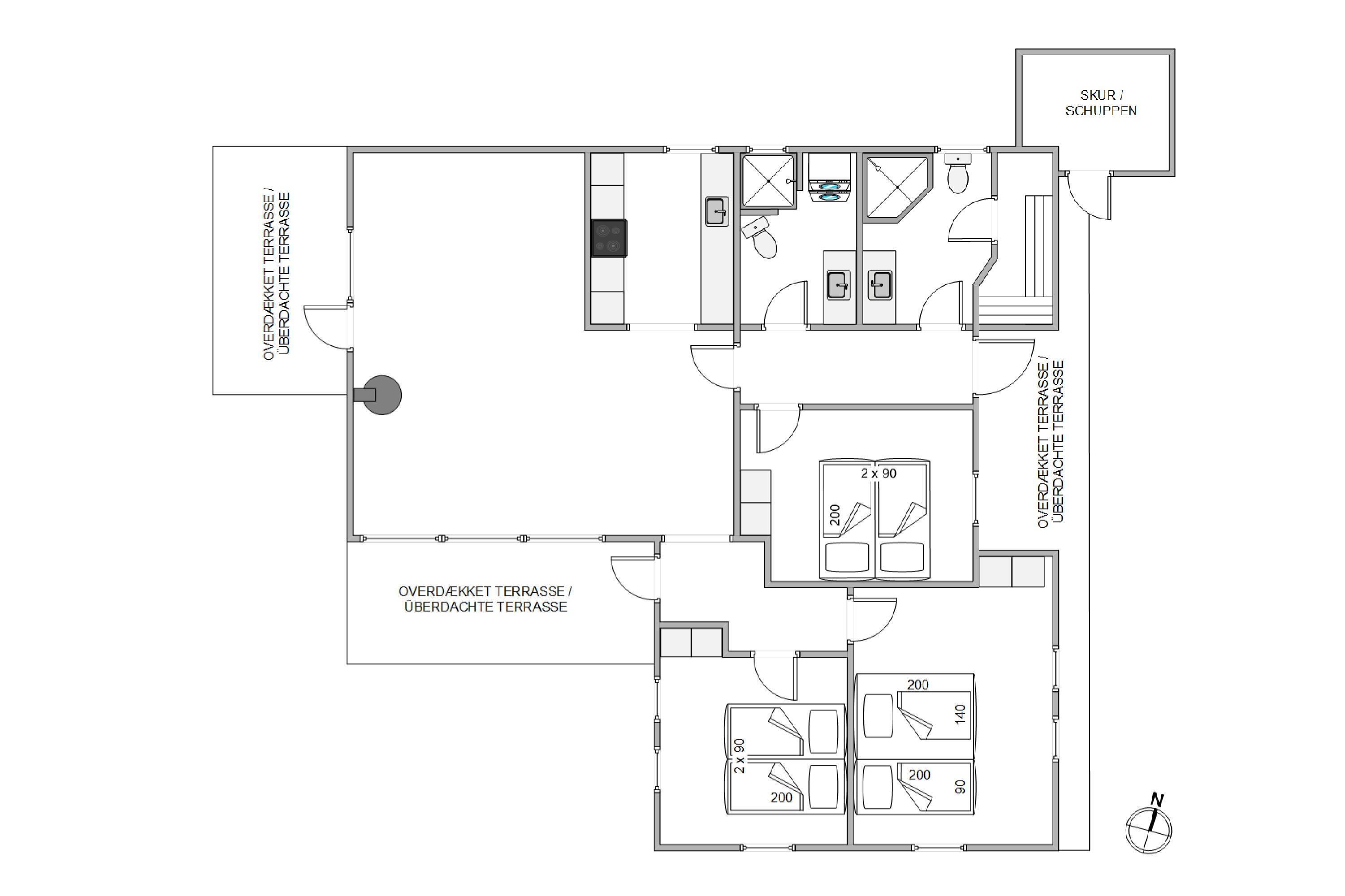
Der er 3 gode soveværelser, hvor I om aftenen har mulighed for at trække jer tilbage, og få ladt batterierne op, til en ny god feriedag. Efter en lang dag i den friske Vesterhavsluft venter feriehusets sauna på jer, for at fuldende jeres afslapning. Feriehuset har to badeværelser, så der er plads til alle om morgenen. Gulvvarmen i badeværelserne sørger for, at ingen behøver at starte dagen med kolde fødder.

Overdækket og afskærmet terrasse

Den overdækkede terrasse betyder, at I altid har mulighed for at være udenfor, uanset vejret. Her har I mulighed for at bruge de behagelige havemøbler, som indbyder til afslapning og hygge. Her er I omgivet af det fantastiske klitlandskab, som er med til at skabe privatliv. Nyd de lange sommerdage, eller den altid fascinerende stjernehimmel om efteråret.

Tæt på Søndervig

Søndervigs centrum ligger kun ca. 1,2 km fra jeres feriehus. Så I kan spontant beslutte, om I vil have en stille og afslappende dag ved vandet med lange gåture på stranden eller en dag fuld af liv og aktiviteter i det livlige centrum med forskellige restauranter og små butikker, der indbyder til shopping. Hvis I har cykler med, så benyt lejligheden til at stoppe ved de omkringliggende gårdbutikker, hvor I kan forsyne jer med lokale og lækre delikatesser.

Faciliteter

  • Opholdsrum

    • Radio
    • Brændeovn
    • Fladskærms-TV
      1
    • Dock/Bluetooth enhed
    • Kork/Vinyl gulv
  • Soverum

    • Dobbeltsenge
      2
    • Enkeltsenge
      2
    • Sovepladser
      7
    • Soverum
      3
    • Kork/Vinyl gulv
    • 1. soverum/sengestørrelser
      2x90x200
    • 2. soverum/sengestørrelser
      2x90x200
    • 3. soverum/sengestørrelser
      1x140x200 + 1x90x200
  • Køkken

    • Komfur: El m. ovn
    • Køleskab
    • Opvaskemaskine
    • Mikroovn
    • Separat fryser /L
      70
  • Baderum

    • Sauna
    • Gulvvarme bad
    • Antal badeværelser
      2
  • Objektinfo - Inde

    • Areal: Hus m²
      113
    • Byggeår
      1973
    • Ikke ryger hus
    • Personantal
      6
    • Renoveret
      2022
    • Danske TV-kanaler (Betalingskanaler)
    • Tyske tv-programmer
    • Tørretumbler
    • Varme: Elvarme
    • Varme: Varmepumpe luft til luft
    • Vaskemaskine
    • Gratis fiber Internet
  • Objektinfo - ude

    • Afstand i meter: Hav
      800 m
    • Afstand i meter: Indkøb
      1,2 km
    • Grundens areal i m2
      1436
    • Havemøbler
    • Solvogne
    • Parasol
    • Terrasse: åben
    • Terrasse: Afskærmet
    • Terrasse: Overdækket
    • Redskabsrum
    • Naturgrund
    • Affald hentes:
      Onsdag
    • Skraldespand - Liter
      240
    • Ladestik til el-bil
  • Koncepter

    • Skiftedag: Fredag

Priser og kalender

Kalender

Ankomst
Forrige Næste
  • oktober 2026
    mationtofr
    401234
    41567891011
    4212131415161718
    4319202122232425
    44262728293031
    45
  • november 2026
    mationtofr
    441
    452345678
    469101112131415
    4716171819202122
    4823242526272829
    4930
   Se om emnet er ledigt på den valgte dato
Ledig
Optaget
   Ankomst mulig
Varighed

Pris

Periode
Ankomst
Afrejse
Varighed
1 uge
Personer
Op til 6 personer

Bemærk

Ankomst er ikke valgt.
Aftale- og lejebetingelser