Nyrenoveret sommerhus tæt på strand og by

Sommerhus - 5 personer - Nordsøvej - Søndervig - 6950 - Ringkøbing

5 personer

Oversigt

Emne nr.: 328-571235
7 overnatninger
Fra DKK 3.508,-
Hyggeligt, nyrenoveret sommerhus i Søndervig med brændeovn og nærhed til strand og centrum.
Grundareal 1.237 m²
Boligareal 89 m²
Soverum 3
Badeværelser 2
Afstand vand 550 m
Internet
Ikkeryger
Husdyr 1
  • Tilbyder miniferie Nej
  • Afstand indkøb 250 m
  • Parabol/kabel TV Ja
  • Brændeovn Ja
  • Indhegnet område Ja
  • Vaskemaskine Ja
  • Tørretumbler Ja
  • Opvaskemaskine Ja
  • Energivenligt Ja

Beskrivelse

På Nordsøvej 45 i den centrale del af Søndervig ligger dette klassiske nyrenoverede træsommerhus og venter på jer. Her kan I holde en hyggelig og afslappende ferie med op til 5 personer, og hunden er også velkommen. Sommerhusets beliggenhed er både central og strandnær – kun 550 meter fra Vesterhavet og 250 meter fra Søndervigs centrum! Badelandet Lalandia ligger desuden i nærheden af dette klassiske feriehus i Søndervig. 

Klassisk sommerhusferie ved havet med brændeovn – ideelt til den lille familie

Det sortmalede træhus på Nordsøvej 45 leder allerede ved første øjekast tankerne hen på en stilren og afslappende sommerhusferie ved havet. Feriehuset er renoveret i 2023, og i den forbindelse energioptimeret med isolering og nye vinduer/døre, samt en luft/luft varmepumpe, der sikrer jer et behageligt indeklima.

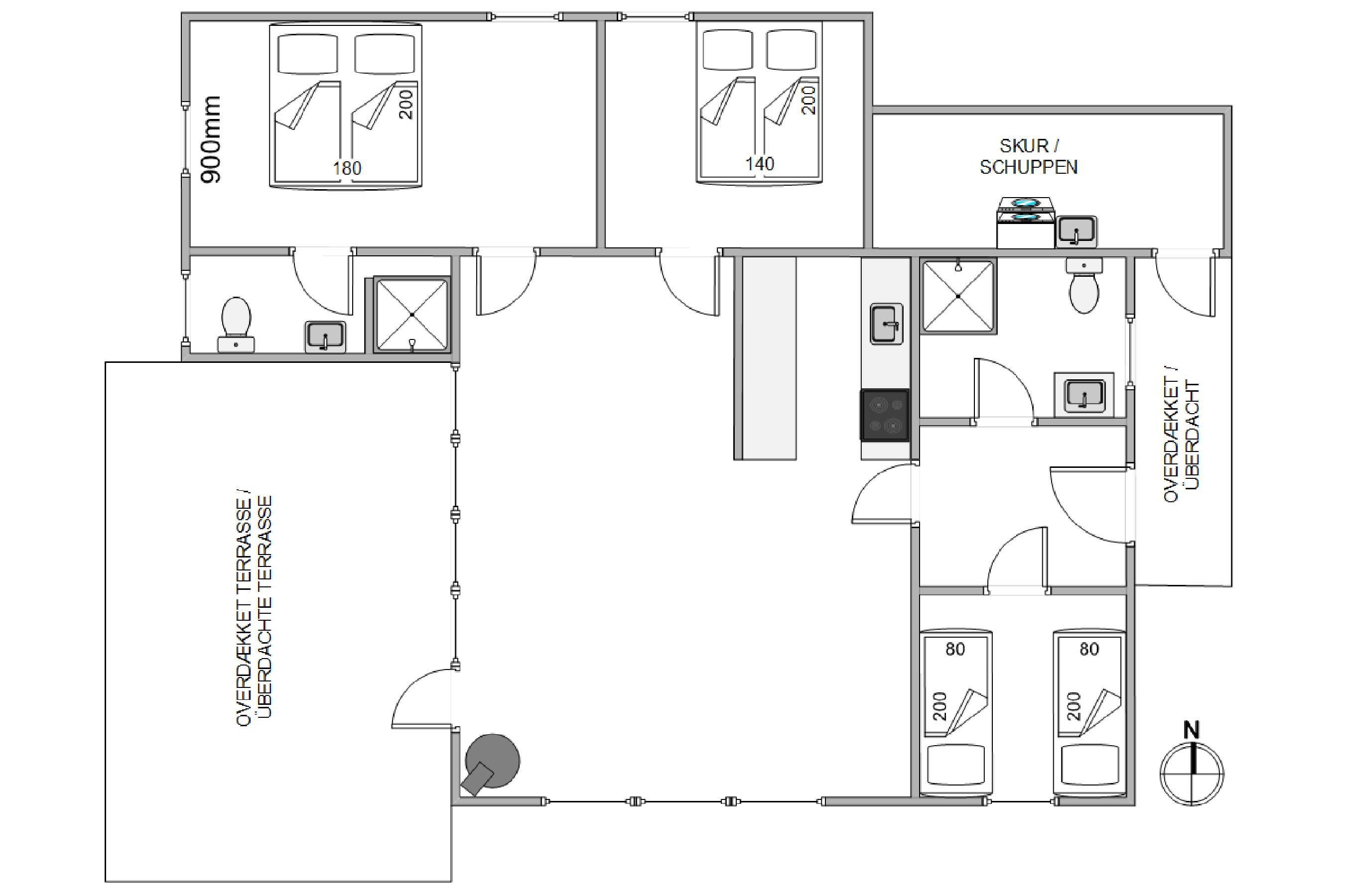
Med plads til 5 personer er sommerhuset et oplagt valg til den lille familie, der trænger til et afbræk fra hverdagen. Sommerhuset råder over to badeværelser, hvor der på begge badeværelser er gulvvarme, så I behøver ikke bekymre jer om at få kolde fødder, når I står op om morgenen. På det ene badeværelse er det lavenergi, så det tager derfor lidt længere tid at varme det op. Desuden er der gulvvarme i både køkkenet og gangen. Den tilhørende varmepumpe i feriehuset sørger desuden for et behageligt indeklima, hvilket også er en billigere måde at varme huset op på.

Ferieboligens indre emmer af klassisk sommerhusstil med varme træoverflader, komfortable møbler og blot en helt enkel og nede-på-jorden-indretning, der skaber en behagelig og rolig atmosfære fra første feriedag. Vasketøjet behøver i ikke at bekymre jer om på ferien, da der er både vaskemaskine og tørretumbler til rådighed i et ekstra skur til huset.

Sommerhusets hjerte er opholdsrummet, hvor køkken (med opvaskemaskine), spiseafdeling og stue er slået sammen i ét åbent rum. Her kan I rigtig nyde de rolige feriestunder og det gode selskab, mens brændeovnens flammer knitrer i baggrunden.

Nyd feriedagene og den friske luft på den overdækkede terrasse

Sommerhuset ligger på en rolig og afskærmet grund, hvor der er rig mulighed for at koble fra.

Fra opholdsrummet træder I ud på sommerhusets sydvestvendte overdækkede og helt afskærmet terrasse, der sørger for at I altid kan finde en læfyldt krog, når der skal solbades, eller når der skal tages hul på en ny, spændende roman sammen med kaffen. Desuden er terrasseområderne blevet udvidet, så der er god plads til at nyde solens stråler og måske et koldt glas vin.

Den velholdte indhegnede græsplæne er perfekt til boldspil og leg, og mens I forbereder aftensmaden på grillen, kan børnene og hunden få brændt den sidste energi af. Derudover finder I også et anneks, som I kan sove i og et shelter. I shelteret skal der medbringes madrasser og andet sovegrej.

Strandnær og centrumsnær beliggenhed på Nordsøvej 45 i det populære Søndervig

Sommerhuset har en helt ideel beliggenhed til en ferie ved havet. Kun 550 meter skiller jer fra det brusende Vesterhav og den endeløse sandstrand, som hele året rundt er et besøg værd – og som gør stort indtryk på både små og store feriegæster. Både børnene og hunden vil helt sikkert også elske en gåtur langs vandet, hvor de kan udforske stranden nærmere.

Ferieadressen er ligeledes dejlig central, kun 250 meter fra Søndervigs centrum. Den populære ferieby rummer både købmand, bageri, diverse butikker og spisesteder samt aktivitetsmuligheder som minigolf. Her er der med andre ord underholdning for alle aldre og interesser!  

Faciliteter

  • Opholdsrum

    • Gulv: Trælaminat
    • Radio
    • Brændeovn
    • Fladskærms-TV
      1
  • Soverum

    • Gulv: Trælaminat
    • Dobbeltsenge
      1
    • Enkeltsenge
      3
    • Sovepladser
      5
    • Soverum
      3
    • 1. soverum/sengestørrelser
      2x80x200
    • 2. soverum/sengestørrelser
      180X200
    • 3. soverum/sengestørrelser
      140x200
  • Køkken

    • Komfur: El m. ovn
    • Køleskab
    • Opvaskemaskine
    • Mikroovn
    • Separat fryser /L
      109
  • Baderum

    • Gulvvarme bad
    • Antal badeværelser
      2
  • Objektinfo - Inde

    • Areal: Hus m²
      89
    • Byggeår
      1985
    • Husdyr tilladt
    • Husdyr antal, max
      1
    • Ikke ryger hus
    • Gratis Internet
    • Personantal
      5
    • Renoveret
      2023
    • Tyske tv-programmer
    • Tørretumbler
    • Varme: Elvarme
    • Varme: Varmepumpe luft til luft
    • Vaskemaskine
    • Satellit (tyske kanaler samt et par danske)
    • Chromecast
  • Objektinfo - ude

    • Afstand i meter: Hav
      550 m
    • Afstand i meter: Indkøb
      250 m
    • Grundens areal i m2
      1237
    • Havemøbler
    • Solvogne
    • Terrasse: åben
    • Terrasse: Afskærmet
    • Terrasse: Overdækket
    • Redskabsrum
    • Plænegrund
    • Affald hentes:
      Fredag
    • Skraldespand - Liter
      240
    • Indhegnet grund
    • Gasgrill
  • Koncepter

    • Skiftedag: Søndag
  • Miniferie

    • Ja, tak - tillad miniferie

Priser og kalender

Kalender

Ankomst
Forrige Næste
  • september 2026
    mationtofr
    36123456
    3778910111213
    3814151617181920
    3921222324252627
    40282930
    41
  • oktober 2026
    mationtofr
    401234
    41567891011
    4212131415161718
    4319202122232425
    44262728293031
    45
   Se om emnet er ledigt på den valgte dato
Ledig
Optaget
   Ankomst mulig
Varighed

Pris

Periode
Ankomst
Afrejse
Varighed
1 uge
Personer
Op til 5 personer

Bemærk

Ankomst er ikke valgt.
Aftale- og lejebetingelser