Charmerende sommerhus med udsigt og terrasse

Sommerhus - 5 personer - Lodbergsvej - Søndervig - 6950 - Ringkøbing

5 personer

Oversigt

Emne nr.: 328-363669
7 overnatninger
Fra DKK 5.573,-
Charmerende stråtækt sommerhus i Søndervig med udsigt, tæt på Vesterhavet og byliv, perfekt til afslappende ferie.
Grundareal 640 m²
Boligareal 72 m²
Soverum 3
Badeværelser 1
Afstand vand 250 m
Internet
Ikkeryger
Husdyr 1
  • Tilbyder miniferie Nej
  • Afstand indkøb 480 m
  • Parabol/kabel TV Ja
  • Energivenligt Ja

Beskrivelse

På den attraktive ferieadresse Lodbergsvej 235 i Søndervig finder I dette charmerende og velholdte sommerhus. Det stråtækte sommerhus, opført i 2004, byder på en varm og indbydende atmosfære med masser af charme og hygge. Her får I et sommerhus i Søndervig med plads til op til 5 personer og 1 husdyr – ideelt til en bekymringsfri og afslappende ferie midt i den populære badeby Søndervig.

Lækker badehotelsstemning i sommerhus med udsigt på Lodbergsvej 235

Allerede når I træder indenfor i dette sommerhus i Søndervig, vil I opleve den særlige badehotelsstemning, som gør huset helt unikt. De smukke vægpaneler, flotte tapeter og sprossede vinduer skaber en autentisk og hyggelig atmosfære, som man sjældent finder i traditionelle sommerhuse til leje.

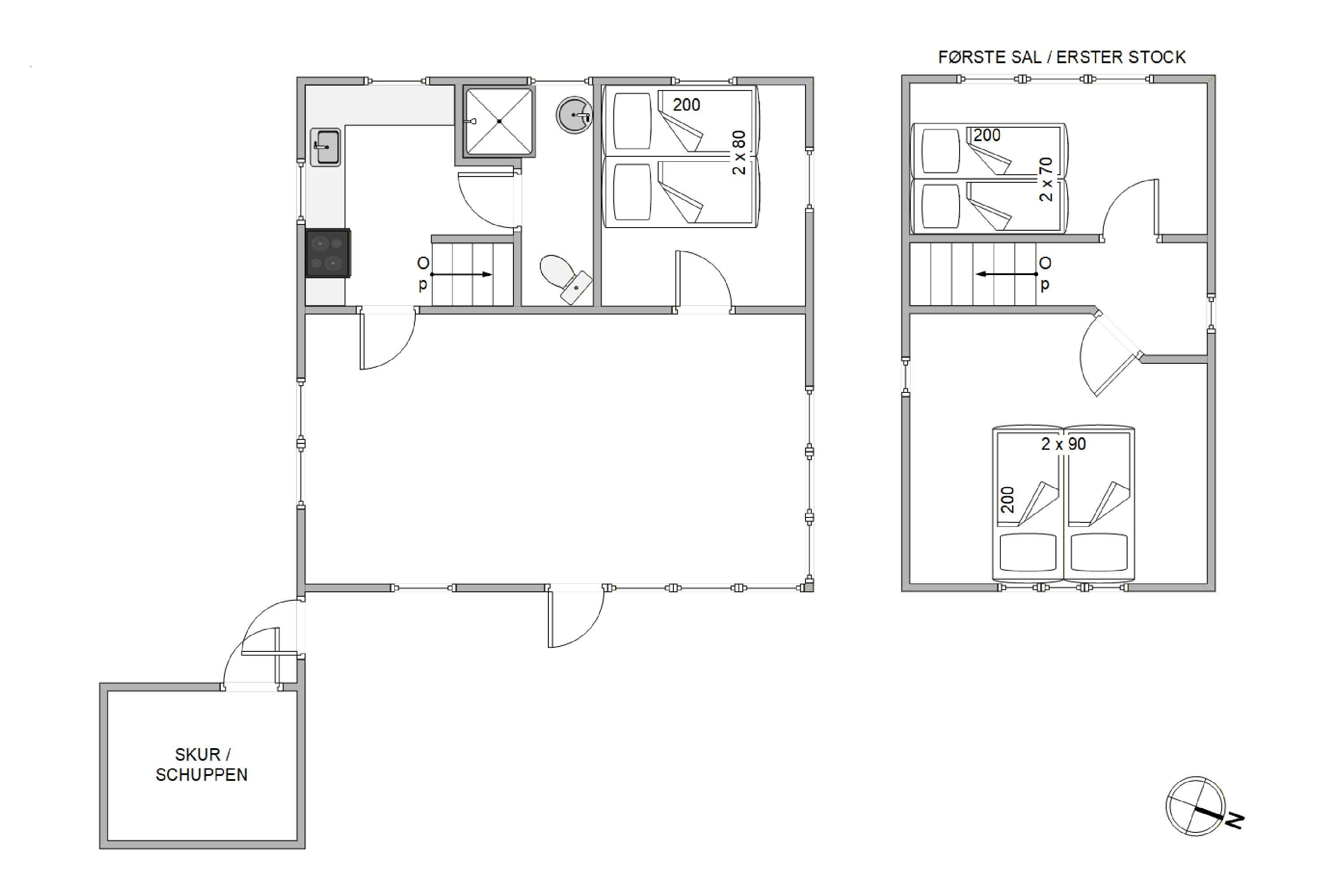
Selvom sommerhuset kun er på 72 kvadratmeter, er det optimalt indrettet med god plads til hele familien. Der er 3 soveværelser: 1 i stueplan med enkeltseng og 2 værelser på førstesalen – begge med dobbeltsenge. Et ideelt valg for dem, der søger et mindre, men velfungerende sommerhus tæt på Vesterhavet.

Opholdsrummet rummer både sofamøblement og spiseplads, samt det også fremstår lyst og åbent. De mange vinduer giver jer en fantastisk udsigt over Søndervig og det omkringliggende klitlandskab. I får derfor imødekommet jeres ønsker, hvis I ønsker et sommerhus med udsigt.

Udendørs hyggekroge og terrasser i læ

Det er ikke kun indendørs, at dette sommerhus i Søndervig imponerer. Udendørs finder I flere hyggelige terrasser, hvor I kan slappe af og nyde den vestjyske natur. Den sydvestvendte terrasse er oplagt til morgen- og formiddagssolen, mens terrassen mod vest inviterer til smukke solnedgange og aftensmad under åben himmel. Med grill til rådighed kan I også flytte madlavningen udenfor. Fra begge terrasser kan I nyde lyden af Vesterhavets brusen – en uforglemmelig og afslappende baggrundslyd

Sommerhus med unik beliggenhed midt i Søndervig

Klitgrunden på Lodbergsvej 235 er helt særlig. Her bor I midt i Søndervig – i gåafstand til både strand og by – men alligevel tilbagetrukket og ugeneret, takket være sommerhusets forhøjede placering. Det gør sommerhuset ideelt for jer, der søger privatliv og ro, men stadig vil have alt lige inden for rækkevidde.

Der er kun 200 meter til det brusende Vesterhav, og Søndervigs livlige bymidte ligger omkring 500 meter væk. Her finder I supermarkeder, butikker, restauranter og aktiviteter – alt sammen lige ved hånden, når I bor i dette centralt beliggende sommerhus tæt på Vesterhavet.

Faciliteter

  • Opholdsrum

    • Gulv: Træ
    • Fladskærms-TV
      1
    • Ekstra varmekilder
  • Soverum

    • Gulv: Træ
    • Dobbeltsenge
      3
    • Sovepladser
      5
    • Soverum
      3
    • 1. soverum/sengestørrelser
      2x80x200
    • 2. soverum/sengestørrelser
      2x70x200
    • 3. soverum/sengestørrelser
      2x90x200
  • Køkken

    • Komfur: El m. ovn
    • Køleskab m. frostboks
  • Baderum

    • Antal badeværelser
      1
  • Objektinfo - Inde

    • Areal: Hus m²
      72
    • Byggeår
      2004
    • Husdyr tilladt
    • Husdyr antal, max
      1
    • Ikke ryger hus
    • Gratis Internet
    • Personantal
      5
    • Tyske tv-programmer
    • Varme: Elvarme
    • Varme: Varmepumpe luft til luft
    • Satellit (tyske kanaler samt et par danske)
  • Objektinfo - ude

    • Afstand i meter: Hav
      250 m
    • Afstand i meter: Indkøb
      480 m
    • Grundens areal i m2
      640
    • Trækulgrill
    • Havemøbler
    • Solvogne
    • Parasol
    • Terrasse: Afskærmet
    • Redskabsrum
    • Klitgrund
    • Panoramaudsigt
    • Affald hentes:
      Torsdag
    • Skraldespand - Liter
      240
  • Koncepter

    • Skiftedag: Søndag
    • Vandaflæsning
    • Fjernaflæsning af vandmåler
  • Miniferie

    • Ja, tak - tillad miniferie

Priser og kalender

Kalender

Ankomst
Næste
  • april 2026
    mationtofr
    1412345
    156789101112
    1613141516171819
    1720212223242526
    1827282930
    19
  • maj 2026
    mationtofr
    18123
    1945678910
    2011121314151617
    2118192021222324
    2225262728293031
    23
   Se om emnet er ledigt på den valgte dato
Ledig
Optaget
   Ankomst mulig
Varighed

Pris

Periode
Ankomst
Afrejse
Varighed
1 uge
Personer
Op til 5 personer

Bemærk

Ankomst er ikke valgt.
Aftale- og lejebetingelser