Totalrenoveret sommerhus med havudsigt i Søndervig

Sommerhus - 4 personer - Lodbergsvej - Søndervig - 6950 - Ringkøbing

4 personer

Oversigt

Emne nr.: 328-301301
7 overnatninger
Fra DKK 5.128,-
Inkl. rengøring
Charmerende totalrenoveret sommerhus på klittop med havudsigt og tæt på strand og by i Søndervig.
Grundareal 1.355 m²
Boligareal 79 m²
Soverum 3
Badeværelser 1
Afstand vand 100 m
Highspeed internet Highspeed
Ikkeryger
Husdyr 2
  • Tilbyder miniferie Nej
  • Afstand indkøb 500 m
  • Parabol/kabel TV Ja
  • Vaskemaskine Ja
  • Tørretumbler Ja
  • Opvaskemaskine Ja
  • Energivenligt Ja

Beskrivelse

Dette charmerende sommerhus på toppen af klitterne er blandt Søndervigs allerførste. Det har i 2018 gennemgået en totalrenovering, og den gennemførte sommerhusstil oser af charme og nostalgi. Der er både havudsigt og udsigt over Søndervig fra grunden, og både stranden og byen ligger få minutters gang væk.

Totalrenoveret stråtagshus i gennemført sommerhusstil

Det gule stråtagshus på Lodbergsvej 305 rummer plads til fire personer - og hunden er også hjerteligt velkommen. I 2018 gennemgik huset en totalrenovering, og det ses nemt på den fra top til tå gennemførte sommerhusstil, som på alle måder indfanger den klassiske ferieidyl og har en helt speciel nostalgi over sig med en blanding af gammelt og nyt.

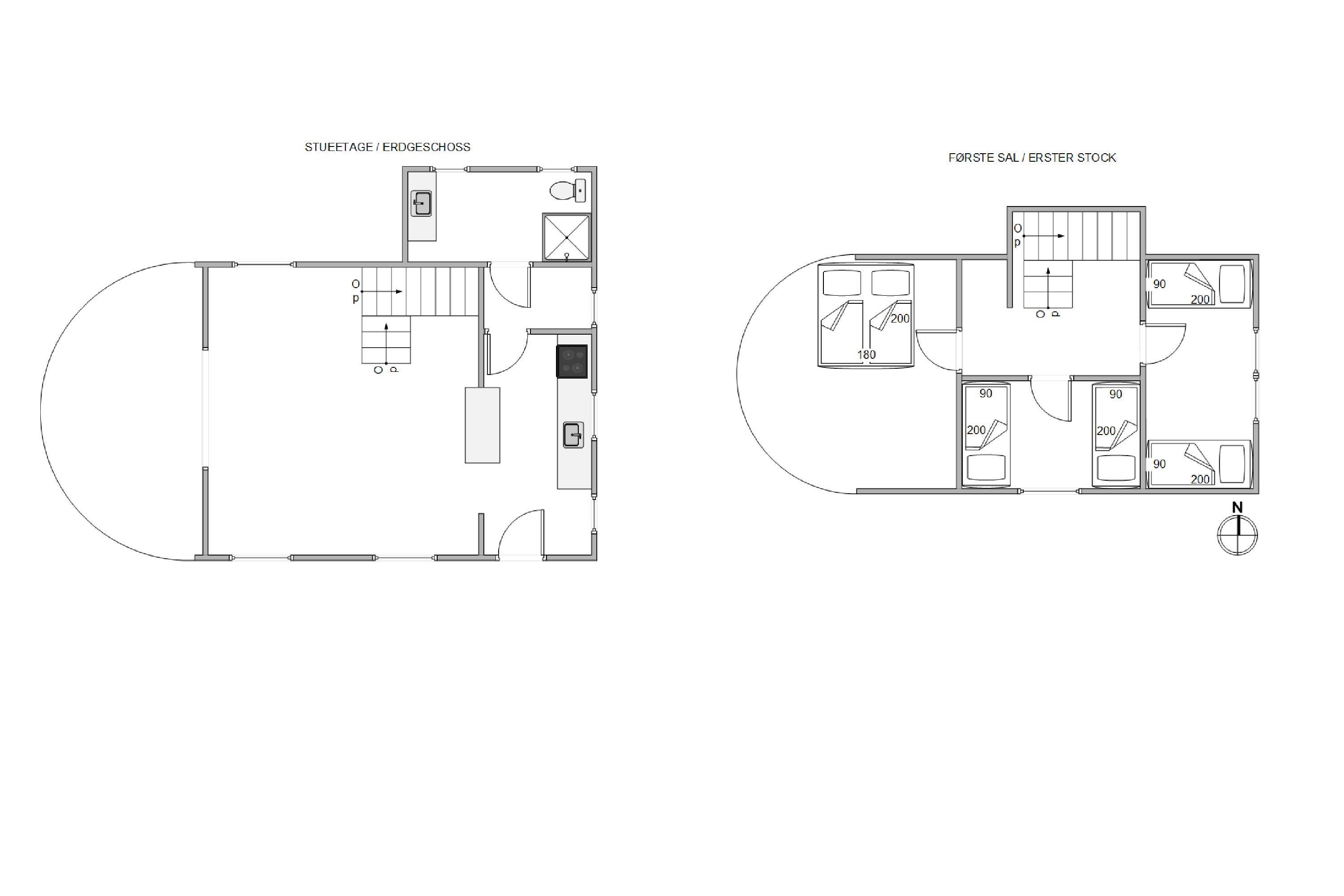
Sommerhuset råder over to etager med sovepladser for oven og køkkenalrum, stue og badeværelse for neden. Stuen rummer masser af hyggelige siddekroge, og fra vinduerne ud mod vest kan I se helt ned til havet. Køkkenet er veludstyret med blandt andet opvaskemaskine, og derudover er der vaskemaskine og tørretumbler på badeværelset. En hurtig og stabil internetforbindelse sørger for, I kan være online på ferien, hvis I har lyst til det.

Udevendigt kan dette sommerhus også tilbyde nogle lækre og indbydende udearealer. Her er en skøn og lukket træterrasse, hvor I virkelig ville kunne nyde et lækkert måltid. Om end det er en lækker morgenmad eller en lækker aftensmad tilberedt ved hjælp af husets grill, så vil I kunne nyde jeres ferie i fulde drag her. I vil samtidig kunne høre havets brusen som baggrundslyd, hvilket er helt perfekt til at slappe af i. 

En af Søndervigs bedste beliggenheder på Lodbergsvej 305 med smuk udsigt

Det er ikke kun indvendigt, sommerhuset emmer af ferieidyl. Den fantastiske beliggenhed på en af Søndervigs højeste klittoppe med udsigt hele vejen rundt sætter prikken over i'et. På den nye terrasse kan I mod vest nyde havudsigten og mod sydøst se hele vejen ud over Søndervig og Ringkøbing Fjord.

Er det ikke nok at overvære det blå Vesterhav og de smukke solnedgange fra terrassen, er det blot 100 meter, der skiller jer fra stranden. Både store, små og firbenede feriegæster vil elske et besøg på stranden, der kan være alt fra aktivt til eventyrligt og ikke mindst romantisk.

Søndervigs centrum ligger kun fem minutters gang væk, og de mange forretninger, gode spisesteder og lækre iscaféer vil uden tvivl gøre sommerhusferien endnu bedre!

Vores gæsteanmeldelser Eksterne anmeldelser

5,0
Baseret på 1 vurdering
Vurderet d. 27-06-2021
5
(1)
4
(0)
3
(0)
2
(0)
1
(0)
Kommentarer
Ingen vurderinger har kommentarer.

Faciliteter

  • Opholdsrum

    • Gulv: Trælaminat
    • Fladskærms-TV
      1
    • Ekstra varmekilder
  • Soverum

    • Gulv: Trælaminat
    • Dobbeltsenge
      1
    • Enkeltsenge
      3
    • Sovepladser
      5
    • Soverum
      3
    • 1. soverum/sengestørrelser
      1x180x200
    • 2. soverum/sengestørrelser
      2x90x195
  • Køkken

    • Komfur: El m. ovn
    • Køleskab m. frostboks
    • Opvaskemaskine
    • Mikroovn
  • Baderum

    • Gulvvarme bad
    • Antal badeværelser
      1
  • Objektinfo - Inde

    • Areal: Hus m²
      79
    • Byggeår
      1929
    • Barnestol
      1
    • Husdyr tilladt
    • Husdyr antal, max
      2
    • Ikke ryger hus
    • Personantal
      4
    • Renoveret
      2018
    • Danske TV-kanaler (Betalingskanaler)
    • Tyske tv-programmer
    • Tørretumbler
    • Varme: Varmepumpe luft til luft
    • Vaskemaskine
    • Satellit (tyske kanaler samt et par danske)
    • Flere hunde ved forespørgsel
    • Gratis fiber Internet
  • Objektinfo - ude

    • Afstand i meter: Hav
      100 m
    • Afstand i meter: Indkøb
      500 m
    • Grundens areal i m2
      1355
    • Trækulgrill
    • Havemøbler
    • Solvogne
    • Parasol
    • Terrasse: åben
    • Terrasse: Afskærmet
    • Naturgrund
    • Klitgrund
    • Affald hentes:
      Torsdag
    • Affald: Helårstømning
    • Skraldespand - Liter
      240
  • Koncepter

    • Skiftedag: Lørdag
    • Varme: 24 timer f. ankomst
    • Vandaflæsning
  • Miniferie

    • Ja, tak - tillad miniferie

Priser og kalender

Kalender

Ankomst
Forrige Næste
  • oktober 2026
    mationtofr
    401234
    41567891011
    4212131415161718
    4319202122232425
    44262728293031
    45
  • november 2026
    mationtofr
    441
    452345678
    469101112131415
    4716171819202122
    4823242526272829
    4930
   Se om emnet er ledigt på den valgte dato
Ledig
Optaget
   Ankomst mulig
Varighed

Pris

Periode
Ankomst
Afrejse
Varighed
1 uge
Personer
Op til 4 personer

Bemærk

Ankomst er ikke valgt.
Aftale- og lejebetingelser