Hyggeligt sommerhus tæt på strand og natur
Sommerhus - 6 personer - Ferievej - Jørgensø - 5450 - Otterup
Alternative emner
Sommerhuse i nærheden (86)6 personer
Oversigt
Emne nr.: 121-72-4030
7 overnatninger
Fra
DKK 3.762,-
Valgfri rengøring: DKK 896,-
Hyggeligt sommerhus i Otterup med strand kun 150 m væk og nyt badeværelse fra 2022.
- Tilbyder miniferie Nej
- Afstand indkøb 2 km
- Parabol/kabel TV Ja
- Brændeovn Ja
- Vaskemaskine Ja
- Opvaskemaskine Ja
- Energivenligt Ja
Beskrivelse
I dette sommerhus kan I nyde ægte sommerhushygge i et autentisk ældre sommerhus i god stand, som er nydeligt moderniseret igennem de seneste år. Huset har bl.a. netop fået nyt flot badeværelse i 2022.
Huset ligger i roligt område og for enden af vejen er der en sti, som fører direkte ned til den dejlige strand - som kun ligger 150m fra huset.
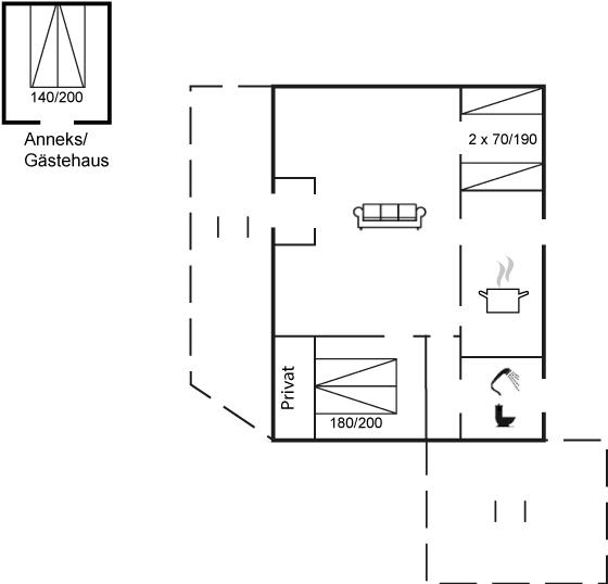
Bemærk, at to af husets sovepladser befinder sig i annekset.
Indretning
Sommerhuset egner sig til 6 personer. Ferieboligen er på 61 m² og er bygget i 1960. I 2022 gennemgik ferieboligen en delvis renovering. Det er tilladt at medbringe 2 husdyr. Ferieboligen er udstyret med energibesparende varmepumpe. Ferieboligen har vaskemaskine. Frysekapacitet på 98 liter. Der er desuden brændeovn. Til de små er der 1 stk. barnestol.
Udenfor
Ferieboligen er beliggende på en 386 m² stor havegrund. Der er 150 m til havet. Nærmeste forretning er beliggende i en afstand af 2000 m. Til ferieboligen hører 36 m² terrasseareal. Der er redskabsrum. Gynge. Sandkasse. På lune aftener sørger en udendørs pejs for hyggelig stemning. Parkering ved ferieboligen.
Soveforhold
Der er i alt 3 soveværelser. Sovepladserne fordeler sig på: 4 sovepladser i dobbeltsenge. 2 sovepladser i enkeltsenge. 2 af disse sovepladser befinder sig i et anneks.
Køkken
Køkkenet er udstyret med 1 køleskab. Der er 4 keramiske kogeplader, varmluftovn, mikrobølgeovn samt opvaskemaskine.
Toilet og bad
Der er 1 badeværelse med bruseniche og 1 toilet.. Der er gulvvarme på 1 badeværelse.
Multimedier
I ferieboligen er der 1 TV. Radio. CD-afspiller. Der er mindst 4 danske kanaler. Mindst 4 tyske kanaler. Der er trådløst internet til rådighed.
Værd at vide
Ingen udlejning til ungdomsgrupper, hvor alle er 15-25 år. Rygning ikke tilladt. Ved overtrædelse af forbuddet opkræves et gebyr på minimum DKK 3.000,-.
Huset ligger i roligt område og for enden af vejen er der en sti, som fører direkte ned til den dejlige strand - som kun ligger 150m fra huset.
Bemærk, at to af husets sovepladser befinder sig i annekset.
Indretning
Sommerhuset egner sig til 6 personer. Ferieboligen er på 61 m² og er bygget i 1960. I 2022 gennemgik ferieboligen en delvis renovering. Det er tilladt at medbringe 2 husdyr. Ferieboligen er udstyret med energibesparende varmepumpe. Ferieboligen har vaskemaskine. Frysekapacitet på 98 liter. Der er desuden brændeovn. Til de små er der 1 stk. barnestol.
Udenfor
Ferieboligen er beliggende på en 386 m² stor havegrund. Der er 150 m til havet. Nærmeste forretning er beliggende i en afstand af 2000 m. Til ferieboligen hører 36 m² terrasseareal. Der er redskabsrum. Gynge. Sandkasse. På lune aftener sørger en udendørs pejs for hyggelig stemning. Parkering ved ferieboligen.
Soveforhold
Der er i alt 3 soveværelser. Sovepladserne fordeler sig på: 4 sovepladser i dobbeltsenge. 2 sovepladser i enkeltsenge. 2 af disse sovepladser befinder sig i et anneks.
Køkken
Køkkenet er udstyret med 1 køleskab. Der er 4 keramiske kogeplader, varmluftovn, mikrobølgeovn samt opvaskemaskine.
Toilet og bad
Der er 1 badeværelse med bruseniche og 1 toilet.. Der er gulvvarme på 1 badeværelse.
Multimedier
I ferieboligen er der 1 TV. Radio. CD-afspiller. Der er mindst 4 danske kanaler. Mindst 4 tyske kanaler. Der er trådløst internet til rådighed.
Værd at vide
Ingen udlejning til ungdomsgrupper, hvor alle er 15-25 år. Rygning ikke tilladt. Ved overtrædelse af forbuddet opkræves et gebyr på minimum DKK 3.000,-.
Faciliteter
-
Adgang til ferieboligen
-
Nøgleboks med kode
-
-
Bemærk
-
Ingen ungdomsgrupper efter anmodning
-
Rygning er forbudt
-
-
Indretning
-
Antal voksne inkl. 4-11 år6
-
Bebygget areal61 m²
-
Brændeovn1
-
Byggeår1960
-
Feriebolig
-
Frysekapacitet (antal liter)98
-
Husdyr2
-
Højstol1
-
Renoveringsår2022
-
Varmepumpe
-
Vaskemaskine1
-
-
Køkken
-
Antal keramiske kogeplader4
-
Køleskab1
-
Mikrobølgeovn1
-
Opvaskemaskine1
-
Varmluftovn1
-
-
Multimedier
-
> 3 danske kanaler
-
> 3 tyske kanaler
-
Antal tv'er1
-
CD afspiller
-
Radio
-
Trådløst internet
-
-
Soveforhold
-
Antal soveværelser3
-
Dobbeltseng (antal sovepladser)4
-
Enkeltseng (antal sovepladser)2
-
Soveplads ikke i soveværelset
-
-
Toilet og bad
-
Antal badeværelser1
-
Antal toiletter1
-
Brusekabine
-
Gulvvarme1
-
-
Udenfor
-
Anlagt have
-
Butik2 km
-
Gynge
-
Hav150 m
-
Parkeringsplads ved huset
-
Redskabsskur
-
Sandkasse
-
Størrelse af grunden386 m²
-
Terrasse36 m²
-
Udendørs pejs
-
Priser og kalender
Kalender
Varighed
Pris
Periode
- Ankomst
- Afrejse
- Varighed
- 1 uge
Personer
Op til 6 personer
Bemærk
Ankomst er ikke valgt.