Hyggeligt byhus med sauna og udespa i Hvide Sande

Sommerhus - 6 personer - Vinbjergvej - 6960 - Hvide Sande

6 personer

Oversigt

Emne nr.: 328-283905
Kan ikke beregne prisen med den valgte periode.
Skønt byhus i Hvide Sande med sauna, udespa og central beliggenhed tæt på havet.
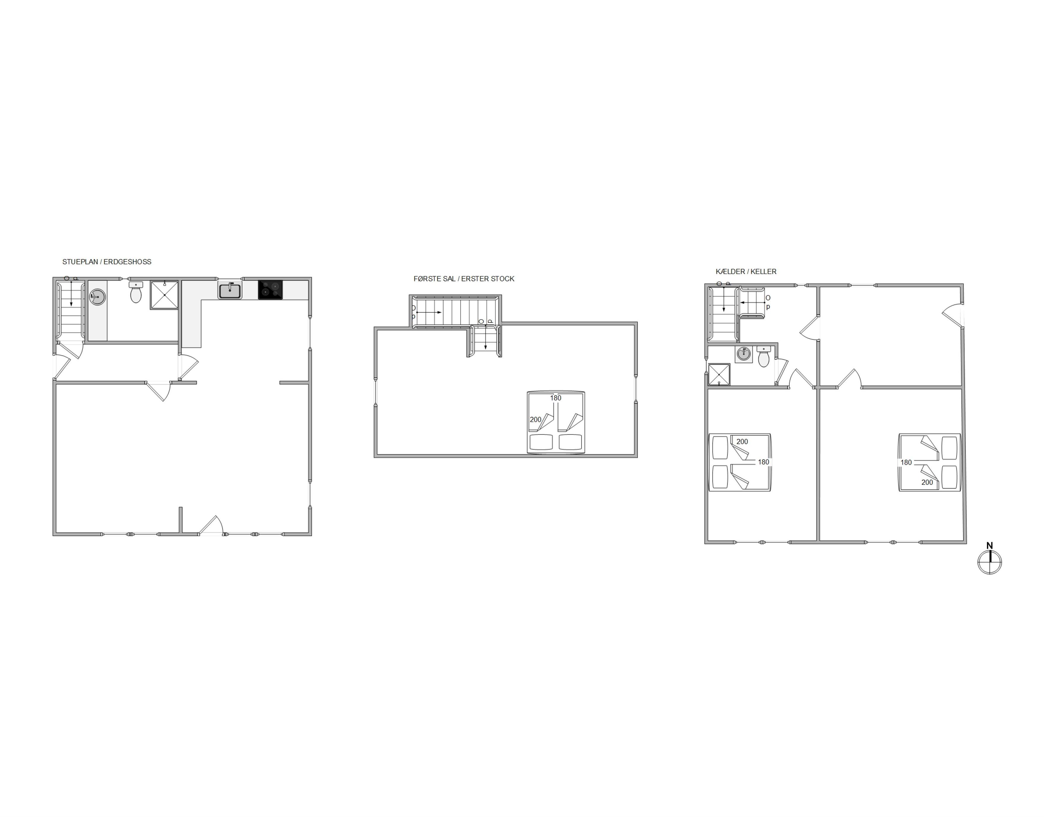
Grundareal 424 m²
Boligareal 99 m²
Soverum 2
Badeværelser 2
Afstand vand 250 m
Internet
Ikkeryger
Husdyr
  • Tilbyder miniferie Nej
  • Afstand indkøb 500 m
  • Spa Ja
  • Sauna Ja
  • Parabol/kabel TV Ja
  • Vaskemaskine Ja
  • Tørretumbler Ja
  • Opvaskemaskine Ja

Beskrivelse

Bo centralt i Hvide Sande i dette skønne byhus. Huset er 99 m² og indrettet med inferød-sauna, 2 soverum, 1 hems og 2 badeværelser med bruser. I alle soverum er der placeret en dobbeltseng. Feriehuset er fordelt over 3 plan og rummer alt det, man kan forvente af et byhus. Her er egen have med udespa, en skøn træterrasse i højde og plads hele 6 personer.

Bo komfortabelt 

Vinbjergvej 7 er blevet renoveret i 2019. I dette hyggelige feriehus finder I et flot lyst køkken med opvaskemaskine, induktionsovn og køleskab med separat fryser. Køkkenet er i åben forbindelse til stuen, som ligeledes er dejlig lyst. Stuen har en hyggelig sofakrog med flotte farver og her er også placeret en dejlig lænestol, hvor du kan nyde morgenkaffen med benene oppe og lade ferieroen sænke sig.

Feriehuset indeholder 2 soverum og 1 hems med sovepladser - alle værelserne er med dobbeltsenge. Haven har plads til børnenes leg - I kan spille en gang fodbold eller måske vil børnene udfordre jer til en gang vikingespil? Udespaet hitter sikkert både hos voksne og børn. Infrarød-saunaen byder på varme, når det er koldt eller efter en dukkert i vesterhavet.

Udenfor finder I også et redskabsrum, hvor der er mulighed for at opbevare jeres medbragte cykler eller surfbrætter.

På ferie i Hvide Sande

Når I bor centralt i Hvide Sande, vil I kunne mærke det pulsende byliv og fornemme det rolige folkefærd i byen. Hvide Sande byder på mange forskellige oplevelser. I kan tage en dag på shoppetur, I kan tage på fiskeauktion eller selv tage ud at fiske. Her er også mulighed for, at tage en tur i svømmehal eller smutte en tur i havet.

Skal der ske lidt sjovt, så smut ned til kabelbanen og prøv en tur på vandski eller wake-bord, tag med traktor på ravjagt eller på sejltur fra havnen. Måske vil I også en tur til Søndervig, som også byder på shopping, strand og gode restauranter, så er her kun ca. 12 km.

Faciliteter

  • Opholdsrum

    • DVD-afspiller
      1
    • Gulv: Trælaminat
    • Radio
    • Fladskærms-TV
      2
    • Dock/Bluetooth enhed
    • Ekstra varmekilder
  • Soverum

    • Ekstra sovepl. Hems
      1
    • Gulv: Tæppe
    • Dobbeltsenge
      3
    • Sovepladser
      6
    • Soverum
      2
    • Antal personer (loft, anneks osv.)
      2
    • 1. soverum/sengestørrelser
      1x180x200
    • 2. soverum/sengestørrelser
      1x180x200
    • 3. soverum/sengestørrelser
      1x180x200
  • Køkken

    • Komfur: Induktion m. ovn
    • Køleskab
    • Opvaskemaskine
    • Mikroovn
    • Separat fryser /L
      80
    • Affaldssortering
  • Baderum

    • Gulvvarme bad
    • Sauna, infrarød
    • Antal badeværelser
      2
  • Objektinfo - Inde

    • Areal: Hus m²
      99
    • Byggeår
      1953
    • Barneseng
      1
    • Barnestol
      1
    • Ikke ryger hus
    • Gratis Internet
    • Personantal
      6
    • Renoveret
      2019
    • Danske TV-kanaler (Betalingskanaler)
    • Tyske tv-programmer
    • Tørretumbler
    • Varme: Fjernvarme
    • Vaskemaskine
    • Satellit (tyske kanaler samt et par danske)
    • Jubilæumsmønt er udleveret
  • Objektinfo - ude

    • Afstand i meter: Hav
      250 m
    • Afstand i meter: Indkøb
      500 m
    • Grundens areal i m2
      424
    • Gynge
    • Trækulgrill
    • Havemøbler
    • Solvogne
    • Terrasse: åben
    • Terrasse: Afskærmet
    • Terrasse: Lukket
    • Affald hentes:
      Tirsdag
    • Skraldespand - Liter
      240
    • Udespa: antal pers.
      5
  • Koncepter

    • Varme: 24 timer f. ankomst
    • Skiftedag: Søndag
    • Vandaflæsning
  • Miniferie

    • Ja, tak - tillad miniferie

Priser og kalender

Kalender

Ankomst
Forrige Næste
  • juni 2027
    mationtofr
    22123456
    2378910111213
    2414151617181920
    2521222324252627
    26282930
    27
  • juli 2027
    mationtofr
    261234
    27567891011
    2812131415161718
    2919202122232425
    30262728293031
    31
   Se om emnet er ledigt på den valgte dato
Ledig
Optaget
   Ankomst mulig
Varighed

Pris

Periode
Ankomst
Afrejse
Varighed
1 uge
Personer
Op til 6 personer

Bemærk

Ankomst er ikke valgt.
Aftale- og lejebetingelser